Bildegalleri
Nes i Ådal
Moderne og arealeffektiv tomannsbolig med barnevennlig og landlig beliggenhet på Nes i Ådal
Prosjektets status
Planlegging
Venter på igangsettelsestillatelse
Salgsstart
Igangsatt
Byggestart
Antatt 1.kvartal 2025
Overtakelse
Antatt desember 2025
Nøkkelinfo
- Boligtype
- Leilighet
- Eieform
- Selveier
- Soverom
- 2
- Rom
- 3
- Etasje
- 1
- Antall etasjer
- 1
- Bruksareal
- 63 m²
Fasiliteter
Visning
Ta kontakt for å avtale visning.Beskrivelse
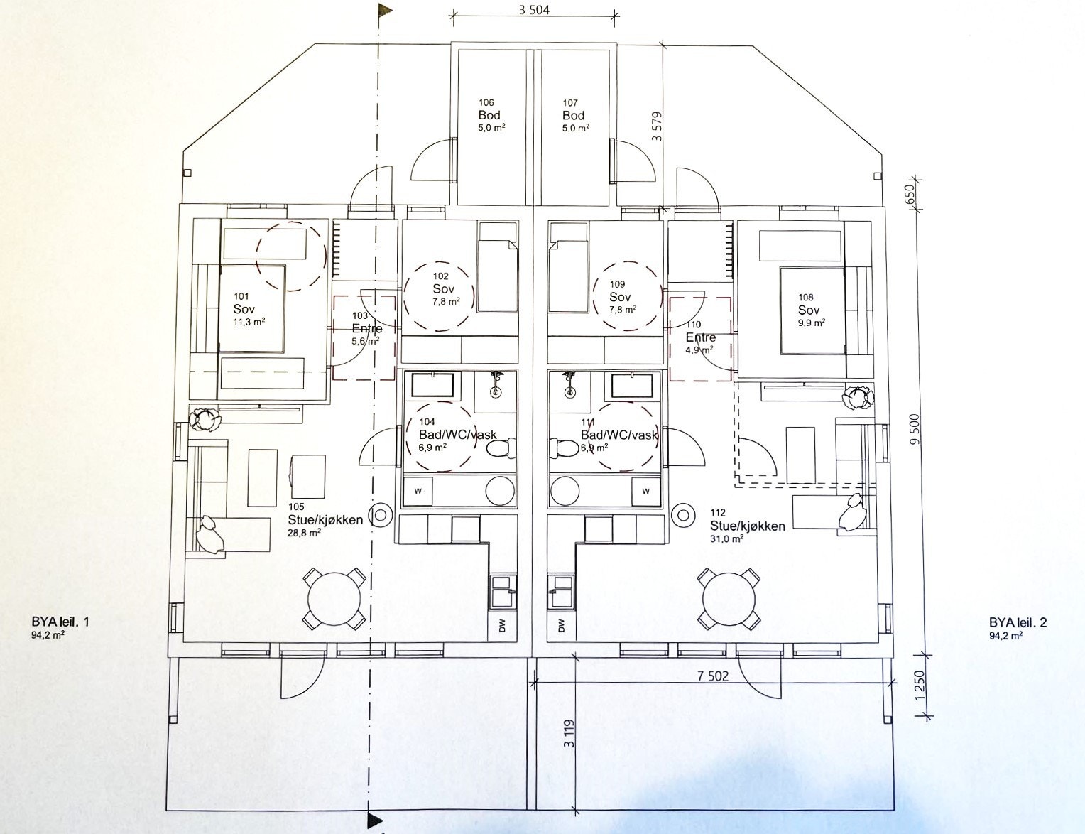
Boligen inneholder stue med åpen kjøkkenløsning, 2 soverom, bad/vaskerom, bod, gang og tilstøtende sportsbod.
Vegger og himling:
Vegger i alle tørre rom samt bod, leveres med malte panelplater fra Hunton - Kostemalt Faspanel.
I himlingene leveres Hunton takplater 120x60.
Bad leveres med standard fliser.
Gulv:
På gulvene i rom som ikke har flis vil vi legge en 13 mm 3-stavs eike parkett hvitlasert.
Kjøkken:
Moderne tilpasset kjøkkeninnredning i grå utførelse - modell Rimini, leveres og monteres av vår leverandør Nybo kjøkken, Hvitevarer er inkludert i leveransen.
Bad
Bad har fliser som standard på gulv og vegger. Det leveres, toalett, dusj og ettgreps blandebatteri til servant, baderoms innredning med speil, belysning og heldekkende servant i hvit utførelse.
Gang/entre:
Leveres med standardfliser 30x30 og varmekabler på deler av arealet.
*Ved første signering av kjøpekontrakt , vil tidspunkt for overlevering av bolig kunne fastslås.
*Forbehold om godkjent igangsettelsestillatelse.
Område/Beliggenhet:
Bautaveien ligger sentralt i Nes i Ådal med gangavstand til butikk og skole.
Området ligger i nordenden av Sperillen og på sommerstid er det kort avstand til flotte plasser som kan by på bading, fisking og soling. Med båt har man mange muligheter for utflukter på fjorden.
Langs østsiden av fjorden stiger landskapet raskt opp mot det naturskjønne området rundt Fjorda i Gran kommune, Oppland, omkring 389 moh. Det regnes som et eldorado for kanoentusiaster. Langs vestsiden stiger landskapet enda brattere mot fjelltoppene i Ådalsfjellene. Både Gyranfisen og Treknatten stiger til over 1 100 moh. Området er et populært rekreasjonsområde både sommer og vinter.
Ca 45 min med bil fra Hønefoss til Nes i Ådal
Adkomst:
Følg E16 mot Fagernes fra Hønefoss, til du kommer til Nes, ta så av inn til Rv 243 Hedalsveien og kjør ca100 meter - tomten ligger da på din høyre side.
Kjøpsbetingelser og omkostninger:
Ved kjøp av ny bolig, betaler du kun dokumentavgift på tomteverdien. Man sparer derfor titalls tusen kroner ved å kjøpe nytt.
Følgende tilkommer ut over kjøpesummen pr. leilighet og betales av kjøper.
Dokumentavgift ved tinglysning av skjøte: kr 7.775,-
(2,5% av tomteverdi kr 311.000,-)
Gebyr for tinglysing av skjøte kr. 500,-
Gebyr for tinglysing av pantedokument kr. 500, -
Gebyr for pantedokument kr. 240,-
Totale omkostninger: kr 9.015,- pr enhet.
Sandvold Boliger er forhandler av Lindehus
Firma AS er forhandler av Lindehus
Lindehus er en norsk huskjede med erfarne fagfolk fra ferdighusbransjen, hvor alle har mellom 10 og 40 års erfaring. Siden oppstarten har Lindehus utviklet både bolig- og hyttekolleksjoner, og samarbeider i dag med forhandlere over store deler av landet. I samarbeid med Lindehus, designer og tilpasser vi boliger etter dine ønsker. Du kan også komme med en skissert bolig til oss og vi kan lage skisser og tegne ut fra dine ønsker.
Nærområdet
SANDVOLD BOLIGER AS
Annonsene kan være mangelfulle i forhold til lovpålagt opplysningsplikt. Før bindende avtale inngås oppfordres interessenter til å innhente komplett informasjon fra meglerforetaket, selger eller utleier.














