Bildegalleri

Fasade
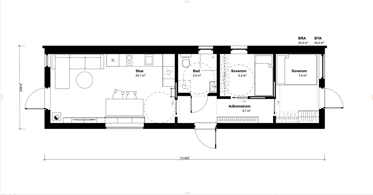
MINIHUS SLEVIK
SMÅ ENEBOLIGER (MINIHUS) I FLOTT NABOLAG - Hus 1 & 3 er solgt. Kun hus nr. 2 igjen!
Prosjektets status
Planlegging
Q4 2024
Salgsstart
Q4 2024
Byggestart
Q2 2025
Overtakelse
Q2/Q3 2025
Nøkkelinfo
- Boligtype
- Enebolig
- Eieform
- Eier (Selveier)
- Soverom
- 2
- Rom
- 3
- Etasje
- 1
- Antall etasjer
- 1
- Energimerking
- B
- Internt bruksareal
- 45 m² (BRA-i)
- Bruksareal
- 50 m²
- Eksternt bruksareal
- 5 m² (BRA-e)
- Grunnflate
- 45 m²
Fasiliteter
Beskrivelse
3 små eneboliger (Minihus) med utebod.
GANG/ENTRE
Vegger
Velg mellom farget puss, kryssfiner eller trepanel .
Gulv
Velg mellom laminat, vinyl eller eik 3-stavs parkett(12 mm).
Tak (Himling)
Velg mellom farget puss, kryssfiner eller trepanel.
Tilvalgs muligheter
Varme i gulv, garderobeskap.
SOVEROM 1
Soverommet blir på ca. 7 kvm.
Vegger
Velg mellom farget puss, kryssfiner eller trepanel.
Gulv
Velg mellom laminat, vinyl eller eik 3-stavs parkett(12 mm).
Tak (Himling)
Velg mellom farget puss, kryssfiner eller panel.
Inkluderer også Velux takvinduer (opptil 2 stk, 70x140 eller
lignende).
Elektro/Utstyr
Elektrisk innredning i henhold til NEK 400 standard.
Tilvalgs muligheter
Garderobeskap. Gips- eller leirevegger og tak
SOVEROM 2
Soverommet blir på ca. 6 kvm.
Vegger
Velg mellom farget puss, kryssfiner ellertrepanel.
Gulv
Velg mellom laminat, vinyl eller eik 3-stavs parkett(12 mm).
Tak (Himling)
Velg mellom farget puss, kryssfiner ellertrepanel.
Inkluderer også Velux takvinduer (opptil 2 stk, 70x140 eller
lignende).
Elektro/Utstyr
Elektrisk innredning i henhold til NEK 400 standard.
Tilvalgs muligheter
Garderobeskap. Gips- eller leirevegger og tak
BAD
Vegger
Velg mellom Fibo Trespo eller vannfast kryssfiner.
Gulv
Vinylgulv som gir et slitesterkt og behageligunderlag.
Tak
Velg mellom Fibo Trespo eller vannfast kryssfiner for en holdbar
Og elegant finish.
Elektro/Utstyr
Pakken har en totalverdi på kr. 30.000,-
og inkluderer følgende:
Speil med integrert lys
Stikkontakt vedsiden av speil
Fuktstyrt avtrekksvifte
Vask med ettgreps blandebatteri og underskap
Dusjvegg i glass eller dusjkabinett
Opplegg for vaskemaskin
Gulvstående toalett
Baderomsinnredning fra IKEA, alternativt etter avtale
Tilvalgs muligheter
Fliser på vegg og/eller gulv
Gulvvarme med termostatstyring
Vegghengttoalett
KJØKKEN/STUE
Vegger
Velg mellom farget puss, kryssfiner eller trepanel .
Gulv
Velg mellom laminat, vinyl eller eik 3-stavs parkett(12 mm).
Tak (Himling)
Velg mellom farget puss, kryssfiner eller trepanel. Inkluderer
også Velux takvinduer (opptil 2 stk, 70x140 eller lignende).
Innredning
IKEA standard kjøkkeninnredning til en verdi av kr. 45.000,-
Elektro/Utstyr
Induksjonstopp med vifte og kullfilter
Komfyrvakt
TV-stikk i henhold til gjeldende krav (NEK 400)
Tilvalgs muligheter:
Gips- eller leirevegger og tak
Varmepumpe
Varme i gulv
Vannlås og eventuelle hvitevarer som bestilles utover
kjøkkeninnredningens verdi på kr. 45.000,-
Tilvalgsmuligheter er ikke inkluderti prisen og medfører et
pristillegg.
UTVENDIG BOD
Det vil følge med en utvendig bod på ca. 5 kvm.
Materialvalg:
Gulv: det vil være flis på gulvet, forøvrig enstavs laminat
Vegg: det vil på badet være flis i dusjsonen, resten av badet blir med plater eller flis. Forøvrige vegger blir malt gips, kombinert med panel og spilepanel.
Himling: det vil være gips/panel i himlingen
Generelt innvendig:
Innerdører
Standard MDF-dører.
Ventilasjon
Ventiler i veggene og avtrekksvifte på badet.
Elektrisk
230V, 32 amp sikringer i henhold til NEK 400-standard.
Belysning
Tilvalgs muligheter
Innerdører i tre
Vedovn
Elektrisk gulvvarme
Vinduer
3-lags PVC-vinduer med innvendig hvitfarge og utvendig
tre-look.
Hoveddør
Standard tredør (U<8) med brems/mekanisme for kontrollert åpning.
Innerdører
Velg mellom tredører eller MDF-dører, tilpasset interiøret ditt.
Yttervegger
Trepanel, tilgjengelig i12 cm eller 9 cm tykkelse, enten beiset eller ferdig
malt.
Yttertakskledning
Stålplater av typen Rukki eller lignende, for holdbar og estetisk
takløsning.
Elektrisk og VVS utendørs
En utendørs vannbestandig stikkontakt
Vegglampe ved inngang
Utendørs vannkran, vinterklargjort
Utebod på ca. 5 kvm.
Tilvalgs muligheter
Vinduer med tre-ramme
Billader
Platting
Tilvalgsmuligheter er ikke inkluderti prisen og medfører et pristillegg.
Boligene leveres ihht. gjeldende TEK 17 krav.
NB
Det gjøres oppmerksom på at bildene kan inkludere innredninger som ikke medfølger i prisen.
Det er inngått en opsjonsavtale med tomteeier som forutsetter 2 av 3 solgte hus, samt kommunal godkjenning av prosjektet.
Nyttige lenker
Nærområdet
EIENDOMSVEKST AS
Annonsene kan være mangelfulle i forhold til lovpålagt opplysningsplikt. Før bindende avtale inngås oppfordres interessenter til å innhente komplett informasjon fra meglerforetaket, selger eller utleier.







