Bildegalleri

Illustrasjon av stue i 2.etasje. Stuen leveres med skrå himling.
Ny, flott enebolig på Kampestad - bygging i gang!
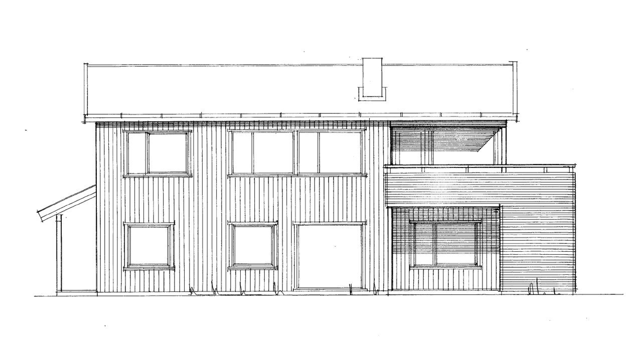
Arkitekttegnet, innholdsrik enebolig i rolig boligområde sentralt nær Kongsberg sentrum
Prosjektets status
Planlegging
Prosjektert
Salgsstart
Til salgs
Byggestart
Byggingen er i gang
Overtakelse
Våren 2026
Nøkkelinfo
- Boligtype
- Enebolig
- Eieform
- Eier (Selveier)
- Soverom
- 4
- Antall etasjer
- 2
- Energimerking
- B - Oransje
- Bruksareal
- 151 m²
Fasiliteter
Visning
Ta kontakt for å avtale visning.Beskrivelse
En bolig fra PK Hus har gode og gjennomarbeidede løsninger.
Boligen er tegnet av den lokale sivilarkitekten Marit Fåsetbru og den er godt tilpasset tomt og omgivelsene. Marit er kjent for sin gode arkitektur, gjennomtenkte planløsninger og tilpasninger av husene til tomten den skal bygges på. Her er det gode og gjennomarbeidede løsninger du ikke får med et kataloghus.
Dette får du:
- Arkitekttegnet bolig tilpasset tomt
- Sørvestvendt og flott utsikt
- Lys stue/kjøkkenløsning med mye vinduer
- Kvalitetskjøkken fra Sigdal med integrerte hvitevarer
- Egen masteravdeling i 2.etg. med walk-in og bad
- Vaskerom rett ved inngangen
- 3 gode soverom og bad i 1. etasje
- Separat teknisk rom/bod
- Boligen bygges av PK Hus etter gjeldende tekniske krav (TEK 17). De tekniske kravene til dagens byggeforskrifter gir deg en bolig med vesentlig lavere strømforbruk og mindre utgifter til oppvarming enn en eldre bolig. Et godt isolert hus med balansert ventilasjon gir deg en bolig med et godt og sundt inneklima.
- Våre nye, prosjekterte boliger selges til fastpris og du slipper budrunder. Ved kjøp av ny bolig betaler du også kun 2,5% av tomteverdien og ikke av hele kjøpesummen.
- Boligen selges etter Budstadoppføringslova og gir deg 5 års reklamasjonsrett iht. loven.
Boligen er funksjonell og moderne fordelt på to etasjer. Inngangen og boligen ligger litt opp fra parkering og innkjøring. I første etasje har du 3 gode soverom, praktisk vaskerom rett ved inngangsdøren og et romslig bad. I forlengelse av trapp og gang har du en fin TV stue eller lekerom for barna. Det er et eget teknisk rom innerst i boligen med plass til alt teknisk utstyr som en ny bolig krever i dag. I tillegg kan du innrede for praktisk lagring.
Trappen ligger sentralt i boligen og den fører deg rett opp i den lyse stuen med flott utsikt. Kjøkken og spiseplass er godt planlagt og her er plass for gode måltider både i hverdagen og i spesielle anledninger. Fra spiseplassen kommer du ut på terrassen som vender mot sydvest. Her vil du også ha tilgang direkte ut i hagen. I den andre enden av huset er det en egen "suite" med soverom, walk-in og bad.
Det er er valgt store vindusflater i oppholdsrommene noe som gir lyse, gode rom. Standarden på boligen er gjennomført moderne med kjøkken fra Sigdal, hvitevarer, peisovn og 3-stavs hvit eikeparkett.
Tomten
Boligen er prosjektert og skal bygges i Bellerudløkka på Kampestad, nærmere bestemt på tomt 4-1. En flott tomt på 730m2 som befinner seg i byggetrinn 3. Tomten ligger i sørvestvendt solhelling med flott utsikt mot Skrim og Knutefjell og med meget gode solforhold.
Tomtene på Bellerudløkka ligger alle i en skrå, sørvestvendt helling som gjør at boligene ligger naturlig fritt og trapper fint i forhold til hverandre.
Leveransebeskrivelse
YTTERVEGGER
Fasadene er i trebindingsverk kledd med trepanel på utsiden og ferdigmalte panelplater og malt gips på innsiden. Utvendig kledning er behandlet med ett (1) strøk dekkende behandling. Det vil være en overgangslist i etasjeskille i kledningen ved levering av elementer.
TAK
Tak leveres med listetekking.
HIMLING
Skjøt- og flekksparklet malt gips.
INNERVEGGER
Lette skillevegger i huset utføres i bindingsverk med isolasjon og ferdigmalte veggplater og skjøt- og flekksparklet malt gips. Baderom har 30x60cm fliser på veggene.
VINDUER/DØRER
Vinduer og balkongdører er i malt tre. Alle innvendige dører er hvite, slette kompaktdører med rustfri håndtak. Inngangsdøren i boligen leveres i fargen mørkegrå med dørhåndtak i rustfri utførelse.
GULV/TRAPPER
Etasjeskiller er trebjelkelag. Huset har 1-stavs Pergo wideplank laminat i stue, kjøkken, soverom og bod. 30 x 60 fliser på gulvet på bad og i gang. Trapp i modell Salvi fra Trapperingen med åpne trinn i parkettmønstret heltre hvit eik, øvrig trapp er hvit.
LISTVERK
Alle lister leveres i standard glatt utførelse og er behandlet hvit fra fabrikk. Det vil være synlige stiftehoder på alle monterte lister/gerikter.
BAD
Det leveres baderomsmøbel med skuffer, speil og belysning. Vegghengt toalett. Dusjhjørne leveres komplett med dusjgarnityr, termostatbatteri og glassvegger. Varmtvannsbereder er på 200 liter og plassert i bod/teknisk rom. På vaskerom leveres vaskekar og det er klargjort for tilkobling av vaskemaskin.
Det leveres en (1) utekran.
KJØKKEN
Kjøkkeninnredning leveres fra Sigdal kjøkken. Skuffer og skapdører har demping og rent design. Med laminat benkeplate og nedfelt kum får du en slitesterk benkeplate som er lett å vedlikeholde. Integrerte hvitevarer som komfyr med platetopp, kjøl/frys, oppvaskmaskin og ventilator leveres med. Løsningen som er vist på plantegning er veiledende, be derfor om spesifikasjon.
GARDEROBE
Er ikke en del av leveransen.
VENTILASJONSANLEGG
Boligen leveres med balansert ventilasjon med varmegjenvinning.
PEISOVN OG PIPE
Det leveres frittstående peisovn med stålpipe i stuen.
ELEKTRISK ANLEGG
Det er fordelingsskap med måler og automatsikringer.
Antall elektriske punkter leveres etter NEK 400, hvor det stilles krav til antall punkter. Antall elektriske punkter med i boligen er i forhold til m2 pr rom, fast elektrisk utstyr og tenkt tv plassering.
Det leveres belysning over speil og ett stikk på badet. Det leveres 1 stk. lysarmatur under overskap på kjøkkenet. I bod leveres det 1 stk. lysarmatur i taket. Til øvrig takbelysning er det takpunkter for tilkobling av egne lamper. Det leveres utelampe ved inngangspartiet og ved terrassene.
Det leveres termostatstyrte elektriske varmekabler på bad, vaskerom, gang og TV-stue i 1.etasje. Oppvarming på soverom og øvrige oppholdsrom er med elektriske panelovner som er tilpasset rommenes størrelse.
Huset har ringeklokke ved inngangsdør. Det leveres en røykvarsler i hver etasje. Sportsbod er tiltenkt i fremtidig garasje.
Det er medtatt trekkerør fra utvendig el-skap til innfelt veggboks under sikringsskap. Derfra ligger det tomrør til tenkt TV plassering, ett punkt pr. stue.
CARPORT/GARASJE OG PARKERING
Carport eller garasje er ikke medtatt. Det opparbeides 2 biloppstillingsplasser der fremtidig garasje er planlagt i situasjonskartet.
UTOMHUS
Det leveres platting i ubehandlet impregnert tre utenfor inngangspartiet. Det leveres terrasse med rekkverk i ubehandlet impregnert tre i hovedetasjen. Det er adkomst til terreng fra terrassen.
Tomten vil bli grovplanert. Det leveres grus/subus i innkjøring og på parkeringsplass. Kjøper må selv ta hånd om topplag og ytterligere beplantning.
RENHOLD
Boligen blir byggrengjort (iht. ISS sine normer) før ferdigstillelse. Dette er en byggrengjøring der det forekommer avvik fra en husvask.
GENERELL INFORMASJON
Alle PK Hus bygges etter TEK 17.
Toleranser er basert på NS 3420-1 toleranseklasse normal, samt andre relevante Norske Standarder, der ikke annet er spesifisert.
Nødvendige dragere, sjakter og innkassinger kan komme uten at de er vist på plantegning for boligen. Plantegningene må ikke benyttes som målegrunnlag for bestilling av innredning eller møbler. Enkelte illustrasjoner og tegninger kan vise forhold som ikke er med i leveransen, så som møblering, farge- og materialvalg, fasadedetaljer, beplantning etc. Er det avvik mellom leveransebeskrivelse og tegning, gjelder leveransebeskrivelsen foran tegning.
PK Hus forbeholder seg retten til å gjøre mindre, ikke vesentlige endringer i planløsninger, metode og materialvalg, nødvendiggjort av blant annet myndighetskrav, arkitektoniske og tekniske krav.
Det må regnes med innkassing av ventilasjonsføringer, vann- og avløpsledninger og sanitærutstyr. Slik innkassing vil ikke komme frem av skisser og arbeidstegninger.
PK Hus tar forbehold om endelig godkjenning av prosjektet, samt pålegg fra offentlige myndigheter som kan få betydning for prosjektets utforming og fremdrift.
Uttørking av bygg
Uttørking av byggfuktighet gir noe krymp i bygningskroppen. Trebaserte materialer i underlag og plateprodukter vil kunne krympe noe og oppsprekking av plateskjøter og hjørner er en naturlig konsekvens av dette. Dette gir ikke grunnlag for reklamasjon.
Vinduer i nye boliger
Vinduer og glass blir stadig bedre med bedre isolasjonsevne. Bedre isolasjonsevne gir liten varmetilførsel fra rommet til det ytre glasset. Dette gjør at dugg og rim på utvendig glass kan forekomme.
Malerarbeider
Malerarbeider på kartongbelagte gipsplater på vegg og i himlinger utføres med skjøt- og flekksparkling, samt dekkende malerbehandling, der ikke annet er beskrevet. Skjøter i overmalingsprodukt kan bli synlige avhengig av lysforhold og type overmalingsprodukt. Strukturforskjeller i overflater kan forekomme. Utbedring kan utføres med flekkmaling.
Maling på vegger utføres med akryl opp til glans 07, på malte tak glans 02.
Utførelse etter estetisk klasse K3 kan leveres om ønskelig. Pris for dette utarbeides ved forespørsel.
GENERELLE FORBEHOLD
Selger tar forbehold om endelig godkjenning av prosjektet, samt pålegg fra offentlige myndigheter som kan få betydning for prosjektets utforming og fremdrift.
Alle tegninger i prospektet er av illustrativ karakter og endringer vil forekomme.
Illustrasjonene gir ikke eksakt fremstilling av det ferdige prosjektet når det gjelder endelige detaljer av interiør, fasader, materialer og omgivelser. Det tas forbehold om trykkfeil i annonse og prospekt.
Høyder på terreng kan avvike fra skissetegning til ferdig resultat. Det må regnes med tilpasninger av uteområder både når det gjelder høyder og utstrekning.
PRISER / KJØPSBETINGELSER
Avtalt salgspris er fast og vil ikke bli justert etter kontraktsinngåelse. Selger står fritt til når som helst å regulere prisen på usolgt bolig.
Dokumentavgift og tinglysningsgebyrer, kommer i tillegg til salgssummen.
KONTRAKT OG BETALINGSPLAN:
Det blir skrevet kontrakt med Kampestad AS.
10% av kjøpesummen betales ved kontraktsinngåelse. Resterende beløp betales når boligen er klar for innflytting. Omkostninger gjelder dokumentavgift og gebyrer i forbindelse med kjøpet. Fordelen med å kjøpe ny bolig er at du kun betaler dokumentavgift av verdien på tomten, mot hele boligens verdi ved kjøp av brukt bolig.
TILVALGSMULIGHETER
Det vil bli gitt anledning til å gjøre individuelle tilpasninger innenfor gitte tidsfrister mot tillegg i prisen.
Følgende kan endres:
- Parkett
- Innvendige overflater vegg
- Innredning i kjøkken, bad og garderobe
- Fliser
- Elektriske punkter
- Sanitær
- Trapp
- Innvendige dører
PK Hus bygger boligene på Kampestad
PK Hus bygger boliger på Kampestad. Vi har ført opp over 1000 boliger gjennom 30 år. På Kampestad har vi tegnet moderne, innholdsrike boliger som inneholder alt du trenger.
Boligbygging krever mye av mange, fra grunnentreprenør til jobben for murere, tømrere, elektrikere og rørleggere, for å nevne noen. Vi samarbeider med og stiller høye krav til lokale seriøse underleverandører. Som totalentreprenør tar vi ansvaret for alle sammen, for planleggingen, for effektiviteten, for kvaliteten og for sikkerheten. Enkelt sagt, ansvaret for bygging av en trygg og god bolig for deg og dine.
Nyttige lenker
Nærområdet
BYGGMANN - PK Hus AS
Annonsene kan være mangelfulle i forhold til lovpålagt opplysningsplikt. Før bindende avtale inngås oppfordres interessenter til å innhente komplett informasjon fra meglerforetaket, selger eller utleier.







