Bildegalleri

2 moderne halvpart tomannsbolig med innholdsrik planløsning i etablert boligområde på Kornsjø. Fremtidsrettet med solcelleanlegg
Innholdsrike familieboliger med høy standard. 3 soverom, romslig bad, stue/kjøkk
Innholdsrike familieboliger med høy standard. 3 soverom, romslig bad, stue/kjøkken med utsyn og solrik orientering. Peis
Prosjektets status
Planlegging
Ferdig
Salgsstart
Oktober
Byggestart
Første kvartal 2025
Overtakelse
Andre kvartal 2025
Nøkkelinfo
- Boligtype
- Tomannsbolig
- Eieform
- Eier (Selveier)
- Soverom
- 3
- Rom
- 4
- Etasje
- 2
- Antall etasjer
- 2
- Internt bruksareal
- 87 m² (BRA-i)
- Bruksareal
- 153 m²
- Eksternt bruksareal
- 66 m² (BRA-e)
- Balkong/Terrasse
- 31 m² (TBA)
Fasiliteter
Beskrivelse
Kort om eiendommen
Torbjørn Skjelde ved Nordvik Bolig har gleden av å presentere en flott, prosjektert halvpart tomannsbolig beliggende i etablert boligområde på Kornsjø/Halden.
Boligene holder en gjennomgående høy standard på materialer og utstyr. Planløsningene er innholdsrike og godt disponert med tanke på barnefamilier. Her er det gode rom med fleksibel bruk.
1. etasje: Soverom 1, soverom 2, entre/trapp, vaskerom og baderom. Utgang til terrasse på hele 16 kvm.
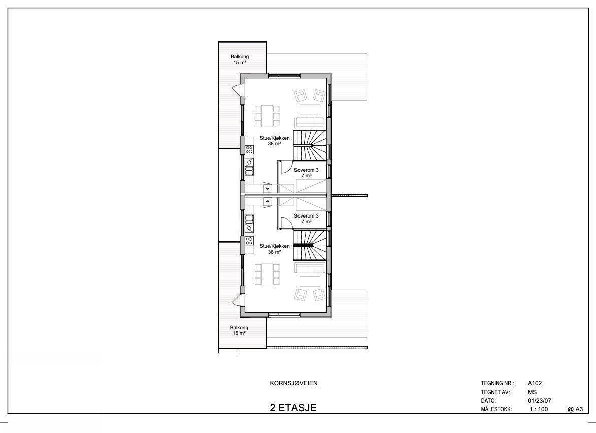
2. etasje: Soverom 3 og stue/kjøkken med utgang til balkong på hele 15 kvm.
Carport med 2 biloppstillingsplasser
Tak kledd i solceller
Høy standard
Enstavs parkettgulv
Peisovn
Innholdsrik planløsning
Solrike balkong og hage
Sørvestvendt orientering
Innhold
1. etasje: Soverom 1, soverom 2, entre/trapp, vaskerom og baderom. Utgang til terrasse på hele 16 kvm.
2. etasje: Soverom 3 og stue/kjøkken med utgang til balkong på hele 15 kvm.
Standard
Attraktiv del av tomannsbolig med arealeffektiv og innholdsrik planløsning. Tomannsboligen er vertikaldelt og består av to like enheter som begge går over to etasjer. Boligen har blant annet baderom og uteplass i hver etasje og rikelig med soverom. Boligen leveres med høy standard på materialet og utstyr og vil ha eksklusiv bruksrett på deler av uteområdet.
Se vedlagt leveransebesrkivelse for detaljert beskrivelse av leveranse på innvendig og utvendig standard.
Kvaliteter
- Hele taket er kledd i solceller
- Store vindusflater
- Blansert ventilasjon
- Flott bad og kjøkken
- Peisovn
- Solrike uteplasser i hver etasje
- Bruksrett til egen del av tomt
- Solrik orientering
- Innholdsrik planløsning
Det er mange fordeler med å kjøpe en ny bolig i forhold til å kjøpe en brukt bolig, og vi nevner spesielt:
- Fast pris (ingen budrunder som gir økning i prisen).
- Ingen byggelånsrenter (nøkkelferdig bolig blir betalt først ved overtagelse av boligen).
- Lav dokumentavgift
- Ingen oppussing i nærmeste framtid.
- Lave kostnader til oppvarming (nye boliger har strengere krav til isolasjon og varmegjenvinning og er meget energieffektive).
- Mulighet til å sette ønsket preg på materialer og utstyr
Solcelleanlegg
Det monteres 2stk separate anlegg slik at hver enhet har sine egne solceller på eget anlegg og batteri. Anlegget er to-veis slik at man kan selge strøm dersom man produserer mer enn man forbruker. Batteriet har en kapasitet på 20kw.
Kjøkken
Flott kjøkken i delvis åpen løsning til stue. Kjøkkenet har rikelig med benk- og skapplass og har i tillegg stor øy med arbeidsplass, skap og sitteplasser. Hvitevarer medfølger ikke soms standard.
Baderom 1
Romslige baderom i tilknytning til entré. Innredning med servantskap/skuff med enkel servant, dusj med dusjdører og vegghengt toalett. Flislagt gulv og vegger. Elektrisk gulvvarme.
Vaskerom
Romslig vaskerom med opplegg for vaskemaskin og tørketromme. Flislagt gulv.
Fliser
På baderom og vaskerom leveres det som standard flis:
Gulv vaskerom /teknisk: Softbeton 30x30 eller 30x60.
Gulv bad, WC og entre: Softbeton 30x30 eller 30x60
Dusjgulv : Softbeton mosaikk 5x5
Velg mellom 3 forskjellige grå fargerLight Grey, Mid Grey eller dark Grey.
Vegger bad: Hvit 30x60. Velg mellom blank eller matt overflate KBL05040/50.
Gulv
Lekkert enstavsparkettgulv fra Boen, modell Pop. Gulvet er behandlet med hardvoksolje.
Beliggenhet
Solrikt, lunt og meget koselig beliggende på en meget fin del av Kornsjø. Det er kort vei til vannet, busstopp (skolebuss) . På Kornsjø er det mange aktiviteter i sommerhalvåret spesielt, både på Norsk og Svensk side. Det kan nevnes loppisbutikk, kiosk og nå snart selvbetjent dagligvareforretning.
Den flotte dampbåten Prøven går faste turer i Kornsjøen samt at man også kan chartre for lukkede selskaper. Kornsjøen i seg selv er en herlig innsjø med idylliske turmuligheter - og en meget populær sjø å padle i. Her er det flere øyer med opparbeidede campplasser med bla. grillplass og toalett m.m. Fiske og badeliv har man rett på nedsiden av plenen.
Det er kun 20 min med bil til byen Ed på svensk side. Her har man butikker, systembolag, en rekke industri og spesialbutikker og jernbanestopp for utenlandstoget fra Norge. Det er under 2 timer til Gøteborg, og ca. 30 min til Halden sentrum.
Området er et naturskjønt område bestående av spredt bolig og fritidsbebyggelse.
Tomt
Tomtens totale størrelse er 663,8 kvm.
Seksjon 1 disponerer 50 kvm som sin hage.
Seksjon 2 disponerer 150 kvm som sin hage.
Resten av tomten er fellesareal.
Parkering
2 biloppstillingsplasser i carport for hver bolig.
Oppvarming
Elektrisk oppvarming med panelovner. Varmekabler på baderom. Peisovn for vedfyring i stue.
Regulerings og arealplaner
Eiendommen er regulert til boligformål. For mer informasjon om reguleringsforhold kontakt megler eller søk på saksnummer/adresse/gnr. bnr på plan- og bygningsetatens hjemmeside.
Ligningsverdi / formuesverdi
Formuesverdien er ikke beregnet. Skatteetaten vil beregne en boligverdi (beregnet markedsverdi for bolig) basert på SSBs statistiske opplysninger om omsatte boliger. Beregningen vil skje i forbindelse med første skattemelding etter overtakelse. I beregningen tas det hensyn til din boligs beliggenhet, areal, byggeår og type bolig. Formuesverdien er en prosentandel av denne boligverdien og vil variere dersom boligen brukes som primær- eller sekundærbolig.
For mer informasjon, se Skatteetatens nettsider.
Ferdigattest / brukstillatelse
Det vil bli utstedt ferdigattest, alternativt midlertidig brukstillatelse på bygningen/ leiligheten før overtagelse. Det er ulovlig å ta boligen/ fritidsboligen i bruk før ferdigattest eller midlertidig brukstillatelse foreligger. Dersom kjøper likevel velger å overta, er det ulovlig å bebo boligen/fritidsboligen eller ta den i bruk (kan flytte inn møbler, men ikke overnatte). Å bebo uten brukstillatelse kan medføre krav om utflytting og eventuelle bøter fra kommune. Ved å velge å overta stopper eventuelle krav om dagbøter fra selger.
Byggemåte
Prefabrikert elementhus i trevirke. Husene produseres av BiciBygg AS.
Plate på mark:
Betonggulvet leveres med avtrukket overflate. Utvendig drenering og markisolasjon er ikke medregnet. Leveransen er regnet fra ferdig avrettet og stabilt underlag.
Idodrenmur:
detaljYttervegger leveres isolert med innvendig gipsplaterBetonggulvet leveres med avtrukket overflate og isolert iht. beregningerLeveransen er beregnet fra ferdig avrettet og stabilt underlag, forutsatt at grunnforholdene ligger til rette for isodrenmur iht. vår detalj. Utvendig drenering, kjellertrapp, kjellervanger og lyskasser/støttemurer er ikke medregnet og bør leveres av grave-/grunn entreprenørForbruker må overflatebehandle garasjegulv og grunnmur.
Stålpipe:
Safety-Vent Air 150mm med innebygget isolert friskluftsystem fra Peisselskabet. Brannmur er ikke medregnet. Plassering kan avvike som følge av bærekonstruksjoner. Stålpipe leveres iht krav i Tek 17. Dersom dere ønsker en annen leverandør av ovn/peis enn Peisselskabet må dette avtales på forhånd.
Utvendige vegger:
Denne beskrivelsen gjelder for standard ferdighus, sammen med kontrakt og tegninger. Spesialløsninger som ikke dekkes av denne beskrivelse, skal fremkomme som vedlegg. Selger forbeholder seg retten til å forandre materialvalg og valg av leverandør, så lenge leveransen blir av samme kvalitet og omfang. Arkitekttegninger utarbeidet er vår eiendom og kan ikke overdras til, eller benyttes av andre. Arbeidstegninger skal ikke endres. Dersom arbeidstegninger endres etter ønske fra kunde, vil dette medføre et gebyr på kr. 15000,-samt påløpte tegnekostnader og kostnader for endringene. Endringer etter oppmeldingsmøte som ikke påvirker arbeidstegningene kan medføre et administrasjonsgebyr på kr. 5000,- pr endringskontrakt. Forandringer er ikke bestilt før signert bilag til kontrakt foreligger. BTK Kun avkryssede poster i avkryssingsfelt blir levert, i tillegg til standardleveranse. Grunnarbeider og Ringmur ( jakom ringmur)må utføres forskriftsmessig og etter kommunens krav.
Yttertak:
Tekket med solcellepanel.
Stigetrinn og snøfangere leveres iht. kommunale vedtekter.
Renner, rennekroker, bordtakbeslag, nedløpsrør og holdere for nedløpsrør leveres i pulverlakkert stål, farge sort.
Grunnarbeider, mur og pussarbeider:
Betonggulvet leveres med avtrukket overflate. Utvendig drenering og markisolasjon er medregnet. Leveransen er regnet fra ferdig avrettet og stabilt underlag
Yttervegger leveres isolert med innvendig gipsplater.
Betonggulvet leveres med avtrukket overflate og isolert iht. beregninger.
Leveransen er beregnet fra ferdig avrettet og stabilt underlag, forutsatt at grunnforholdene ligger til rette for isodrenmur iht. vår detalj. Utvendig drenering.
Radonbrønn:
Plasseres av graveentreprenør. Safety-Vent Air 150mm med innebygget isolert friskluftsystem fra Peisselskabet. Brannmur er medregnet. Plassering kan avvike som følge av bærekonstruksjoner. Stålpipe leveres iht krav i Tek 17. Dersom dere ønsker en annen leverandør av ovn/peis enn Peisselskabet må dette avtales på forhånd.
Adkomst
Adkomst fra Kornsjøveien.
Overtakelse
Overtakelse skjer etter avtale med selger.
Planlagt byggestart er i februar/mars 2025.
Planlagt overtakelse er i juni/juli 2025.
Før boligen overleveres kjøper, skal fullt oppgjør og omkostninger være mottatt på meglers klientkonto.
Hvitvaskingsregelverk
Eiendomsmeglere er underlagt lov om hvitvasking og tilhørende forskrift. Etter hvitvaskingsloven er eiendomsmegler pålagt å gjennomføre kundetiltak av både selger og kjøper.
Hvis kjøper ikke bidrar til at megler får gjennomført kundetiltak, og dette fører til at transaksjonen ikke kan gjennomføres eller blir forsinket, misligholder kjøper avtalen. Etter 30 dager anses misligholdet vesentlig, og selger har rett til å heve avtalen og gjennomføre dekningssalg for kjøpers regning. Dersom det er selger som ikke bidrar til at megler får gjennomført løpende kundetiltak underveis i oppdraget må eiendomsmegler stanse gjennomføringen av transaksjonen. Selger vil i et slikt tilfelle ha misligholdt sine forpliktelser, og kjøper vil kunne ha et krav mot selger etter avhendingsloven.
Hvis kundetiltak ikke lar seg gjennomføre, vil Nordvik Eiendomsmegling ikke kunne bistå med handelen eller foreta oppgjør.
Budgivning
Alle bud skal inngis skriftlig til megler, som formidler disse videre til selger. Kravet til skriftlighet gjelder også budforhøyelser og motbud, aksept eller avslag fra selger.
Bud kan legges inn på eiendommens finn-annonse ved å trykke på knappen «gi bud» eller via vår hjemmeside. Ved elektronisk budgivning legges bud inn ved å benytte BankID. Bud kan også inngis på budskjema vedlagt i salgsoppgaven.
Før megler formidler bud til selger, skal megler innhente gyldig legitimasjon og signatur fra budgiver. Kravet til legitimasjon og signatur er oppfylt for budgivere som benytter e-signatur, eksempelvis BankID eller MinID. Senere bud kan inngis per e-post eller SMS til megler.
Et bud bør inneholde eiendommens adresse (eventuelt gnr/bnr), kjøpesum, budgivers kontaktinformasjon, finansieringsplan, akseptfrist, overtakelsesdato og eventuelle forbehold som for eksempel usikker finansiering, salg av nåværende bolig ol. Normalt vil ikke et bud med forbehold bli akseptert før forbeholdet er avklart. Konferer gjerne med megler før bud avgis.
Megler skal legge til rette for en forsvarlig avvikling av budrunden. I forbrukerforhold (dvs. der selger er forbruker) skal megleren ikke formidle bud med kortere akseptfrist enn kl. 12.00 første virkedag etter siste annonserte visning. Senere bud må ha en tilstrekkelig lang akseptfrist til at megler, så langt det er nødvendig og mulig, kan videreformidle budet og eventuelle forbehold til alle involverte parter og legge til rette for at disse får tid til å områ seg, jf. forskrift om eiendomsmegling § 6-3. Akseptfrist bør derfor være på minimum 30 minutter, og budforhøyelser bør skje senest 10 minutter før fristens utløp. Dersom bud inngis med en frist som åpenbart er for kort til at megleren kan avvikle budrunden på en forsvarlig måte, vil megler fraråde budgiver å stille slik frist. Megleren vil uoppfordret gi sin vurdering av det enkelte bud overfor selgeren, når budet er gitt innenfor akseptfristene ovenfor.
Megler skal så snart som mulig bekrefte skriftlig overfor budgivere at budene deres er mottatt.
Etter at handel har kommet i stand, eller dersom en budrunde avsluttes uten at handel er kommet i stand, kan en budgiver kreve kopi av budjournalen i anonymisert form.
Kopi av budjournal skal gis til kjøper og selger uten ugrunnet opphold etter at handel er kommet i stand. Dersom det er viktig for budgiver å bevare sin anonymitet, bør budet fremmes gjennom fullmektig.
For mer informasjon om budgivningsprosessen, se «Forbrukerinformasjon om budgivning», som er vedlagt salgsoppgaven, eller ta kontakt med megler.
Vedlegg til Salgsoppgaven
Vedleggene er en del av den komplette salgsoppgaven. Det er viktig at interessenter setter seg godt inn i vedleggene og kontakter megler med eventuelle spørsmål før bud inngis.
Ansvarlig megler
Torbjørn Skjelde
Nyttige lenker
Nærområdet
Nordvik Majorstuen
Annonseinformasjon
| FINN-kode | 375642189 |
|---|---|
| Sist endret | 19. okt. 2024 16:25 |
| Referanse | 8-0463/24 |
Annonsene kan være mangelfulle i forhold til lovpålagt opplysningsplikt. Før bindende avtale inngås oppfordres interessenter til å innhente komplett informasjon fra meglerforetaket, selger eller utleier.










