Bildegalleri
EiendomsMegler 1 v/ Silje Solem har gleden av å presentere en lekker 3-roms leilighet i 7. etasje
Innflytningsklar nå! Høyhus på 8 etasjer | P-plass i kjeller | Innredet visni...
3E-0701| ROMSLIG 3-ROMS LEILIGHET I 7. ETASJE! Vestvendt balkong. P-plass i kjeller. Heis. Nært alt.
Prosjektets status
Planlegging
Sommer 2022
Salgsstart
August 2022
Byggestart
1.halvår 2023
Overtakelse
Innflytningsklar!
Nøkkelinfo
- Boligtype
- Leilighet
- Eieform
- Andel
- Soverom
- 2
- Rom
- 3
- Etasje
- 7
- Internt bruksareal
- 75 m² (BRA-i)
- Bruksareal
- 80 m²
- Eksternt bruksareal
- 5 m² (BRA-e)
Fasiliteter
Beskrivelse
Kort om eiendommen
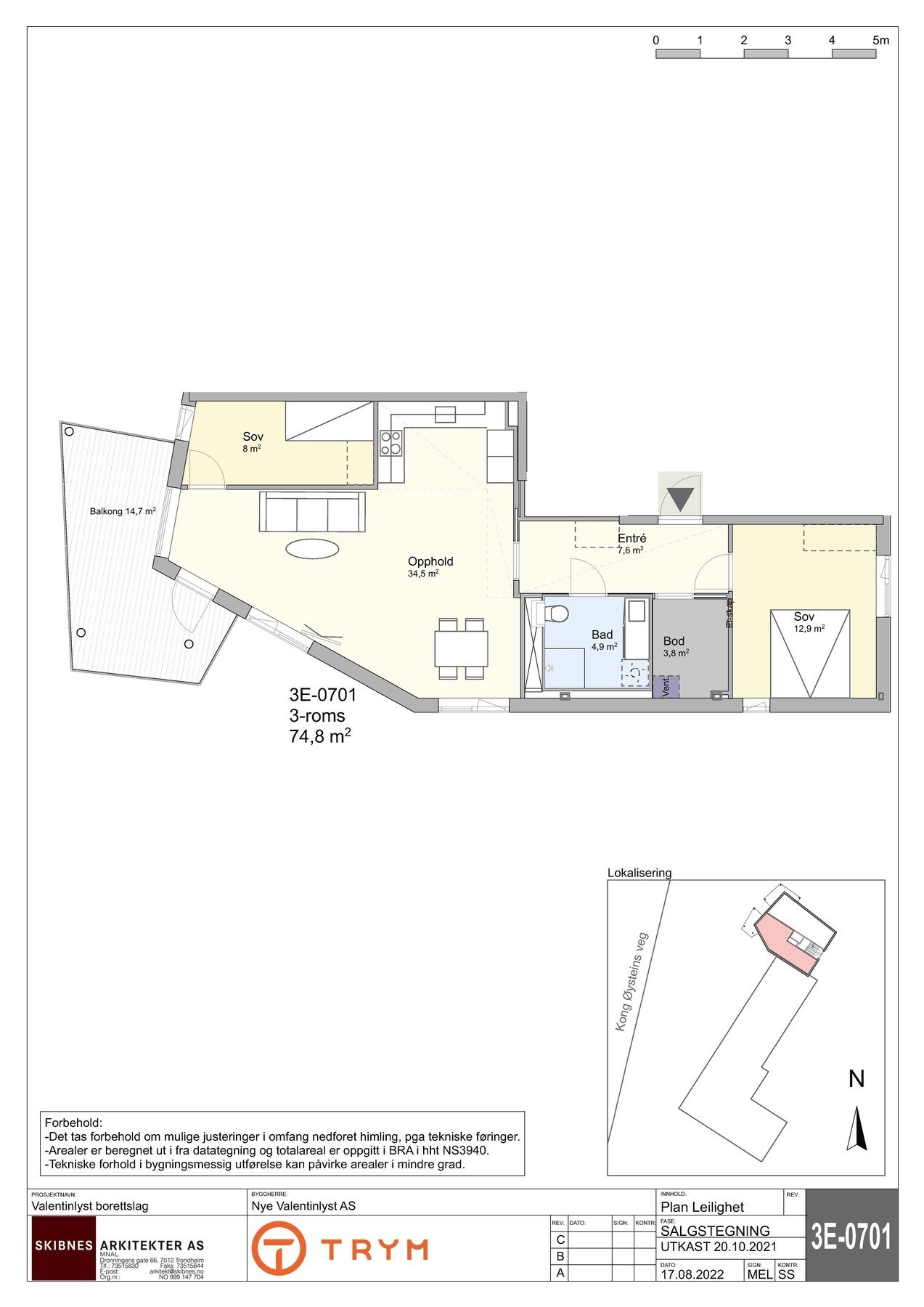
EiendomsMegler 1 v/ Jørgen Viken har gleden av å presentere en lekker 3-roms leilighet i byggets 7. etasje. Leiligheten er på 80,5 kvm og kan blant annet by på en vestvendt balkong, romslig oppholdsrom med skjermet kjøkken fra HTH og 2 soverom av god størrelse.
Kvaliteter verd å merke seg:
- Vestvendt balkong på 14,7 kvm
- Oppgradert bad m/servantskap i grå eik og beige gulv- og veggflis
- Store vindusflater gir godt med naturlig lys i leiligheten
- Innholdsrikt kjøkken fra HTH med fronter i Base mørk sand og integrerte hvitevarer
- Stort hovedsoverom med tilhørende bod/garderobe
- Lukket entrè med praktisk skyvedør
- P-plass medfølger
- Vannbåren gulvvarme
Ta kontakt med megler for visning!
Innhold
7. etasje:
Entré, stue/kjøkken, 2 soverom, bad og bod.
Parkeringsforhold
Det medfølger rett og plikt til leie av parkeringsplass i parkeringskjeller. Det er avsatt plass for sykkelparkering på gatenivå og i kjeller.
Regulering
Eiendommen omfattes av Valentinlyst, detaljregulering
- Reguleringsbestemmelser av 29.04.2020.
Området reguleres til:
Bebyggelse og anlegg:
. Boligbebyggelse (B1-B6)
. Sentrumsformål (BS)
. Barnehage (o_BBH)
. Energianlegg/ Trafo (o_BE1-2)
. Renovasjon (f_BRE1-5 og o_BRE1-2)
. Lekeplass (f_BLK1-4)
. Ballbane (f_BAU)
Det tillates etablert maksimalt 1,1 p-plasser for bil
per boenhet for hele planområdet.
Parkering for boligene skal løses i parkeringskjeller
i f_SPA, som skal være felles for felt B1-B6 og
BS. Det skal etableres parkeringskjeller innenfor
maksimal utstrekning som vist på plankart 2
Parkeringskjeller.Det er avsatt areal til mulig
offentlig barnehage innenfor felt o_BBH i områdets
reguleringsplan. Denne er ikke besluttet
etablert.
Det er søkt om dispensasjon fra Reguleringsplan
r20190021 vedrørende reguleringsbestemmelse
§ 8.2 og rekkefølgekrav §§ 9.1 og 2. Søknaden
gjelder tekniske planer, opparbeidelse av
samferdselstiltak og opparbeidelse av teknisk
infrastruktur.
Kopi av reguleringsplan kan fås utlevert hos
megler. Vi oppfordrer interessenter til å gjøre segkjent
med disse. Prosjektet vil være under utbygging
over en lengere periode og byggeaktivitet må
påregnes.
Ferdigattest
Utbygger plikter å fremskaffe ferdigattest når eiendommen er ferdigstilt.
Beskrivelse (type bolig)
Andelsleilighet
Hvitevarer / tilbehør
Integrerte hvitevarer på kjøkken medfølger leiligheten.
Fellesgjeld og lånebetingelser
Andel fellesgjeld
Gjeld kr 245 967,-
Forkjøpsrett
Andelseier(e) kan kun eie en andel. Andelseier må selv bebo leiligheten. Kun fysiske personer kan eie andel. Stat, kommune, fylkeskommune m.fl. kan likevel eie andel
eller andeler opp til 10% av andelene i borettslaget, der det er fem eller flere andeler. Det kan være fastsatt i vedtektene at stat, kommune, fylkeskommune, boligbyggelag, institusjon eller sammenslutning med samfunnsnyttig formål og
dessuten arbeidsgiver som skal leie ut boligen til sine ansatte, kan eie opp til 20% av andelene i tillegg. Kjøper av andelen må godkjennes av borettslagets styre for at ervervet skal bli gyldig. Kjøper bærer selv risikoen for at godkjenning blir gitt og må videreselge boligen for egen regning og risiko dersom styret ikke godkjenner kjøper som ny andelseier.
Dersom borettslaget er tilknyttet et boligbyggelag, så er det ofte et krav fra boligbyggelagets side at kjøper må melde seg inn i boligbyggelaget før kjøper kan bli godkjent som ny andelseier i det aktuelle borettslaget. Det gjøres i den forbindelse oppmerksom på at det vil kunne påløpe et innmeldingsgebyr til boligbyggelaget, og de fleste boligbyggelagene krever at innmeldingsavgiften skal være innbetalt før godkjenningen blir gitt. Innmeldingsgebyret faktureres kjøper direkte.
Ligningsverdi (formuesverdi)
Formuesverdi fastsettes av skatteetaten etter ferdigstillelse.
Overtakelse
Overtakelse kan ikke finne sted før borettslaget har godkjent ny andelseier eller eventuelt er godkjent etter loven.
Nyttige lenker
Nærområdet
EiendomsMegler 1 Nybygg
Annonseinformasjon
| FINN-kode | 372551302 |
|---|---|
| Sist endret | 08. jan. 2026 10:54 |
| Referanse | 492210363-Single |
Annonsene kan være mangelfulle i forhold til lovpålagt opplysningsplikt. Før bindende avtale inngås oppfordres interessenter til å innhente komplett informasjon fra meglerforetaket, selger eller utleier.




