Bildegalleri

Kaldnes Brygge Sjøparken
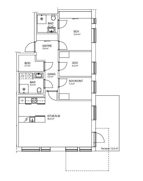
Helt ny, 4-roms hjørneleilighet i 1. etasje ut mot parken med p-plass og ekstra bod. **Båtplass inkludert**
Prosjektets status
Planlegging
2020
Salgsstart
2021
Byggestart
2021
Overtakelse
2024
Nøkkelinfo
- Boligtype
- Leilighet
- Eieform
- Eier (Selveier)
- Soverom
- 3
- Rom
- 4
- Etasje
- 1
- Internt bruksareal
- 94 m² (BRA-i)
- Bruksareal
- 99 m²
- Balkong/Terrasse
- 14 m² (TBA)
Fasiliteter
Beskrivelse
Visning etter avtale, ta kontakt!
**Båtplass 3 x 6 meter i bryggeanlegg på området inkl. ved kjøp**
Ny, ferdigstilt selveierleilighet med flott, sjønær beliggenhet med umiddelbar nærhet til den nye parken og stranden på attraktive Kaldnes Brygge.
Hjørneleilighet i 1. etasje.
P-plass i p-anlegg under bygget er inkl. i pris.
Ekstra bod i tilknytning til p-plass.
Heis fra p-anlegg opp til boligetasjene.
Lave omkostninger ved kjøp da boligen er helt ny og ubebodd!
Boligen får en meget fin planløsning og lys fra to sider.
Boligen holder god standard med bl.a. sydvendt terrasse, 2 pent flislagt bad og pent, lyst kjøkken med integrerte hvitevarer. 1-stavs eikeparkett i alle oppholdsrom. Praktisk innvendig bod. Egen sportsbod i kjeller, pluss ekstra sportsbod ved p-plass.
Vannbåren gulvvarme i alle oppholdsrom. Det gjør det svært enkelt å møblere - du slipper nemlig å ta hensyn til radiatorer eller flytte panelovner før du bestemmer deg for hvor skapet skal stå.
P-plass leveres med mulighet for lading av elbil.
Fleksibel overtagelse. Tilgjengelig for rask overtagelse om ønskelig.
Ta kontakt for avtale om visning!
Nærområdet
Selvaag Bolig AS
Tor André Vedvik
Send meldingAnnonsene kan være mangelfulle i forhold til lovpålagt opplysningsplikt. Før bindende avtale inngås oppfordres interessenter til å innhente komplett informasjon fra meglerforetaket, selger eller utleier.






































