Bildegalleri

Idehus Ålesund har gleden av å presentere denne flotte eneboligen i Hatlane
Enebolig Hatlane Øst
Moderne og lekker enebolig med god planløsning på solrik tomt| Utsikt | Hybel| Terrasse og garasje
Prosjektets status
Planlegging
Pågår
Salgsstart
Vinter 2025
Byggestart
Etter kommunal godkjenning
Overtakelse
Ca 12 mnd etter oppstart
Nøkkelinfo
- Boligtype
- Enebolig
- Eieform
- Eier (Selveier)
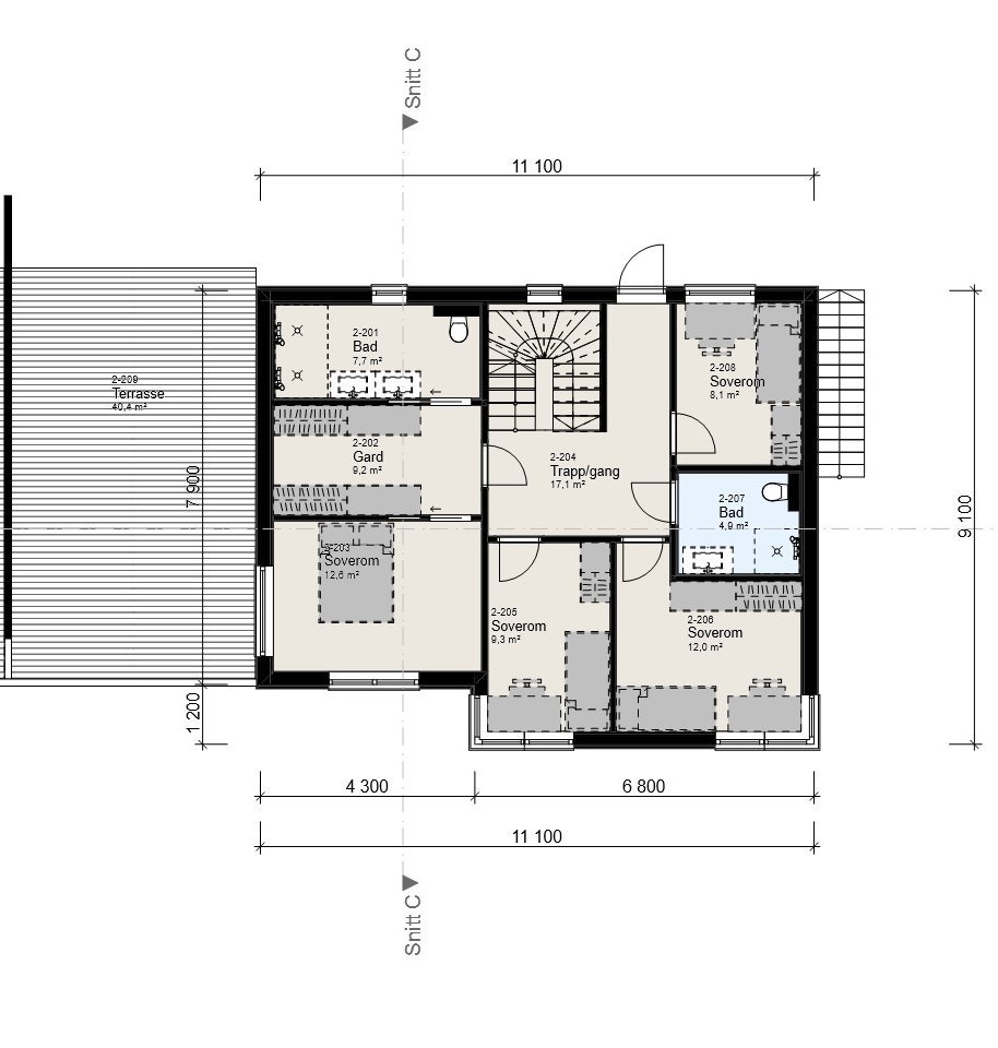
- Soverom
- 5
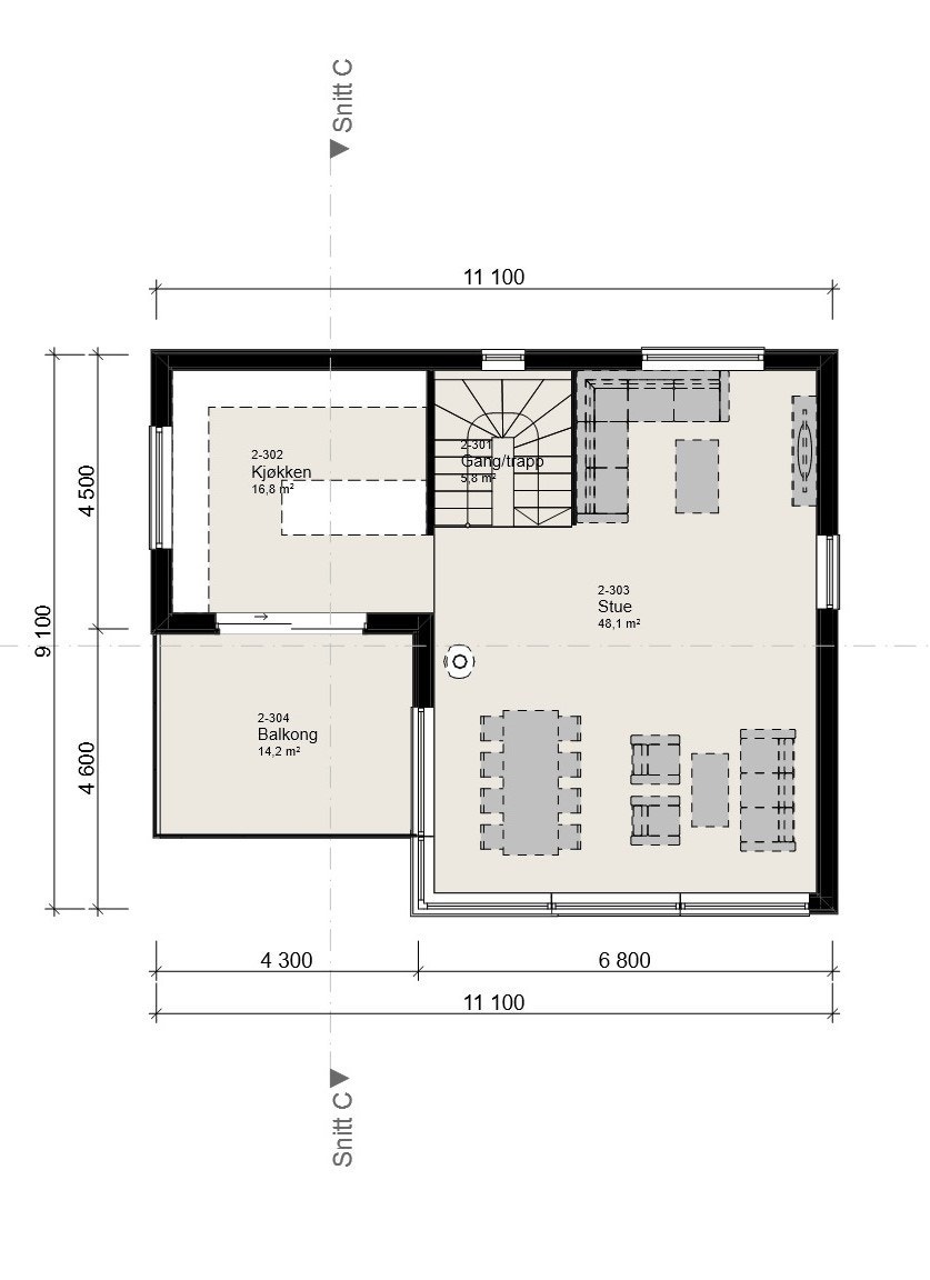
- Antall etasjer
- 3
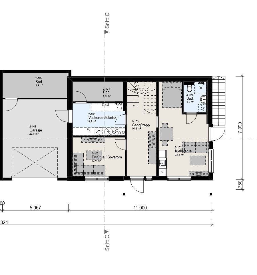
- Internt bruksareal
- 231 m² (BRA-i)
- Bruksareal
- 270 m²
- Balkong/Terrasse
- 55 m² (TBA)
Fasiliteter
Visning
Ta kontakt for å avtale visning.Beskrivelse
BESKRIVELSE
Idehus Ålesund har gleden av å presentere 2 stk flotte og moderne eneboliger med hybel, 5 soverom og fantastisk utsikt.
Flott plassert i Hatlane er det under prosjektering to eneboliger med gode kvaliteter og fantastisk utsikt.
Hybelen kan gi deg en skattefri inntekt! Vi kan også bygge uten hybelen om du ønsker å benytte hele boligen selv. Da kan hybelen feks gjøres om til TV-Stue og soverom.
Eiendommens høydepunkter:
- Fin sørvendt utsikt.
- Hybelen kan gi deg skattefri inntekt!
- Garasje med bod.
- Solrik eiendom
- Gode planløsninger.
- Listefri overgang tak vegg.
- Fliser fra Modena
- God balkong med fantastisk utsikt
- Kjøkken fra Aubo - Optimera
- Parkett/laminat
- Aluminiumskledning på vindu og Møre Royal kledning for minimalt vedlikehold m.m
Boligene er idyllisk plassert med flotte tur- og fritidsmuligheter rett i nærheten. Her kan du nyte den fantastiske utsikten og kveldssolen, og ikke langt fra boligen finner du både Hatlaåsen og Fjordstien som byr på fine turområder.
Ta kontakt om du vil vite mer om prosjektet det er svært stor interesse for.
Nærområdet

Idéhus Ålesund AS
Annonsene kan være mangelfulle i forhold til lovpålagt opplysningsplikt. Før bindende avtale inngås oppfordres interessenter til å innhente komplett informasjon fra meglerforetaket, selger eller utleier.



















