Bildegalleri
3 av 4 boliger solgt!
Drømmeboliger nær Ski sentrum - Takterrasse, 4 soverom, 2 stuer, 2 bad, vaskerom og garasje.
Prosjektets status
Planlegging
08.08.2024
Salgsstart
01.02.2024
Byggestart
20.05.2024
Overtakelse
Etter avtale i løpet av 2025
Nøkkelinfo
- Boligtype
- Tomannsbolig
- Eieform
- Eier (Selveier)
- Soverom
- 4
- Antall etasjer
- 2
- Bruksareal
- 174 m²
- Eksternt bruksareal
- 32 m² (BRA-e)
- Balkong/Terrasse
- 50 m² (TBA)
Fasiliteter
Visning
Ta kontakt for å avtale visning.Beskrivelse
Et hjem med topp kvalitet
Denne boligen i Klokkerudveien i Ski er en sjelden mulighet til å sikre seg et hjem med topp kvalitet og alle fasiliteter man kan ønske seg. Ta kontakt for mer informasjon og visning!
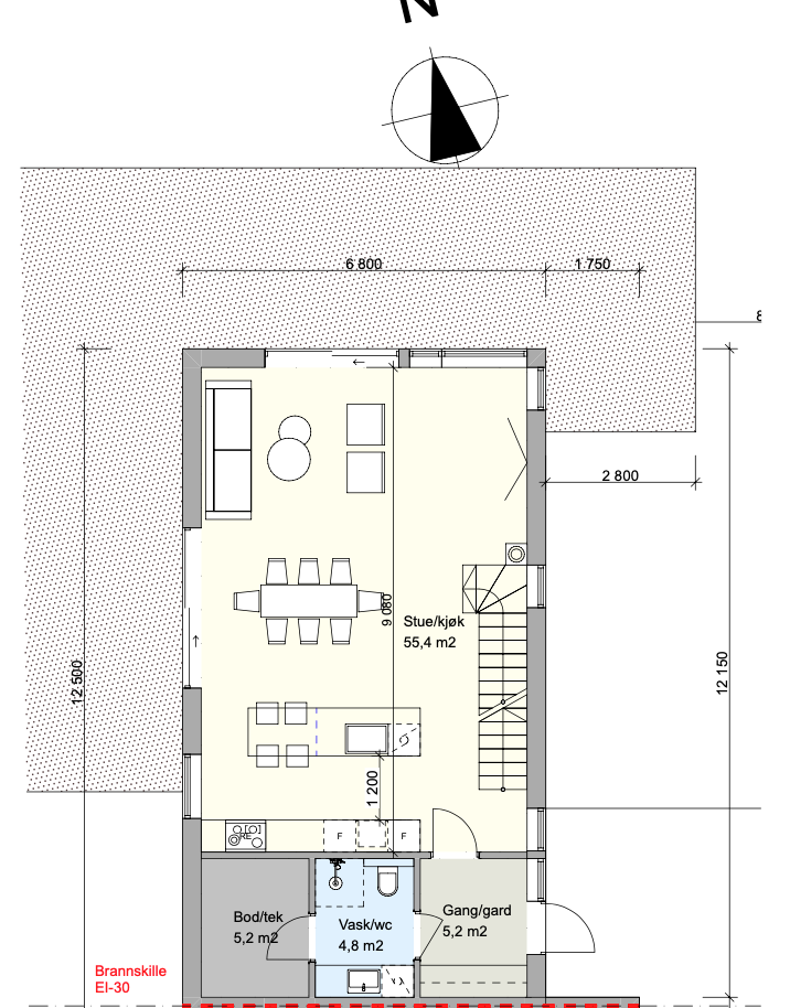
- Åpen løsning mellom stue og kjøkken på ca. 55 kvm, uten upraktiske søyler som står i veien.
- Ståldragere i tak i 2. etg. betyr at innevegger kan flyttes etter ønske fra kjøper.
- "Svevende" balkong uten søyler, som gir et rent og elegant utseende.
- Uteplass på bakkeplan for enkel tilgang til naturen.
- Stor takterrasse - perfekt for sommerdager.
- Store vindus- skyvedørsflater fra gulv til tak på 2,20 m. Levert av Gilje.
- Flere store skyvedører som skaper god kontakt med uteområdet.
- Flott 1-stavs parkett i alle oppholdsrom, med flere valgmuligheter.
- Kjøkken fra Drømmekjøkkenet - må oppleves!
- Elegant peisovn Aduro 9-5 Lux for ekstra kos.
- Garasje og biloppstillingsplasser på tomten.
- Flislagte bad og entre med moderne 60x60 fliser.
- 4 flotte soverom med garderobeskap.
- Romslig loftstue med skyvedør til balkong.
- Varm- og kaldtvann i utekran.
- Automatsikringer og jordfeilbryter for trygghet.
- Balansert ventilasjon med varmegjenvinning.
- Utstrakte muligheter for tilvalg og personlige endringer.
Beskrivelse
Sentralt, men tilbaketrukket i Ski bygges det nå moderne boliger med mange fine og gjennomtenkte kvaliteter. Den aktuelle boligen blir over 2 etasjer med medfølgende garasjeplass, biloppstillingsplass og fine uteplasser med meget gode solforhold. Både husene og garasjene har moderne utforming med flatt tak. Boligen har privat takterrasse på ca. 40 kvm.
Boligen i Klokkerudveien er bygget med kvalitet i tankene og har moderne, stilige interiør. Fra de lyse og romslige stueområdene med åpen kjøkkenløsning, totalt over 55 kvm. til de komfortable soverommene, vil dere føle dere hjemme i disse boligene fra første stund. Denne boligen må oppleves!
Boligen leveres nøkkelferdig. Gjennomgående høy standard med blant annet kjøkken fra Drømmekjøkkenet, flislagte bad med 60x60 fliser, 1-stavs parkettgulv i alle oppholdsrom. Godt med store vindusflater i hele boligen, spesielt i stue og loftstue.
Beliggenheten i barnevennlige Klokkerudveien i Ski er perfekt for familier som ønsker et trygt og rolig nabolag, samtidig som de ønsker nærhet til alt byen har å tilby. Her kan dere nyte rolige kvelder hjemme, eller ta en kort togtur inn til Oslo for å utforske alt hovedstaden har å tilby.
Standard
Leveranser utføres i henhold til gjeldende forskrifter. Teknisk forskrift TEK'17 er gjeldende for dette prosjektet. Der ikke annet fremgår av kontrakt, beskrivelser eller tegninger, gjelder Norsk Standard NS 3420 normalkrav til toleranser for ferdige overflater i bygninger, ref. fellesbestemmelser del 1.
Oppgjør og dokumentbehandling utføres av;
Partners Eiendomsmegling Indre Østfold
v/Elin Westerby
Fagansvarlig / Eiendomsmegler MNEF / Partner
Mobil: 99 42 46 69
Litt om leveransen
Entrè
Gulv med 60 x 60 fliser og med elektriske varmekabler.
Bad/vaskerom
Flislagt bad med gulvvarme, 60 x 60 fliser både på gulv og vegger, mindre hensiktsmessig flisstørrelse i dusjsone. Baderomsinnredninger blir levert av rørlegger via Brødrene Dahl på Langhus. https://www.dahl.no. Endring av leverandør og tilvalg er fult mulig.
I leveransen er det planlagt baderomsinnredning i 90 cm og tilpasset speil på hovedbad i 2. etg. Wc/vaskerom i 1. etg. Leveres 60 cm utslagsvask. Vegghengte toaletter. Opplegg for vaskemaskin i wc/vaskerom i 1. etg. Ett-greps blandebatterier til servanter. Dusjhjørne 90 x 90 cm med innfellbare dører på begge bad.
Det leveres 4 spotter på hvert bad.
Kjøkken
Drømmekjøkkenet kjøkkeninnredning i gjennomgående høy kvalitet og bærekraftige materialer. Se www.drommekjokkenet.no og drøm deg bort. Det monteres opplegg for oppvaskmaskin i kjøkkenbenk.
Stue
1-stavs parkett på gulv og sparklet flater på vegger. Vedovn for varme og hygge. Her er det lagt inn 2 store stålbjelker i etasjeskille for å unngå sjenerende søyler for bæring.
Generelt
Foruten bad og entrè har alle gulver 1-stavs parkett. Opplegg for TV i ett valgfritt rom er inkludert i leveransen.
Terrasse
Balkong i 2.etasje på 11,2 kvm som bæres av blant annet ståldragere, og er dermed svevende med adkomst videre til stor, solrik takterrasse på ca. 4o kvm. Øvrig er det singlet uteplass på bakkeplan med adkomst videre til hageområdet. Som tilvalg kan det bygges platting, legges belegningsstein, settes granitt kantstein, asfalteres osv.
Mulighet for utvidet leveranse tilpasset kjøpers ønsker via tilvalg.
Beliggenhet
Bo landlig men sentralt med under 2 km til Ski stasjon med Follobanen som tar deg til Oslo S på 11 minutter. Med 200 meter til nærmerste busstopp er det effektiv og enkel pendleravstand til hovedstaden eller omkringliggende områder. Nærmeste barnehager ligger innen 500 meter, kort gangavstand også til barneskole (1,2) km. I Ski sentrum har du Storsenter og alt man måtte trenge av butikker og servicetilbud
Garasje og parkering
Boligen får garasje og i tillegg biloppstillingsplass på tomten. Avsatt plass til sykkelparkering.
Nærområdet
Pro Bolig AS
Annonsene kan være mangelfulle i forhold til lovpålagt opplysningsplikt. Før bindende avtale inngås oppfordres interessenter til å innhente komplett informasjon fra meglerforetaket, selger eller utleier.




