Bildegalleri

Illustrasjonsbilde fasade
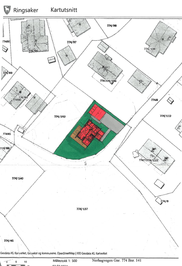
Nerhagvegen
Enebolig med moderne preg i etablert nabolag
Prosjektets status
Planlegging
Byggeklar tomt
Salgsstart
Klart for salg
Byggestart
Etter avtale
Overtakelse
Etter avtale
Nøkkelinfo
- Boligtype
- Enebolig
- Eieform
- Eier (Selveier)
- Soverom
- 3
- Rom
- 4
- Antall etasjer
- 2
- Energimerking
- B
- Internt bruksareal
- 87 m² (BRA-i)
- Bruksareal
- 155 m²
- Eksternt bruksareal
- 5 m² (BRA-e)
Fasiliteter
Visning
Ta kontakt for å avtale visning.Beskrivelse
Tomten
Boligtomtene ligger i etablert boligområde med nærhet til skole og barnehage. Tomtene er sørvendte og solrike.
Kylstad barnehage er en av de nærmeste naboene, og kun 180 m å gå, og Kylstad skole ligger kun 350 m unna.
Til Furnes ungdomskole er det 3 km.
Nærmeste dagligvare ligger i Nydal som er 3,7 km unna. Der finnes også byggevareforretning, bilverksted +++
Til nærmeste busstopp er det 6 min. å gå og ligger i Bjørgedalsvegen. Dit er det 500 m.
Ellers er det 10 min. med bil til sentrum i Brumunddal og 14 min. med bil til sentrum i Hamar.
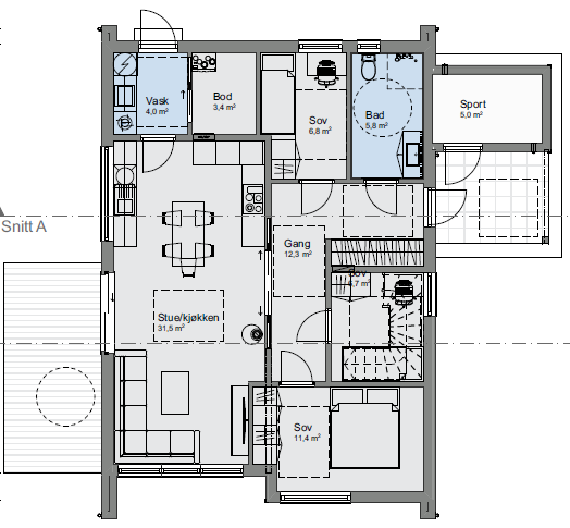
Boligen
Boligen leveres med uinnredet loft. Boligtypen Eidshornet har en nordisk stil som er lett å like. En perfekt blanding av det tradisjonelle og moderne, og det er designet for å passe spesielt godt på smale tomter. Dette er huset som er rett for familien hele livet. Boligen leveres nøkkelferdig i hovedetasjen. 2.etasjen kan gjøres ferdig senere når det er behov for mer plass. Kanskje melder ikke behovet for mer plass seg før barna blir større? Da får de en fin sosial sone med soverom og loftstue i 2.etasje.
Vi kan selvsagt gjøre huset helt ferdig med innredet loft hvis det er ønskelig.
Alle våre boliger leveres isolert med trefiberisolasjon med alle de fordeler det fører med seg. Boligene bygges etter gjeldende forskrift (TEK 17) med materialer og produkter fra anerkjente leverandører.
Det er selvsagt mulig å velge andre boliger fra huskatalogen til VestlandsHus på denne tomten.
Overflater
Gulv:
I hovedetasjen leveres 3-stavs eikeparkett på gulv i stue, kjøkken, bod og alle soverom. I gang leveres det fliser på gulv. På bad og vaskerom leveres det fliser. Sportsbod leveres med ubehandlet betong.
Loftetasjen leveres uinnredet.
Vegger:
I hovedetasjen leveres det malte gipsplater i stue, kjøkken, soverom gang og bod. På vaskerom leveres det malt gips med våtromsmaling. På bad leveres det fliser. Sportsbod leveres ubehandlet.
Loftetasjen leveres uinnredet.
Himling:
Det leveres malte gipsplater i alle himlinger i hovedetasjen.
Loftetasjen leveres uinnredet.
Uteområder:
Veg og gårdsplass leveres med grus/bærelag. Øvrige utearealer leveres grovplanert.
EL og sanitær
Det leveres opplegg og sanitærutstyr i henhold til beskrivelse og tegninger.
Det leveres belysning. Elektriske panelovner i oppholdsrom. Varmekabler i bad, vaskerom og gang. Elektrisk installasjon leveres ferdig tilkoblet nett. Anlegget leveres med skjulte tilførsler og installasjon. Antall lampe-, bryter- og stikkontaktpunkter beregnes etter skjema for nye NEK 400:2022.
Innredninger
Kjøkken, bad og garderobeinnredninger.
Det leveres innredningspakke til en verdi av kr. 120 000.- fra HTH eller Aubo.
Annet
Det leveres balansert ventilasjonsanlegg med roterende varmegjenvinner til boligen.
Boligen leveres med vedovn og stålpipe.
For flere spørsmål vedr. boligen, ta kontakt med:
Frode Ripsrud tlf: 99 53 14 65
Prisen er gitt ut fra SSB`s indeks for november 2024
Boligen forventes å bli energimerket med energikarakter B, og kvalifiserer til GRØNT BOLIGLÅN.
Omkostninger
inkl. i prisantydning
Nærområdet
SMARTE BOLIGER AS
Annonsene kan være mangelfulle i forhold til lovpålagt opplysningsplikt. Før bindende avtale inngås oppfordres interessenter til å innhente komplett informasjon fra meglerforetaket, selger eller utleier.






























