Bildegalleri
EiendomsMegler 1 har gleden av å presentere denne splitter nye og unike toppleiligheten på Lysangen!
Leangen | Selveierleiligheter på attraktive Leangen | Heis & P-kjeller | Innf...
UNIK TOPPLEILIGHET MED PRIVAT TAKTERRASSE PÅ 127 KVM! Oppgradert med høy gjennomgående standard. Treningsrom. P-plass.
Prosjektets status
Planlegging
2022
Salgsstart
Oktober 2023
Byggestart
Sommer 2024
Overtakelse
Innflytningsklart!
Nøkkelinfo
- Boligtype
- Leilighet
- Eieform
- Eier (Selveier)
- Soverom
- 3
- Rom
- 4
- Etasje
- 4
- Antall etasjer
- 4
- Internt bruksareal
- 101 m² (BRA-i)
- Bruksareal
- 106 m²
- Eksternt bruksareal
- 5 m² (BRA-e)
Fasiliteter
Beskrivelse
Kort om eiendommen
EiendomsMegler 1 ved Tara Fagerstad har gleden av å presentere en unik toppleilighet i prosjektet Lysangen! Her bor du helt alene på toppen, og har en privat takterrasse på hele 127,2 kvm med upåklagelige solforhold. Med balkong i tillegg til terrassen har man uteplasser på tre sider av leiligheten.
Visning kan avtales med megler!
Leiligheten kan blant annet by på følgende kvaliteter:
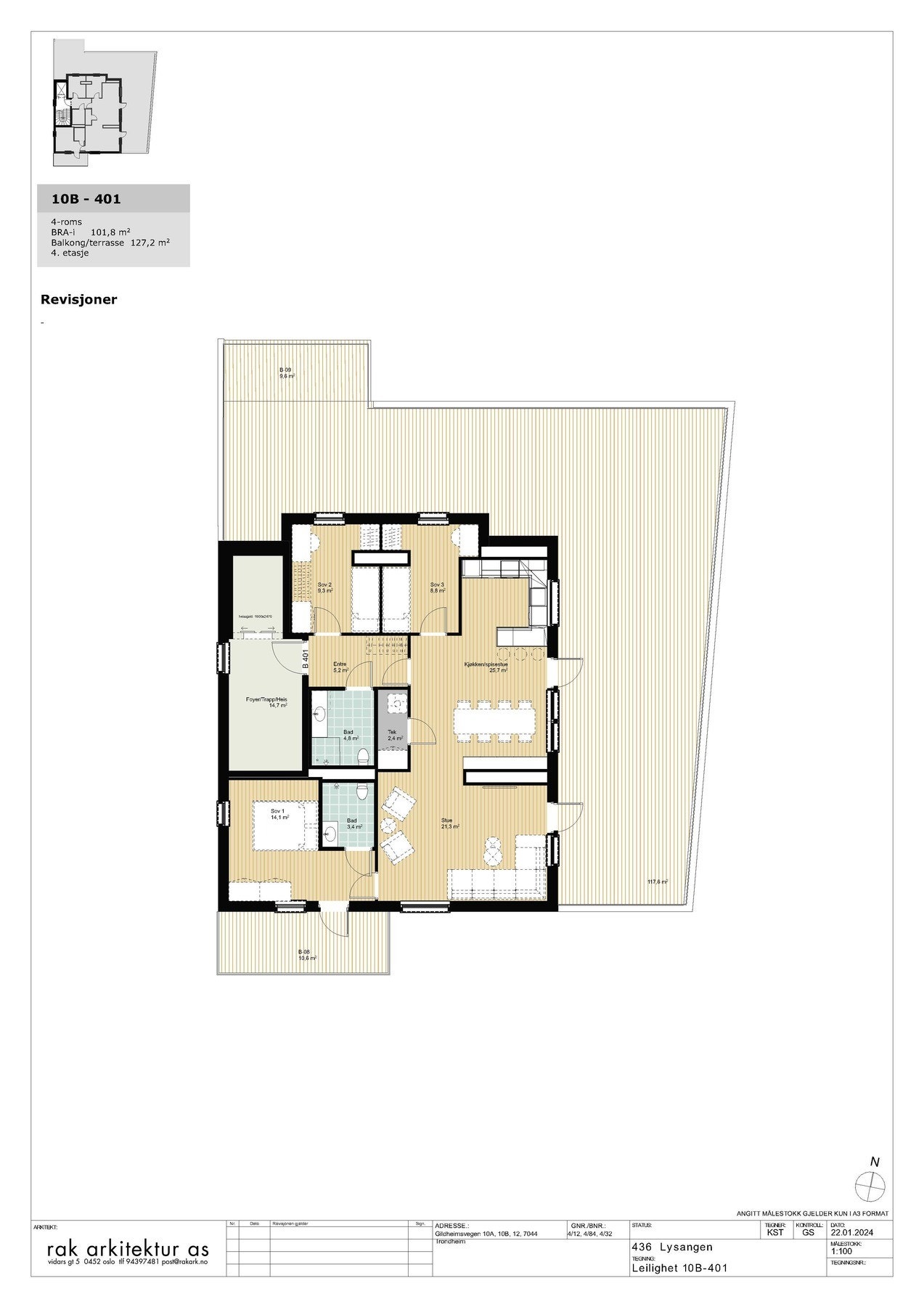
- Unik og innholdsrik toppleilighet med fantastisk takterrasse på hele 127,2 kvm
- Uteplasser på 3 sider av leiligheten
- Gjennomgående høy kvalitet
- Vannbåren gulvvarme
- Store vindusflater fra gulv til tak gir rikelig med naturlig lysinnslipp
- 2 solrike uteplasser på 127 kvm og 10,6 kvm som strekker seg rundt boligen! Sol fra morgen til kveld.
- Oppholdsrommet er naturlig adskilt i to ulike soner
- Hovedsoverom med eget bad og utgang til en egen sørvendt balkong
- Teknisk rom
- Parkeringsplass i oppvarmet p-kjeller
- Bildeling
- Sportsbod i kjeller
- Treningsrom i hus C med tredemølle og vekter
Innhold
4. etasje:
Entre/gang, kjøkken, stue, teknisk rom, 2 bad, 3 soverom.
Takterrasse og balkong.
Ekstern bod i kjeller.
Standard
Leiligheten leveres med høy kvalitet på material og innredning. Kvalitet i alle ledd.
Parkeringsforhold
Det følger med en fast parkeringsplass i oppvarmet parkeringskjeller. Det er mulighet for kjøp av ekstra p-plass. Konf. megler vedrørende det.
I tillegg tilbyr sameiet en bildelingsordning, som gir deg muligheten til å ha tilgang på en ekstra bil ved behov.
Ferdigattest
Utbygger plikter å fremskaffe ferdigattest når eiendommen er ferdigstilt.
Beskrivelse (type bolig)
Selveierleilighet
Hvitevarer / tilbehør
Integrerte hvitevarer på kjøkken medfølger leiligheten.
Ligningsverdi (formuesverdi)
Formuesverdi fastsettes av skatteetaten etter ferdigstillelse.
Overtakelse
Leiligheten er innflytningsklar.
Nyttige lenker
Nærområdet
EiendomsMegler 1 Nybygg
Annonseinformasjon
| FINN-kode | 354243115 |
|---|---|
| Sist endret | 27. aug. 2025 06:41 |
| Referanse | 492310999-Single |
Annonsene kan være mangelfulle i forhold til lovpålagt opplysningsplikt. Før bindende avtale inngås oppfordres interessenter til å innhente komplett informasjon fra meglerforetaket, selger eller utleier.




