Bildegalleri

Lekker og moderne! Vedlikeholdsvennlig fasade med NORD kledning og antrasittgrå vinduer
Enebolig Balahaugen
Lekker og moderne enebolig på Balahaugen - Nydelig utsikt - Carport - 4 soverom - 2 bad - 2 stuer - Stort vaskerom
Prosjektets status
Planlegging
Gjennomført
Salgsstart
Salget er i gang
Byggestart
Etter signert kontrakt
Overtakelse
Etter nærmere avtale
Nøkkelinfo
- Boligtype
- Enebolig
- Eieform
- Eier (Selveier)
- Soverom
- 4
- Antall etasjer
- 2
- Bruksareal
- 238 m²
Fasiliteter
Beskrivelse
Velkommen til Balahaugen 75
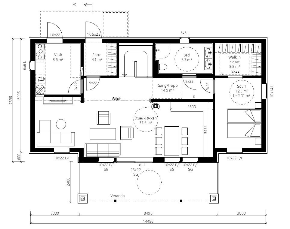
På Balahaugen i Sandeid skal det bygges en ny, moderne og lekker enebolig over to plan. Nydelig utsikt, vedlikeholdvennlig fasade, overbygget terrasse med glassrekkverk, 4 soverom, 2 bad og åpen stue- og kjøkkenløsning er noen av kvalitetene du kan se frem til her. Eneboligen har en fin og praktisk planløsning med livsløpsstandard på hovedplanet så her er det ingen problem å bo til du blir gammel og grå!
Nøkkelkvaliteter ved boligen
- Kvalitetskjøkken fra HTH Kjøkken
- Helsparklede vegger med listefri løsning til tak og rundt vinduer
- Baderomsplater på bad
- Fliser på gulv, både på baderom og vaskerom
- Pergo laminat på resterende gulv
- Stor, tett terrasse med glass-rekkverk
- Vedlikeholdsvennlig NORD-kledning fra Bergene Holm og antrasittgrå vinduer
- Mulighet for å gjøre endringer av materialvalg slik at boligen blir tilpasset etter dine behov og preferanser
Beskrivelse av boligen
Hovedplan
Du har 2 innganger til huset i hovedetasjen, en via vaskerom og en via entre. Vaskerommet er romslig med plass til mye oppbevaring, og gjør det enkelt for både vasking og tørking av klær. Videre kommer du inn i åpen stue- og kjøkkenløsning med store vindusflater som slipper inn rikelig med dagslys. Du har også utgang til overbygget terrasse med glassrekkverk hvor du kan nyte solen hele dagen til fantastisk utsikt over Sandeidfjorden.
På hovedplanet har du også et bad og et stort soverom med tilhørende walk-in garderobe.
Underetasje
Fra trappen ned til underetasjen kommer du rett ned i kjellerstua med store vindusflater som gjør den luftig og fin. Du har også utgang til overbygget platting og resten av hagen. 3 store soverom, 1 bad og 2 boder finner du også her i underetasjen.
Utvendig
Utvendig har du en carport med tilhørende bod. Innkjørsel leveres ferdig asfaltert. Plen leveres med lokale masser (må bearbeides i etterkant etter eget behov)
Om Balahaugen
- Nydelig utsikt over Sandeidfjorden
- Variert bosetting med mange hyggelige folk i ulike aldrer.
- Sentralt i Sandeid med gåavstand til det meste
- God og sikker gang- og sykkelvei til sentrum og resten av bygda
- Kort vei til barnehage, skole, idrettsanlegg og bygdahuset
- Solrikt
Nyttige lenker
Nærområdet
TG Bygg AS
Annonsene kan være mangelfulle i forhold til lovpålagt opplysningsplikt. Før bindende avtale inngås oppfordres interessenter til å innhente komplett informasjon fra meglerforetaket, selger eller utleier.









