Bildegalleri
Manger- Moderne einebustad med alt på eit plan, inkludert garasje.
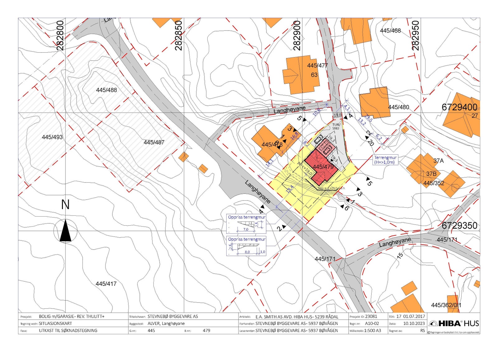
Endetomt med flott beliggenhet og gode solforhold. Husbankfinansiering mogleg!
Prosjektets status
Planlegging
Byggestart våren 2025
Salgsstart
01.08.2025
Byggestart
Våren 2025
Overtakelse
Høst 2025
Nøkkelinfo
- Boligtype
- Enebolig
- Eieform
- Eier (Selveier)
- Soverom
- 3
- Antall etasjer
- 1
- Bruksareal
- 101 m²
Fasiliteter
Visning
Ta kontakt for å avtale visning.Beskrivelse
Einebustaden har en moderne utforming, med store vinduer, glatte overflater og gode lysforhold. Den praktiske planløsningen, med alt samla på eit plan, passar godt for heile familien. Her har de open stue/kjøkken-løysning, 3 soverom, samt inngang til garasje gjennom vaskerommet.
Det er også moglegheit for å gjere eigne tilpassingar og fargeval.
Einebustaden ligg i eit godt etablert byggefelt. Tomta er plassert i enden av feltet, skjerma frå gjennomgangstrafikk og innsyn frå naboar.
Her kan man busette seg i landlege omgivelser, med flott utsikt over nærområdet og veldig gode solforhold.
Det er gangavstand til skole, barnehage, fritidstilbod og butikkar på Manger. Flotte turområder finnes i umiddelbar nærheit, og det er en kort kjøretur på ca. 25 minuttar til Knarvik. Bergen når du på ca. 50 min.
Bustaden oppfyller krava for husbankfinansiering.
- Moderne utforming og praktisk planløysing med alt på eit plan
- Landlege omgivelser med flott utsikt til nærområdet
- Veldig gode solforhold på tomten, sol frå morgon til kveld
- Endetomt utan gjennomgangstrafikk
- 5-10 minutts gangavstand til barnehage, barneskole, ungdomsskule, samt fotballbane, svømmehall, bibliotek og butikkar)
- Ca. 25 min med bil til Knarvik og ca. 50 min til Bergen
- Kort veg til turområder
- Moglegheit for husbankfinansiering
Nærområdet
Bygger´n Stevnebø
Håvard Stevnebø
Annonsene kan være mangelfulle i forhold til lovpålagt opplysningsplikt. Før bindende avtale inngås oppfordres interessenter til å innhente komplett informasjon fra meglerforetaket, selger eller utleier.





