Bildegalleri
01 Eksterior mast copy
Linjevegen 14 B
Lekker og nyoppført funkisbolig fra 2025 - Takterrasse på 47 kvm - Dobbeltgarasje - Mulighet for praktikantdel
Prosjektets status
Planlegging
-
Salgsstart
-
Byggestart
-
Overtakelse
-
Nøkkelinfo
- Boligtype
- Tomannsbolig
- Eieform
- Eier (Selveier)
- Soverom
- 4
- Internt bruksareal
- 246 m² (BRA-i)
- Bruksareal
- 246 m²
- Balkong/Terrasse
- 60 m² (TBA)
Fasiliteter
Visning
Beskrivelse
Oppdragsnummer
121-23-0150
Eiendomstype
Selveier
Eierform
Halvpart tomannsbolig
Betegnelse
Gnr. 142 Bnr. 84 Snr. 2 i Ullensaker kommune
Tomtetype/areal
Eiet tomt / 955 kvm
Velkommen til Linjevegen 14 B!
Privatmegleren Brustad & Partnere har gleden av å presentere Linjevegen 14 B! En lekker og nyoppført halvpart av tomannsbolig i funkisstil med høy kvalitet og moderne standard.
Boligen ble ferdigstilt 03.06.2025 og er klar til overtagelse!
Eiendommen ligger i et attraktivt boligområde på Jessheim/ Nordbymoen, med kort vei til sentrum av Jessheim. Tomten ligger fint til med både fine utsiktsforhold og solforhold. Området har gangavstand til skoler, barnehager, offentlig kommunikasjon, samt et rikt utvalg av fasiliteter og servicetilbud.
Boligen har en svært moderne arkitektur med gode lysforhold, store vindusflater og åpne løsninger. Bygd etter TEK 17!
På toppen av boligen troner det en flott takterrasse på ca. 47 kvm!
Boligen har høy kvalitet og moderne standard. Her kan det nevnes 1-stavs mattlakkert hvitpigmentert eikeparkett i alle oppholdsrom. Hall og to av badene har moderne fliser av type Glade Cinca Mate 30x60/ Glade Branco Mate 30x60 fra Fagflis Kløfta.
Planløsningen er meget praktisk og sosial med blant annet en romslig stue med gode vindusflater og moderne peisovn. Åpen løsning fra stuen til et lekkert kjøkken. Boligen har totalt 4 gode soverom. Hovedsoverommet er i suiteløsning med eget bad og mulighet for stor walk-in garderobe. I første etasje føres man inn i en romslig hall med flislagt gulv og gulvvarme, samt god plass til garderobeløsning. Boligen har totalt tre delikate bad og et praktisk vaskerom med direkte utgang til den integrerte dobbelgarasjen. Hyggelig loftstue sørger for god soneinndeling. Ekstra stue i 1. etasje. I boligens 1.etasje vil man ved enkle grep kunne innrede en egen praktikantdel.
Eiendommen er seksjonert med eksklusivt uteareal til hver av enhetene. Parkering/innkjørsel er være fellesområde. Tomten har ferdigplen og asfaltert oppkjørsel.
Det medfølger stor integrert dobbeltgarasje på 35,6 kvm BRA med mulighet for El-bil lader, samt plass til sykler innerst.
Hvorfor kjøpe nytt?
- Boligen er i forskriftsmessig stand med 5 års reklamasjonsfrist fra ferdigstillelse.
- Det er svært lite vedlikeholdskostnader i nær framtid.
- Du har god tid til å forberede flyttingen og eventuelt salg av egen bolig.
- Mulighet for å sette personlige preg på boligen ved tilvalg og endring av planløsning.
- Lave omkostninger da dokumentavgiften kun er av tomteverdi.
Kort fortalt
- Boligen er beliggende i et attraktivt og veletablert boligområde på Jessheim med umiddelbar nærhet til sentrum.
- Bygd etter TEK 17
- Høy kvalitet og moderne standard.
- Stor takterrasse på 47 kvm.
- Mulighet for praktikantdel.
- Totalt 3 smakfulle bad og et praktisk vaskerom med direkte utgang til integrert dobbeltgarasje.
- Totalt 4 gode soverom. Hovedsoverommet er i suiteløsning med eget bad og mulighet for walk-in garderobe.
- Varmekabler lagt på alle flislagte flater.
- Systemair/Flexit balansert ventilasjonsanlegg med varmeveksler.
- 120 stk. elektriske punkter, plassert etter egen beskrivelse inkludert sikringsskap med automatsikringer
Beliggenhet
Boligen har en god beliggenhet på Nordbymoen ca. 2,0 km utenfor Jessheim sentrum. Området består hovedsakelig av villa og småhusbebyggelse. Sentral og populær beliggenhet med gangavstand til barneskole og barnehager samt kort avstand til Jessheim sentrum med alle fasiliteter og off. kommunikasjon. Det er kort avstand til rekreasjonsområder/turterreng både sommer og vinter.
Dagligvarehandelen kan enkelt gjøres via nærbutikken Joker, åpen 7 dager i uken (900 m) eller via Rema 1000 Gystadparken (2,1 km) og Coop Extra Jessheim (1,6 km). Ønsker du ytterligere servicetilbud ligger boligen nært Jessheim Storsenter som er et moderne kjøpesenter med 145 butikker & serveringssteder - midt i hjertet av Jessheim by. Senteret er øvre Romerikes største motehus med en mengde små og store kjedebutikker samt flere spennende nisjebutikker.
Det er et godt utviklet kollektivtilbud i området. Den nærmeste bussholdeplassen heter Nordby stasjon og ligger 350 m fra boligen. Nordby togstasjon ligger kun 210 meter fra boligen, og herfra går det tog mot Oslo med 2 avganger i timen.
Boligen sokner til Jessheim Skole og ressurssenter 1,2 km og Nordby ungdomsskole 1,2 km. Det finnes også en privat ungdomsskole i nærheten. Det er gangvei til begge skolene. Den nærmeste barnehagen heter Nordby barnehage (280 m). Det finnes flere barnehager i nærområdet.
Nordbytjernet ligger en kort gåtur fra boligen og er et av de flotteste friluftsområdene i Ullensaker. Nordbytjernet har flott badeplass med strand, volleyballbane, bade- og fiskebrygge. Fra tjernet går det løyper i skogområdet Vestmoen og videre til Olaløkka på Sand og Ringbanen på Gardermoen.
Gardermoen ca. 9 min. Lillestrøm ca. 28 min. Strømmen ca. 28 min. Oslo S. ca. 40 min.
Arealer og fordeling per etasje
Primærrom: 207 kvm, Bruksareal: 246 kvm, BRA-i: 246 kvm , TBA: 60 kvm
1.Etasje:
BRA-i (110 kvm): Hall, stue, bad, vaskerom og 1 soverom. Garasje og bod
2.Etasje:
BRA-i (110 kvm): Stue/kjøkken, gang, 2 bad, 2 soverom og 2 omkledningsrom.
TBA: 13,0kvm
Loftetasje:
BRA-i (25,1 kvm): Loftstue og 1 soverom.
Deler av loftetasje er ikke medregnet som BRA og BRA-i grunnet lav takhøyde. Gulvareal er på ca. ALH: 37,4kvm
TBA: 46,5kvm
ALH: 37,4kvm
Takterrasse:
TBA: 46,5 kvm.
Beskrivelse
Entré / Hall
Boligen har inngang på siden av huset. Romslig og innbydende entré/hall gir et meget godt førsteinntrykk. Delikate fliser på gulv av typen Glade Cinca Mate 30x60 cm e.l. fra Fagflis Kløfta, med elektriske varmekabler. Veggflatene er sparklet og malt med gipsplater i fargen Jotun 9918 Klassisk Hvit. Rommet har meget god plass for garderobeløsning, og gir rask tilgang til alle rom i etasjen samt trapp opp til øvrige plan.
Kjøkken
Lekkert og moderne fra fra kvalitetsprodusent. Kjøkkenet er romslig og innbydende, med god plass til stort spisebord. Her ligger alt til rette for hyggelige stunder og gode måltider. Det er rikelig med innredning og godt med skap- og benkeplass.
Videre er kjøkkenet utstyrt med kjøkkenarmatur med avstegning fra Oras Safira, kjøkkenkum av typen Blancodalago 6 pd i antrasitt, laminat benkeplate og opplegg for oppvaskmaskin med Waterguard-føler. Gulvet er belagt med 1-stavs mattlakkert hvitpigmentert eikeparkett. Vegger er malt i klassisk hvit.
Stue
Boligen har tre flotte stuer - én i hver etasje - noe som gir en funksjonell og fleksibel planløsning, perfekt for familier.
Romslig stue i 1. etasje med god plass til sofagruppe og TV-løsning. Det er direkte utgang til utearealer fra stuen. Gulvet er belagt med 1-stavs mattlakkert hvitpigmentert eikeparkett, og vegger er malt i Jotun 9918 Klassisk Hvit.
Hovedstuen i andre etasje oppleves som et lyst og sosialt rom, med god plass for møblering. Stuen har en lekker peisovn av typen Sirius 1 med stålpipe fra Schiedel eller tilsvarende, som skaper en lun atmosfære. Gulvet er belagt med samme type parkett som i resten av boligen, og veggene er malt i klassisk hvit.
I loftsetasjen er det en koselig loftstue med god plass til sofagruppe og TV-løsning, med samme parkett og fargevalg som resten av oppholdsrommene.
Terrasse
Fra loftetasjen er det utgang til en stor og innbydende takterrasse på hele 46,7 kvm. Her er det god plass for både avslapning og sosiale sammenkomster. Terrassen har impregnert furugulv og moderne glassrekkverk i henhold til fasadetegninger. Den har et takutspring med ca. 1,90 meter høyde på det laveste punktet.
I tillegg er det en flott terrasse på 13 kvm med utgang fra stuen i 2. etasje.
Bad
Boligen har tre flotte bad som gir høy komfort og fleksibilitet for både familier og par.
Bad 1 - 1. etasje:
Lyst og delikat bad tilknyttet entré og stue. Flislagt med Antica 20x20 cm fliser på gulv og Vitra Block 25x40 cm på vegger. Varmekabler i gulv. Utstyrt med innsvingbare dusjvegger (90x90 cm), baderomsinnredning av typen Hilde fra Linn Bad (100 cm, hvit høyglans), vegghengt toalett fra Porsgrund Pro med softlock og krom trykkplate, Oras Oramix dusjarmatur med Apollo dusjgarnityr, servantarmatur fra Oras Safira, samt opplegg for vaskemaskin.
Bad 2 - Hovedbad, 2. etasje:
Eksklusivt bad tilknyttet hovedsoverom. Fliser i Glade Cinca Mate 30x60 cm fra Fagflis Kløfta på gulv og vegger, samt mosaikk i dusjsone (5x5 cm). Innsvingbare dusjvegger (100x100 cm). Innredet med Hilde baderomsinnredning (120 cm, hvit høyglans), vegghengt toalett, to sluk, samt armaturer fra Oras.
Bad 3 - 2. etasje, soveromsfløy:
Flislagt med Glade Branco Mate 30x60 cm fliser og mosaikk i dusjsone. Dusjvegger på 90x90 cm. Baderomsinnredning fra Linn Bad (100 cm, hvit høyglans), vegghengt toalett, dusj- og servantarmaturer fra Oras.
Vaskerom / WC / Teknisk
Vaskerommet ligger praktisk til ved hallen. Gulvet er flislagt med Antica 20x20 cm fra Fagflis Kløfta, og har elektriske varmekabler. Veggene er malt. Badet består av vegghengt toalett fra Porsgrund Pro, vaskekum i stål, opplegg til oppvaskmaskin, vannfordelerskap, reduksjonsventil, vannstoppsystem og 300 liters varmtvannsbereder med ekspansjonskar.
Soverom
Boligen har fire store og romslige soverom - ett i hver etasje, hvorav to i andre etasje. Alle soverommene har plass til dobbeltseng med nattbord på hver side. Gulvene er belagt med 1-stavs mattlakkert hvitpigmentert eikeparkett, og vegger er malt i Jotun 9918 Klassisk Hvit. Det er avsatt plass til én meter garderobe per inntegnet sengeplass. Garderobeskap medfølger ikke.
Teknisk
Oppvarming og Ildsted
Det leveres varmekabler på alle flislagte gulvflater. Det leveres peisovn av type Sirius 1 m/stålpipe fra Schiedel i stue i 2. etg. På soverom leveres det panelovn eller gulvvarme som tilvalg.
Ventilasjonsanlegg
Systemair/Flexit balansert ventilasjonsanlegg med varmeveksler. Tilluft i alle oppholdsrom og utluft fra alle våtrom. Aggregat til ventilasjonsanlegget plasseres iht. tegning.
Elektrisk anlegg
120 stk. elektriske punkter, plasseres etter egen beskrivelse inkludert sikringsskap med automatsikringer
3 brannvarslere
Komfyrvakt
1 stk SG 10W LED i omkledningsrom.
2 stk SG Wave LED armatur i garasje, 1 på vaskerom og 1 på teknisk
Opplegg for multimedia 3 punkter, ringeklokke og 3 utestikk.
Kunde bestemmer selv plassering av punkter i møte med elektriker før oppstart.
Innvendig er det medregnet 34 stk. downlights i farge hvit m/dimmere.
Utvendig er det beregnet 5 stk utelys av typen SG Echo LED, med astrofunksjon
Rør til fremtidig elbillader legges frem i garasje
Anlegget installeres i henhold til offentlige myndigheters forskriftskrav. Alle kontaktpunkter er jordet.
Det leveres i standard Elko Pluss.
Pullerter som vist i illustrasjonen medfølger ikke. Men kan kjøpes som tilvalg
Fortrinnsvis benyttes skjult anlegg og det benyttes kun automatsikringer. Antall elektriske punkter i boligen er i henhold til NEK 400-2018.
Varmekabler blir lagt på alle flislagte flater.
Sanitær
Det monteres ettgreps blandebatterier på bad og kjøkken. Opplegg for oppvaskmaskin i kjøkkenbenk med waterguard føler. Opplegg for vaskemaskin på vaskerom, som anvist på tegning. Det leveres vegghengt toalett på bad/wc, Villeroy & Bosch Onovo, med softlock og krom trykkplate. Vann og opplegg føres frem i vegg ved mulig praktikantandel Tekniske rørføringer samles i et rør-i-rørskap som plasseres på teknisk- og vaskerom. Varmtvann leveres fra varmtvannsbereder plassert på vaskerom/teknisk rom, volum på 300 liter med ekspansjonskar. Utevann på yttervegg
TV/Data:
Det tilrettelegges for fiber om dette lar seg gjøre. 3 stk tv/antenne punkter, en i hver stue.
Tegninger av tekniske anlegg:
Tekniske anlegg og fremføring til disse blir ikke inntegnet på tegninger som omfattes av kjøpekontrakt. Endelig plassering av disse bestemmes av hva som er hensiktsmessig og nødvendig.
Slukkerutstyr:
Brannslukningsutstyr leveres i henhold til forskrifter.
Byggemåte
Toleransekrav for utførelse er ihht. NS 3420, siste revisjon. Boligene bygges etter TEK 17.
Konstruksjoner
Boligen bygges iht. energikravene i TEK 17. Utvendig leveres huset med liggende panel som er maskingrunnet 683 Sotgrå ett strøk fra fabrikk. Yttervegger leveres med isolasjonstykkelse på 20 cm. hvor det benyttes Glava som isolasjon samt utvendig gipsplate på ytterside for avstivning og vindtetting. Huset trykktestes i byggeperioden av uavhengig kontrollør for å sikre best mulig tetthet og kvalitet. Takrenner og vindusbeslag i sort metall.
Takhøyde 1. etg.: ca 2,40 meter
Takhøyde 2. etg.: ca 2,40 meter
Takhøyde loftsetg.: ca 2,40 meter høyde i midten, og skrånende tak ut mot knevegg på 1,20 m.
Terrasse vil ha et takutspring, der høyde vil være ca 2,0 meter på det laveste.
Tak leveres med takstein/panner.
Vinduer og dører
Vinduer fra norsk vindusleverandør (Lyssand-Frekhaug eller lignende) ihht. TEK17. Vinduene leveres gråmalte fra fabrikk, RAL7016. Noen vinduer har fastkarm. Åpningsbare vinduer leveres med låsing i luftestilling. Vinduene leveres med foring og karm. Innvendige dører av type IDA Kompakt, fra Bygg1, med karm og dempelist. Dørene leveres behandlet fra fabrikk. Glatte gerikter leveres malt med synlige spikerhull. Dørvridere leveres i stål utførelse.
Trapp innvendig i bolig
Det leveres innvendig trapp, Modell Salvi e.l. RAV Hvit med med malte trinn i eikeutførelse, med åpne trinn fra 1-3.etg. Leverandør er Trapperingen-Tretrapp AS.
Ytterdør
Ytterdør fra Bygg1 leveres i gråmalt(RAL7016) utførelse fra fabrikk, type Sola. Dørvrider i børstet stål. FG godkjent sikkerhetslås leveres.
Trådløs ringeklokke vil bli levert.
Balkongdør leveres med FG-godkjente låser.
Terrassedør på loftstue i 3.etg, leveres i glass
Terrasse
Terrasse i 2. og 3.etg leveres med gulv i impregnert furu. Terrassen leveres med glassrekkverk ihht fasadetegninger. Terrasse i 3.etg vil ha et takutspring, der høyde vil være ca 1.90 meter på det laveste.
Overflater oppholdsrom (stue, soverom, kjøkken, boder)
Alle innvendige gulv i tørre rom leveres det som standard et slitesterkt parkettgulv i oppholdsrom, Boen Eik Andante mattlakkert hvitpigmentert, en-stav eller tilsvarende. Overflate garasjegulv vil være i grovstøpt betong.
Det leveres 1 stavs mattlakkert hvitpigmentert eikeparkett i alle tørre rom i boligen.
Alle innervegger av tre leveres som minimum 10 cm tykke vegger og gips på hver side. Det leveres malte gipsplater i alle tørre rom, farge: Jotun 9918 Klassisk hvit. Kjøper har anledning til å velge veggfarge mot tillegg, men da som tilvalg. Bad leveres med flislagte vegger.
Alle himlinger i boligen leveres med malte gipsplater, farge: Jotun 9918 Klassisk Hvit. Boligen leveres uten taklister og det fuges tett mellom vegg og tak.
Gulvlist leveres type glatt 12 x 58 hvitmalt. Gerikter leveres type 12 x 58 mm.
Overflater bad:
- Bad 1. etasje: Bad leveres flislagt på vegger og gulv, flis type Antica 20x20 cm på gulv fra Fagflis Kløfta. Veggflis Vitra Block 25x40 cm
- Bad 2. etasje: Bad leveres flislagt på vegger og gulv, flis type Glade Branco Mate 30x60 cm e.l. fra Fagflis Kløfta. Dusjnisje i mosaikk, Glade Branco Mosaico Matt 5x5 cm.
- Bad master bedroom, 2. etasje: Bad leveres flislagt på vegger og gulv, flis type Glade Cinca Mate 30x60 cm e.l. fra Fagflis Kløfta. Dusjnisje i mosaikk, Glade Cinza Mate Mosaico, 5x5 cm.
Overflater vaskerom:
- Leveres med flislagt gulv med sokkel, fliser Antica 20x20 cm på gulv fra Fagflis Kløfta.
Overflater hall:
- Leveres med varmekabler og fliser, type Glade Cinca Mate 30x60 cm e.l. fra Fagflis Kløfta.
Garderobe:
Garderobe leveres ikke medfølgende. Det avsettes plass til 1 meter garderobe pr. inntegnet sengeplass.
Maler
Treverk/plateprodukter er levende materialer som påvirkes av temperatursvingninger og luftfuktighet. Dette vil medføre at det kan oppstå sprekkdannelser på vegg, gulv og takflater, glipper mellom tak/list kan forekomme. Vegger leveres sparklet, grunnet og malt med to strøk etter malestandarden NS 3420-T: 2019 estetisk klasse 3. Enkelte småmerker, rifter o.l. kan forekomme. Lister kan ha synlige spikerhull og skjæresnitt overmales ikke.
Setningssprekker/bevegelsessprekker som oppstår etter overtagelse, skyldes ytre årsaker (grunnforhold, oppvarming, klima, naturpåvirkning, egenskaper i ulike bygningsmaterialer, trevirke som tørker opp) og er ikke en feil fra leverandør, og er ikke gjenstand for utbedring fra maler/utbygger.
Dagens mer minimalistiske byggestil på en del hus, med listfrie overganger mellom f.eks vegg/tak kan føre til riss/sprekk skader. Dette må kunne påregnes, og er ikke å regne som en feil fra maler/utbygger
Parkering / Garasje
Boligene leveres med dobbelgarasje integrert i boligen, med gulv i grovstøpt betong. Garasjeport er Harmonie RV-linje, RAL 7016. Vegger med umalte gipsplater.
2 garasjeåpnere medfølger.
Av belysning leveres det 2 stk SG Wave LED armatur i garasje. Rør til fremtidig El- bil lader legges frem i garasje
Ellers parkering i innkjørsel foran garasjeport.
Beskrivelse av tomt / hage
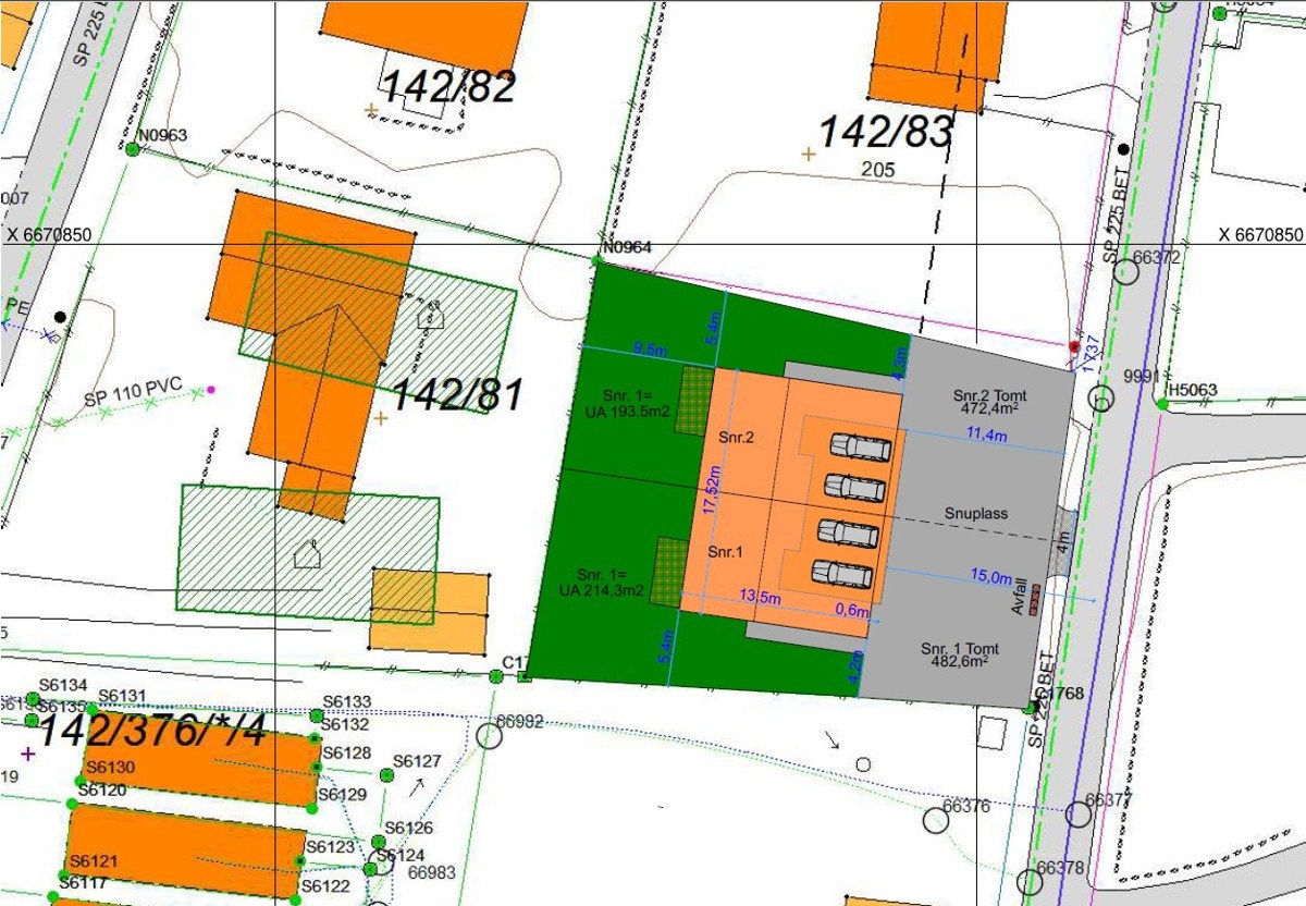
Eiendommen har en felles eiet tomt på ca. 955 kvm.
Eiendommen vil bli seksjonert med eksklusivt uteareal på hver av enhetene, henholdsvis 482,6 kvm til Hus A og 472,4 kvm til hus B. Parkering/innkjørsel vil være fellesområde. Det tas forbehold om endring av matrikkel, samt at seksjoneringsbegjæringen godkjennes av Kartverket før overtagelse.
Tomten leveres grovplanert. Deretter med ferdigplen og asfaltert oppkjørsel der dette vises på tegning.
Komplette grunnarbeider inkl. bunnledninger samt gårdsplass levert ferdig asfaltert, der hvor det er merket grått på situasjonskart. Tomten vil ellers grovplaneres og med ferdigplen der det er merket grønt på kart.
Terrasse på ca. 47 kvm i 3. etasje og terrasse på 13 kvm i 2. etasje leveres med gulv i impregnert furu. Terrassen leveres med glassrekkverk ihht fasadetegninger. Terrasse vil ha et takutspring, der høyde vil være ca 1.90 meter på det laveste.
Tinglyste rettigheter og forpliktelser
Kommunen har legalpant som sikkerhet for betaling av kommunale avgifter. Legalpant er pant som følger av loven, og som ikke tinglyses. Legalpant følger derfor eiendommen ved salg. På eiendommen kan det være tinglyst erklæringer som f.eks. rett for kommunen til å vedlikeholde rørsystemer for vann- og kloakk. Disse erklæringene vil følge eiendommen ved salg. Kontakt megler for nærmere informasjon.
Servitutter / rettigheter
Eiendommen overdras fri for pengeheftelser, med unntak av eventuelle erklæringer, avtaler, servitutter og panteheftelser som fremgår av salgsoppgaven og skal følge med eiendommen ved salg. Kjøpers bank vil få prioritet etter disse.
Følgende servitutter er tinglyst på eiendommen:
1959/2125-1/10 Registrering av grunn
Tinglyst 08.07.1959
Denne matrikkelenhet opprettet fra:Knr:3033 Gnr:142 Bnr:44
Vei / Vann / Avløp
Vann og avløp er offentlig tilknyttet. Vannmåler installeres.
Jogg Eiendom AS dekker tilknytningsavgifter for vann, kloakk, strøm samt byggesaksgebyrer.
Eiendommen er tilknyttet kommunal veg, med privat innkjørsel med felles vedlikeholdsansvar fordelt på Hus A og Hus B.
Ferdigattest eller midl. brukstillatelse
XXXXXXXXXXXXXXXXXXXXXXXXXXXXXXXXXXXXXXXXXXXXXXXXXXXXXX
Selger er ansvarlig for at det foreligger ferdigattest på boligen senest på overtakelsesdagen. Det kan imidlertid bli aktuelt at overtagelse skjer på bakgrunn av midlertidig brukstillatelse fordi arbeider på utomhus og fellesarealer ikke er ferdigstilt. Av midlertidig brukstillatelse skal det fremgå hvilke arbeider som må ferdigstilles før ferdigattest kan gis. For å sikre ferdigstillelse av gjenstående arbeider har kjøper rett til å deponere en tilpasset andel av kjøpesummen på meglers klientkonto inntil ferdigattest foreligger. Dette følger av bustadoppføringsloven § 31. Det kan ikke holdes tilbake mer enn det som er nødvendig for å sikre ferdigstillelse av avtalte arbeider.
Kjøper kan ikke ta boligen i bruk dersom ferdigattest/midlertidig brukstillatelse ikke foreligger og har rett til å nekte overtagelse frem til den er utstedt.
Verdi ved skattefastsetting
Verdien ved skattefastsetting er p.t. ikke fastsatt. Verdien ved skattefastsetting fastsettes av Ligningskontoret etter beregningsmodell som tar hensyn til om boligen er en såkalt "primærbolig" (der boligeieren er folkeregistrert bosatt) eller "sekundærbolig" (alle boliger man eier, men ikke bor fast i). Interessenter oppfordres til å sjekke www.skatteetaten.no eller kontakte ansvarlig megler for nærmere informasjon om verdien ved skattefastsetting.
Reguleringsforhold
Eiendommen er ikke regulert.
Avsatt i kommuneplanen til: boligbebyggelse - nåværende vedtatt 23.03.2021.
Kommuneplanbestemmelser for 2021-2030 følger vedlagt.
Eiendommen ligger i henhold til kartlag fra NVE innenfor område med mulighet for sammenhengende forekomster av marin leire.
Tillatelse til riving av enebolig er gitt 21.08.2023. Søknad om tomannsbolig er byggemeldt og godkjent 14.08.2023.
Formannskapet vedtok følgende den 6.3.18 (sak nr. 42/18):
1. Midlertidig bygge- og deleforbud vedtas ikke.
2. De midlertidige støysonekartene legges ikke til grunn ved behandling av plan- og byggesaker.
Det er fortsatt bygge restriksjoner ved OSL Gardermoen, slik det har vært siden flyplassen ble etablert i 1998. Det er begrensning i muligheten for å bygge og fradele boligtomter nær flyplassen der støyen har et for høyt nivå. Formannskapets vedtak innebærer at de nye støykart som viser forventet støybilde med tre rullebaner ikke skal tas hensyn til. Dette fordi disse vurderes som foreløpige og usikre. Dermed legger kommunen til grunn det støybilde som dagens to rullebaner medfører. Det er i praksis ikke mulighet for å bygge / fradele til boligformål (støyfølsomme bruksformål) i rød støysone. I gul støysone kan det være muligheter, men det forutsetter at man kan dokumentere akseptable støynivåer inne og på utearealer. I byggesaker må tiltakshaver/byggherre benytte seg av konsulenter/foretak med støyfaglig kompetanse.
Samferdselsdepartementet har i brev 28.3.17 besluttet at mulig ny 3. rullebane skal planlegges på østsiden av flyplassen. Kommunen er i en planprosess som baserer seg på departementets beslutning. Byggesaksavdelingen kan veilede nærmere i konkrete spørsmål.
1. stk. boenhet er iflg. Bygningsarkivet godkjent ihht. PBL i hver halvpart.
Ta kontakt med megler for ytterligere informasjon.
Beskrivelse av sameiet
Linjevegen 14 er et sameie bestående av 1 stk tomannsbolig med to boenheter. Det vil ikke være et aktivt sameie.
Eiendommen er seksjonert med eksklusivt uteareal på hver av enhetene. Parkering/innkjørsel er fellesområde.
En sameier eier en andel i eiendommen, med tilknyttet enerett til bruk av sin bruksenhet, jf. eierseksjonsloven § 25.
Faste, løpende kostnader
Boligen er nylig ferdigstilt og selger har således ikke grunnlag for å svare på strømforbruk.
Kommunale avgifter
Disse er ikke fastsatt ennå da boligen nylig er ferdigstilt. Det gjøres oppmerksom på at det kan forekomme variasjon i avgiftene som følge av forbruk og eventuelle kommunale endringer av gebyr/avgift.
Eiendomsskatt
Det er pr. dags dato ikke eiendomsskatt i Ullensaker kommune.
Forsikring
Bygg og eiendom vil være forsikret av utbygger frem til overtakelse, deretter tegnes fullverdiforsikring av kjøper.
Oppgjør
Kjøpesum med tillegg av omkostninger skal være disponibelt på meglers klientkonto innen overtagelse. Normalt innebærer dette at fullt oppgjør må være innbetalt på meglers klientkonto senest to virkedager før avtalt overtagelsesdato.
Eventuelle vilkår knyttet til innbetalingen, eksempelvis pantedokument som skal tinglyses til fordel for kjøpers bank, må være megler i hende i god tid før overtagelse kan finne sted.
Finansiering
Kontakt megler for avklaring av finansielle forhold, herunder lån til kjøp av eiendom. Privatmegleren har avtale med Nordea om formidling av lån og andre finansielle tjenester. Privatmegleren mottar godtgjørelse for dette.
Annen nyttig informasjon
Alle innvendige og utvendige arealangivelser er ca. angivelser basert på boligens byggetegninger. Avvik kan forekomme.
Det gjøres oppmerksom på at utbygger er ferdig med boligen og uteområdet, og at det ikke skal utføres flere arbeider i regi av utbygger.
Boligen er rengjort i form av såkalt "byggvask". Kjøper må påregne nødvendig finrengjøring. Boligen leveres uten utvendig rengjøring. Tomten leveres ryddet.
HVITEVARER medfølger der dette er spesielt angitt i beskrivelse av kjøkken i salgsoppgaven. Det gjøres oppmerksom på at hvitevarene ikke har noen garanti utover vanlig kjøpsgaranti fra leverandøren, og at de overtas "som de er".
Alle perspektiver, illustrasjoner og møblerte planskisser i alt salgsmateriell er ment å gi et inntrykk av en ferdig bebyggelse og det kan ikke meldes inn et krav basert på disse. Det tas forbehold om eventuelle feil i prospektet.
Boligens arealer er angitt så nøyaktig som mulig. Selger tar imidlertid forbehold om mindre avvik/endringer som følge av detaljprosjekteringen. Salgstegningene i prospektet er derfor ikke egnet for nøyaktig måltaking.
Adgang til utleie (boligformål)
I boligens U. etasje er det mulighet for å innrede deler av etasjen som en praktikantdel, etter eget ønske og behov.
Det gjøres oppmerksom på at en praktikantdel i boligen ikke er godkjent som en egen boenhet.
Boligen blir registrert som 1 stk. boenhet hos kommunen.
Konsesjon / Odel
Det foreligger ikke konsesjon eller odel på eiendommen
Sikkerhetsstillelse
Alle eiendomsmeglingsforetak har lovpålagt forsikring av klientmidler begrenset oppad til kr 45 mill. Enkeltsaker er forsikret inntil kr 15 mill. Dersom kjøpers låneinstitusjon krever tilleggsforsikring ved omsetning over 15 millioner, må kjøper selv eller dennes låneinstitusjon dekke utgiftene forbundet med dette.
Overtagelse
Etter nærmere avtale.
Boligselgerforsikring
Selger kan ikke tegne boligselgerforsikring da selger er profesjonell part.
Kjøpsforsikring
Vedlagt i salgsoppgaven følger informasjon om Kjøpsforsikring fra If. Produktet inneholder boligkjøperforsikring, hus-/hytteforsikring med superdekning og innboforsikring med superdekning. Les mer om Kjøpsforsikring i vedlagte materiell.
Lovanvendelse
Eiendommen selges etter reglene i avhendingsloven.
Eiendommen skal overleveres kjøper i tråd med det som er avtalt. Det er viktig at kjøper setter seg grundig inn i alle salgsdokumentene, herunder salgsoppgave, tilstandsrapport og selgers egenerklæring. Kjøper anses kjent med forhold som er tydelig beskrevet i salgsdokumentene. Forhold som er beskrevet i salgsdokumentene kan ikke påberopes som mangler. Dette gjelder uavhengig av om kjøper har lest dokumentene. Alle interessenter oppfordres til å undersøke eiendommen nøye, gjerne sammen med fagkyndig før bud inngis. Kjøper som velger å kjøpe usett kan ikke gjøre gjeldende som mangel noe han burde blitt kjent med ved undersøkelsen.
Dersom det er behov for avklaringer, anbefaler vi at kjøper rådfører seg med eiendomsmegler eller en bygningssakyndig før det legges inn bud.
Hvis eiendommen ikke er i samsvar med det kjøperen må kunne forvente ut ifra alder, type og synlig tilstand, kan det være en mangel. Det samme gjelder hvis det er holdt tilbake eller gitt uriktige opplysninger om eiendommen. Dette gjelder likevel bare dersom man kan gå ut i fra at det virket inn på avtalen at opplysningen ikke ble gitt eller at feil opplysninger ikke ble rettet i tide på en tydelig måte. En bolig som har blitt brukt i en viss tid, har vanligvis blitt utsatt for slitasje og skader kan ha oppstått. Slik bruksslitasje må kjøper regne med, og det kan avdekkes enkelte forhold etter overtakelse som nødvendiggjør utbedringer. Normal slitasje og skader som nødvendiggjør utbedring, er innenfor hva kjøper må forvente og vil ikke utgjøre en mangel.
Boligen kan ha en mangel dersom det er avvik mellom opplyst og faktisk areal, forutsatt at avviket er på 2% eller mer og minimum 1 kvm.
Ved beregning av et eventuelt prisavslag eller erstatning må kjøper selv dekke tap/kostnader opptil et beløp på kr 10 000 (egenandel).
Dersom kjøper ikke er forbruker selges eiendommen «som den er», og selgers ansvar er da begrenset jf. avhl. § 3-9, 1. ledd 2. pktm. Avhendingsloven § 3-3 (2) fravikes, og hvorvidt en innendørs arealsvikt karakteriseres som en mangel vurderes etter avhendingsloven § 3-8. Informasjon om kjøpers undersøkelsesplikt, herunder oppfordringen om å undersøke eiendommen nøye, gjelder også for kjøpere som ikke anses som forbrukere. Med forbrukerkjøp menes kjøp av eiendom når kjøperen er en fysisk person som ikke hovedsakelig handler som ledd i næringsvirksomhet.
Garantier
Garantiplikt for nyoppførte boliger gjelder for avtaler som inngås fra og med 1. januar 2019 og dersom det er mindre enn 6 måneder siden boligen ble ferdigstilt. Bestemmelsen retter seg mot salg fra person som gjør avtalen som ledd i næringsvirksomhet, og der kjøperen gjør avtalen som forbruker. Garantiforpliktelsen fremgår av avhendingsloven § 2-11 jf. bustadoppføringsloven § 12. Det vil stilles en garanti tilsvarende 3 % av kontraktssummen umiddelbart etter budaksept. Garantien trappes opp til 5 % av kontraktssummen fra overtagelsen. Selger kan alternativt deponere et tilsvarende beløp, jf. bustadoppføringsloven § 12. Dersom kjøper ikke anses å være forbruker, oppstår det ingen garantiforpliktelse for selgeren.
Forsikring
Frem til overtagelse vil eiendommen være forsikret av selger. Etter overtagelse må eiendommen forsikres gjennom egen byggforsikring tegnet av kjøper. Kjøper må selv besørge innboforsikring og forsikring av eventuelle særskilte påkostninger.
Budgiving
Bud kan legges inn via Privatmeglerens "gi bud-knapp" som finnes på Privatmegleren.no/eiendommens hjemmeside og i nettannonsen. Bud legges inn trygt og enkelt med bank-ID.
For mer informasjon om budgivning, se "Viktig informasjon" i salgsoppgaven
Lov om hvitvasking
Megler er underlagt lov om hvitvasking som innebærer plikt til å melde ifra til Økokrim om mistenkelige transaksjoner
Meglers vederlag og utlegg
Servitutter ved behov - pr. stk kr. 500 (Kr.500)
Provisjon (forutsatt salgssum: 10 990 000,-) (Kr.137 375)
Visning/overtakelse - pr. stk (Kr.3 500)
Panterett med urådighet - Statens Kartverk (Kr.545)
Tilrettelegging (Kr.14 900)
Oppgjørskostnad (Kr.9 900)
Presisjon digital annonsering (Kr.6 900)
Godtgjørelse oppgjør (Oppgjørskostnad) (Kr.7 500)
Nye bilder Lasse (Kr.1 875)
Nye bilder Lasse feb 2025 (Kr.1 000)
Nye bilder 500,- (april 2025) (Kr.500)
Nye bilder Lasse (Kr.6 957,50)
Markedspakke kr. 23 625 + Finn fornying x 1 à kr.1 215 (Kr.24 840)
Totalt kr. (Kr.216 292,50)
Dersom eiendommen ikke omsettes, faktureres selger for avtalte utlegg og markedsføring.
Vedlegg til salgsoppgaven
Budskjema
Egenerklæringsskjema selger
Energiattest
Ferdigattest / midlertidig brukstillatelse
Reguleringsplaner og bestemmelser
Informasjon og eventuelle vedtekter fra velforening eller liknende
Viktig informasjon til kjøper og selger
Nyttige lenker
Nærområdet

PrivatMegleren Brustad & Partnere
Annonseinformasjon
| FINN-kode | 320741415 |
|---|---|
| Sist endret | 18. juni 2025 20:00 |
| Referanse | 121230150 |
Annonsene kan være mangelfulle i forhold til lovpålagt opplysningsplikt. Før bindende avtale inngås oppfordres interessenter til å innhente komplett informasjon fra meglerforetaket, selger eller utleier.





