Bildegalleri

Fasade front
Moderne 2 MB i Krakereid byggefelt. Ta kontakt for visning.
2 MB med livsløpsstandard og mulig husbankfinansiering
Prosjektets status
Planlegging
Prosjektet planlegges oppført 2026
Salgsstart
Salgsstart er igang.
Byggestart
Mars 2026
Overtakelse
November/desember 2026
Nøkkelinfo
- Boligtype
- Tomannsbolig
- Eieform
- Eier (Selveier)
- Soverom
- 3
- Antall etasjer
- 1
- Primærrom
- 93 m²
- Bruksareal
- 111 m²
Fasiliteter
Visning
Ta kontakt for å avtale visning.Beskrivelse
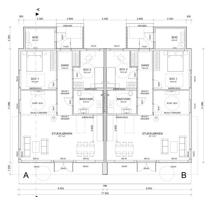
Selje Boligutvikling planlegger oppføring av moderne tomannsbolig i Selje. Boligen går over ett plan og vil være tilpasset universell utforming/ livsløpsstandard.
Vi har sluttført en liknende bolig i 2024. Denne vil bli brukt som visning om ønskelig. Ta kontakt for å avtale visning for å se på kvalitet og utføring av boligen. Bilder av fasader er hentet ifra bolig vi akkurat ha bygget.
Boligen kan finansieres med husbankfinansiering. Kunder søker selv finansiering. Dette må avklares i hvert enkelt tilfelle.
Kunder betaler ingenting før innflytting. Boligen vil være klar til innflytting sent på året 2026 (avhengig av salg).
Boligen kan leveres både med med to eller tre soverom. Kunder velger selv løsning.
Boligen inneholder følgende:
- Balansert ventilasjon
- Livsløpstandard
- HTH kjøkken og baderomsinnredning.
- Ferdig flislagt bad (gulv og vegger).
Boligen leveres klar for egeninnsats. Det betyr at kunder selv har muligheten for å sluttføre overflater i boligen for å spare noen kroner. Baderom er ferdig utført, så dette gjelder kun sparkling/ maling og gulvlegging. Vi kan sluttføre boligen om ønskelig.
Kjøpere kan selv tilpassekjøkken- og baderomsinnredning, overflater på vegger, gulv og tak.
Boligen leveres med 2,7 meter takhøyde og ekstra høye vinduer i front (2,3 meter). Ytterdør leveres også som 2,3 meter for å danne et eksklusivt preg
Boligen ligger sørvendt og har gode solforhold. .
Carport kan leveres om ønskelig.
Ta kontakt for komplette tegninger og mer informasjon.
Nærområdet
Annonsene kan være mangelfulle i forhold til lovpålagt opplysningsplikt. Før bindende avtale inngås oppfordres interessenter til å innhente komplett informasjon fra meglerforetaket, selger eller utleier.










