Bildegalleri

Solhellinga Alvdal
Lyse, moderne og innholdsrike tomannsboliger i naturskjønne omgivelser
Prosjektets status
Planlegging
2025
Salgsstart
2025
Byggestart
2025
Overtakelse
Etter avtale
Nøkkelinfo
- Boligtype
- Leilighet
- Eieform
- Eier (Selveier)
- Soverom
- 3
- Energimerking
- B
- Bruksareal
- 82 m²
Fasiliteter
Visning
Ta kontakt for å avtale visning.Beskrivelse
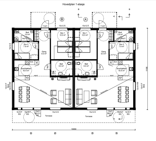
Leilighet er prosjektert og skal bygges i Solhellinga Boliggrend i Måna i Alvdal Kommune.
Velkommen til en unik mulighet til å sikre deg en eksklusiv og moderne bolig i det vakre Solhellinga Boliggrend i Måna, Alvdal Kommune. Denne fantastiske 2-mannsboligen er nøye designet av arkitekter med fokus på både arealeffektive planløsninger og tidløs design.
Boligen er bygget i en moderne og stilrene linjer og store vindusflater som slipper inn rikelig med naturlig lys. Den er plassert i et rolig og attraktivt område, med kort avstand til alle fasiliteter og flotte naturområder i nærheten.
Boligen er delt inn i to separate enheter, hver med egne innganger og tilgang til uteplass. Hver enhet består av en romslig stue med åpen planløsning til kjøkkenet, samt to eller tre (tilvalg) soverom og et moderne bad. De store vinduene gir en fantastisk utsikt over omgivelsene og gir boligen en lys og luftig følelse. Åpen skrå himling som gir en veldig god romfølelse.
Egen frittstående garasje er en del av prosjektet (tilvalg)
Boligen er bygget med høy kvalitet og gode materialer, og er utstyrt med moderne teknologi som garanterer en komfortabel og energieffektiv livsstil. Gulvvarme og ventilasjon med varmegjenvinning bidrar til å holde en behagelig temperatur inne i boligen, mens solcellepaneler (tilvalg) på taket kan redusere strømregningene.
Dette er en unik mulighet til å skaffe seg en arkitekttegnet 2-mannsbolig på sentrumsnære tomter i disse kommunene. Med fantastisk design og høy kvalitet. Ta kontakt i dag for flere detaljer!
Bilder er fra tilsvarende ferdigstilte leiligheter.
Byggestart så snart en halvpart er solgt!
Nærområdet
Jess-Bygg AS
Annonsene kan være mangelfulle i forhold til lovpålagt opplysningsplikt. Før bindende avtale inngås oppfordres interessenter til å innhente komplett informasjon fra meglerforetaket, selger eller utleier.









