Bildegalleri

illustrasjonsbilde
Perfekt mulighet for den nevenyttige!
Unik funkisbolig ved sjøen på Ballstad.
Prosjektets status
Planlegging
Huset er klart for overflatebehandling
Salgsstart
i dag
Byggestart
sommeren 2022
Overtakelse
Snarest
Nøkkelinfo
- Boligtype
- Enebolig
- Eieform
- Eier (Selveier)
- Soverom
- 4
- Rom
- 5
- Antall etasjer
- 2
- Primærrom
- 193 m²
- Bruksareal
- 253 m²
- Grunnflate
- 140 m²
Fasiliteter
Visning
Ta kontakt for å avtale visning.Beskrivelse
Kjør et kupp!
Gjør et kupp på en fantastisk innholdsrik enebolig på vakre Ballstad.
Boligen er 253 kvm inkl integrert dobbelgarasje.
Sentralt beliggende tomt på 975 kvm med utsikt og nærhet til fjell og havn.
Boligen selges nå til redusert pris med følgende alternativer for den nevenyttige;
Selges i den ferdig-grad "som den er". (Dette vil si at det gjenstår noe overflatebehandling og diverse sluttmonteringer.)
Ta kontakt for en uformell privat visning for å se på mulighetene dine.
Tlf 480 20 656
Ingrid Rosø Knutsen
Boligen er som nevnt klar for overflatebehandling og material/fargevalg av kunde.
Lofotr bygg og anlegg er stolte av å presentere Gjerneshaugan 21 i samarbeid med Systemhus. En lekker fukisbolig midt i feriepariadiset Lofoten. Vi kan by på nydelig utsikt, nærhet til sjø, fjell, turområder, fiskevær, strender og koselige kafeer. Ballstad ligger midt i Lofoten, med ca 1 times kjøretur fra de mest populære turistattraksjonene som blant annet Haukland strand, Reinebringen, Nusfjord, Unstad m.m
Dette er et moderne hus med effektivt areal, samt store vinduer som slipper luft og lys inn. Her kan du få gleden av å oppleve midnattsolen på nært hold.
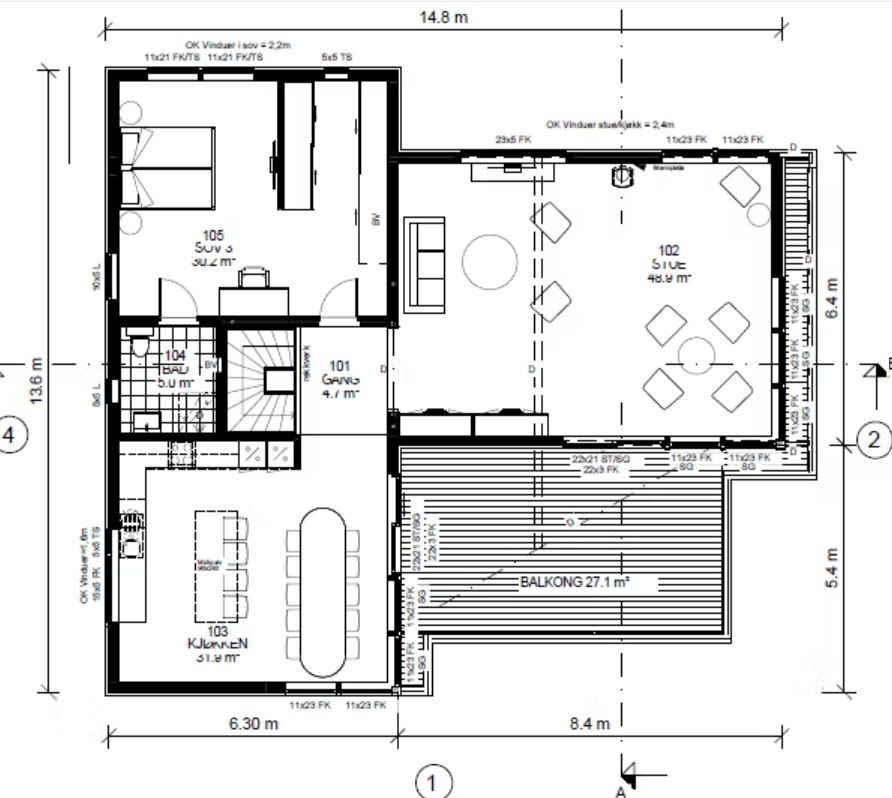
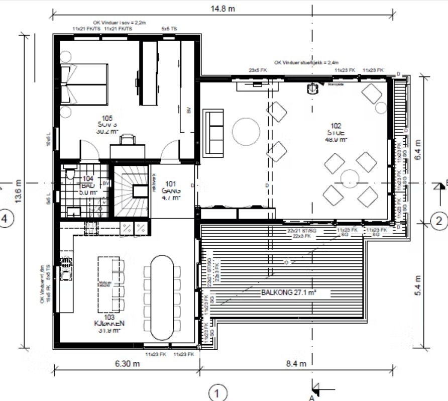
Huset har en praktfull stue med masse lys, god utsikt og mye plass til flere sittesoner. Dette gir huset mange møbleringsalternativer og stor fleksibilitet.
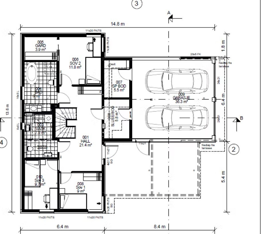
Balkongen mot fronten av huset er romslig og minimerer overgangen mellom ute og inne på fine sommerdager med 2 store skyvedører. Den er også delvis overbygd, slik at den skjermer for vær og vind. ligen har tre romslige soverom, to i underetasjen og et i hovedetasjen. Mastersoverommet i hovedetasjen er på over 30m2 med tilhørende bad og den kan innredes som en egen suite.
Her er det plass til oppbevaring, lesekrok eller arbeidsplass. Enhver husbyggers drøm av et soverom. De to soverommene i underetasjen er også romslige og har god plass til garderobe og arbeidsplass. Husets første etasje rommer alle de funksjonene som passer for alle livssituasjoner og har inngang rett fra bakkeplan.
Boligen har innvendig sportsbod hvor det å kunne gå tørrskodd fra huset til en dobbel garasje, noe som er en stor kvalitet for det norske klima. Inngangspartiet er også skjermet av balkongen.
Huset har en utmerket beliggenhet med fokus på muligheter for SUP, kajak, bading, fritidsbåt m.m.
FRITIDSAKTIVITETER
På Ballstad knytter mye av aktiviteten seg til idrettslaget Ballstad UIL, Ballstad Gym og Turn, samt friluftsliv, jakt og fiske.
Ballstad har flotte utendørsanlegg i form av kunstgressbane og ballbinge. Populære turstier for store og små, alt fra toppturer til Skottinden, fisketurer i ferskvann eller gåturer til Kyllingdalen.
Arealer
Areal BRA.
2.etg = 128.9
1.etg = 82.8
Garasje = 36.3
Sport = 5.5
Tomt / tomteareal.
Areal tomt = 975 m2
Uteområdet blir opparbeidet med stedlige masser og grusede parkerings- og trafikkarealer.
Såing av plen og annen beplantning er kjøpers ansvar
Fordel med å kjøpe nytt
Det er mange fordeler med å kjøpe nytt;
Huset er i forskriftsmessig stand med 5 års reklamasjonsfrist.
Som nevnt har du mulighet til å gjøre egne valg innvendig, slik at boligen får den standarden og det stilmessige uttrykket du selv ønsker.
Det er lite vedlikeholdskostnader.
Lave strømutgifter.
Lave omkostninger.
Internett/TV
Det vil bli tilrettelagt for fiber. Det må påregnes tilknytningsgebyr til fiberleverandør.
Ventilasjon
Inneklimasentral med integrerte funksjoner for balansert ventilasjon, tappevann og varme til boligen med vannbåren varme.
Den sikrer et sundt inneklima, rikelig med varmtvann og varme på en svært energieffektiv måte.
Vann og avløp
Boligen tilknyttes kommunalt vann via private stikkledninger fordelt på fire boliger.
Avløpet tilkobles privat minirenseanlegg fra Biovac, service utføres av lokal entreprenør for Biovac. Det opprettes en velforening for fordeling av drift og vedlikeholdskostnader ifm minirenseanlegget fordelt på fire boliger.
Nærområdet
Systemhus - Lofotr Bygg & Anlegg As
Annonsene kan være mangelfulle i forhold til lovpålagt opplysningsplikt. Før bindende avtale inngås oppfordres interessenter til å innhente komplett informasjon fra meglerforetaket, selger eller utleier.






















