Bildegalleri

Integrert dobbelgarasje og ellers romslig gårdsplass med biloppstillingsplass
Langenesåsen 78
Innholdsrik arkitekttegnet enebolig med praktikantdel - Fantastisk sjøutsikt! Nytt og barnevennlig boligfelt!
Prosjektets status
Planlegging
01022024
Salgsstart
14092024
Byggestart
01102024
Overtakelse
01092025
Nøkkelinfo
- Boligtype
- Enebolig
- Eieform
- Eier (Selveier)
- Soverom
- 5
- Rom
- 7
- Etasje
- 2
- Antall etasjer
- 2
- Internt bruksareal
- 257 m² (BRA-i)
- Bruksareal
- 264 m²
- Eksternt bruksareal
- 7 m² (BRA-e)
Beskrivelse
Om prosjektet
Gaute Kverneland Baardsen i EiendomsMegler 1 har gleden av å presentere denne flotte, prosjekterte eneboligen på Langenesåsen!
Med beliggenhet i nytt og attraktiv boligfelt på Langenes, hvor det er kort vei til skole, barnehage, butikker og en rekke flotte tur- og rekreasjonsmuligheter, samt kort vei til sjøen, lysløyper og flere herlige badeplasser, har en alt en trenger for å trives!
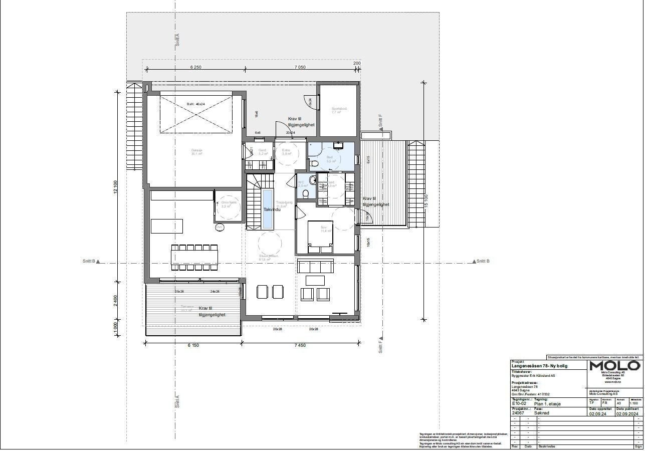
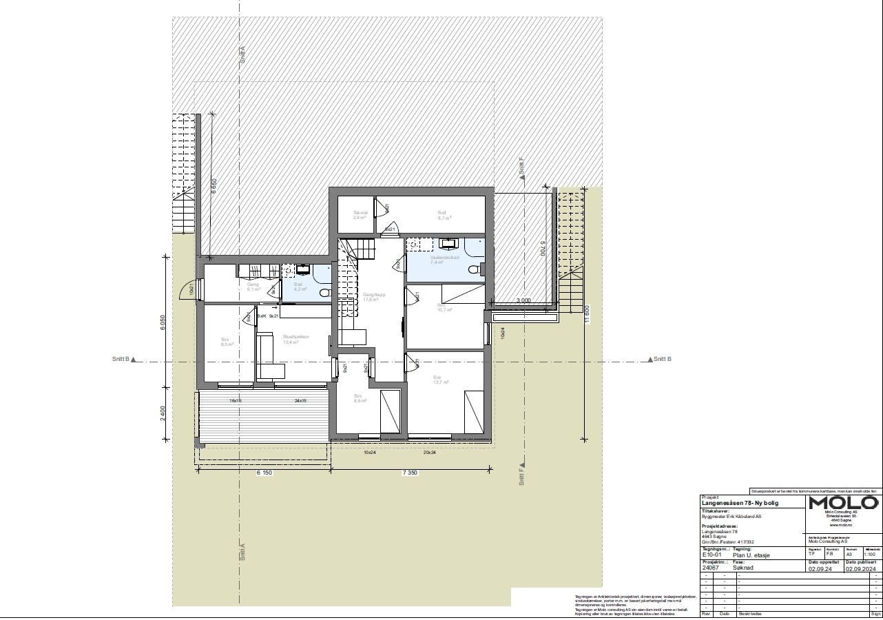
Boligen går over to plan, og av innhold nevnes 4 soverom, bad og bad/vaskerom, romslig stue og kjøkken. Praktikantdel med stue/kjøkken, soverombad og gang. Dobbel garasje i tilknytning til boligen. Sportsbod. Kjøkken for kr. 150.000,- inkl. mva og montering.
Ta kontakt med megler for mer informasjon og for en befaring på tomten!
Garasje/parkering
Dobbel garasje i tilknytning til huset.
Kjøkken
Kjøkken leveres for kr. 150.000,- inkl. mva og montering.
Nyttige lenker
Nærområdet
EiendomsMegler 1 Markensgate
Annonseinformasjon
| FINN-kode | 370564831 |
|---|---|
| Sist endret | 16. sep. 2024 07:20 |
| Referanse | 2607240328 |
Annonsene kan være mangelfulle i forhold til lovpålagt opplysningsplikt. Før bindende avtale inngås oppfordres interessenter til å innhente komplett informasjon fra meglerforetaket, selger eller utleier.

























