Bildegalleri

Flotte tomannshytter i Mørkveslia!
Mørkveslia
1 solgt - byggingen er i gang! Eksklusive tomannshytter m/godt utnyttet hems på 45,2 m2 | Ski in/ski out | Carport inkl.
Prisantydning
5 600 000 kr
Prosjektets status
Planlegging
Ferdig
Salgsstart
Salget er i gang!
Byggestart
Fastsettes ved kjøp
Overtakelse
Ca 8-9 måneders byggeperiode etter kjøp
Nøkkelinfo
- Beliggenhet
- På fjellet
- Boligtype
- Hytte
- Soverom
- 2
- Internt bruksareal
- 71 m² (BRA-i)
- Bruksareal
- 76 m²
- Eksternt bruksareal
- 5 m² (BRA-e)
- Balkong/Terrasse
- 23 m² (TBA)
- Eieform
- Eier (Selveier)
Fasiliteter
Enheter i prosjektet
Sorter etter
| Enhet | BRA-i | Soverom | Totalpris |
|---|---|---|---|
| 3-23-0021 | 71 m² | 2 | 5 629 405 kr |
| 3-23-0022 | 71 m² | 2 | 5 629 405 kr |
| 3-23-0024 | 71 m² | 2 | 5 628 155 kr |
Beskrivelse
Velkommen til Mørkveslia! Et nytt hytteprosjekt der komfort, kvalitet og ekte fjellro møtes.
Her får du moderne tomannshytter med gjennomtenkte planløsninger, store vindusflater og en lun atmosfære som gjør at du føler deg hjemme fra første stund.
Hver bygning består av to enheter med smarte løsninger over to etasjer. Perfekt for både familie og venner.
Carport er inkludert i prisen, og hyttene leveres med to soverom, bad og eget vaskerom/WC, samt en romslig hems på hele 45,2 m² (ikke målbart areal).
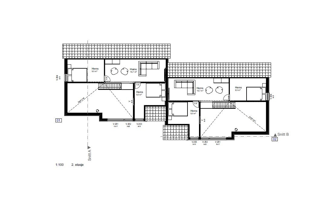
Hemsen er delt inn i fire rom. Ideell som ekstra oppholdsrom eller soveplass for små og store.
De store vindusflatene slipper naturen rett inn, og med god takhøyde og gode materialvalg får du en hytte som kombinerer moderne uttrykk med ekte fjellstemning.
Her får du mye hytte for pengene. En perfekt balanse mellom kvalitet, komfort og pris.
Beliggenheten er rolig og solrik, med planlagte ski in/ski out-fasiliteter som gjør det enkelt å starte dagen rett i løypa.
Dette er hytta for deg som vil ha det beste av Myrkdalen. Både vinter og sommer.
En enhet står ferdig! Book visning slik at du kan se alle det gode kvalitetene.
Beliggenhet
I det nye hytte- og tomteområdet i Mørkveslia, 2,5 kilometer sør-vest fra Myrkdalen Hotel, ligger bl.a. hyttetomtefeltet Svingen.
Her er det planlagt bygget tomannshytter på tomt nr. 3 og 4. Jf. tomtekart.
Tomtefeltet Svingen består kun av få hytteenheter hvor samtlige har storslått utsikt over dalen og fjellområdene. Området har unike og solrike forhold, nydelig utsikt og ligger like ved skiløyper, alpinanlegg og turterreng.
Det er planlagt to nye skitrekk i 1.byggetrinn av Mørkveslia iht. reguleringsplan, som vil knytte området sammen med resten av skianlegget i Myrkdalen Fjellandsby.
Første byggetrinn av Mørkveslia består av feltene Hagamyra, Geitasteinane og Svingen.
I Svingen-feltet vil man få unike ski inn / ski ut-fasiliteter. Her vil være mye friareal ved hyttene, og i 1. byggetrinn av Mørkveslia blir det ikke hytter og hyttefelt tett på hverandre.
Dette er med andre ord ideelt for den som ønsker mer natur, friareal ved hytta og kun få steg til urørt natur!
Lett adkomst via nyoppført vei fra riksveg 13 til områdene. Ca. 2,5 km før innkjørsel til Myrkdalen Fjellandsby, kun ca. 25 minutters kjøring til/fra Voss Sentrum og ca. 2 timers kjøring til/fra Bergen.
Generell orientering
Tomannshyttene blir bygd over ett hovedplan med tilkomst til hems. Vertikaldelt og sakset i forhold til hverandre.
1. etg.: Entré/gang, to soverom, bad, wc-/vaskerom, stue/kjøkken, bod og trappeoppgang. Terrasse med utgang fra stue/kjøkken.
Oppgang til romslig hems.
Hyttene har peisovn, samt gulvvarme i entre, bad og wc-/vaskerom. Panelovner i soverom og stue. Se ellers leveransebeskrivelsen.
Det vil bli oppført felles dobbel carport med sportsbod til hver tomannshytte.
Hyttene blir levert med tilkopling fiber fra Voss Fiber. Det må regnes med en tilknytningsavgift til fiberselskapet
Garasje/parkering
Det vil bli oppført felles dobbel carport med sportsbod til hver tomannshytte.
Konstruksjon
Hyttene oppføres i treverk. Jf. leveransebeskrivelsen/ romskjema vedlagt i prospekt.
Prisinformasjon
Hyttene blir solgt til faste priser. Selger står fritt til når som helst, og uten foregående varsel, å endre prisene på usolgte hytter.
Bindende bekreftelse på kjøp er bindende for kjøper når det er innlevert til megler. Stadfestelsen er bindende for selger når selger har akseptert.
Betalingsbetingelser
10 % av kjøpesum ved kontrakt
20 % av kjøpesum ved byggestart
50 % av kjøpesum ved ferdig råbygg (tette vegger, tak og vindusåpninger)
20 % av kjøpesum inkl. omkostninger til staten ved overtakelsen.
Boligene blir solgt etter reglene i Bustadoppføringslova. Utbygger plikter å stille entreprenørgaranti, jfr. § 12 i bustadoppføringslova. Dersom utbygger stiller garanti etter bustadoppføringslovas § 47, kan innbetalt del av kjøpesum utbetales til selger før overtakelse og tinglysing av skjøte. Entreprenørgaranti skal foreligge fra selger før kjøper innbetaler noe del av kjøpesummen. Utbygger kan velge å utsette garantien til ev. minimum salg er oppnådd, byggelån og igangsetting er innvilget. Dog ikke senere enn byggestart. Renter opptjent på klientkonto tilfalles kjøper inntil selger stiller forskuddsgaranti etter bustadoppføringslovas § 47 eller skjøtet til kjøper er tinglyst. Innbetalt beløp til oppgjørsansvarlig/oppgjørsselskap sin klientkonto tilhører kjøper og kan fritt disponeres av kjøper inntil selger har stilt forskuddsgaranti eller skjøte til kjøper er tinglyst. Når selger har stilt forskuddsgaranti utbetales forskuddet til selger og opptjent renter til kjøper opphører.
Alle delbetalinger betales til klientkonto hos megler Vestland Eiendomsmegling AS.
Renter opptjent på klientkonto tilfeller kjøper inntil skjøte til kjøper er tinglyst. Innbetalt beløp fra kjøper kan fritt disponeres av kjøper inntil utbygger/selger har stilt garantier ihht Bustadoppføringslova ,skjøte til kjøper er tinglyst eller utbygger har stilt garantier.
Tomt
Bnr. 113: 672,8 m²
Bnr. 114: 731,7 m²
Selveier i seksjonssameie - tomannshytter. Hyttene blir seksjonert på felles eiertomt nr. 3; Gnr. 277, bnr. 113 og tomt nr. 4; Gnr. 277, bnr. 114 i Voss Herad.
Oppvarming
Hyttene har peisovn, samt gulvvarme i entre, bad og wc-/vaskerom. Panelovner i soverom og stue.
Se også leveransebeskrivelsen.
Sentrale lover
Boligene selges til forbruker i henhold til Bustadoppføringslova, til andre kjøpergrupper gjennomføres salget etter regler i Avhendingslova. Etter at boligene er ferdigstilte selges boligene etter Avhendingslova til både forbruker og næringsdrivende. Med unntak av de begrensninger som følger av sameiets vedtekter og av eierseksjonsloven, har eierne full rettslig rådighet over sine seksjoner og kan fritt pantsette, selge og leie ut sine seksjoner. Jf. dog visse begrensninger mht offentlig/profesjonell utleie under pkt. Adgang til utleie.
I henhold til Lov av 6. mars 2009 nr. 11 om tiltak mot hvitvasking og terrorfinansiering mv. er megler/oppgjørsselskap pliktig til å gjennomføre legitimasjonskontroll av oppdragsgiver og/eller eventuelle reelle rettshavere til salgsobjektet. Det samme gjelder for medkontrahenten til oppdragsgiver og/eller eventuelle reelle rettighetshavere til salgsobjektet.
Dersom en ikke oppfyller lovens krav til legitimasjon, eller ansvarlig for oppgjør har mistanke om at transaksjonen har tilknytning til utbytte av en straffbar handling eller forhold som rammes av straffeloven §§ 147 a, 147 b eller 147c, kan ansvarlig stanse gjennomføringen av transaksjonen. Ansvarlig for oppgjør kan ikke holdes ansvarlig for de konsekvenser dette vil kunne medføre for oppdragsgiver og/eller eventuelle reelle rettighetshavere til salgsobjektet eller deres medkontrahent.
Adgang til utleie
Det er frivillig å leie ut sin eller sine hytter, men det medfører plikt til å bruke Myrkdalen Fjellandsby sitt Bookingselskap ved offentlig og profesjonell utleie. Dette gjelder ikke utlån til venner og familie eller leie på åremål.
Dersom kjøper ønsker å leie ut fritidsboligen når man selv ikke bruker denne er det muligheter for leieinntekter hele året. Ta gjerne kontakt med Myrkdalen Hotel eller selger for nærmere informasjon om utleie og erfaringstall for leieinntekter.
Ferdigattest / Brukstillatelse
Ferdigattest eller midlertidig tillatelse til bruk skal foreligge før overtagelse kan finne sted.
Fremdriftsplan og ferdigstillelse
Kjøper må påregne ca. 8-9 måneders byggeperiode etter kjøpsbekreftelse.
Hus nr. 2 mot sør blir ferdigstilt i desember 2025 og kan overtas da. Den andre tomannshytten er planlagt ferdigstilt påsken 2026.
Selger tar forbehold om minimum salg og kommunal igangsettelsestillatelse før byggestart.
Tegninger mv. i salgsmaterialet / vedlegg er en illustrasjon.
For alle produkt i leveransebeskrivelsen gjelder at leverandør og type kan bli endret, men da til leveranse/produkt av tilsvarende kvalitet. Garderobeskap, møbler og annet som er vist i illustrasjoner og
plantegninger er ikke inkludert, men er ment som illustrerende.
Det tas forbehold om finansiering for oppstart av prosjektet.
Ta kontakt med megler for nærmere informasjon.
Kjøkken
Sigdal - Vidde Granitt 0103
Bad
Sigdal - Lilje Palett
Andre oppholdsrom
Hyttene vil bli oppført med gjennomgående gode kvaliteter som vil gi en god og lun hyttefølelse.
Stor takhøyde og store vindusflater vil gi god romfølelse og ivareta gode lys og utsiktsforhold.
Den romslige hemsløsningen gir muligheter for ekstra sove- og oppholdsplasser.
Se leveransebeskrivelsen for nærmere beskrivelse.
Yttertak
Shingel på tak. Jf. leveransebeskrivelsen/ romskjema vedlagt i prospekt.
Regulering
Eiendommen er regulert til fritidsbebyggelse - frittliggende iht. områdereguleringsplan for Mørkveslia, planid. 12352016012. Faresone tilknyttet planen: Ras- og skredfare (335 m²)
Eiendommen er avsatt til friområde nåværende, iht. Kommuneplan for Voss herad 2020-2032, planid. 12352019004. Hensynssone iht. planen: Reguleringsplan skal fortsatt gjelde.
Eiendommen er avsatt til friområde fremtidig, iht. Kommunedelplan for Myrkdalen, planid. 123506024.
Planopplysninger og -kart kan ses hos megler.
Det er ikke knyttet konsesjon eller odel til eiendommen.
Nyttige lenker
Nærområdet
EiendomsMegler 1 Vestland
Annonseinformasjon
| FINN-kode | 387094626 |
|---|---|
| Sist endret | 01. des. 2025 11:38 |
| Referanse | 2713245001 |
Annonsene kan være mangelfulle i forhold til lovpålagt opplysningsplikt. Før bindende avtale inngås oppfordres interessenter til å innhente komplett informasjon fra meglerforetaket, selger eller utleier.









