Bildegalleri
Velkommen til Øvre Hoppmannsknuten! Her nyter du panoramautsikt, gode solforhol og skisporet i umiddelbar nærhet. Store selveiertomter med mulighet for garasje og tilleggsbygg.
To hytter klar for overtakelse! NYHET TOMT 21 og 47
To hytter klar for overtakelse! NYHET TOMT 21 og 47 | Etterspurt beliggenhet | 4-5 soverom | 2 bad | 2 stuer | Skistall
Prisantydning fra
6 750 000 kr
Prisantydning til
8 490 000 kr
Prosjektets status
Planlegging
Ferdig prosjektert!
Salgsstart
Salget er i gang!
Byggestart
Vi bygger uansett!
Overtakelse
To hyttetyper klar for overtakelse!
Nøkkelinfo
- Beliggenhet
- På fjellet
- Boligtype
- Hytte
- Soverom
- 4 - 5
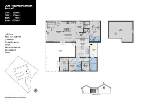
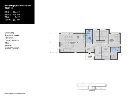
- Internt bruksareal
- 113 - 150 m² (BRA-i)
- Bruksareal
- 113 - 150 m²
- Balkong/Terrasse
- 5 - 10 m² (TBA)
- Eieform
- Eier (Selveier)
Utvalgte enheter


Enheter i prosjektet
Sorter etter
Visning
Ta kontakt for å avtale visning.Beskrivelse
Velkommen til Øvre Hoppmannsknuten!
Innholdsrike hytter med høy standard og fantastisk beliggenhet!
- Svært etterspurt område i Sirdal
- Nærhet til Slottet, lysløype og Sirdals beste skiløyper
- Rå utsikt og gode solforhold
- Hovedsoverom med walk-in og eget bad
- 4-5 soverom
- 2 bad og 2-3 stuer
- Skistall/vaskerom med innvendig og utvendig adkomst
- Stor åpen stue/kjøkken løsning med full takhøyde og ildsted
Gjelder kun hyttetype Brendeheia:
- Gjestetoalett og hems
Gjelder kun Falkefjedl:
- Badstue
Beliggenhet
Øvre Hoppmannsknuten er en naturskjønn destinasjon i Sirdal, kjent for sin spektakulære utsikt og flotte turmuligheter. Beliggende i hjertet av Sirdalsheiene, tilbyr dette området en perfekt kombinasjon av rolig natur og spennende friluftsaktiviteter.
Øvre Hoppmannsknuten ligger på en høyde som gir en fantastisk panoramautsikt over de omkringliggende fjellene. Området er preget av variert terreng med både skogkledde lier og åpne fjellvidder, noe som gir en følelse av å være midt i villmarken.
Om vinteren er området populært for langrenn og skiturer. De snødekte landskapene gir en magisk opplevelse for skientusiaster med hele Sirdals løypenett i umiddelbar nærhet, samt kort vei til lysløypen nederst i Høndedalen.
Visningstekst
Ta kontakt for å avtale visning og få oversendt komplett leveranse!
Solgt ihht. bustadoppføringsloven
Eiendommen selges ihht bustadoppføringsloven og dens bestemmelser om garanti og sikring av innbetalte midler.
Overtakelse
Tomt 37 og 45 er klar for overtakelse.
Resterende hytter er klar for overtakelse 365 dager + ferie etter signert kontrakt.*
* Konferer med selger.
Nyttige lenker
Nærområdet
Øster Hus
Annonsene kan være mangelfulle i forhold til lovpålagt opplysningsplikt. Før bindende avtale inngås oppfordres interessenter til å innhente komplett informasjon fra meglerforetaket, selger eller utleier.





















