Bildegalleri

Øyne 4 A og B ligger flott til, med nydelig utsikt.
Øyne
To prosjekterte hytter med flott utsikt |Populær og familievennlig beliggenhet
Prisantydning fra
4 990 000 kr
Prisantydning til
5 190 000 kr
Prosjektets status
Planlegging
.
Salgsstart
Salget er igang
Byggestart
.
Overtakelse
.
Nøkkelinfo
- Beliggenhet
- På fjellet
- Boligtype
- Hytte
- Soverom
- 2
- Primærrom
- 62 m²
- Bruksareal
- 62 m²
- Eieform
- Eier (Selveier)
Fasiliteter
Enheter i prosjektet
Sorter etter
| Enhet | Etasje | P-rom | Soverom | Totalpris | |
|---|---|---|---|---|---|
| Øyne 4 A | 2 | 62 m² | 2 | 5 228 500 kr | |
| Øyne 4 B | 2 | 62 m² | 2 | 5 028 500 kr |
Beskrivelse
Sinneshytta AS leverer kvalitetshytter med tradisjonsrikt håndtverksteknikk. Øyne 4 A og 4 B er to prosjekterte hytter av modellen "Sinneslie". Tomtene har fantastisk utsikt og svært gode solforhold.
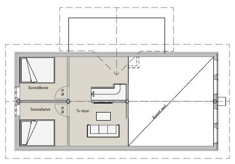
Hyttene har en praktisk planløsning, med 2 soverom på første plan, samt 2 sovealkover og tv stue på hems. Inngangen er romslig, og byr på gode garderobeløsninger. Herfra har man også adgang til en skistall, hvor man lagre alt av skiutstyr, samt opplegg for vaskemaskin. Stue og kjøkken har en åpen løsning, med ulike møbleringsmuligheter. Kjøkkenet blir levert av Bjerks trevare. Fra stuen har man utgang til egen terrasse.
Parkering med plass til to bilder på egen tomt. Øyne 4 A: 576 kvm tomt og Øyne 4 B: 635 kvm tomt.
Hyttene kan ferdigstilles innen julen 2024.
Offentlig vann- og avløp og brøytet vintervei. Hytten blir tilkoblet kommunalt vann og avløp via privat anlegg. Tilknytningsavgifter kommer i tillegg. Fiberrør legges klar for tilkobling.
Kontaktinfo for visning: Tor Sigve Vik, Sinneshyttå AS, tlf. 977 29 183
Beliggenhet
Øyne ligger sentralt på Sinnes, i et av Sirdals flotteste hyttefelt. Helårsvei til døra, og skiløyper går forbi i umiddelbar nærhet, inkludert lysløype og lyssatt skilek område. Det er restaurant og utsiktspunkt på Slottet. Om sommeren er det ca 10 km bomstengt vei innover Hønedalen, her er det fiske og bademuligheter, i et svært familievennlig terreng.
Det er kort vei til Handleriet, Hekta Bakeri, Ålsheia skisenter og Fjellstova.
Generell orientering
Hyttene på Øyne er reisverkshytte i Sinneshyttå stil.
- Torv tak og membran
- Aluminium takrenne og beslag
- Villmarkskledning, søyler i 6 x10 kraftige lister og torvholds stokk.
- Kjøkken levert av Bjerks
- Jernsylfat behandlet utvendig
- Platting ved hovedinngang ihht tegning
Garasje/parkering
Parkering med plass til to bilder på egen tomt.
Fremdriftsplan og ferdigstillelse
Hyttene kan ferdigstilles julen 2024.
Nyttige lenker
Nærområdet
EiendomsMegler 1 Nybygg Sandnes
Annonseinformasjon
| FINN-kode | 339531988 |
|---|---|
| Sist endret | 05. des. 2024 10:40 |
| Referanse | 2302245002 |
Annonsene kan være mangelfulle i forhold til lovpålagt opplysningsplikt. Før bindende avtale inngås oppfordres interessenter til å innhente komplett informasjon fra meglerforetaket, selger eller utleier.








