Bildegalleri

Illustrasjon, avvik vil forekomme.

Tinden Vest

Tinden Vest - Trinn 2 (2 av 4 solgt). 2 stk. kompakthus med alt på ett plan – moderne, sentrumsnært og lettstelt.

Prisantydning

4 190 000 kr

Totalpris

4 218 990 kr

  • Planlegging

    Vinter 2025

  • Salgsstart

    Vinter/vår 2025

  • Byggestart

    2026

  • Overtakelse

    2026/2027

Nøkkelinfo

Boligtype
Enebolig
Soverom
2
Internt bruksareal
70 m² (BRA-i)
Bruksareal
79 m²
Eksternt bruksareal
9 m² (BRA-e)
Balkong/Terrasse
25 m² (TBA)
Eieform
Eier (Selveier)

Les mer om bruksareal her

Fasiliteter

Takterrasse
Garasje/P-plass
Peis/ildsted
Balkong/terrasse
Kabel-TV
Bredbåndstilknytning
Turterreng
Sentralt
Balansert ventilasjon
Lademulighet

Utvalgte enheter

Bilde av utvalgt enhet

Hus 1

Kompakthus, 79 kvm BRA

Totalpris

4 218 990 kr

BRA-i

70 m²

2 soverom

Bilde av utvalgt enhet

Hus 2

Kompakthus, 79 kvm BRA

Totalpris

4 218 990 kr

BRA-i

70 m²

2 soverom

Enheter i prosjektet

Sorter etter

Nedoverpil

Visning

Ta kontakt for å avtale visning.

Beskrivelse

Velkommen til Tinden Vest, trinn 2

Etter svært god respons og hele 6 solgte boliger i prosjektet totalt, lanseres nå byggetrinn 2 for salg. Trinnet består av 4 frittliggende eneboliger på selveier tomter, hvorav 2 av 4 allerede er solgt.

De ledige boligene er to praktiske og moderne kompakthus, perfekt for deg som ønsker en lettstelt bolig med en smart planløsning. Boligene leveres med 70 kvm bruksareal, i tillegg til utvendig bod på 9 kvm og carport. Begge boligene er utformet med alt på ett plan, noe som gir en enkel og komfortabel hverdag.

Prosjektet ligger i et attraktivt og etablert boligområde på Tinna – rolig, familievennlig og tilbaketrukket, samtidig kun en kort spasertur fra sentrum og alle servicefasiliteter.

Beliggenhet
Tinden Vest ligger i et svært sentrumsnært og attraktivt område på Tinna. Her bor du fredelig til, men likevel med:

  • Kort gangavstand til sentrum, dagligvare, shopping, restauranter og togstasjon
  • Barnehage, skole og idrettsanlegg i nærområdet
  • Flotte turområder som elvepromenaden og Langnesskogen innen få minutters gange
  • Et trygt og godt etablert bomiljø med lite trafikk


Dette er et område som passer perfekt for både barnefamilier, par og voksne som ønsker moderne bolig i et trygt nabolag.

Fremdrift
Byggetrinn 1 er i full produksjon, og husene ferdigstilles utover våren /sommeren 2026. Byggingen er også igangsatt på trinn 2, med forventet overlevering i løpet av 2026 / starten av 2027.

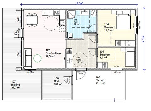
Smarte og moderne kompakthus

Ønsker du en lettstelt og moderne enebolig med alt på ett plan? På Tinden Vest har vi nå for salg 2 stk.
stilrene selveier kompakthus med gjennomtenkte løsninger og effektiv planløsning – perfekt for
førstegangskjøpere, par, seniorer eller deg som ønsker en enklere hverdag.

Kort fortalt:

  • 2 gode soverom på hhv. 14,5m² og 8,3m².
  • Romslig gang på 10,1m² med flislagt gulv og varmekabler.
  • Stor platting på 25m² vendt mot vest.
  • Lys og åpen stue-/kjøkkenløsning
  • Delikat, flislagt bad/vaskerom på 8,2m² med 60x60 fliser
  • Praktisk bod på 9m² med god oppbevaringsplass i tilknytning til carport.


Med 70 kvm BRA-i (79 kvm BRA) får du en arealeffektiv bolig der hver kvadratmeter er smart utnyttet.

Her får du alt du trenger – samlet på ett plan, uten trapper og med enkel adkomst. Boligene leveres med moderne standard og tidsriktige materialvalg. Store vindusflater gir godt med naturlig
lys og en luftig romfølelse.

Som selveier står du fritt – ingen fellesgjeld og full råderett over egen eiendom.

Tinden Vest er et attraktivt og rolig boligområde med nærhet til turområder og nødvendige fasiliteter i sentrum. Her bor du praktisk, moderne og trygt – i en bolig som er like enkel å eie som å bo i.

Nærområdet

Annonseinformasjon

FINN-kode452354790
Sist endret03. mars 2026 12:02

Rapporter annonse

Annonsene kan være mangelfulle i forhold til lovpålagt opplysningsplikt. Før bindende avtale inngås oppfordres interessenter til å innhente komplett informasjon fra meglerforetaket, selger eller utleier.