Bildegalleri

Velkommen til Poulssons Kvartal II - Bildet er en illustrasjon for presentasjon av prosjektet, avvik vil forekomme

Inaktiv

Poulssons Kvarter II

BoligInnbytte | Dobbelboligforsikring | Nytt boligkvartal på Fornebu med attraktive mindre leiligheter!

Prisantydning fra

6 490 000 kr

Prisantydning til

12 990 000 kr

Totalpris fra

6 567 340 kr

Totalpris til

13 107 340 kr

  • Planlegging

    Klargjort for salg

  • Salgsstart

    Oktober 2025

  • Byggestart

    2. halvår 2026

  • Overtakelse

    2. halvår 2028

Nøkkelinfo

Boligtype
Leilighet
Soverom
1 - 2
Internt bruksareal
42 - 79 m² (BRA-i)
Bruksareal
44 - 84 m²
Eksternt bruksareal
2 - 5 m² (BRA-e)
Balkong/Terrasse
6 - 13 m² (TBA)
Eieform
Andel

Les mer om bruksareal her

Fasiliteter

Garasje/P-plass
Balkong/terrasse
Kabel-TV
Bredbåndstilknytning
Sentralt
Balansert ventilasjon

Utvalgte enheter

Bilde av utvalgt enhet

B1-101

B1-101 - 3-roms i 1. etasje

Totalpris

7 786 090 kr

BRA-i

62 m²

1. etasje2 soverom

Bilde av utvalgt enhet

B1-604

B1-604- 3-roms i 6. etasje

Totalpris

13 107 340 kr

BRA-i

79 m²

6. etasje2 soverom

Bilde av utvalgt enhet

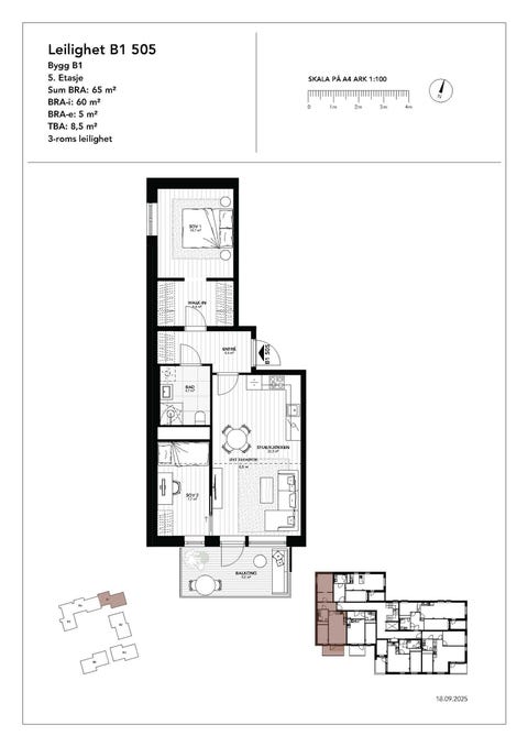
B1-505

B1-505 - 3-roms i 5. etasje

Totalpris

8 283 590 kr

BRA-i

60 m²

5. etasje2 soverom

Enheter i prosjektet

Sorter etter

Nedoverpil

Visning

Ta kontakt for å avtale visning.

Beskrivelse

Suksessen fortsetter i Poulssons Kvarter – nytt kvartal i salg!

Interessen for Poulssons Kvarter II har vært enorm, og 70 % av leilighetene i første salgstrinn er allerede solgt! Nå har du sjansen til å bli en del av dette unike nabolaget på Fornebu.

I Poulssons Kvarter kan du velg mellom alt fra arealeffektive 2-roms til romslige og eksklusive 4-roms leiligheter. Felles for dem alle er gjennomtenkte planløsninger, høy kvalitet og en ettertraktet beliggenhet med umiddelbar nærhet til både sjøen og sentrumslivet, og ikke minst Fornebubanen.

Prosjektet byr på en rekke kvaliteter både med tanke på materialitet, arkitektur, inngangspartier og fellesfunksjoner, men også gjennomarbeidede planløsninger og gode kvaliteter i leilighetene. Her vil du finne deg en leilighet om du er førstegangskjøper, barnefamilie, eller flytter fra hus til leilighet.

Grip muligheten – opplev det beste av Fornebu. Velkommen hjem til Poulssons Kvarter.

Midt i mellom sjø og sentrum

I Poulssons Kvarter vil du befinne deg midt i mellom både strandliv og hverdagsliv. Sjøbris og shopping. Det er kort avstand til fine strender som Storøyodden eller Sollerudstranda, shoppingmuligheter på CC Vest og Fornebu S og gode kollektivtilbud. Siden det ligger i Fornebuporten, inngangen til Fornebu, vil du ha svært god adkomst fra hovedveisystemet og den nye hovedsykkelveien, samt kort avstand til Oslo sentrum. Her trenger du ikke å velge, du får det beste av to verdener.

Fremtidsrettet bokomfort

I Poulssons Kvarter får du gjennomtenkte løsninger som gjør hverdagen både enklere og mer behagelig. På de neste sidene finner du en oversikt over både standard- og tilvalgsløsninger. Disse kombinerer komfort, design og funksjon – og gir deg friheten til å skape et hjem som passer din livsstil.

Digital styring av lys og varme
Hjemmet kan bli utstyrt med et avansert digitalt system som enkelt lar deg kontrollere lys og varme. Dette er ikke bare praktisk og komfortabelt, men også energieffektivt. Med trådløs lysstyring kan du flytte brytere og lamper etter behov og ønske, noe som gir deg full frihet til å tilpasse belysningen i hjemmet ditt.

Nøkkelfri adgang
Sikkerheten i ditt nye hjem ivaretas med et nøkkelfritt adgangssystem. Du kan enkelt låse opp hovedinngangen med adgangsbrikke eller mobiltelefon, helt uten nøkler. På leilighetsdøren leveres standard løsning med vanlig nøkkel. Nøkkelfri adkomst til leilighetsdør kan bestilles som tilvalg mot tillegg i pris.

Styr huset med telefonen
Muligheten til å styre lys, varme, sikkerhet og andre hjemmefunksjoner fra hvor som helst, når som helst, gjennom din smarthus-app. Foretrekker du en mer analog tilnærming, kan du selvfølgelig fortsatt også bruke de veggmonterte panelene og bryterne.

Integrert videokommunikasjon
Med den digitale porttelefonen med integrert kamera kan du både se, snakke med, og låse inn besøkende som står ved hovedinngangen, via mobiltelefon eller nettbrett.

Fremtidssrettede løsninger
De digitale løsningene i ditt nye hjem designes for å være fleksible og kan tilpasses over tid. Dette betyr at du kan oppgradere eller legge til funksjoner etter eget ønske etter innflytting.

Deler av løsningene over er tilvalgsmuligheter du som kjøper kan benytte deg av.

Fellesrom til glede for alle

Sosiale soner
Poulssons Kvarter tilbyr et mangfold av fellesfasiliteter for å skape et levende og sosialt nabolag. Det luftige inngangspartiet er ikke bare en port til hjemmet ditt, men også et naturlig samlingspunkt for naboene, med shuffleboard og koselige sitteplasser for avslappede samtaler og hyggelige øyeblikk.

Golfsimulator
Golfsimulatoren er et unikt tilbud som passer både nybegynnere og erfarne spillere. Her kan du trene teknikk, spille kjente baner fra hele verden eller utfordre naboen til en runde – alt uavhengig av vær og sesong. Et sosialt og underholdende tilskudd til hverdagen.

Treningsrom
Det velutstyrte treningsrommet gir deg enkel tilgang til en aktiv livsstil. Her finner du både kondisjonsapparater, styrkeutstyr og frivekter, slik at du kan tilpasse treningen til egne ønsker og behov. Når treningssenteret bare ligger noen skritt unna leiligheten, blir det lettere å prioritere helsen i en travel hverdag.

Forsamlingslokale
Skal du feire en spesiell anledning, står fellesrommet til disposisjon. Komplett med kjøkken, sitteplasser og terrasse er fellesrommet perfekt for alt fra bursdagsfeiringer til uformelle sammenkomster.

For hjemmekontorentusiaster og skippertaksstudenter lages det et rolig og produktivt miljø, med alt de trenger for å få ting gjort.

Byggetid og betalingsplan

Antatt tidspunkt for ferdigstillelse
Detaljreguleringen ble vedtatt juni 2023 og rammesøknad er planlagt sendt til kommunen oktober 2025. Fysisk oppstart av grunnarbeider har en forventet oppstart 2. halvår 2026. Byggetiden for BT1 er forventet å være cirka 24 til 30 måneder fra fysisk oppstart av grunnarbeider.

En senere igangsetting og/eller en lengre byggetid enn forventet kan medføre en senere overtakelse. Ferdigstillelse av utomhusområder tilknyttet byggene og felles utomhus- og infrastrukturarealer vil kunne bli utført etter overtakelse, blant annet avhengig av årstiden.

Betalingsplan
Forskudd kr 100 000,- forfaller til betaling med 7 dagers betalingsfrist etter avtaleinngåelse og så snart selger har stilt garanti iht § 12.

Resterende del av kjøpesum, omkostninger og eventuelle tilvalg forfaller til betaling senest 7 virkedager før overtagelse.

BoligInnbytte og Dobbeltboligforsikring

Poulssons Kvarter tilbyr BoligInnbytte
Drømmer du om en ny bolig på Poulssons Kvarter, men kvier deg for å selge den du har i dagens marked? Med BoligInnbytte kan du realisere ditt nye hjem trygt og enkelt. Vi garanterer deg en pris for din nåværende bolig slik at du har full økonomisk kontroll.

Denne løsningen er designet for deg som ønsker forutsigbarhet i bolighandelen.

Kjernen i BoligInnbytte er at du «veksler inn» din gamle bolig mot en helt ny fra oss. Den store fordelen er økonomisk trygghet. Du slipper usikkerheten i et svingende marked, ettersom du får en avtalt pris for boligen din uansett.

Slik fungerer BoligInnbytte
Når du finner din nye drømmebolig i et av våre prosjekter, kan du søke om å benytte BoligInnbytte. Ordningen forutsetter at din nåværende bolig oppfyller visse kriterier.

Det viktigste kravet er at verdien på boligen du skal selge, er minst 30 % lavere enn kjøpesummen for den nye boligen. I tillegg må boligen din være i god teknisk stand og ha en attraktiv beliggenhet.

Dersom boligen din kvalifiserer, vil du motta et konkret tilbud. Dette tilbudet inkluderer en garantert salgssum for din gamle bolig, inklusive salgsomkostningene. Dette betyr at du får full økonomisk oversikt og vet nøyaktig hva du har å rutte med før du signerer kontrakten for ditt nye hjem.

Med denne tryggheten kan du glede deg til innflytting, mens Fredensborg Bolig håndterer det praktiske rundt salget av din gamle bolig.

BoligInnbytte er en mulighet for alle som eier bolig i dag og kjøper ny bolig i et av våre utvalgte prosjekter.

Mer informasjon finner du på https://fredensborgbolig.no/nybygg/boliginnbytte

Poulssons Kvarter tilbyr også Dobbeltboligforsikring
Dobbelboligforsikring er en forsikring som gir deg økonomisk hjelp hvis det tar tid å selge din egen bolig. Forsikringen dekker de faktiske merutgiftene ved å sitte med to boliger med inntil 15.000 kroner per måned, og maksimalt 135 000 kroner totalt.

Å kjøpe ny bolig før man har solgt sin eksisterende bolig blir dermed tryggere. Forsikringen gir deg en garanti mot doble boutgifter. Det skal være trygt å bytte bolig.

Nærområdet

Annonseinformasjon

FINN-kode432213531
Sist endret17. feb. 2026 14:41
Referanse1-1009/25

Rapporter annonse

Annonsene kan være mangelfulle i forhold til lovpålagt opplysningsplikt. Før bindende avtale inngås oppfordres interessenter til å innhente komplett informasjon fra meglerforetaket, selger eller utleier.