Bildegalleri

Velkommen til Østre Tertnesåsen 15 A og B - To lekre halvparter av tomannsbolig med spennende planløsning! (Illustrasjon - avvik kan forekomme)

Åsane/ Tertnes

Østre Tertnesåsen

Østre Tertnesåsen -Tilvalgskampanje! Ny tomannsbolig m/​ garasje, 4 sov, tv-stue, utsikt og solrik takterrasse!

Prisantydning fra

10 400 000 kr

Prisantydning til

10 500 000 kr

Totalpris fra

10 441 090 kr

Totalpris til

10 541 090 kr

  • Planlegging

    Under planlegging!

  • Salgsstart

    I salg!

  • Byggestart

    Antatt 1. kvartal 2026

  • Overtakelse

    Antatt 1. kvartal 2027

Nøkkelinfo

Boligtype
Tomannsbolig
Soverom
4
Internt bruksareal
193 m² (BRA-i)
Bruksareal
193 m²
Eieform
Eier (Selveier)

Les mer om bruksareal her

Fasiliteter

Garasje/P-plass
Hage
Peis/ildsted
Balkong/terrasse
Turterreng
Utsikt
Sentralt

Utvalgte enheter

Bilde av utvalgt enhet

Bolig 1

Østre Tertnesåsen

Totalpris

10 441 090 kr

BRA-i

193 m²

1. etasje4 soverom

Bilde av utvalgt enhet

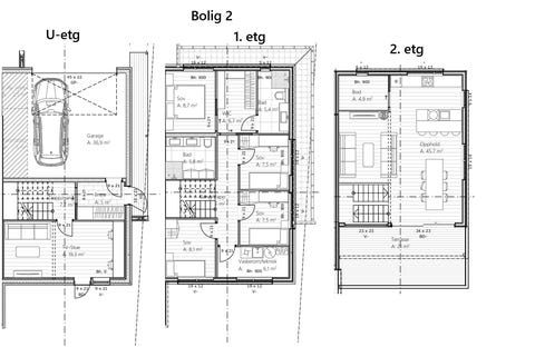
Bolig 2

Østre Tertnesåsen

Totalpris

10 541 090 kr

BRA-i

193 m²

1. etasje4 soverom

Enheter i prosjektet

Sorter etter

Nedoverpil

Visning

Tomten kan besiktiges på egen hånd eller etter avtale med megler.
Visningspåmelding

Beskrivelse

Eiendomsmegler Norge ved Andreas Tveit har gleden av å presentere Østre Tertnesåsen 15.

Her kommer to stk nye halvpart av tomannsboliger på 193 kvm BRA med attraktiv beliggenhet i barnevennlig og populært boligområde på Tertnes. Boligene leveres nøkkelferdig iht. TEK17 og det er mulig å sette sitt eget preg på bolig hva gjelder kvaliteter.

Tilvalgskampanje: Få kr. 50.000,- i tilvalg ved kjøp av bolig innen 31/12-25!
Kjøp bolig nå kr 0,- i forskudd - hele kjøpesummen forfaller til betaling ved innflytting!

Boligene inneholder følgende:
Bolig A: 193 kvm BRA
U-etg: Entrè, trapp/ gang, tv-stue og soverom. Garasje på ca 37 kvm.
1.etg: Entrè, gang, 3 stk soverom, walk-in-closet og to baderom.
2.etg: Stue med åpen kjøkkenløsning og tv-krok, samt innvendig bod. Utgang til solrik terrasse på 22 kvm.

Bolig B: 193 kvm BRA
U-etg: Entrè, trapp/ gang, tv-stue. Utgang til hageparti.
1.etg: Trapp/ gang, 4 stk soverom, walk-in-closet, to baderom og vaskerom/ teknisk.

Antatt byggetid er estimert til 12 måneder fra byggestart. Det foreligger rammetillatelse til oppføring av bolig. Antatt ferdigstillelse er fastsatt til 4. kvartal 2026.

Litt om kvaliteter:
Hovedetasjen har stor sute og kjøkken på 46 kvm, samt matbod. I stue og kjøkken er det god plass til sittegruppe og spisebord. Utgang til solrik terrasse med flott utsikt og god plass til hagemøbler. Store vinduer gir rikelig med lysinnslipp og en god romfølelse.

Kjøkken
Det blir levert moderne og flott kjøkkeninnredning fra Drømmekjøkken, type Primo iht. tegning. Her får du rikelig med skap- og benkplass. Hvitevarer som integrert oppvaskmaskin, platetopp med ventilasjon, stekeovn og kjøleskap/ frys medfølger. Laminat benkeplate. Kjøkkenet framstår som et godt samlingspunkt i en travel hverdag. Her ligger alt til rette for matlaging og sosialt. God plass til spisebord i tilknytning til kjøkken.

Soverom
Boligene er godt tilrettelagt med gjennomtenkte planløsninger og 3 til 4 soverom. Hovedsoverommet får i begge boliger en-suite løsning med garderoberom og eget baderom.

TV-Stue
Det er også egen tv-stue/ all rom i 1. etasje på hhv. 9,5 kvm eller 19 kvm avhengig av bolig. Fra bolig 2 er det fra tv-stue utgang til hage. Perfekt for både store og små.

Baderom
Begge boliger har to baderom.
Alle baderom leveres helfliset med fliser til kr. 350 kr per kvm inkl. mva. Fliser i størrelse inntil 60 x 60 cm og nedsenket dusjsone er inkludert i pris. Baderomsmøblement med innredning, speil og belysning. Det blir levert vegghengt wc, dusjgarnityr og dusjvegger i glass. Varmekabler i gulv på baderom.

Vaskerom
Det er eget vaskerom/ teknisk rom i boligene på 6,9 og 6,1 kvm På vaskerom er det også opplegg for teknisk rom.

Trapp
Trapperingen type Salvi 180 grader repotrapp.

Overflater
Overflater leveres ferdig sparklet og malt. Flott laminat fra Kàhrs, type luxury tiles på gulv. Det blir levert fliser i gulv på entrè og baderom til kr. 375,- per kvm inkl. mva.

Oppvarming
Varmekabler i baderom. Peisovn i 2. etg (valgfri model med innvendig pipeløp) inntil til verdi av kr. 25.000,-inkl. mva Mulighet for vannbåren varme mot ekstra kostnad. Balansert ventilasjon med varmegjennvinning.

For mer informasjon se leveransebeskrivelse vedlagt i prospekt.

En prosjektert bolig åpner muligheten for individuell tilpassing for at du kan gi din nye bolig det uttrykket du selv ønsker. Samtidig vil du med kjøp av ny bolig få lav dokumentavgift, lave vedlikeholdskostnader og frigjøre tid til alt du egentlig ønsker å bruke fritiden din på. Eiendommen oppføres iht. TEK17 med gjennomgående gode kvaliteter og leveres nøkkelferdig til kjøper!

Fordeler med nybygg:
- Alt er nytt
- Lavere driftskostnader
- Lovfestet garanti på fem år sikrer utbedring av eventuelle feil og mangler
- Lave omkostninger
- Mulighet til å tilpasse boligen
- Minimalt vedlikehold - trenger ikke å pusse opp
- En god investering
- Ingen stressende budrunder
- God teknisk standard

Ta kontakt med megler ved spørsmål
Andreas Tveit
Prosjektmegler
tlf. 908 25 130

Beliggenhet

Nærområdet byr på mange aktiviteter, med Åstveit stadion, svømmehall, treningssenter og flotte turmuligheter. Badeplasser og friluftsområder er også lett tilgjengelige. God kollektivtransport sikrer enkel tilgang til Åsane og Bergen sentrum.

Garasje/parkering

Parkering i garasje. Forøvrig biloppstillingsplass på felles tomt.

Konstruksjon

2.0 Tømrer- og Snekkerarbeider
2.1 Yttervegger
2.1.1 På murkrone leveres:

Fugemasse under svillmembran
Svillmembran
48 x 198 mm svill
Svillen forankres forskriftsmessig til mur sammen med kantplate/bjelke

2.1.2 Yttervegg (fra innside til ytterside):

13 mm gipsplate
70 mm isolasjon (kvalitet 34)
48 x 68 mm innvendig påforing
0,20 mm diffusjonstett plastfolie
200 mm isolasjon (kvalitet 34)
48 x 198 mm bindingsverk
9 mm stormgipsplate (tapes i skjøtene)
Museband
23 x 48 mm luftelekt
30 x 48 mm klemlekter
19 x 148 mm dobbelfalset kledning med spor - grunnet hvitmalt

2.1.4 Påforet grunnmur:

Påforing kun der dette er inntegnet
48 x 48/98 mm bindingsverk
50 100 mm isolasjon (kvalitet 34)
13 mm gipsplate (fuktbestandig på våtrom)
0,20 mm diffusjonstett plastfolie der påkrevd

2.2 Innervegger
2.2.1 Bærende innervegger:

48 x 98/148/198 mm bindingsverk
70 mm isolasjon (kvalitet 34)
13 mm gips på begge sider
På våtrom: rupanel og 13 mm gipsplate

2.2.2 Ikke-bærende innervegger:

48 x 98 mm bindingsverk
70 mm isolasjon (kvalitet 34)
13 mm gipsplater på begge sider

2.4 Takkonstruksjon
2.4.1 Generelt:

Prefabrikkerte takstoler eller taksperre
Påforing iht. energiberegninger
Dimensjonering etter tekniske forskrifter og snølast

2.4.2 Tekket papptak:

Sperretak fra Vestlandske Limtre AS
Skråstag og gaffelanker
Prefabrikkert selvbærende taksperr
Snøfangere iht. gjeldende krav
48 x 48 mm lekter
13 mm gipsplater

2.4.4 Takutstikk:

Gesimskasse iht. fasade

2.4.6 Limtredragere/ståldragere:

Glatthøvlet gran ubehandlet
Impregnert under balkong/terrasse
Synlige ståldragere og søyler kles inn

2.5 Balkong/Terrasse
2.5.1 Generelt:

Leveres iht. tegning
Dimensjonert etter tekniske forskrifter og snølast
Rekkverk: minimum 100 cm høyde
Fundamenter, betongsøyler og søylesko inngår

2.5.2 Til balkonger leveres:

Limtredragere og søyler
Impregnerte gulvbjelker
28 x 120 mm Royal impregnert terrassebord

2.6 Vinduer
2.6.1 Generelt:

Nordan vinduer
Aluminumsbekledd trevindu
Beslag, belistning og fuging i trevegg
Plugging og foring i murvegg

2.6.2 Vinduer i boligrom:

Minimum 3-lags energiglass
Isolert karm
Grunnet hvit (NCS S0502Y)
Gjennomsnittlig U-verdi: 0.85

2.7 Ytterdører og Porter
2.7.1 Hoveddør:

Hvitmalt, utadslående
Sylinderlås og vrider
Sidefelt inngår
Leveres fra Nordan (se vedlegg)

2.7.2 Balkongdør:

3-lags energiglass
Behandlet tilsvarende vinduer

2.8 Innerdører
2.8.1 Hele huset:

Formpresset, fabrikkmalt i hvit
Dørvridere inngår

2.9 Kjøkken, Bad og Garderobeinnredning
2.9.1 Kjøkkeninnredning:
Leveres iht. vedlegg

2.10 Innvendige Trapper
2.10.1 Generelt:
Tilpasses på stedet
Åpne trapper uten stusstrinn
Produseres iht. forskrifter
Returgelender: enkelt spilegelender

2.10.2 Hovedtrapp:
Leveres iht. vedlegg fra Trapperingen

2.11 Foringer og Belistning
2.11.1 Generelt:

Foringer i gips
Vindu/dørlister: 12 x 58 mm, ferdig malt
Gulvlister: 12 x 58 mm, ferdig malt
Synlige spikerhull

2.12 Diverse
2.12.1 Ikke medtatte leveranser:

-Badstueinnredning
-Kjølehjørne
-Kjølerominnredning
-Stiplede vegger og innredninger
-Vaskerom- og baderomskap
-Garderobeskap
-Hyller i stue
-Sentralstøvsuger

3.0 Blikkenslager- og Ventilasjonsarbeider
3.1 Blikkenslager
3.1.1 Takrenner og nedløp:

Nedløpsrør avsluttes ca. 150 mm under kledning
Renner og overgangsbeslag vegg/tak
Beslag rundt vinduer/dører
Beslag under og over vannbord

3.2 Ventilasjon
3.2.1 Balansert ventilasjon:

Leveres og monteres
Innkassing av synlige kanaler kan forekomme

Organisasjonsform

Boligene vil bli organisert som et sameie.

Prisinformasjon

Se gjeldene prisliste.

Betalingsbetingelser

Ved kontraktsinngåelse skal 10% av kjøpesummen være innbetalt til meglers klientkonto som forskudd. Dette beløpet skal være fri egenkapital/ubundne midler. Første del av kjøpesummen innbetales når selger har frafalt sine forbehold. Resten av kjøpesummen og omkostninger forfaller til betaling ved overtagelse.

Kjøper er ikke forpliktet til å innbetale noen del av kjøpesummen før utbygger har stilt garanti etter bestemmelsene i bustadoppføringslovas §12.

Tomt

Tom er felles eiet. Det tas forbehold om avvik fra størrelse da tomt ikke er fradelt. Deler av tomt blir natur tomt, noe jordet og plen. Deler av front parti ved garasje blir gruset. Kfr. megler for mer informasjon.

Oppvarming

Varmekabler i gulv på baderom. Peisovn i stue 2. etg. Balansert ventilasjon.

Energimerking

Energiattest er ikke beregnet og vil foreligge ved ferdigstillelse av bolig.

Sentrale lover

Boligene selges til forbrukere i henhold til Bustadoppføringslova, til andre kjøpergrupper gjennomføres salget etter bestemmelsene i Avhendingslova. Etter at boligene er ferdigstilte selges boligene etter Avhendingslova til både forbrukere og næringsdrivende.

Adgang til utleie

Boligen er en selveiende bolig i et eierseksjonssameie og kan fritt leies ut. Årsmøtet kan beslutte vedtektsendring som endrer på dette.

Korttidsutleie av hele boligseksjonen i mer enn 90 døgn årlig er ikke tillatt. Med korttidsutleie menes utleie i inntil 30 døgn sammenhengende. Grensen på 90 døgn kan fravikes i vedtektene og kan i så fall settes til mellom 60 og 120 døgn. Slik beslutning krever et flertall på minst to tredjedeler av de avgitte stemmene på årsmøtet.

Hvitvaskingsregelverk

Eiendomsmeglere er underlagt lov om hvitvasking og er forpliktet til å rapportere til Økokrim om mistenkelige transaksjoner. Lov om hvitvasking innehar også strenge regler om gjennomføring av nødvendige kundetiltak fra alle parter i handelen, herunder, selger, kjøper og fullmektiger for disse. Dersom eiendomsmegler ikke får utført slik kontroll, plikter eiendomsmegler å avstå fra å gjennomføre oppdraget/handelen.

Budgivning

Bud kan legges ved å fylle inn budskjema som finnes i salgsoppgaven eller ved å gå inn på nettannonsen på "gi bud knappen". All budgivning må foregå ved skriftlighet. Ikke nøl med å ta kontakt dersom det er behov for bistand for å gi bud.

Fremdriftsplan og ferdigstillelse

Antatt byggetid er estimert til 12 måneder fra byggestart. Det foreligger rammetillatelse til oppføring av bolig. Antatt ferdigstillelse er fastsatt til 1. kvartal 2027.

Ansvarlig megler

Andreas Tveit

Nærområdet

Annonseinformasjon

FINN-kode427796928
Sist endret19. des. 2025 08:12
Referanse81255030

Rapporter annonse

Annonsene kan være mangelfulle i forhold til lovpålagt opplysningsplikt. Før bindende avtale inngås oppfordres interessenter til å innhente komplett informasjon fra meglerforetaket, selger eller utleier.