Bildegalleri
Øvre Skålmyrvegen
2 lekre og hytter under oppføring fra Rindalshytter med meget god beliggenhet på Hafjell- Flott utsikt - Ski in & out
Prisantydning
6 900 000 kr
Prosjektets status
Planlegging
Igangsetting våren 2025
Salgsstart
Høsten 25
Byggestart
Er igangsatt
Overtakelse
7-10 mnd etter platen er støpt
Nøkkelinfo
- Boligtype
- Andre
- Soverom
- 4
- Internt bruksareal
- 102 m² (BRA-i)
- Bruksareal
- 107 m²
- Eksternt bruksareal
- 3 m² (BRA-e)
- Eieform
- Eier (Selveier)
Fasiliteter
Enheter i prosjektet
Sorter etter
| Enhet | BRA-i | Soverom | Totalpris |
|---|---|---|---|
| 1 | 102 m² | 4 | 6 922 990 kr |
| 2 | 102 m² | 4 | 6 922 990 kr |
Beskrivelse
Velkommen til Øvre Skålmyrvegen på Øvre Høghaugen! Dette er et nytt område i Hafjell med en attraktiv og usjenert beliggenhet ca 700 moh. Her vil du få følelsen av ro og fred i et hyttefelt hvor det er rikelig med plass mellom hyttene. Tomtefeltet ligger vestvendt på en høyde hvor begge hyttene får flott utsikt og meget gode solforhold.
Det er etablert tilfartsløype på nedsiden av tomten til et av landet beste alpinanlegg. Tilfartsløypene går rett på nedsiden av denne tomten. Det er noe variert helling på disse og man må regne med noe staking enkelte steder.
Hytta vil også få ski in & out for langrenn, via samme tilfartsløype. Dette gir en enkel tilgang til Norges største og beste løypenett med mer enn 800 km oppkjørte langrennsløyper.
Anlegget har 15 skiheiser, 31 nedfarter, en av landets mest anerkjente terrengparker for snowboard/ski og Hafjell Bike Park.
Kort vei også til Gaiastova, Ilsetra og Pellestova med restauranter, kafè, afterski, skiutleie, dagligvarebutikk og sportsbutikk.
Det er få kilometer ned til Øyer sentrum med dagligvare, sportsbutikk, hoteller, "Lilleputthammer" m.m.
Ca 8 km til Hafjell golfbane. Kort kjørevei til Hunderfossen Familiepark med attraktive severdigheter og aktiviteter for hele familien. Ca 20 minutters kjøring til hyggelige Lillehammer sentrum.
Hyttene vil få en god og gjennomført standard og vil inneholde:
1 etg:
Utvendig sportsbod. Romslig gang med trapp opp til 2 etg. 2 bad. Det ene med badstue. Romslig kjøkken/stuedel
2 etg:
2 soverom og stue
Beskrivelse tomt:
Hyttene vil få felles tomt. Hyttene skal seksjoneres slik at hver hytte får et eget seksjonsnummer
Om ønskelig kan det være mulig å komme inn i ferdigbygde hytter fra Rindalshytter for å se nærmere på standard og utførelse.
Om prosjektet
Øvre Skålmyrvegen
Beskrivelse
Prosjektet består av 2 lekre prosjekterte hytter fra Rindalshytter som nå bygges på en flott utsiktstomt i Øvre Skålmyrvegen, tomt 12, på Hafjell (Sør).
Prisantydning for hytte nord kr. 6.900.000,- + omk
Prisantydning for hytte sør kr. 6.900.000,- + omk
Beliggenheten/området
Destinasjon
Dette er et nytt område i Hafjell med en attraktiv og usjenert beliggenhet ca 700 moh. Her vil du få følelsen av ro og fred i et hyttefelt hvor det er rikelig med plass mellom hyttene. Tomtefeltet ligger vestvendt på en høyde hvor begge hyttene får flott utsikt og meget gode solforhold. Dette er en fantastisk plass for å samle familie og venner - både for aktive og late dager, sommer som vinter.
Det er etablert tilfartsløype på nedsiden av tomten til et av landet beste alpinanlegg. Tilfartsløypene går rett på nedsiden av denne tomten. Det er noe variert helling på disse og man må regne med noe staking enkelte steder.
Hytta vil også få ski in & out for langrenn, via samme tilfartsløype. Dette gir en enkel tilgang til Norges største og beste løypenett med mer enn 800 km oppkjørte langrennsløyper.
Anlegget har 15 skiheiser, 31 nedfarter, en av landets mest anerkjente terrengparker for snowboard/ski og Hafjell Bike Park.
Kort vei også til Rakkelhanen, Gaiastova, Ilsetra og Pellestova med restauranter, kafè, afterski, skiutleie, dagligvarebutikk og sportsbutikk.
Det er få kilometer ned til Øyer sentrum med dagligvare, sportsbutikk, hoteller, "Lilleputthammer" m.m.
Ca 8 km til Hafjell golfbane. Kort kjørevei til Hunderfossen Familiepark med attraktive severdigheter og aktiviteter for hele familien. Ca 20 minutters kjøring til hyggelige Lillehammer sentrum.
Adkomst
Fra E6, ta av ca 10 km nord for Lillehammer ved skilt Hafjelltoppen. Følg videre skilting mot Hafjelltoppen. Passer bommen og følg denne veien oppover. Ta til høyre inn på Rundmyrvegen og umiddelbart til høyre. Følg den nye veien til tomten som ligger på nedsiden av veien og er skiltet med Til salgs-skilt Privatmegleren.
Vei, vann, avløp/kloakk
Offentlig tilknyttet vann og avløp, privat vei.
Leveransebeskrivelse
Kjøkken
Kjøkken fra Sasso i grå utførelse med sort htl 12 mm laminat benkeplate og Siemens hvitevarer.
Baderom
BAD 1
Baderomsmøbel med sort utførelse med slette fronter og speil med lys. Steinvask. Downlights i himling. Sort ettgreps servantbatteri. Sort rainshower dusj med hånddusj. Sorte innfellbare dusjvegger i glass. Vegghengt klosett av Porsgrund 7D med dempesete og trykkplate. Opplegg til vaskemaskin. Badstue med glassdør.
BAD 2
Baderomsmøbel med sort utførelse med slette fronter og speil med lys. Steinvask. Downlights i himling. Sort ettgreps servantbatteri. Sort rainshower dusj med hånddusj. Sorte innfellbare dusjvegger i glass. Vegghengt klosett av Porsgrund 7D med dempesete og trykkplate.
BOD/TEKNISK ROM
Bod/Teknisk rom med flislagt gulv. Varmtvannsbereder, VVS skap og sikringsskap. Utvendig inngang.
GARDEROBE
Det leveres ikke garderobeskap som standard. Mulig plassering av garderobeskap er stiplet på plantegning.
Byggemåte
Hver hytte utføres med støpt såle, grunnmur og bærekonstruksjon i tre og stål (enkelte ståldragere). Fasader utføres i vedlikeholdsvennlig kledning fra Møre Royal (farge Setersort). Krympesprekker kan forekomme. På terrasser leveres tregulv. Innvendige vegger utføres med stenderverk og stående panel. Innervegger blir isolert med mineralull. Yttertak er levert i royalimpregnert tretak (Møre Royal i fargen Setersort).
Innvendig leveranse/standard
INNVENDIGE MATERIALVALG
Gulv: Alle rom med unntak av gang, bad og bod/teknisk rom blir levert med Hardwood Type Larvik 3.0 XXL fra Bjelin (eller tilsvarende)
Det blir keramiske fliser i format 60x60 cm i gang.
På badene blir det keramiske fliser 60x60 på gulv. I nedsenket sone i dusj blir det levert tilsvarende flis i et mindre (5x5 cm) flisformat. På vegger blir det levert en kombinasjon av keramiske fliser (60x60) og stående beiset glatt panel. I bod/teknisk rom blir det keramiske fliser i format 30x60 på gulv og trekledning på vegger.
Vegger: Alle innvendige vegger med unntak av bad blir levert med stående glatt panel. På bad blir det levert en kombinasjon av keramiske fliser (60x60) og stående beiset glatt panel.
Himlinger: Brunbeiset panel i alle etasjer. Rørføringer blir i all hovedsak skjult bak innkassinger og som helt eller delvis i nedforede himlinger, fortrinnsvis i gang, bad og over kjøkkenskap. Dragere blir kasset inn med panel eller beises i samme farge som resten av taket.
Innvendige dører
Innvendige dører type Scanflex Trend 1, med glass mellom stue/gang og ellers uten glass i øvrige rom. Dør blir levert med dempelist, sorte karmer og dørvridere i sort utførelse av typen Scanflex.
VINDUER/VINDUSDØRER
Dører og vinduer i tre med energiglass i henhold til forskriftskrav. Vinduer blir levert ferdig malt fra fabrikk i sort farge
HOVEDINNGANGSDØR
Slett hovedinngangsdør i sort farge av typen Harmonie Strand.
LISTVERK
Alt listverk/gerikter rundt gulv, tak, vinduer og dører blir levert ferdig behandlet fra fabrikk i samme farge som panel.
TRAPPER
Det er levert trapp i sort farge. Vanger blir levert i sort utførelse.
DIVERSE UTSTYR
Brannslukkingsutstyr og røykvarslere blir levert i henhold til forskriftskrav. Hytta får frostsikker utvendig vannkran (kaldtvann). Varmtvannstank på 200 liter vil bli plassert i bod/teknisk rom.
VENTILASJON/OPPVARMING/PEISOVN
Det blir levert naturlig ventilasjon i boligen. Det blir levert varmekabler i gang og baderom. Peisovn av typen Jøtul F 373 Advance eller tilsvarende med sort pipeløp. Det leveres ikke panelovner.
ELEKTRISK
Elektrisk anlegg ligger generelt skjult i boligen, bortsett fra enkelte fremføringer til lys og stikk under overskap på kjøkken, stikk over servanter og i boder, samt kabelføringer langs yttervegger og vegger med lyd og brannkrav.
Det blir montert stikkontakt forberedt for vaskemaskin og tørketrommel. Alle rom får stikkontakter og lampepunkter etter NEK400:2018. Alle stikkkontakter og brytere blir levert i sort SG utførelse. Det blir levert utelys til hytta. Det blir levert sorte LED downlights i himling i gang 1. etasje og på begge baderom.
Det blir opplegg for fremføring av strøm til El-bil lader
Det blir lagt varme (-folie) i gulvet i stue/kjøkken-del.
TV/RADIO/TELEFON
Det blir levert fremføring med trekkerør for totalt 1 tv uttak.
EL-SKAP
Strømskap blir plassert på fasaden, i tillegg til sikringsskap inne i utvendig bod/teknisk rom.
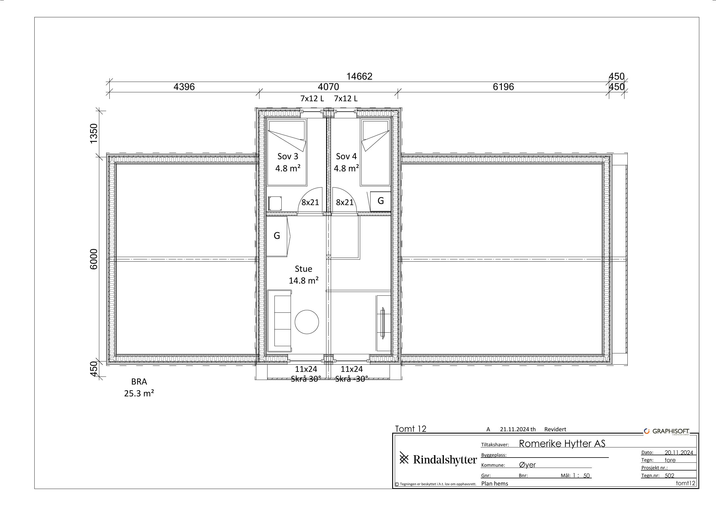
Plantegninger
Arealangivelser
Arealbegreper og arealmåling er iht. NS 3940:2023 fra Standard Norge. Arealene på tegninger og i prislisten er angitt i:
BRA (boligens bruksareal).
BRA-i (boligens interne bruksareal).
BRA-e (eksternt bruksareal). Areal av alle rom utenfor boenheten(e) og som tilhører denne, eksempelvis boder.
BRA-b (innglasset balkong). Areal av innglasset balkong, veranda eller altan når denne er tilknyttet boenheten.
TBA (tilleggsareal balkong). Areal av terrasser, åpne balkonger og åpen altan tilknyttet boenheten (dette er ikke en del av BRA).
Salgsoppgave/nøkkelinformasjon
Oppdragsnummer
Ansvarlig megler
Pål ThomasTrøseidEiendomsmegler MNEF / Partner
Eiendommens registerbetegnelse
Eierform
Eierseksjon
Tomt
Eiet fellestomt på 1170,8 kvm. Tomten er opparbeidet med stedlige masser og oppsinglet gårdsplass. Hyttene vil få felles tomt og skal seksjoneres slik at hver hytte får et eget seksjonsnummer.
Innhold
Hyttene vil få en god og gjennomført standard og vil inneholde:
1 etg:
- Utvendig bod/teknisk rom.
- Gang med trapp opp til 2 etg.
- 2 bad. Det ene med badstue og opplegg vaskemaskin.
- Kjøkken/stuedel.
- 2 soverom.
2 etg:
- 2 soverom.
- Loftsrom med utsikt.
Arealangivelser
1 etg: BRA: 81,7 BRA-i: 77,3 BRA-e: 3,8
2.etg: BRA: 25,3 BRA-i: 25,3 BRA-e: 0
SUM: BRA: 107 BRA-i: 102,6 BRA-e: 3,8
Areal terrasse TBA ca. 18 kvm
Parkering
Godt med parkeringsareal på gårdsplass.
Fremdrift
Stipulert overtagelse:
Sen høst/tidlig vinter.
Selger skal varsle overtakelsesmåneden minst tre måneder før overtakelse. Det eksakte overtakelsestidspunktet skal gis med minst seks ukers varsel, og skal ligge innenfor ferdigstillelsesintervallet som ble varslet i henhold til avsnittet over.
Selger kan kreve overtakelse inntil seks måneder før det
opprinnelige ferdigstillelsesintervallet. Selger skal i så fall
skriftlig varsle om dette minimum tre måneder før den nye overtakelsesdatoen. Ved forsinkelse beregnes det dagmulkt fra den nye overtakelsesdatoen.
Endringer i fremdrift pga. kjøpers endrings- eller tilleggsbestilling skal varsles kjøperen umiddelbart.
Ferdigattest/midlertidig brukstillatelse
Midlertidig brukstillatelse vil foreligge ved overtakelsen. Kjøper plikter å overta boligen mot midlertidig brukstillatelse. Utbygger har ansvaret for å innhente ferdigattest på hyttene.
Seksjonering
Seksjoneringsvedtaket kan bli tinglyst etter overtakelse. Kjøper plikter å overta boligen selv om seksjoneringen ikke er tinglyst. Kjøpesummen skal i så fall stå på klientkonto hos megler og kan kun utbetales til selger mot fremlagt garanti tilsvarende hele kjøpesummen.
Oppvarming og ventilasjon
Det leveres varmekabler i gang og baderom og det blir lagt varme (-folie) i gulvet i stue/kjøkken-del. Peisovn av typen Jøtul F 373 Advance eller lignende med sort pipeløp. Det leveres ikke panelovner.
Energimerking
Energiattest for hyttene vil bli utstedt i forbindelse med overtakelsen. Boligene energimerkes iht. gjeldende forskrifter. Det er en forutsetning at boligene energimerkes for å få ferdigattest.
Vann/avløp
Offentlig tilknyttet.
Offentlig plan/regulering
Eiendommen inngår i reguleringsplanen for Høghaugen Øvre - Hafjell som ble sist revidert av Øyer kommune 09.03.2023. Rammetillatelsen for Øvre Skålmyrvegen Gnr 4 Bnr 131 er vedtatt og IG er gitt. Området er i stor utvikling og det må påregnes byggeaktiviteter i årene som kommer. Destinasjonen består av flere delområder. Flere av delområdene er ikke ferdig regulert. Kommunedelplan Øyer Sør er under revisjon.
Rettigheter og tinglyste forpliktelser
2025/603263-1/200 30.05.2025 21:00 BESTEMMELSE OM MEDLEMSKAP I VELFORENING/HUSEIERFORENING
- Forpliktelse til vedlikehold av infrastruktur GJELDER DENNE REGISTERENHETEN MED FLERE
2025/603334-1/200 30.05.2025 21:00 BESTEMMELSE OM BEBYGGELSE
- Rettighetshaver: RINDALSHYTTER AS ORG.NR: 984 057 091 Kan ikke sette opp hytter fra andre leverandører uten samtykke fra rettighetshaver GJELDER DENNE REGISTERENHETEN MED FLERE
2021/1306785-1/200 19.10.2021 14:13 REGISTRERING AV GRUNN
- Denne matrikkelenhet utskilt fra: KNR: 3440 GNR: 4 BNR: 117 ELEKTRONISK INNSENDT
Kjøper er gjort kjent med at det kan bli stiftet en velforening som skal sørge for brøyting og vedlikehold av veiene i området rundt eiendommene og tomtene, samt andre fellesoppgaver som det er naturlig at en velforening håndterer. Kjøper aksepterer at tomtene skal ha pliktig medlemskap i den eventuelle velforeningen. Kjøper er kjent med at pliktig medlemskap i velforeningen for tomtene vil bli tinglyst i forbindelse med tinglysing av skjøtet og at velforeningsavgiften blir fakturert den enkelte kjøper.
Kjøper er kjent med at det kan bli aktuelt at eiere av hyttetomter på eiendommene skal delta i drift og vedlikehold av skiløypetrase som går gjennom området og som vil knytte området til det øvrige løypenettet. Kjøper plikter å ta del i og dekke forholdsmessige kostnader for slik drift og vedlikehold dersom det blir aktuelt. Denne plikten vil bli tinglyst i forbindelse med tinglysing av skjøtet.
Kjøper er gjort kjent med at det er beiterett i området rundt eiendommene og at det kan forekomme streifende beitedyr på tomtene.
Forsikring
Selger holder eiendommen forsikret i byggetiden. Kjøper må ved overtakelse tegne egen forsikring for hytte og innbo.
Formuesverdi
Formuesverdien er foreløpig ikke fastsatt. Formuesverdien fastsettes av Skatteetaten etter en beregningsmodell som tar hensyn til om hytta er en såkalt «primærbolig» eller «sekundærbolig». Kontakt megler for mer informasjon.
Konsesjon, odel
Det kreves at kjøper(e) signerer på egenerklæring for konsesjonsfrihet på skjema SLF-0356 B. (0-konsesjonsgrense). Dette er et krav fra Øyer Kommune.
Boplikt
Det er O-konsesjon i Øyer kommune. Ingen boplikt på fritidsbolig.
Adgangen til utleie av hele eller deler av eiendommen
Ingen restriksjoner
Organiseringen av eierseksjonssameiet/borettslaget
Hyttene har felles tomt som blir seksjonert slik at hver hytte får tildelt et eget seksjonsnummer. Det opprettes et eierseksjonssameie bestående av disse to hyttene. Vedtekter blir opprettet i forbindelse med seksjonering.
En sameier eier en andel i eiendommen, med tilknyttet enerett til bruk av sin bruksenhet, jf. eierseksjonsloven § 25.
Kjøpesum og omkostninger
Det skal i tillegg til kjøpesummen betales følgende:
Dokumentavgift til staten av andel tomteverdi 2,5 % (900.000,-) kr.22.500,-
Tinglysningsgebyr for skjøte kr 545,-
Tinglysningsgebyr og attestgebyr pr. panterettsdokument kr 545,-
Betalingsplan:
Kjøper skal innbetale et forskudd for hytta forbindelse med kontraktsinngåelsen, men ikke før selger har stilt garanti etter bustadoppføringslova § 12.
Innbetalingen må være fri egenkapital. Beløpet blir stående på meglers klientkonto frem til overskjøting, med mindre selger stiller garanti etter bustadoppføringslova § 47.
Frem til garanti etter bustadoppføringslova § 47 stilles, anses beløpet som et depositum iht. bustadoppføringslova § 46 (2). Ved utstedelse av forskuddsgaranti utbetales beløpet av megler til selger. Renter på klientkonto tilfaller kjøper frem til garanti etter § 47 er stilt, eller seksjonen er overskjøtet, forutsatt at de overstiger et halvt rettsgebyr. Resterende del av kjøpesummen, tilvalg/endringer og kjøpsomkostninger innbetales til megler senest fem virkedager før overtakelsen. Selger forbeholder seg retten til å stille § 47-garanti også for sluttoppgjøret, altså i perioden fra overtakelse til tinglysing av skjøtet/den formelle hjemmelsovergangen.
Sluttoppgjøret betales i god tid før overtakelsen og eventuelt pantedokument skal være mottatt av megler for at overtakelsen kan gjennomføres. Det innebærer at sluttoppgjøret i sin helhet skal være kreditert meglers klientkonto for at kjøper skal anses for å ha betalt med befriende virkning.
Dersom forfallstidspunktet for hele eller vesentlige deler av kjøpesummen oversittes slik at oversittelsen betraktes som vesentlig kontraktsbrudd, har selgeren rett til å heve kjøpet etter bustadoppføringslova § 57.
Selger har ved vesentlig mislighold fra kjøper, som gir rett til å heve kontrakten, rett til å få dekket sitt dokumenterte tap og dokumenterte påførte kostnader gjennom dekningssalg. Ved heving som følge av kontraktsbrudd fra Kjøpers side vil Selger holde Kjøper ansvarlig for økonomisk tap og merkostnader som følge av hevingen. Selger har rett til dekning av sitt tilgodehavende i Kjøpers eventuelle innbetalinger.
Andre faste løpende kostnader
Det må påregnes kostnader til:
* Kommunale avgifter - ikke estimert da hyttene er under oppføring. Kommunale avgifter beregnes når hytta er oppført og faktureres hvert kvartal fra Øyer kommune.
* Pliktig medlemskap i Velforening ikke etablert pt.
* Fremtidig skiløypeavgift
* Forsikring (hus- og innboforsikring).
* Strøm - avhengig av forbruk. Ingen referanser da hyttene er under oppføring.
* Snøbrøyting/strøing kan bestilles via Hafjell Maskin om man ønsker det.
* Tv og internett Ktech.
* Ved.
Oppgjør
Oppgjøret foretas av Noroppgjør AS
Det er tinglyst et pantedokument med urådighet (sikringsobligasjon) som sikkerhet for partenes krav som følge av avtalen. I tillegg dekker sikringsobligasjonen meglers tilgodehavende iht. oppdragsavtalen.
Tilvalg og endringer
Avhengig av hvor langt byggearbeidet på hyttene har kommet kan det være mulighet for å benytte seg av tilvalgsmuligheter på de ulike elementene i hyttene. Det er ikke anledning til å flytte på tekniske installasjoner, som ventilasjonskanaler, elektriske installasjoner eller avløp og vanntilførsel. Det gis heller ikke anledning til å endre på utvendig fasade eller vindusform.
Inngås kjøpsavtale etter igangsetting av prosjektet, må interessent/kjøper være kjent med og akseptere at frister for tilvalg og endringer kan være utgått. Det må da tas forbehold i kjøpstilbudet dersom interessent/kjøper har ønske om tilvalg/endring som denne mener skal være mulig å få levert av selger.
Kjøper har ikke rett til å kreve utført endrings- eller tilleggsarbeid, herunder avbestillinger, som endrer selgers vederlag med mer enn 15 %, arbeider som vil føre til ulemper for selger som ikke står i forhold til kjøpers interesse i å få utført arbeidene, arbeider som hindrer rasjonell fremdrift, eller arbeider som berører rammetillatelsen. Det vises for øvrig til bustadoppføringslova § 9.
Garanti etter bustadoppføringsloven
Selger stiller garanti på 3 % av kjøpesummen som gjelder frem til overtakelsen, og garanti tilsvarende 5 % av kjøpesummen for reklamasjonsperioden på fem år etter overtakelsen, jf. bustadoppføringsloven § 12.
Unntatt fra dette er dersom kjøper er å anse som profesjonell part/næringsdrivende; da stilles det ikke garanti.
Det er tilstrekkelig at selger stiller garanti straks etter at selgers forbehold er bortfalt, jf. bustadoppføringslova § 12 niende ledd.
Dersom selger ønsker å få utbetalt beløp innbetalt av kjøper før hjemmelsoverføringen er tinglyst, stilles det garanti etter bustadoppføringslova § 47.
Selgers forbehold
Det er gitt IG på hyttene.
Det kan forekomme avvik mellom byggebeskrivelse og plantegninger. I slike tilfeller er det alltid byggebeskrivelse som er retningsgivende. Enkelte illustrasjoner i tegningsmaterialet kan vise forhold som ikke er i samsvar med leveranse, så som møblering, fargevalg, gulv, dør- og vindusform og bygningsmessige detaljer. Videre kan vindusplassering avvike noe fra de generelle planer, som følge av bl.a. den videre arkitektoniske detaljutformingen av bygget. Detaljprosjektering av tekniske føringer og installasjoner kan medføre mindre endringer som for eksempel en nedforing kasse for avløp.
Alle opplysninger i prosjektbeskrivelsen er gitt med forbehold om rett til, uten forutgående varsel, å gjøre endringer som er hensiktsmessige og nødvendige, uten å forringe den generelle standarden. Illustrasjoner i tegningsmaterialet, annonser og prospekt vil vise innhold som ikke er med i leveransen og er av illustrativ karakter. Eksempelvis kan dette være møblering, kjøkkenløsning, garderobeinnredning, fargevalg, blomsterkasser, beplantning, topografi, bygningsmessige detaljer: fasadedetaljer, detaljer på fellesarealet, materialvalg og farger. Det kan forekomme avvik mellom denne prosjektbeskrivelse og godkjente søknadstegninger. I slike tilfeller er det alltid godkjente søknadstegninger som er gjeldende. Detaljprosjektering av tekniske føringer og installasjoner kan medføre mindre endringer som utvidelse av vegger og nedforing av himlinger/innkassinger.
Selger tar forbehold om eventuelle skrivefeil i beskrivelsen.
Det presiseres særskilt at salgsprospektet ikke er bindende for hyttas detaljutforming og farger. Opplysninger gitt i salgsprospekt kan fravikes dersom selgeren anser det nødvendig eller ønskelig, men endringene skal
ikke ha innvirkning på forutsatt standard. Boligenes arealer er angitt så nøyaktig som mulig. Selger tar imidlertid
forbehold om mindre avvik/endringer. Prospektet må ikke brukes for nøyaktig måltaking. Dersom det er motstrid mellom leveransebeskrivelsen og tegninger skal leveransebeskrivelsen gå foran
Meglers rett til å stanse gjennomføringen av en transaksjon, tiltak mot hvitvasking m.v.
Iht. hvitvaskingsloven av 01. juni 2018 om hvitvasking og terrorfinansiering er megler pliktig til å gjennomføre legitimasjonskontroll av oppdragsgiver og kjøper. Reelle rettighetshavere skal også kartlegges. Dersom partene ikke oppfyller lovens krav til kundetiltak, kan megler ikke etablere kundeforholdet og heller ikke gjennomføre transaksjonen. Er det mistanke om at transaksjonen har tilknytning til utbytte av en straffbar handling eller forhold som rammes av straffeloven §§ 131 til 136A kan megler stanse gjennomføringen av transaksjonen. Megler kan ikke holdes ansvarlig for konsekvenser dette eventuelt medfører.
Finansiering
Som et av landets største finanskonsern tilbyr Nordea alle typer banktjenester til konkurransedyktige priser. Banken kan gi deg lånetilbud til finansiering av eiendommen. Våre meglere kan opprette kontakt mellom deg og bankens dedikerte kunderådgiver i dette prosjektet, og som kunde hos oss lover banken en hurtig behandling av din låneforespørsel.
PrivatMegleren mottar formidlingsprovisjon fra Nordea for formidling av lånekunder. Dette gjelder kun personer som har samtykket til å bli formidlet til banken. Provisjonen er en internavregning mellom enheter i konsernet som ikke gir økte kostnader for kunden. Den enkelte megler mottar ingen godtgjørelse relatert til kjøpers valg av finansiering, og mottar heller ingen godtgjørelse for formidling av kontakt til Nordeas lånekonsulenter.
Følgende dokumenter utgjør prosjektets salgsoppgave
. Leveransebeskrivelse som står beskrevet i salgsoppgaven
. Salgsoppgave
. Arkitekttegninger
. Reguleringsplan med bestemmelser.
. Servitutter
. Prosjektets standard kjøpekontrakt
. Bustadoppføringsloven
Bustadoppføringsloven og Servitutter er tilgjengelig hos megler.
Det gjøres oppmerksom på at papirutgaver av prospekt med
salgsoppgave og leveransebeskrivelse kan være redigert etter utskrift, og det oppfordres derfor til alltid å ta utgangspunkt i den digitale utgaven av prospekt og prisliste som finnes på prosjektets hjemmeside.
Viktige opplysninger
Hvorfor kjøpe ny bolig/fritidsbolig
Hvorfor kjøpe nytt?
Her er noen av grunnene:
1. Lav dokumentavgift og lave omkostninger
Vi vet at ekstrakostnader kan være en stor belastning ved boligkjøp. Ved kjøp av i sin helhet ny hytte som ikke er tatt i bruk er det lav dokumentavgift, som gir lave omkostninger, som gjør at du kan bruke pengene på det som virkelig betyr noe - ditt nye hjem og det du trenger for å komme i orden.
2. Personlig preg
Når du kjøper en ny prosjektert hytte får du muligheten til å sette ditt personlige preg på hytta innenfor gitte rammer. Enten det er valg av farger, innredning eller små detaljer, vil du kunne skape et hjem som reflekterer din stil og personlighet.
3. Lavere energiforbruk
Hyttene blir bygget med fokus på energieffektivitet, noe som gir deg lavere energiforbruk sammenlignet med å bo i en eldre bolig. Du kan dermed nyte en mer bærekraftig livsstil med lavere strømregninger.
4. Kvalitet og trygghet
Når du kjøper en ny hytte kan du være trygg på at du får høy kvalitet og gjennomgående god standard.
5. Vi hjelper deg gjennom kjøpet
Vi er med deg hele veien gjennom hyttekjøpet. Vårt erfarne team gir deg råd og veiledning, og hjelper deg med alt fra finansiering til overtakelse, så du kan føle deg trygg på at du gjør et godt valg.
6. Alt er helt nytt - ingen historie i veggene
Når du kjøper en ny hytte, er alt helt nytt. Det er ingen gamle historier i veggene - her kan du selv skape din egen historie og minner. Du får en hytte som er designet for moderne behov, og som har potensialet til å bli ditt perfekte sted på fjellet.
Beskrivelse
Arealer
Arealbegreper og arealmåling er iht. NS 3940:2023 fra Standard Norge. Arealene på tegninger er angitt i:
BRA (boligens bruksareal).
BRA-i (boligens interne bruksareal).
BRA-e (eksternt bruksareal). Areal av alle rom utenfor boenheten(e) og som tilhører denne, eksempelvis boder.
BRA-b (innglasset balkong). Areal av innglasset balkong, veranda eller altan når denne er tilknyttet boenheten.
TBA (tilleggsareal balkong). Areal av terrasser, åpne balkonger og åpen altan tilknyttet boenheten (dette er ikke en del av BRA).
Eierform
Eierseksjon
Om oppdraget
Oppdragsnummer
Ansvarlig megler
Nærområdet

PrivatMegleren Lillehammer
Annonseinformasjon
| FINN-kode | 425285242 |
|---|---|
| Sist endret | 04. sep. 2025 11:13 |
| Referanse | PFS-55251248 |
Annonsene kan være mangelfulle i forhold til lovpålagt opplysningsplikt. Før bindende avtale inngås oppfordres interessenter til å innhente komplett informasjon fra meglerforetaket, selger eller utleier.