Bildegalleri

Illustrasjon lignende bolig

Midtmoen

Duplo i Midtmoen på Vinstra

Midtmoen - 1 SOLGT Skap familiens drømmebolig sentralt på Vinstra - kort vei til skole og barnehage

Prisantydning

3 790 000 kr

Totalpris

3 797 270 kr

Kort om prosjektet

Midtmoen, Vinstra: Populær tomannsbolig med lave bokostnader – hvitevarer inkludert i leveransen. Ingen betaling før overtakelse + 200 000 i kommunal refusjon. Prisene på leilighet er endret grunnet økt utvendig bod med isolering. Det er også endret til betongplate i carport.

  • Planlegging

    2025

  • Salgsstart

    2025

  • Byggestart

    Februar/Mars 2026

  • Overtakelse

    2026

Nøkkelinfo

Boligtype
Tomannsbolig
Soverom
2
Primærrom
78 m²
Bruksareal
107 m²
Eksternt bruksareal
6 m² (BRA-e)
Eieform
Eier (Selveier)

Les mer om bruksareal her

Fasiliteter

Garasje/P-plass
Peis/ildsted
Balkong/terrasse
Kabel-TV
Bredbåndstilknytning
Sentralt
Balansert ventilasjon

Utvalgte enheter

Bilde av utvalgt enhet

9A

Midtmoen 9A

Totalpris

3 797 270 kr

P-rom

78 m²

2 soverom

Enhet i prosjektet

Sorter etter

Nedoverpil
EnhetP-romSoveromTotalpris
9A78 m²23 797 270 kr

Visning

Ta kontakt for å avtale visning.Visningspåmelding

Beskrivelse

Om prosjektet!

Midtmoen boligfelt ligger sentralt til på Vinstra, med kort vei til sentrumstilbud, skole og barnehage.

Her bor du i rolige omgivelser, med enkel adkomst til hverdagens gjøremål og fine turmuligheter i året rundt.

Om boligene

Er lavt strømforbruk viktig for deg?

  • Lavere strømutgifter hver måned gir mer rom i budsjettet – en bolig som "jobber for deg" økonomisk.
  • Jevn temperatur og bedre inneklima året rundt – takket være moderne isolasjon og ventilasjon.
  • Energieffektive boliger er mer attraktive i bruktmarkedet og står seg bedre over tid.


Andre kvaliteter ved boligene:

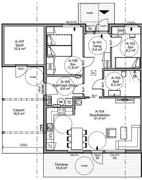
  • 2 soverom, bad med plass til vaskemaskin,
  • Åpen stue–kjøkkenløsning
  • Utvendig bod og biloppstillingsplass
  • Energikarakter B på nye boliger – kan kvalifisere til grønt boliglån
  • Trekkerør for bredbånd frem til yttervegg (installasjon bestilles av kjøper)

200 000 i kommunal refusjon – Nord-Fron

Nord-Fron kommune har en refusjonsordning som gir kjøpere av nye boliger 200 000 kroner i kostnadsreduksjon.

Du kan med andre ord trekke fra 200.000 kroner på oppgitt kjøpspris på disse boligene.

Ordningen gjelder etter kommunens regler og vilkår.

Ta kontakt for informasjon om hvordan du benytter dette ved kjøp av bolig på Midtmoen.

Viktige økonomiske fordeler

Hvitevarer er inkludert i prisen (kombiskap, komfyr og oppvaskmaskin)
Du betaler ingenting før overtakelse – gir forutsigbarhet
Lav dokumentavgift – kun 2,5 % av tomtepris (ikke av hele kjøpesummen)
Ingen oppussing – lave vedlikeholdskostnader fra dag én
5 års reklamasjonsrett – ekstra trygghet for deg som kunde

Derfor Midtmoen

  • Etablert og familievennlig boligfelt med gode solforhold
  • Kort vei til handel, idrett og fritidstilbud på Vinstra
  • Turstier, sykkelmuligheter og skiløyper i nærområdet


Meld interesse i dag for komplett salgsinformasjon, leveransebeskrivelse og planløsninger – og få veiledning til hvordan du søker kommunal refusjon på 200 000 kroner.

Det er mange fordeler ved å velge en ny bolig fra Nordbohus Innlandet

Å kjøpe ny bolig har mange fordeler.
Man kan skape nye tradisjoner i et hjem som ingen andre har bodd i før deg – det er noe spesielt ved det. Det er også en del økonomiske og tekniske fordeler ved å kjøpe ny bolig. Noen eksempler på dette er:

Det er trygt og forutsigbart: Vi er en aktør som har vært i markedet i nærmere 40 år. Vi har lang erfaring, god og solid økonomi, lokalt eierskap som er og alltid har vært opptatt av å levere som avtalt.

Ingen forhåndsbetaling:
Nordbohus Innlandet krever ikke noen forhåndsbetaling, noe som betyr at man bare betaler når man faktisk tar over boligen. Dette gir en økonomisk trygghet og tid til å forberede finansene. Lav dokumentavgift

Du betaler kun 2,5 % dokumentavgift av tomteprisen - ikke av hele kjøpesummen som ved kjøp av brukt bolig. Her kan det være titusener å spare.

Ingen oppussing:
En annen stor fordel er at utgiftene forbundet med oppussing er redusert, ettersom du slipper de løpende vedlikeholdsutgiftene som ofte følger med eldre boliger. Dette gir deg mer penger til overs til andre ting i livet.

Nytt og energisparende:
Energieffektivitet er en annen viktig fordel ved å kjøpe en ny bolig. Disse boligene er utformet for å minimere energiforbruk og kostnader knyttet til oppvarming, slik at du kan spare både penger og miljøet.

Bare nytt er nytt...
Det er noe eget forbundet med å bosette seg i et splitter nytt hjem. Et hjem som bare du og dine kjære har bodd i. Et nytt hus gir rom for dine kreative uttrykk og lar deg skape en plass som er genuint din.

Til slutt er en av de beste fordelene ved å kjøpe ny bolig det faktum at man har en reklamasjonsrettighet på fem år. Dette gir deg en ekstra trygghet når det gjelder boligens kvalitet.

Nærområdet

Annonseinformasjon

FINN-kode423063024
Sist endret29. jan. 2026 06:52
ReferansexMidtmoen 9 (151016)x

Rapporter annonse

Annonsene kan være mangelfulle i forhold til lovpålagt opplysningsplikt. Før bindende avtale inngås oppfordres interessenter til å innhente komplett informasjon fra meglerforetaket, selger eller utleier.