Bildegalleri

Velkommen til Hus 1 som er andre salgstrinn i prosjektet Kobberkvartalet! Bildet er kun ment som en illustrasjon, avvik kan forekomme.

Kobberkvartalet Salgstrinn 2 - Hus 1

NÅ BYGGER VI! Selveierleiligheter med gode planløsninger, solrike uteplasser, felleslokale og takterrasser.

Prisantydning fra

4 250 000 kr

Prisantydning til

12 750 000 kr

Totalpris fra

4 258 140 kr

Totalpris til

12 773 310 kr

  • Planlegging

    våren/sommeren 2025

  • Salgsstart

    mai 2025

  • Byggestart

    Vedtatt - tomten klargjøres nå

  • Overtakelse

    Antatt ferdigstillelse 2028

Nøkkelinfo

Boligtype
Leilighet
Soverom
1 - 3
Internt bruksareal
38 - 119 m² (BRA-i)
Bruksareal
40 - 124 m²
Eksternt bruksareal
2 - 5 m² (BRA-e)
Balkong/Terrasse
7 - 52 m² (TBA)
Eieform
Selveier

Les mer om bruksareal her

Fasiliteter

Heis
Takterrasse
Garasje/P-plass
Vaktmester-/vektertjeneste
Hage
Balkong/terrasse
Turterreng
Utsikt
Sentralt

Utvalgte enheter

Bilde av utvalgt enhet

1A205

Bergerveien 12

Totalpris

7 116 790 kr

BRA-i

84 m²

2. etasje3 soverom

Bilde av utvalgt enhet

1A503

Bergerveien 12

Totalpris

12 773 310 kr

BRA-i

119 m²

5. etasje3 soverom

Bilde av utvalgt enhet

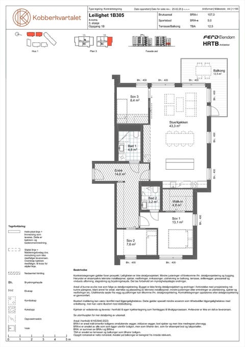
1B305

Bergerveien 12

Totalpris

8 820 990 kr

BRA-i

107 m²

3. etasje3 soverom

Enheter i prosjektet

Sorter etter

Nedoverpil
EnhetEtasjeBRA-iSoveromTotalpris
1A102192 m²37 668 290 kr
1A202292 m²37 868 290 kr
1A204257 m²25 361 790 kr
1A205284 m²37 116 790 kr
1A304357 m²25 411 790 kr
1A305384 m²37 216 790 kr
1A404457 m²25 511 790 kr
1A5035119 m²312 773 310 kr
1B2052107 m²38 720 990 kr
1B303338 m²14 258 140 kr
1B304339 m²14 308 440 kr
1B3053107 m²38 820 990 kr
1B401440 m²14 258 510 kr
1B403438 m²14 358 140 kr
1B404439 m²14 408 440 kr

Visning

onsdag, 29. april
17:00 – 18:00
Visningspåmelding

Beskrivelse

Velkommen til Kobberkvartalet, et hjem hvor moderne bekvemmelighet møter Billingstads rike industrihistorie og naturskjønne omgivelser. Her skaper Ferd Eiendom et levende nabolag for alle livets faser, et sted hvor du kan vokse, leke og leve.

Dette er salgstrinn 2, og består av 55 selveierleiligheter med både små og store leiligheter. Boligene selges til faste priser. Byggingen er igangsatt.

OM PROSJEKTET
Kobberkvartalet skiller seg ut med sin moderne storgårdsarkitektur, som er en videreføring av Billingstads industrihistorie. I Kobberkvartalet finner du et bredt utvalg av boligstørrelser fra 30 til 120 kvadratmeter. Her finner du også varianter med ekstra takhøyde i første etasje, private hager, og i senere salgstrinn særegne boliger "townhouse" over to etasjer med egen inngang. Utvalgte leiligheter har også utleiedeler.

På Kobberkvartalet finner du ditt ideelle hjem, uansett hvilket stadium i livet du befinner deg i. Her forenes moderne og varierte leiligheter med gode uteområder. I Kobberkvartalet blir hverdagen trygg og komfortabel, med butikker og naturen rett i nærheten, et sted som er perfekt for barnefamilier, voksne og for deg som elsker skog og sjø.

Uansett leilighetstype er du som beboer del av et fellesskap, med tilgang til en rekke fasiliteter: Romslige felleslokaler, smart gjesteleilighet og flotte takterrasser gjør både hverdagen enklere og festen morsommere. Interiøret i leilighetene er moderne og lyst, og skaper en lun og komfortabel følelse. I Kobberkvartalet får du et hjem som tilfredsstiller dagens krav og forventninger til en ny bolig.

Kobberkvartalet vil bestå av totalt 424 leiligheter fordelt på flere hus og kvartaler.

BELIGGENHET
Kobberkvartalet befinner seg i hjertet av Billingstad i Asker kommune, omkranset av naturskjønne omgivelser med nærhet til både skog og sjø. Med et rikt nettverk av turstier, skiløyper og innbydende badeplasser, er dette et godt sted å vokse opp, være voksen og bli gammel.

Med sin sentrale beliggenhet er Kobberkvartalet bare et steinkast unna et bredt utvalg av butikker, tjenester, og offentlig transport, noe som sikrer enkel tilgang til hverdagens gjøremål samt forbindelser til større urbane sentre. Kobberkvartalet er ikke bare et sted å bo; det er et sted å leve, utforske og vokse.

KVALITETER
KJØKKEN
Det leveres romslige kjøkkenløsninger. Kjøkkenet er i en delikat grønnfarge, Furu. Fargenyansen holder seg over tid, og er lett å kombinere med andre materialer og farger. Sammen med benkeplaten Delaware Stone, får kjøkkenet et moderne, men samtidig klassisk uttrykk.

Vi har plukket ut alternative kjøkkenfronter med forskjellig uttrykk for at du enkelt kan velge det som passer deg uten pristillegg. I tillegg til dette er det også mulig å velge farge på fliser på bad.

Kjøkkenfronten Strøm er en dyp blå farge i kombinasjon Benkeplaten Kandia Marmor gir kjøkkenet et tidløst design. Veggfargen Present som er en dempet, greige tone vil være en fin kontrast til kjøkkenfronten.

Et annet alternativ til kjøkkeninnredning er Korn. Dette er en jordlig og rolig beige farge som leveres med en benkeplate i varm eik. Veggfargen Present vil harmonere fint sammen med den behagelig fargen på innredningen.

BAD
Badene får et litt strammere design med hvit-beige fliser på gulv og vegg. Kombinert med det ovale lyssatte speilet og baderomsinnredningen i lys eik, vil badet få en delikat følelse.

Flisen Taupe har en mer rødlig undertone i det beige. Om du heller ønsker å gå mot en mer lunere stemning på badet, tilbys flisen Black som et alternativ.

Vegger og gulv
Alle vegger blir levert i fargen Present som standard. Fargen passer godt til listverk, vinduer og dører i fargen Klassisk hvit, og harmonerer med gulvet med sin hvitoljede eiketone. Fotlistene leveres i eik som er tilpasset gulvet.

ARKITEKTUR
Storgårds kvartal i grønne omgivelser.
Arkitektene i HRTB har som mål med Kobberkvartalet at prosjektet skal komplettere områdeutviklingen på Vestre Billingstad på en positiv måte og bygge videre på området som et attraktivt boligsted.

Vi har vært spesielt opptatt av overgangen mellom byggene og bakkeplan det er her livet mellom husene oppstår. En høy første etasje gir ekstra romhøyde til leilighetene på bakkeplan, og er kledd med panel som gir en enhetlig base og binder sammen kvartalet.

Bebyggelsen er i hovedsak puss med en enkel og stram detaljering, men har varierte høyder, innslag av karnapp og sprang i fasaden som skaper variasjon. I fargebruk og detaljering har vi latt oss inspirere av kobber som kvartalet har fått navn etter, med en fargepalett i grønt, aubergine og brunt med detaljer som lamper og skilt i kobberfarge, skal framstå som et helhetlig grep samtidig som det skal framheve det enkelte huset.

PARKERING OG SPORTSBOD
Det følger med én bod på minimum 2,5 kvm for boliger under 50 kvm og 5 kvm for boliger over 50 kvm.
Det medfølger rett til kjøp av parkeringsplass til leiligheter der dette er angitt i prislisten og i boligvelger.
Garasjeplass koster kr. 475 000,- som kommer i tillegg til kjøpesum for leilighet.

FREMDRIFT
Byggestart er vedtatt og overtagelse for hus 1 (salgstrinn 2) vil finne sted mellom 1. mars og 30. juni 2028. For hus 2 (Salgstrinn 1) er overtagelsen mellom 1. desember 2027 og 31. mars 2028.

ØKONOMI
FORSKUDD: Ved kontraktsinngåelse betales 100 000,- i forskudd. Om kjøper er juridisk person kan det stilles andre krav til sikkerhet.
Hovedoppgjør (rest kjøpesum, kjøpsomkostninger og eventuelle tilvalg) innbetales én uke før overtagelse.

KJØPSOMKOSTNINGER:
Dokumentavgift til staten vil utgjøre 2,5 % av andel tomteverdi.
Gebyr for tinglysning av skjøte, f.t. kr. 545,-. Tinglysningsgebyr for pantobligasjon i forbindelse med etablering av eventuelle lån, f.t. kr. 545,- pr. obligasjon. Det tas forbehold om endring av satsene for offentlige gebyrer og avgifter i tiden frem til hjemmelsovergang finner sted.

FELLESKOSTNADER
Kjøper plikter å betale sin andel av felleskostnader til sameiet fra overtakelse.
Budsjett over felleskostnader vedtas av styret forut for overtakelse. Felleskostnadene skal blant annet dekke kommunale avgifter, forsikring, forretningsførsel, revisjon, strøm og drift og vedlikehold av fellesarealer inne og ute og kontingent til Kobberkvartalet Huseierforening. Felleskostnader for ev. parkeringsplass er stipulert til å bli kr. 275,- per plass per måned. Se utkast til driftsbudsjett i salgsoppgaven.

Størrelsen på de faktiske utgiftene avhenger blant annet av hvilke ytelser og/eller tjenester sameiet rekvirerer.
I tillegg til felleskostnadene kommer følgende faste eierkostnader:
Strøm, innboforsikring og innvendig vedlikehold for den enkelte enhet
Kostnader knyttet til drift av evt. bildeling.
I tillegg kommer a-konto forbruk fjernvarme og varmtvann estimert til kr. 12,- per kvm BRA-i (BRA) pr måned.

LOVGRUNNLAG
Boligene selges iht. bestemmelsene i bustadoppføringslova til forbrukerkjøpere, herunder 5 års garanti iht. lovens §12. For øvrig gjelder eierseksjonsloven for sameiet og driften av dette.

Denne annonsen utgjør ingen fullgod eller uttømmende presentasjon av prosjektet/eiendommen. Det er derfor viktig at interessenter kontakter megler for å få tilsendt komplett salgsdokumentasjon og går nøye gjennom dette før inngivelse av kjøpetilbud.

Ansvarlig megler

Finn Bragnes

Nærområdet

Annonseinformasjon

FINN-kode409904283
Sist endret27. apr. 2026 08:04
Referanse20-25-5010

Rapporter annonse

Annonsene kan være mangelfulle i forhold til lovpålagt opplysningsplikt. Før bindende avtale inngås oppfordres interessenter til å innhente komplett informasjon fra meglerforetaket, selger eller utleier.