Bildegalleri

Boligen er under bygging.

Inaktiv
Lysehagen/ Lysekloster

Lysehagen - Tomt 44

Lysehagen/​ Lysekloster - Ingen forskudd! Ny og moderne enebolig med 4 sov, stor tomt, carport og solrik! Siste mulighet

Prisantydning

8 500 000 kr

Totalpris

8 537 340 kr

  • Planlegging

    Ferdig!

  • Salgsstart

    I salg!

  • Byggestart

    Bygging startet!

  • Overtakelse

    Antatt 1. kvartal 2026 / etter avtale

Nøkkelinfo

Boligtype
Enebolig
Soverom
4
Internt bruksareal
140 m² (BRA-i)
Bruksareal
145 m²
Eksternt bruksareal
5 m² (BRA-e)
Eieform
Eier (Selveier)

Les mer om bruksareal her

Fasiliteter

Garasje/P-plass
Hage
Balkong/terrasse
Turterreng
Utsikt

Utvalgte enheter

Bilde av utvalgt enhet

Bolig 1

Lysehagen - Tomt 44

Totalpris

8 537 340 kr

BRA-i

140 m²

1. etasje4 soverom

Enhet i prosjektet

EnhetEtasjeBRA-iSoveromTotalpris
Bolig 11140 m²48 537 340 kr

Visning

Kontakt megler på tlf. 908 25 130 for visningspåmelding. Ved ingen påmeldt til visning vil visningen bli flyttet eller avlyst.
Visningspåmelding

Beskrivelse

Eiendomsmegler Vest nybygg har gleden av å presentere Lysehagen nr. 44.

Her skal en ny og lekker enebolig på 162 kvm BRA over to plan bygges i barnevennlig og populært område. Boligen får et moderne og lekkert uttrykk med store vinduer, god takhøyde og flott utsikt. Planløsningen er gjennomtenkt med smarte løsninger, stor stue og kjøkkenløsning på 45 kvm, 4 soverom, tv-stue, to baderom og eget wc-rom. Det er en stor og romslig terrasse med flott utsikt over nærområdet og en solrik beliggenhet.
Her har du mulighet til å flytte rett inn og boligen leveres nøkkelferdig!

Hele kjøpesummen forfaller ved innflytting! Bygging pågår - tett hus! Siste mulighet for tilvalg/endring!

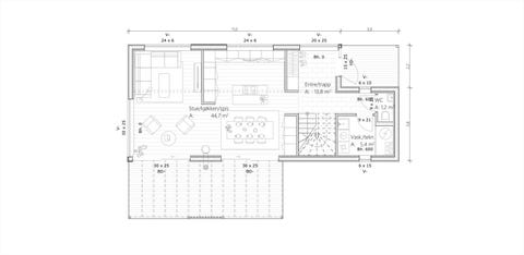
Arealer:
1. etg.
BRA-I: 67 kvm

2. etg:
BRA-I: 73 kvm
Ekstern sportsbod på 5 kvm

Totalt BRA-I: 145 kvm

I tillegg kommer carport på cirka 18 kvm BRA.

Boligen inneholder:
1. etg: Entrè/trapp, stor stue-kjøkkenløsning på 45 kvm, utgang til solrik markterrasse og hage, vaske-tekniskrom på 5 kvm, WC-rom.
2. etg: Gang/ trapp, 3 stk soverom på hhv. 8,5 kvm, bod på 2 kvm, master bedroom med walk-in-closet og baderom.

Parkering i carport med plass til en bil, samt en sportsbod på 5 kvm. Forøvrig er det god plass til parkering på egen tomt.

Litt om kvaliteter:
Hovedetasjen har en stor kjøkken og stueløsning på hele 45 kvm. Her er rikelig med plass til både TV-stue, sittegruppe, spisebord og et romslig kjøkken med praktisk kjøkken-øy. Boligen har store vindusflater som gir rikelig med lysinnslipp og skaper en god romfølelse. Stue- kjøkkenløsningen er romslig og kan enkelt deles inn i ulike soner. Her er det god plass til tv-stue, sittegruppe og ellers ønsket møblement. Fra stue/ kjøkken er det utgang til solrik terrasse rikelig med plass til hagemøbler og grill. Perfekt på varme og sene solskinnsdager!

Kjøkken
Det blir levert moderne og flott kjøkkeninnredning fra Drømmekjøkken, type Primo med kashmir utførelse. Her får du rikelig med skap- og benkplass, samt praktisk kjøkken-øy. Kjøkkenet har integrerte hvitevarer som oppvaskmaskin, ventilert platetopp, stekeovn og kjøleskap/ frys medfølger. Kjøkkenet framstår som et godt samlingspunkt i en travel hverdag. Her ligger alt til rette for matlaging og kunne vise frem kokkeferdigheter for familie og venner. Kjøkkenøyen skaper en sosial atmosfære, og har en åpen tilknytning mot spisegruppen.

Soverom
Det er totalt 4 soverom i boligens hoveddel på hhv. 9,4 kvm, 8,5 kvm, 8,5 kvm og 8,5 kvm. Master soverom får eget baderom på 5 kvm og et romslig walk-in-closet på 6 kvm. Det medfølger hvit innredning med hyller og klesstang på walk-in-closet fra Drømmekjøkkenet.

Baderom
Alle baderom leveres helfliset med fliser til kr. 250 kr per kvm inkl. mva. Fliser i størrelse inntil 20 x 20 cm og nedsenket dusjsone er inkludert i pris. Baderomsmøblement med innredning fra Vikingbad, type Eli 60 cm og 120 cm og speil/ belysning. Det blir levert vegghengt wc og regndusj samt varmekabler i gulv på baderom.

Det er også eget praktisk wc-rom i 1. etasje med vegghengt wc og servant. Fliser på gulv.

Vaskerom
Det er eget vaskerom i 1. etasje på 5,4 kvm med skyllekar og blandebatteri. Her er det lett å henge fra seg vått yttertøy. Det blir levert baderom innredning på vaskerom fra Drømmekjøkkenet iht. tegning.

Overflater
Overflater leveres ferdig sparklet og malt. Det blir levert listfritt mellom løsning tak/vegg og mot vinduer. flott parkett på gulv. Det blir levert fliser i gulv på entrè, baderom, wc-rom, Vask/tekniskrom. Det blir levert spotlights i deler av bolig iht. elektro leveranse.

Oppvarming
Balansert ventilasjon med varmegjennvinning med avtrekk fra kjøkken, vaskerom og bad m.m. tilluft til stue og soverom. Varmekabler i gulv på baderom, entrè, stue/ kjøkken i 1. etg. Mulighet for vannbåren varme mot ekstra kostnad (tilvalg).

Elektro leveranse:
13 stk downlights iht. elektroplan
- 6 stk lampepunkt på vegg (eksklusive lampe)
- 16 stk lampepunkt tak (eksklusive lampe)
- Varmekabler i gulv på baderom, entrè, stue/ kjøkken

Se leveransebeskrivelse for mer informasjon.

En prosjektert bolig åpner muligheten for individuell tilpassing for at du kan gi din nye bolig det uttrykket og løsninger du selv ønsker. Samtidig vil du med kjøp av ny bolig få lav dokumentavgift, lave vedlikeholdskostnader, kunne frigjøre tid til alt du egentlig ønsker å bruke fritiden din på. Eiendommen oppføres iht. TEK17 med gjennomgående gode kvaliteter og leveres nøkkelferdig til kjøper!

Fordeler med nybygg:
- Alt er nytt!
- Lave driftskostnader
- Lovfestet garanti på fem år sikrer utbedring av eventuelle feil og mangler
- Mulighet til å tilpasse boligen
- Minimalt vedlikehold
- En god investering
- Ingen stressende budrunder
- God teknisk standard
- Lav dokumentavgift!

Kontakt megler Andreas Tveit, tlf. 908 25 130 for mer informasjon eller visning. Tomten kan besiktiges på egenhånd eller etter avtale med megler

Beliggenhet

Tomteområdet er sørvestvendt med gode solforhold, fin utsikt og landlig beliggenhet
Flere av tomtene får sjøutsikt mot Lysefjorden og Austevoll, i tillegg til utsikt mot fjell og natur. Boligfeltet vil ha friområder hvor naturen bevares og flere sosiale soner hvor det blir tilrettelagt for lek og fritid. Tomtene leveres som naturtomter og du som kjøper kan realisere din egen boligdrøm.

Her kan du bygge din nye enebolig tett på naturen. En fottur til Lyshornet starter like utenfor døren og belønnes med fantastisk utsikt fra toppen. En spasertur unna Lysehagen finner du Nordstraumen Marina, som kan tilby båtplass. Området byr også på flere tilrettelagte badeplasser. Lyseparken, Os sin nye næringspark, nås med en kjøretur på 5 minutter.

Lysefjorden er virkelig et område i vekst. Her kan du sikre deg en av de fineste eneboligtomtene som kommer i området.

Lekeplasser og friområder i Lysehagen
Lysehagen har stort fokus på å skape et boligfelt hvor det er godt å leve. Å bo i et boligfelt som er tilrettelagt for fysisk aktivitet og samhold mener vi bidrar til å styrke livskvaliteten. Gjennomførte lekeplasser, sosiale møteplasser og fellesarealer hvor naturen er bevart vil være viktig for trivselen.

Etablering av utkikkspunkter, veier med belysning og lett tilkomst til turstier vil bidra til å styrke lysten på friluftsliv og rekreasjon.

I Lysehagen vil det bli tilrettelagt for ni lekeplasser og tre fellesområder.

I første byggetrinn vil det bli etablert seks lekeplasser. Lekeplassene er nøye utformet for at barn skal få lære, være motorisk aktive og utfolde seg i frilek. Lysehagen tilrettelegger for lek til barn i alle aldre, samt sosiale soner hvor det er enkelt for familier og naboer å møtes ute i frisk luft. Lekeplassene og friområdene ligger solrikt til og er til dels skjermet for vind og trafikkstøy. Grillhytte, leketårn og zipline er noen av elementene som man kan glede seg til. Sikkerhet er viktig og vi har derfor engasjert et lokalt selskap som innehar høy kompetanse på etablering av lekeplasser.

I nærområdet
- Barnehage og skole
- Bjørnefjorden kommune har 100% barnehagedekning og nærmeste barnehage er Lysekloster barnehage (Edne 19, 5215 Lysekloster).
- Lysefjorden barneskole
- Nore Neset ungdomsskole
- Os ungdomsskole
- Os yrkesskole
- Os gymnas

Tur og friluftsområder
Det finnes mange fine turmuligheter i området.
Det går en sti fra Lysehagen til Lysehornet.
Grusvei til Svartavatnet.
Lysekloster
Langavatn er en flott turplass i Lysefjorden og byr på gapahuken Drangebu
Fanafjellet, med sin spektakulære utsikt, er også flott å besøke for store og små.
Storåsen og Hordnesskogen egner seg godt som barnevennlige rundturer

Badeviker
Tomteområdet ligger vakkert til ved fjorden og det finnes derfor flere badeviker man kan få glede av. Søvikvågen er en populær og barnevennlig badeplass i nærområdet. Her har det også blitt arrangert «Ta sjansen i Vågen».
Den mindre badeviken «Sperrevik», finner du like i nærheten av prosjektet.
I Leirvågen, rett nedenfor Lysehagen, har kommunen kjøpt en naturskjønn tomt hvor det på sikt er påtenkt å etablere et offentlig friluftsområde. Leirvågen ligger helt nede ved sjøkanten og kan bli en fin badevik.

Garasje/parkering

Carport med plass til en bil. Ellers parkering på egen tomt.

Konstruksjon

TØMRER- OG SNEKKERARBEIDER.

Yttervegger.
På murkrone leveres:
- Fugemasse under svillmembran
- Svillmembran
- 48 x 198 mm svill.
Svillen forankres forskriftsmessig til mur sammen med kantplate/bjelke.

Yttervegg fra innside til ytterside:
- 13 mm gipsplate
- 70 mm isolasjon kvalitet 34
- 48 x 68 mm innvendig påforing
- 0,20 mm diffusjonstett plastfolie
- 200 mm isolasjon kvalitet 34
- 48 x 198mm bindingsverk
- 9 mm storm gipsplate tapes i skjøtene
- Museband
- 30 x 48 mm luftelekt
- 30 x 48 mm klemlekter

Påforet grunnmur:
Yttervegg av mur påfores innv. kun der dette er inntegnet.
Påforingen består av:
- 48 x 48/98 mm bindingsverk.
- 50-100 mm isolasjon kvalitet 34 avhengig av type mur og varmetapsberegninger.
-13 mm gipsplate. På våtrom benyttes tilsvarende plate fuktbestandig, samt 0,20 mm diffusjonstett plastfolie der det er påkrevd.

2.2Innervegger.
Bærende innervegger:
- 48 x 98/148/198 mm bindingsverk.
- 70 mm isolasjon kvalitet 34.
- 13 mm gips på begge sider. På våtrom benyttes rupanel og 13mm gipsplate. (I henhold til romplan)
- Spikers der kunden måtte ønske

Ikke bærende innervegger:
- 48 x 98 mm bindingsverk.
- 70 mm isolasjon kvalitet 34.
- 13 mm gipsplater på begge sider. 13mm gipsplate.


Takkonstruksjon.
De fleste tak bygges opp av prefabrikkerte takstoler eller taksperre. Påforing av takkonstruksjonen bestemmes av varmeisolasjonen iht. energiberegninger. Takkonstruksjoner og tilhørende limtredragere dimensjoneres etter gjeldende tekniske forskrifter, og etter stedlige krav til snølast.

-Taktekking Icopal mestertek
- Sperretak fra Vestlanske limtre
- 18 mm osb
- 48x48x48 lufting
- 18mm asfaltplater
- Nødvendig skråstag og gaffelanker
- Prefabrikkert selvbærende taksperr
- Snøfangere i henhold iht gjeldene krav
- 48x48mm
- 13mm gipsplater
http://knaufdanoline.no/product-post/designpanel/

Balkong/terrasse.
Balkonger leveres der dette er vist på tegning.
Nødvendige søyler og dragere er medregnet og dimensjonert etter gjeldende tekniske forskrifter og stedlige krav til snølast. Rekkverk utføres i en høyde på minimum 90 cm.
Fundamenter, betongsøyler og innstøpte søylesko inngår i standard leveranse.
Rekkverk i henhold til fasade

Vinduer.
Generelt: Nordan
Alle vinduer leveres i vakuumimpregnert furu.
Med aluminium utvendig
Vinduer i trevegg leveres med beslag og belistning og tettes med fuge.
Vinduer i murvegg plugges fast. Disse leveres med foring og belistning så framt rom skal innredes til boligrom.
Vinduer i boligrom:
Alle vinduer i boligrom leveres med minimum 3 lags Energiglass med isolert karm. Disse leveres behandlet på begge sider, grunnet hvit fra fabrikk (NCS S0502Y). U-verdi 0.85

Hoveddør:
Hoveddør og biinngangsdør leveres som hvitmalt. Disse leveres i henhold til fasadetegninger.
Alle hoveddører er standard 100 cm og utadslående. Disse leveres med sylinderlås og vrider.
Inntegnede sidefelt inngår i leveransen.
Ytterdører leveres fra Nordan, (se vedlegg)

Balkongdør:
3 lags Energiglass. Balkongdører for boligrom leveres behandlet, tilsvarende som vinduer.

Hele huset:
Innerdører leveres som formpresset fabrikkmalt i hvit.
Dørvridere inngår.
Formpresset hvit type Stable fra Swedoor med dempelist
https://www.swedoor.no/produkter/innerdorer/stable/stable-gw-innerdorer
ved endring av farge på dørblad og karm så blir de et tillegg på 1800 inkl mva pr dør standard mål på innerdører høyde M 21

Generelt:
Foringer til dør og vindu leveres med gips
Vindu/dørlister 12x58 ferdig malt
Gulvlister 12x58 ferdig malt
Synlige spikerhull

Ikke medtatte leveranser:
Følgende leveranser inngår ikke, selv om disse i noen tilfeller kan være inntegnet.
- Badstueinnredning (ovn og benker)
- Kjølehjørne
- Kjølerominnredning (hyller, aggregat og kjøleromsdør)
- Stiplede vegger
- Stiplede innredninger
- Garderobeskap i hall ,soverom eller VF
- Sentralstøvsuger

Balansert ventilasjon:
- Balansert ventilasjon med roterende varmegjenvinner leveres og monteres. Synlige kanaler innkasses.

For mer informasjon se leveransebeskrivelse i salgsoppgave.

Prisinformasjon

Se gjeldene prisliste.

Betalingsbetingelser

Kjøper betaler ingen forskudd. Hele kjøpesummen innbetales til klientkonto 2 virkedager før overtagelse.

Tomt

Tomt vil bli gruset cirka 1 meter ut fra bygningskropp. Tomteareal er stipulert og avvik kan forekomme.

Energimerking

Før overtagelse vil kjøper motta energiattest for boligen.
Energimerking gir relevant informasjon om hvor energieffektiv eiendommen er. Karakterskalaen strekker seg fra A (høyest) til G (lavest). Se www.energimerking.no for mer informasjon om energimerking av boliger.

Sentrale lover

Boligen selges etter bustadoppføringslovas bestemmelser.

Utbygger stiller garanti straks etter åpning av byggelån, minimumsalg er oppnådd og igangsettingstillatelse foreligger, jfr. buofl. § 12.

Adgang til utleie

Dette er en selveiende eiendom og eiendommen kan fritt leies ut.

Hvitvaskingsregelverk

Eiendomsmeglere er underlagt lov om hvitvasking og er forpliktet til å rapportere til Økokrim om mistenkelige transaksjoner. Lov om hvitvasking innehar også strenge regler om gjennomføring av nødvendige kundetiltak fra alle parter i handelen, herunder, selger, kjøper og fullmektiger for disse. Dersom eiendomsmegler ikke får utført slik kontroll, plikter eiendomsmegler å avstå fra å gjennomføre oppdraget/handelen.

Budgivning

Bud kan legges ved å fylle inn budskjema som finnes i salgsoppgaven eller ved å gå inn på nettannonsen på "gi bud knappen". All budgivning må foregå ved skriftlighet. Ikke nøl med å ta kontakt dersom det er behov for bistand for å gi bud.

Fremdriftsplan og ferdigstillelse

Bygging startet! Antatt ferdigstillelse 1. kvartal 2026. Dette er kun stipulert og faktisk ferdigstillelse kan avvike fra dette. Herunder vil overlevering senere enn dette tidspunkt ikke gi kjøper rett til dagmulkt eller andre misligholdsbeføyelser. ikke grunnlag for å kreve dagmulkt.

Ansvarlig megler

Andreas Tveit

Nærområdet

Annonseinformasjon

FINN-kode407796553
Sist endret07. nov. 2025 10:06
Referanse81255015

Rapporter annonse

Annonsene kan være mangelfulle i forhold til lovpålagt opplysningsplikt. Før bindende avtale inngås oppfordres interessenter til å innhente komplett informasjon fra meglerforetaket, selger eller utleier.