Bildegalleri

Haugsvær Panorama ligger fint til langs E39, like ved Joker Haugsvær
Haugsvær Panorama - Flotte leiligheter under oppføring med idyllisk beliggenh...
Haugsvær Panorama - Flotte leiligheter under oppføring med idyllisk beliggenhet, like ved dagligvare.
Prisantydning
3 595 000 kr
Prosjektets status
Planlegging
- 1.kvartal 2025
Salgsstart
- februar 2025
Byggestart
-2. kvartal 2025
Overtakelse
- Stipulert 3. kvartal 2026
Nøkkelinfo
- Boligtype
- Leilighet
- Soverom
- 3
- Internt bruksareal
- 74 m² (BRA-i)
- Bruksareal
- 79 m²
- Eksternt bruksareal
- 5 m² (BRA-e)
- Balkong/Terrasse
- 20 m² (TBA)
- Eieform
- Eier (Selveier)
Enheter i prosjektet
Sorter etter
| Enhet | Etasje | BRA-i | Soverom | Totalpris |
|---|---|---|---|---|
| 3 | 1 | 74 m² | 3 | 3 604 840 kr |
| 4 | 1 | 74 m² | 3 | 3 604 840 kr |
Visning
Beskrivelse
Oppdragsansvarlig
Nordhordland Eiendomsmegling AS / Magnus André Nilsen
Selger/Utbygger
Haugsvær Panorama AS
Betegnelse
Gnr. 47 Bnr. 84 i Masfjorden kommune
Eiendommen vil bli seksjonert og snr vil tilkomme
Byggeår
2025
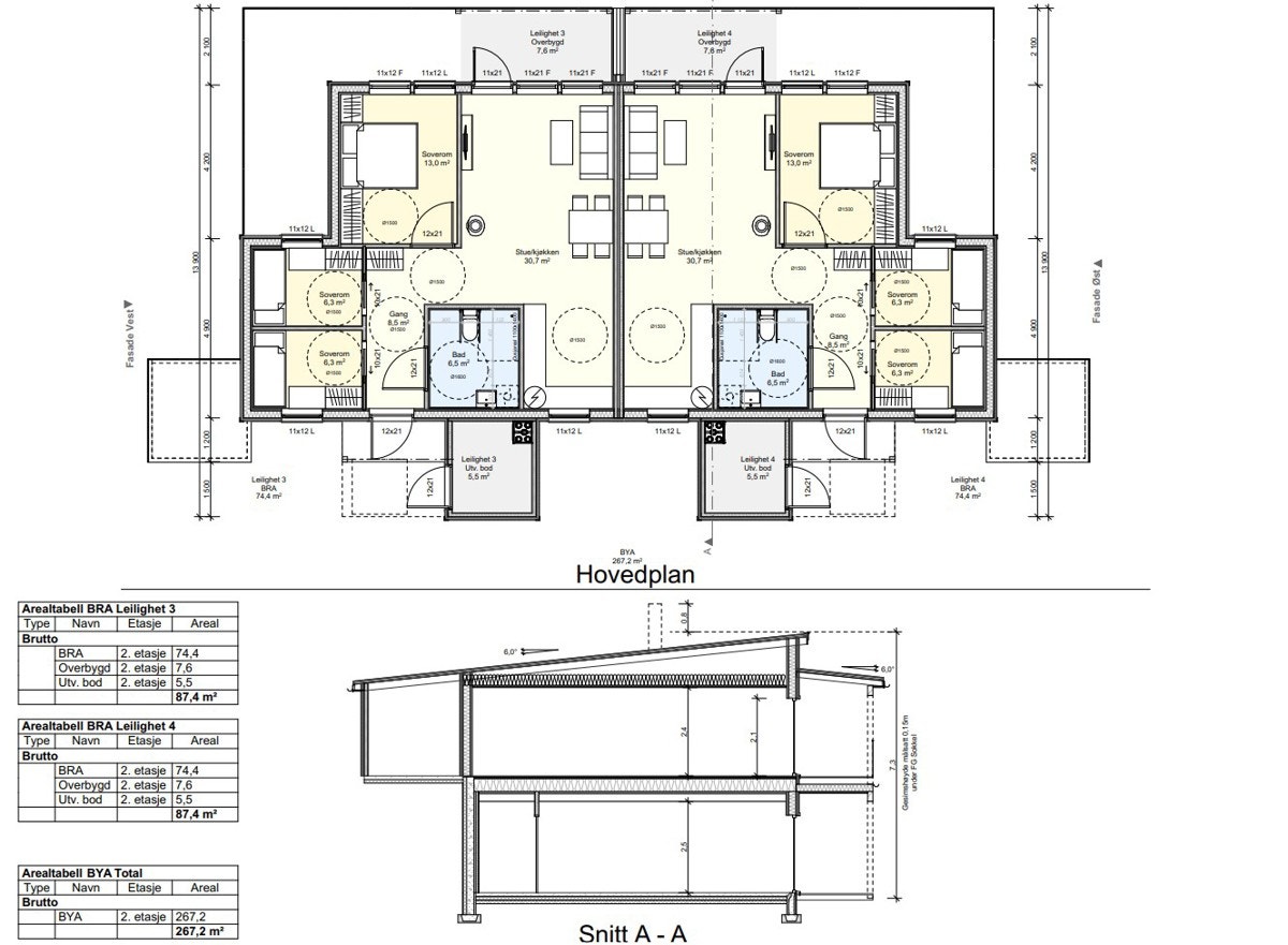
Arealer og fordeling per etasje
Totalt BRA 80 kvm består av:
- BRA-i (internt bruksareal): 74,40 kvm
- BRA-e (eksternt bruksareal): 5,50 kvm
- TBA (terrasse-/balkongareal) 20 kvm
Det totale bruksarealet fordeler seg som følger:
Første etasje(øvertse etasje): gang, 3 soverom, bad, stue med åpen kjøkkenløsning, ekstern bod
Garasje
BRA-e 18 til 28kvm
Merk: garasjeplass må kjøpes i tillegg til kjøpesummen. se vedlagte tegninger på garasjeplass som viser størrelse og plassering
Da prosjektet ikke er oppført, har megler ikke hatt mulighet til å kontrollmåle areal. Oppgitte arealer baserer seg utelukkende på utbyggers/arkitekts arealberegninger. For hvilket rom som inngår i arealet se vedlagte plantegninger.
Beliggenhet
Haugsvær Panorama ligger på Haugsvær, et lokalsamfunn i Masfjorden kommune.
Like ved prosjektet finner du Joker Haugsvær, en lokal dagligvarebutikk som tilbyr et bredt utvalg av dagligvarer, medisinutsalg og hjemkjøring av varer på fredager. Butikken har vært en del av lokalsamfunnet siden 1983. I samme bygg vil det i løpet av 2025 bli etablert dagaktivitetssenter for unge og eldre. Her blir det også åpen kafé hver onsdag og lørdag.
Dette er et område som kombinerer fredelige omgivelser med enkel tilgang til nødvendige fasiliteter.
Prosjektet ligg sentralt til ved E39, med butikken som nærmeste nabo. Busstopp like ved. Og ikke minst, den flotte skogsturveien med Eventyrskogen og gapahuk. Asfaltert vei langs hele sørsiden av Haugsværvatnet med frisbeegolf-løype, og gapahuk også her. Velegnet for rullestolbrukere.
Kun 30 minutter kjøring til Stordalen Skisenter, og Stordalen Fjellstove.
Kort fortalt:
- Funksjonell bolig
- Parkeringsplass like utenfor inngangsdøren
- Flere flotte turområder, i kort gange fra boligene
- Landlig og barnevennlig beliggenhet med kort kjøreavstand til Matre skole og Indre Masfjorden barnehage
- Bare 14 minutters gange til Haugsvær ballbinge
Beskrivelse av nærområdet / fasiliteter
SKOLER
Matre skule (1-10 kl.) 6 min kjøring
49 elever, 5 klasser 5.9 km
Knarvik vgs - avd. Kvernhusmyrane 54 min kjøring
950 elever 60.4 km
Knarvik vgs - avd. Juvikstølen 55 min kjøring
300 elever 61.4 km
SPORT
Haugsvær ballbinge 14 min gange
Matre idrettsanlegg 6 min kjøring
OFFENTLIG TRANSPORT
Haugsvær Auto 1 min gange
Linje 346, 351 0.1 km
Førde lufthamn, Bringeland 1 t 35 min kjøring
Bergen Flesland 1 t 35 min kjøring
BARNEHAGER
Indre Masfjorden barnehage (1-5 år... 6 min kjøring
15 barn 6 km
Brekke barnehage (1-5 år) 15 min kjøring
21 barn 15.6 km
Nordbygda barnehage (1-5 år) 30 min kjøring
37 barn 27 km
DAGLIGVARE
Joker Haugsvær 4 min gange
Bygninger
Prosjektet består av tre firemannsboliger med totalt 12 boenheter på selveiende tomt med mulighet for garasjeplass
Garasjeplass i felles garasjanlegg kan kjøpes separat.
Byggemåte
Boligene blir oppført i henhold til TEK 17. Alle arbeider utføres etter gjeldende plan- og bygningslov og byggetillatelse fra Masfjorden kommune.
Tillatelser som foreligger pr idag:
Delegert vedtak - Rammeløyve til oppføring av firemannsmannsbolig med felles garasje datert 27.07.2022
Innhold
Firemannsboligen har to leiligheter i hver etasje. Leilighetene som nå selges ligger i 1.etasje (øvre etasje). Man kommer inn i entreen som fører videre til bad, 3 soverom og stue med åpen kjøkkenløsning. Utgang til uteplass fra stuedel.
Utenfor inngangsdøren har man en utvendig bod på 5,5 kvm.
Terrassen er delvis overbygd og er på totalt ca 20 kvm. (ca 8kvm er overbygd)
Standard
Boligene oppføres etter TEK17 med gode kvaliteter og løsninger. De har et moderne uttrykk og det er lagt vekt på gode materialvalg både innvendig og utvendig. De får et pent formspråk og plasseringen på tomten er god med tanke på uterom og parkering.
Denne firemannsboligen har en romslig gang med god plass til garderobe. Fra gang har man direkte tilgang til badet på ene siden og 3 soverom på andre siden, alle i kort avstand fra badet. Entréen har flislagt gulv med varmekabler, som gir ekstra komfort.
Badet fliser på gulv og på veggene er det Fibo Trespo denver White høyglans plater 60x60cm flismønster. Baderomsgulvet har varmekabler og det er spotlightes i tak. Badet er utstyrt med dusjvegger i glass, vegghengt toalett, og baderomsinnredning i hvit utførelse fra Aubo med speil over.
Boligen har en åpen stue- og kjøkkenløsning, hvor store vindusflater og fyller rommet med rikelig naturlig lys. Kjøkkeninnredningen leveres fra Aubo, i farge Unik Rose sand med laminat benkeplate. Hvitevarer fra Elektrolux og Røroshetta avtrekk.
I alle tørre rom utenom entreen legges moderne 1 stavs laminatgulv av typen Berry Allock Grand Champ Elysees.
I stue/kjøkkendel leveres det downlights i tak.
De som kjøper i prosjektet på et tidlig stadium vil ha mulighet til selv å påvirke kvaliteter. Herunder kan du bestemme kjøkkenløsning, farger på vegger og gulv. Du kan da gjøre tilvalg etter din egen stil, behov og hverdag.
Selger vil opplyse frister og kostnader for endringer. Se leveransebeskrivelse i salgsprospektet for mer informasjon om standard og kvaliteter.
Utstyr
Innvendige dører i alle rom: speilformpresset med eike terskel og dørvrider
Sentralstøvsuger ferdig montert
Pipe og ovn i leilighet montert etter anvist plass på plan teikning
Brannalarm med ekstern varsling
Møblering
Boligene leveres umøblert
Oppvarming
Det leveres varmekabler på bad og entre/gang der hvor det er fliser.
Balansert ventilasjon med varmegjenvinning.
Pipe og ovn i leilighet montert etter anvist plass på plantegning.
Det opplyses for orden skyld at det ikke er varmekilder i alle rom. Kjøper må evt. komplementere med panelovner.
Parkering / Garasje
Det medfølger 2 parkeringsplasser pr leilighet på fellesområde.
Mulighet for kjøp av garasje med plass til 1 vanlig bil. Størrelse på garasjeplass 18kvm. Pris kr 380 000,- pr parkeringsplass.
Mulighet for kjøp av garasje med plass til 1 bobil. Størrelse på garasjeplass 28kvm. Pris kr 450 000,- pr parkeringsplass.
Kjøper man garasjeplass vil dette legges til eiendommen som TS (tilleggsdel)
Garasje blir installert med lys og vanlig stikkontakt, og utvendig lys.
Det leveres bod på ihv 5,4, 5,9 og 6,3 kvm bak garasjeplasser. Se plantegning for størrelse og anvisning av plasser.
Gjesteparkering vil bli bak garasjebygg, se vedlagte situasjonsplan.
Adkomst
Følg E-39 fra Knarvik mot Masfjorden. Over Romarheimsdalen forbi Matre og videre til Haugsvær. Ta inn ved Joker-butikken og følg veien bort til eiendommen. Ca. 50 min kjøring fra Knarvik.
Beskrivelse av tomt
Tomten blir felleseiet på ca. 4585kvm.
Utbygger lager en treplatting utenfor stue/kjøkken i u.etasje som tilsvarer størrelsen på terrassen oppe. Terrasse og balkong blir eksklusivt for hver enhet, resten av tomten er felles.
TBA u.etg: platting på mark: 7,6kvm, eksklusiv bruksrett til enhet i u.etasje. Det blir ingen rekkverk i u.etasje
Kjøperne må i felleskap selv stå for en del opparbeidelse av felles hage. Se tomtens utforming på visning.
Innkjørsel og parkering asfalteres. Stein og stedlige jordmasser grov planeres og stedvis plen. Grøntarealer ellers rundt bolig grov planeres med stedlige masser. Støttemurer og eventuelle sikringsgjerder vil bli etablert i samsvar med avdekket behov etter at det er foretatt av graving, sprenging og terreng- arrondering. Se forøvrig situasjonsplan for hvordan utforming av tomten vil bli.
Utbygger forbeholder seg retten til materialvalg utover det som er beskrevet i leveransebeskrivelse. Hage med plen/beplantning mm. må opparbeides av kjøper.
3D illustrasjoner, utomhusplanen/situasjonsplan er veiledende for utforming av utearealene, og kan ikke sees på som endelig. Alle illustrasjoner på tegninger for eksempel garderobe/baderomsmøbler/badekar/ møbler i stue osv., samt utvendig beplanting og andre illustrasjoner er å betrakte som idé givende og inngår ikke i noen leveranse dersom ikke beskrevet i leveransebeskrivelsen.
Tinglyste rettigheter og forpliktelser
Kommunen har legalpant som sikkerhet for betaling av kommunale avgifter. Legalpant er pant som følger av loven, og som ikke tinglyses. Legalpant følger derfor eiendommen ved salg. På eiendommen kan det være tinglyst erklæringer som f eks rett for kommunen til å vedlikeholde rørsystemer for vann- og kloakk. Disse erklæringene vil følge eiendommen ved salg. Kontakt megler for nærmere informasjon.
Øvrige sameiere har panterett i seksjonen for krav mot sameieren som følge av sameieforholdet, jf. eierseksjonsloven § 31. Pantekravet kan ikke overstige 2G (Folketrygdens grunnbeløp). Sameiet kan vedtektsfeste ytterligere panterett for sameiet. Vedtektsfestet pant tinglyses i seksjonene.
Servitutter / rettigheter
Eiendommen overdras fri for pengeheftelser, med unntak av eventuelle erklæringer, avtaler, servitutter og panteheftelser som fremgår av salgsoppgaven og skal følge med eiendommen ved salg. Kjøpers bank vil få prioritet etter disse.
Se vedlagte grunnbok som viser tinglyste servitutter.
Det vil bli tinglyst seksjoneringsbegjæring.
På eiendommen kan det være tinglyst erklæringer som f eks rett for kommunen til å vedlikeholde rørsystemer for vann- og kloakk. Disse erklæringene vil følge eiendommen ved salg. Kontakt megler for nærmere informasjon.
Vei / Vann / Avløp
Eiendommen vil bli tilknyttet offentlig vann og avløp via private stikk- og fellesledninger.
Privat vei på egen tomt.
Vi gjør oppmerksom på at private ledninger og privat vei vedlikeholdes og driftes for eiers regning. For private fellesledninger er der normalt tilknyttet solidarisk vedlikeholdsplikt.
Ferdigattest eller midl. brukstillatelse
Ved overtagelse skal det foreligge ferdigattest eller midlertidig brukstillatelse. Dersom det kun er midlertidig brukstilatelse forplikter selger seg å fremskaffe ferdigattest senest 12 mnd etter overtagelse.
Verdi ved skattefastsetting
Verdien ved skattefastsetting er p.t. ikke fastsatt. Verdien ved skattefastsetting fastsettes av Ligningskontoret etter beregningsmodell som tar hensyn til om boligen er en såkalt "primærbolig" (der boligeieren er folkeregistrert bosatt) eller "sekundærbolig" (alle boliger man eier, men ikke bor fast i). Interessenter oppfordres til å sjekke www.skatteetaten.no eller kontakte ansvarlig megler for nærmere informasjon om verdien ved skattefastsetting.
Reguleringsforhold
Eiendommen ligger under områdereguleringsplan med planID 1266.20130001 Haugsværdalen.
Planstatus
Formål: Bustader, Reguleringsplan PlanID: 1266.20130001 Haugsværdalen.
Formål: Bustad - konsentrert
Formål med områdeplanen:
Planen skal leggja til rette for etablering av transformatorstasjon, nytt industriområde, gang- og syk kelveg langs E39. Planen skal også leggja til rette for ei mindre utviding av lokalsenteret og nytt bustadareal på Haugsvær, samt utbetring av eksisterande kryss mot eksisterande E39.
Fylgjande formål inngår også i reguleringsplanen:
Bygningar og anlegg (§12-5, pkt.1)
Bustader - frittliggjande (BFS)
Bustader - konsentrert (BKS)
Industri
Energianlegg
Massedeponi
Leikeplass
Sentrumsformål
Samferdselsanlegg og teknisk infrastruktur (§12-5, pkt.2)
Køyreveg (SKV)
Fortau (SF)
Gang- og sykkelveg (SGS)
Gangveg (SGG)
Annan veggrunn - grøntareal (SVG)
Parkeringsplass -(SPP)
Landbruks-,natur- og friluftsformål (§12-5, pkt.5)
Naturformål av LNFR
Bruk og vern av vassdrag, med tilhøyrande strandsone (§12-5, pkt.6)
Naturområde i vassdrag med tilhøyrande strandsone
Fylling i vatn
Omsynssoner (§12-6)
Frisiktsone (H140)
Ras- og skredsone (H310)
Flaumfare (H320)
Bevaring kulturmiljø (H570)
Bandlegging etter anna lov (energilova) (H740)
Bestemmelsesområde (§12-7)
Område til skredvoll (#1)
Anleggs og riggområde (B091)
Beskrivelse av sameiet
Sameiet vil bestå av 12 eierseksjoner.
Det er utarbeidet utkast til standard vedtekter for sameiet. Slike blir bindende for kjøperne. Utbygger forbeholder seg retten til å endre vedtekter i forbindelse med endelig seksjonering/behov for bygningsmessige endringer tilknyttet prosjektet.
Det vil bli felles areal på hage, innkjørsel og parkeringsplasser. Se vedlagte situasjonsplan som viser disse områdene.
En sameier eier en andel i eiendommen, med tilknyttet enerett til bruk av sin bruksenhet, jf. eierseksjonsloven § 25.
Ingen kan erverve mer enn to boligseksjoner i et sameie, jf. eierseksjonsloven § 23 første ledd. Dersom et erverv har funnet sted i strid med eierseksjonslovens regler kan Kartverket nekte overskjøting. Dersom overskjøting blir nektet, er kjøper likevel forpliktet til å gjennomføre handelen med selger, og oppgjør til selger vil finne sted tross manglende overskjøting.
Interessenter oppfordres til å sette seg inn i sameiets vedtekter.
Sameiet er ikke stiftet. Megler kan ikke gi nærmere opplysninger om regnskap, protokoller og lignende.
Andre faste løpende kostnader
Det må påregnes årlig utgifter til kommunale avgifter, fellesutgifter til drift og vedlikehold av privat vei og offentlig avløp, fellesutgifter i eierseksjonsameiet.
For disse boligene estimeres kommunale avgifter for vann kr 10650,- , avløp kr 7500,- og feiegebyr 938,- pr år - + ekstern renovasjon (NGIR) kr 4980.,- pr bolig. (inkl mva) = 24 068,- pr år. For nærmere opplysninger kontakt teknisk etat i Masfjorden kommune.
Avvik vil forekomme da boligene i prosjektet ikke er ferdigstilt. Kommunale avgifter faktureres kvartalsvis.
Andre løpende kostnader ved kjøp av bolig vil typisk være: innboforsikring, strøm etter forbruk, TV pakke/internett.
Fellesutgifter estimeres til kr 500,- pr mnd. for felles bygningsforsikring og enkel drift.
Kjøperne må delta andelsmessig i felleskostnad i boligen. Månedlig innbetaling til dekning av fellesutgifter er budsjettert da byggene er prosjektert og ikke ferdigstilt. Felleskostnadene vil normalt bestå av bl.a. bygningsforsikring, strøm til fellesarealene og øvrige driftskostnader. Dette er estimert til kr 500,- pr mnd. pr bolig.
Kjøper må påregne utgifter til deltagelse i privat veilag.
Sameiet blir ikke tilknyttet sikkerhetsordning for tap av felleskostnader.
Andel fellesgjeld / formue
Andel fellesgjeld kr. 0,- / Andel fellesformue kr. 0,- pr ifølge forretningsfører.
Andel fellesgjeld og evt. formue overtas av kjøper.
Oppgjør
Kjøper er forpliktet til å betale kjøpesummen etter følgende betalingsplan:
Ved kontraktsignering etter stilt §12 garanti: Kr 200 000,-
Før overtagelse: Resterende del av kjøpesum + omkostninger + evt tilvalg.
Selger plikter å stille garanti overfor kjøper i henhold til bestemmelsene i buofl. § 12.
Garanti etter buofl. § 12 skal stilles umiddelbart etter selgers aksept av kjøpers bud.
Hvis selger har tatt forbehold om enten a) åpning av byggelån, b) salg av et bestemt antall boliger eller c) igangsettingstillatelse, skal garanti stilles straks etter at forbehold er oppfylt og under enhver omstendighet innen byggearbeidene starter eller når kjøper foretar innbetaling.
Når det gjelder innbetaling av kjøpesum til klientkonto er det en forutsetning at selger har stilt § 12 garanti. Beløpet vil stå på meglers klientkonto inntil overtagelse og overskjøting har funnet sted, alternativt at utbygger har stillet § 47 garanti i henhold til bustadoppføringslova.
Før innbetaling av evt. forskudd vil Selger ha stilt garanti i hht. bustadoppføringslova § 47, med mindre beløpet skal bli stående på meglers klientkonto frem til overtakelse.
Total kjøpesum med tillegg av omkostninger skal være disponibelt på meglers klientkonto innen overtagelse.
Normalt innebærer dette at fullt oppgjør må være innbetalt på meglers klientkonto senest to virkedager før avtalt overtagelsesdato.
Oppgjør mellom partene foretas av:
Vestoppgjør AS,
Foretaksregisteret: orgnr. 920 376 355
Nesttunvegen 104, 5221 Nesttun
Finansiering
Kontakt megler for avklaring av finansielle forhold, herunder lån til kjøp av eiendom. Privatmegleren har avtale med Nordea om formidling av lån og andre finansielle tjenester. Privatmegleren mottar godtgjørelse for dette.
Annen nyttig informasjon
Alle opplysninger i denne beskrivelse er gitt med forbehold om rett til endringer som er hensiktsmessige og nødvendige, eller som følge av offentlige pålegg, uten at den generelle standarden forringes.
Alle innvendige og utvendige arealangivelser, samt beskrivelser av bygningen er hentet fra vedlagte leveransebeskrivelse og arkitekttegninger. Salgsoppgaven er basert på selgers opplysninger gitt til megler, samt opplysninger innhentet fra kommunen og andre tilgjengelige kilder. Interessenter oppfordres til å nøye gjennomgå leveransebeskrivelse, tegninger og prospekt før kjøpetilbud inngis.
Beskrivelsen sammen med avtaletegninger vil være dokumenter i avtalen. Dersom en ytelse er ulikt angitt på tegning og i leveransebeskrivelse, gjelder leveransebeskrivelsen.
Ved avvik mellom prospekt/annonser og leveransebeskrivelsen, gjelder leveransebeskrivelsen.
Alle illustrasjoner, skisser, "møblerte" plantegninger m.m. er kun ment å danne et inntrykk av den ferdige bebyggelsen, og kan ikke anses som endelig leveranse. Inntegnet utstyr/inventar er ment som illustrasjoner og medfølger ikke, og det kan derfor forekomme elementer i presentasjonsmaterialet som ikke inngår i leveransen. Generelle beskrivelser av prosjektet i salgs- og markedsføringsmateriell vil ikke passe for alle leiligheter. Kjøper oppfordres derfor særskilt til å vurdere den aktuelle boligens forhold (solforhold, utsikt, beliggenhet i forhold terreng og omkringliggende bygningsmasse m.v.) før budgivning. Alle opplysninger er gitt med forbehold om rett til endringer som er hensiktsmessige og/eller nødvendige, likevel slik at den generelle standard og utførelse ikke forringes eller endres vesentlig. Kjøper aksepterer uten prisjustering at utbygger har rett til å foreta slike endringer. Eksempel på slike endringer kan være innkassing av teknisk anlegg, mindre endringer av boligens areal og lignende.
Boligene leveres i byggrengjort stand. Kjøper må påregne utvask etter egen innflytning.
I nye bygg vil det normalt oppstå svinnriss, sprekker i tapet, maling mv. ved skjøter og sammenføyninger, dels på grunn av uttørking av materialer. Det påpekes spesielt at sprekker i materialoverganger og mellom tak og vegg og i hjørner ikke kan forlanges utbedret, så lenge disse ikke innebærer avvik fra god håndverksmessig standard under byggingen
Med dagens tette boliger og miljøvennlige malingstyper kan det være fare for heksesot inne i boligene. Alle boliger bør derfor ventileres godt den første vinteren/året, og man bør være forsiktig med gassbruk og levende lys innvendig.
Selger gjør særskilt oppmerksom på at skjeggkre er funnet i flere boliger i Norge. Skjeggkre kan komme inn i boliger på en rekke forskjellige måter, både i forbindelse med oppføring av boligen, men også i forbindelse med innredning, bruk mv. Det er ikke et funksjonskrav under denne kjøpekontrakten at boligen skal være oppført på et vis som fjerner risikoen for skjeggkre.
Kjøper er kjent med at utomhusarbeider, avhengig av årstid, vil kunne bli ferdigstilt etter forbrukerens overtakelse av boligen. Når slik areal er ferdigstilt vil sameiets styre innkalles til en ferdigbefaring, hvor arealet gjennomgås sammen med utbygger. Det føres protokoll fra befaringen.
Ved alle besøk på byggeplass før overtakelse skal kunder alltid være i følge med en representant fra selger. All annen ferdsel på byggeplassen i anleggsperioden er beheftet med høy grad av risiko og er forbudt.
Ved avbestilling av boligen gjelder budstadoppføringlovas bestemmelser.
Adgang til utleie
Boligene kan i sin helhet leies ut til boligformål. Korttidsutleie av hele boligseksjonen i mer enn 90 døgn årlig er ikke tillatt. Med korttidsutleie menes utleie i inntil 30 døgn sammenhengende. Grensen på 90 døgn kan fravikes i vedtektene og kan i så fall settes til mellom 60 og 120 døgn.
Sikkerhetsstillelse
Alle eiendomsmeglingsforetak har lovpålagt forsikring av klientmidler begrenset oppad til kr 45 mill. Enkeltsaker er forsikret inntil kr 15 mill. Dersom kjøpers låneinstitusjon krever tilleggsforsikring ved omsetning over 15 millioner, må kjøper selv eller dennes låneinstitusjon dekke utgiftene forbundet med dette.
Planlagt overtagelse
Ferdigstillelse for prosjektet er stipulert til 3.kvartal 2026. Dette er kun stipulert og faktisk ferdigstillelse kan avvike fra dette. Herunder vil overlevering senere enn dette tidspunkt ikke gi kjøper rett til dagmulkt eller andre misligholdsbeføyelser.
Maksimal byggetid er satt til 01.08.2026.
Kjøperne er uansett forpliktet til å overta 2 måneder etter at selger varsler om dato for at boligene er ferdigstilt selv om dette er tidligere enn maksimal byggetid. Dog slik at kjøper likevel ikke er forpliktet til å overta tidligere enn 4 måneder før maksimal byggetid.
Overlevering og noe ferdigstillelse av boligene til boligkjøperne kan skje suksessivt. Herunder må interessenter påregne byggeaktivitet og anleggsvirksomhet med naturlige konsekvenser av dette en tid etter at man har overtatt boligen.
Selgers forbehold
Selger tar følgende forbehold:
- Det må selges 1 av de 2 som er til salgs, før oppstart.
- Forbehold om gitt igangsettelsestillatelse innen 3 mnd etter salg av 1 bolig.
Kjøper aksepterer at deler av utomhusarbeidene ikke er ferdigstilt ved overtagelse. Selger forplikter seg til å gjøre ferdig disse så snart som mulig etter at bebyggelsen er ferdig utbygget. Inntil hele byggeprosjektet er ferdigstilt, har Selger rett til å ha stående anleggsmaskiner og utstyr, eventuelle brakker m.v., samt ha stående skilt på den solgte eiendom. Eventuelle skader som dette måtte påføre eiendommen, skal selger snarest utbedre.
Selger forbeholder seg retten til å foreta nødvendige endringer som følge av offentlige pålegg, eller tilpasninger i forhold til tekniske løsninger.
Selger informerer om at det kan forekomme, og kjøpere må akseptere, mindre endringer i forhold til arkitekttegninger og byggebeskrivelse. Kjøpere er likevel ikke forpliktet til å akseptere endringer som forringer verdien av boligen.
Selger forbeholder seg retten til å tildele biloppstillingsplass ved overtakelse, også midlertidige plasseringer.
Tilvalg/Endringer:
Endringsarbeid avtales direkte mellom kjøper og selger. Avtaler om endringsarbeid krever skriftlighet. Etter igangsetting vil det gis frister for tilvalg og endringer. Kjøper har ikke rett til å kreve endringer og tilleggsarbeider som ikke står i sammenheng med ytelser som er avtalt, og som i omfang eller karakter skiller seg vesentlig fra den avtale ytelsen og/eller er til hinder for rasjonell gjennomføring av byggearbeidene. Selger er heller ikke forpliktet til å utføre endringer eller tilleggsarbeider som vil føre til ulempe for selger som ikke står i forhold til kjøpers interesse i å kreve endringer eller tilleggsarbeider. Selger har rett til å ta seg betalt for utarbeidelse av pristilbud, tegninger mv. jf. Bustadoppføringslova § 44.
Utbygger tar 5% påslag av tilvalg/endringer.
Inngås kjøpsavtale etter igangsetting er kjøper kjent med at frister for tilvalg og endringer kan være utgått. Kjøper er oppfordret til å ta forbehold i kjøpstilbudet dersom prosjektet er igangsatt, og kjøper har krav til tilvalg/endring som kjøper forutsetter skal være mulig å få levert av utbygger/selger.
Solgt ihht bustadoppføringsloven
Boligene selges i henhold til Bustadoppføringslova som regulerer kjøpers (forbrukers) rettigheter og plikter ved avtale om oppføring av bolig og kjøp av fast eiendom der bygningen ikke er fullført når avtalen inngås. Ved salg til aksjeselskap legges Avhendingslovens bestemmelser til grunn. For øvrig gjelder Lov om eierseksjoner for eierseksjonssameiet og driften av dette.
Garantier
Det stilles garantier i henhold til Bustadoppføringslovas bestemmelser. Garanti etter § 12 vil bli stilt i forbindelse med avtaleinngåelse. Garantien skal være pålydende 3% av kjøpesummen i byggetiden og 5% i 5 år etter overlevering av boligene til kjøper. Garanti etter § 47 forutsettes stilt om selger ønsker utbetalt forskudd/delinnbetaling/sluttoppgjør før hjemmelsovergang. Eventuelle påkrevde endringer av garantier ved eventuelle videresalg/transporter utføres ikke og bekostes ikke av selger.
Forsikring
Frem til overtagelse vil eiendommen være forsikret av selger. Etter overtagelse vil eiendommen forsikres gjennom sameiets fellesforsikring. Kjøper må selv besørge innboforsikring og forsikring av eventuelle særskilte påkostninger.
Budgiving
Boligene selges til fastpris.
Alle bud/kjøpetilbud på eiendommen skal være skriftlig og sendes meglerforetaket pr. fax, mail, sms eller via vår "gi bud"-knapp på våre nettsider. Knappen finner du også på Privatmeglerens hjemmeside for prosjektet, se på den enkelte bolig.
Bud/kjøpetilbud må ikke ha kortere akseptfrist enn til kl. 12.00 første virkedag etter siste annonserte visning. Lørdag regnes ikke som virkedag. Bud/kjøpetilbud med kortere frist enn dette kan ikke formidles av megler. Nærmere info om budgiving finner du på egen side sammen med kjøpetilbud/budskjema.
Som budgiver hos Privatmegleren kan du kreve budjournal fremlagt så snart handel er gjennomført.
Innhold i budjournal er lovregulert, og innebærer at budgivere må akseptere at opplysninger om budet kan bli fremlagt for selger, kjøper og øvrige budgivere. Budgiver som ikke blir kjøper, kan kreve kopi av anonymisert budjournal.
Vedlegg til salgsoppgave.
Situasjonsplan
Reguleringsplan
Leveransebeskrivelse
Arkitekttegninger
Basiskart
Vedtekter med kart
Salgsoppgaven er ikke komplett uten alle vedlegg
Budgiving
Boligene selges til fastpris.
Alle bud/kjøpetilbud på eiendommen skal være skriftlig og sendes meglerforetaket pr. fax, mail, sms eller via vår "gi bud"-knapp på våre nettsider. Knappen finner du også på Privatmeglerens hjemmeside for prosjektet, se på den enkelte bolig.
Bud/kjøpetilbud må ikke ha kortere akseptfrist enn til kl. 12.00 første virkedag etter siste annonserte visning. Lørdag regnes ikke som virkedag. Bud/kjøpetilbud med kortere frist enn dette kan ikke formidles av megler. Nærmere info om budgiving finner du på egen side sammen med kjøpetilbud/budskjema.
Som budgiver hos Privatmegleren kan du kreve budjournal fremlagt så snart handel er gjennomført.
Innhold i budjournal er lovregulert, og innebærer at budgivere må akseptere at opplysninger om budet kan bli fremlagt for selger, kjøper og øvrige budgivere. Budgiver som ikke blir kjøper, kan kreve kopi av anonymisert budjournal.
Vedlegg til salgsoppgave.
Situasjonsplan
Reguleringsplan
Leveransebeskrivelse
Arkitekttegninger
Basiskart
Vedtekter med kart
Salgsoppgaven er ikke komplett uten alle vedlegg
Lov om hvitvasking
Megler er underlagt lov om hvitvasking som innebærer plikt til å melde ifra til Økokrim om mistenkelige transaksjoner
Nyttige lenker
Nærområdet
Privatmegleren Nordhordland
Haugsvær Panorama AS
Utbygger
Annonseinformasjon
| FINN-kode | 393642095 |
|---|---|
| Sist endret | 13. aug. 2025 11:58 |
| Referanse | 195259000 |
Annonsene kan være mangelfulle i forhold til lovpålagt opplysningsplikt. Før bindende avtale inngås oppfordres interessenter til å innhente komplett informasjon fra meglerforetaket, selger eller utleier.








