Bildegalleri

Nye, Moderne rekkehus i Skåredalen - En perle for familier!
Rekkehus i Skåredalen
Senk skuldrene. Med 4,266 % rente fra Husbanken er boligen innen rekkevidde. Fantastiske familieboliger.
Prisantydning fra
5 950 000 kr
Prisantydning til
6 190 000 kr
Prosjektets status
Planlegging
-
Salgsstart
-
Byggestart
-Sommeren 2025
Overtakelse
-Sommeren 2026
Nøkkelinfo
- Boligtype
- Rekkehus
- Soverom
- 4
- Internt bruksareal
- 157 - 158 m² (BRA-i)
- Bruksareal
- 157 - 158 m²
- Eieform
- Eier (Selveier)
Enheter i prosjektet
Sorter etter
| Enhet | BRA-i | Soverom | Totalpris |
|---|---|---|---|
| 2 | 157 m² | 4 | 5 961 590 kr |
| 3 | 158 m² | 4 | 5 961 590 kr |
| 4 | 158 m² | 4 | 6 201 590 kr |
| 6 | 158 m² | 4 | 5 961 590 kr |
Visning
Beskrivelse
Prosjektets beskrivelse
God standard og gjennomført kvalitet. Alle gulv, med unntak av våtrom, leveres med lekkert laminatgulv, der du kan velge mellom fire ulike farger fra Naumann i Haugesund. Vegger, tak og himlinger leveres med gipsplater som sparkles og males for et moderne uttrykk.
Stilrent og funksjonelt kjøkken.
Kjøkkenet er hjertet i hjemmet og leveres fra anerkjente Naumann av typen Rotpunkt. Med fronter i laminat og en slitesterk laminatbenkeplate får du en stilren og praktisk løsning. Ventilator fra Røros Hetta samt hvitevarer som stekeovn, induksjonstopp, oppvaskmaskin og kjøle- og fryseskap er inkludert!
Lekkert bad med kvalitetsmaterialer.
Badet i første etasje blir flislagt med varmekabler i gulvet. Du kan velge mellom seks ulike farger på de moderne 60x60 flisene. Dusjsonen får flislagte vegger, og badet utstyres med hvitmatt baderomsinnredning, speil med LED-lys, vegghengt toalett og et romslig 90x90 cm dusjhjørne.
Praktisk vaskeromVaskerommet.
leveres med flislagt gulv og varmekabler, med de samme valgmulighetene for flis som på badet. Her er det opplegg for vaskemaskin og tørketrommel, og du har mulighet til å sette inn en vaskeromsinnredning etter eget ønske.
Elegant trappeløsning.
Trappen er en flott furu-trapp fra Stryntappa, med åpent design, hvite vanger og rekkverk. Her kan du velge mellom sju ulike typer trinn for å skape din personlige stil.
Utvendige fasiliteter.
Til boligen hører en isolert og platekledd utvendig bod, samt en romslig garasje med gipsplater på vegger og tak.
Perfekt beliggenhet for hele familien.
Boligen ligger i et attraktivt og barnevennlig område i Skåredalen, med kort avstand til skole, barnehage, dagligvarebutikker, flotte turområder, idrettsanlegg og lekeplass like ved.
Ønsker du å sikre deg en av disse flotte boligene? Ta kontakt for mer informasjon og visning!
Oppdragsansvarlig
Østbø & Kaldheim Eiendomsmegling AS / Jan Erik Østbø
Selger/Utbygger
Fedjedalen AS v. Kjetil Bjelland
Betegnelse
Gnr. 3 Bnr. 322 i Haugesund kommune
Ideell andel: 1/1
Byggeår
2026
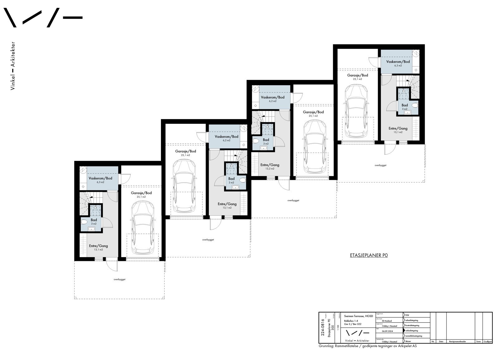
Arealer og fordeling per etasje
Totalt BRA 157 kvm består av:
- BRA-i (internt bruksareal): 157 kvm - 159 kvm
Det totale bruksarealet fordeler seg som følger:
Under etasje:
- BRA: 51--52 kvm
- BRA-i: 51-52 kvm
Første etasje:
- BRA: 53-54 kvm
- BRA-i: 53-54 kvm
Andre etasje:
- BRA: 53-54 kvm
- BRA-i: 53-54 kvm
Vedlagte plantegninger er ikke målbare, og oppgitte arealer er hentet fra vedlagte tegninger.
Arealer og fordeling pr. etasje
Bruksareal: 157 kvm - 159 kvm, BRA-i: 157 kvm - 159 kvm
Beliggenhet
Eiendommen er beliggende i et attraktivt og barnevennlig boligområde i Skåredalen. Her bor en med kort avstand til skole, barnehage, dagligvarebutikker, flotte turområder, idrettsanlegg og lekeplass like ved.
Bygninger
Prosjektet består av totalt 8 rekkehus fordelt på 4 og 4 i rekke. Boligene er innredet over tre plan med egen tilhørende garasje.
Byggemåte
Boligene vil bli bygget etter TEK17.
Grunnmur ihht gjeldene krav. Støpt gulv i betong.
Utvendig kledning 19*148mm RETT levers: Liggende i 1. etg. Fire forskjellige farger (1 for hver bolig). Leveres grunnet og mellomstrøk.
Utvendig kledning 19*148 TETT levers: stående i 2. etg. Fire forskjellige farger (1 for hver bolig). Leveres grunnet og mellomstrøk.
Vinduer og dører kles inn med ståendebord og 29*98mm undervannstokk i samme
material som kledning for å få et moderne uttrykk.
Tak-tekke: Taket bygges opp som kompakttak med sveis papp.
Vinduer og terrassedør i tre i fargen svart.
Ytterdør med glass EMMA i fargen svart fra Nordicdoor.
Terrasse i 2. etg leveres som tett terrasse. Leveres i impregnerte materieller og 28*120 terrassebord.
Utbygger kan velge tilsvarende produkter fra andre leverandører.
Se leveransebeskrivelse for spesifikk beskrivelse.
Innhold
Åtte rekkehus som er innredet over tre plan og inneholder:
Underetasje: Entrè/gang, bad, vaskerom/bod og garasje/bod.
Første etasje: Stue/kjøkken og soverom/kontor.
Andre etasje: Gang, tv/-stue, bad og 3 soverom.
Standard
Lekre og innholdsrike rekkehus som vil bli bygget med god og moderne standard.
Det vil bli lagt laminat på alle gulv foruten våtrom der kjøper kan velge mellom 4 typer/farger som er levert av Naumannbygg i Haugesund. Gipsplater på alle vegger, tak og himlinger som vil bli sparklet og malt.
Meget flott kjøkken som leveres fra Naumann av type Rotpunkt. Fronter av laminat samt laminatbenkeplate. Ventilator fra Røros Hetta og hvitevarer som stekeovn, induksjonstopp, oppvaskmaskin og kjøle- og fryseskap er inkludert.
På badet i første etasje vil det legges fliser med varmekabler i gulv og flis på vegger i dusjsone. Det vil bli lagt 60*60 fliser og en kan velge mellom 6 valgfrie farger. Hvitmatt baderomsinnredning med speil og leddlys, vegghengt toalett og 90*90 cm dusjhjørne.
På vaskerommet vil det legges fliser med varmekabler i gulv. Det vil bli lagt 60*60 fliser og en kan velge mellom 6 valgfrie farger. Mulighet for å sette inn vaskeromsinnredning. Opplegg for vaskemaskin og tørketrommel.
Flott furu-trapp fra Stryntappa. Åpen trapp med hvite vanger og rekkverk, med 7 stk valgfrie typer trinn.
Utvendig bod isoleres og plates.
Garasje har gipsplater på vegger og tak.
Se leveransebeskrivelse for spesifikk beskrivelse.
Oppvarming
Lurt til luft varmepumpe fra Ditt Miljø, ellers eletrisk oppvarming.
Det vil bli klargjort for pipe over tak.
Parkering / Garasje
Parkering i garasje ellers på sameiets tomt.
Det vil bli mulighet for trekking og montering av EL-bil ladestasjon.
Adkomst
Følg Skjoldavegen forbi Spar og hold venstre inn på Tømmerdalen. Ta deretter til høyre inn på Fedjedalen og deretter første til høyre og du vil få tomten på din venstre side.
Beskrivelse av tomt
Felles tomt for sameiet hvor gårdstun og parkeringsplass blir asfaltert og det vil bli lagt belegningsstein internt i tunet. Det vil bli lagt ferdigplen og plantet thuia hekk samt satt opp en mur i bakkant mot fjell skråning og noen lave vekster i bed ut mot kommunal vei.
Tinglyste rettigheter og forpliktelser
Kommunen har legalpant som sikkerhet for betaling av kommunale avgifter. Legalpant er pant som følger av loven, og som ikke tinglyses. Legalpant følger derfor eiendommen ved salg. På eiendommen kan det være tinglyst erklæringer som f eks rett for kommunen til å vedlikeholde rørsystemer for vann- og kloakk. Disse erklæringene vil følge eiendommen ved salg. Kontakt megler for nærmere informasjon.
Øvrige sameiere har panterett i seksjonen for krav mot sameieren som følge av sameieforholdet, jf. eierseksjonsloven § 31. Pantekravet kan ikke overstige 2G (Folketrygdens grunnbeløp). Sameiet kan vedtektsfeste ytterligere panterett for sameiet. Vedtektsfestet pant tinglyses i seksjonene.
Servitutter / rettigheter
Eiendommen overdras fri for pengeheftelser, med unntak av eventuelle erklæringer, avtaler, servitutter og panteheftelser som fremgår av salgsoppgaven og skal følge med eiendommen ved salg. Kjøpers bank vil få prioritet etter disse.
Vei / Vann / Avløp
Eiendommen vil bli tilknyttet offentlig vann- og avløpsnett via private stikk- og fellesledninger. Vi gjør oppmerksom på at private ledninger vedlikeholdes for eiers regning.
Eiendommen vil få tilkomst fra offentlig vei.
Ferdigattest eller midl. brukstillatelse
Det vil foreligge ferdigattest eller midlertidig brukstillatelse ved overtagelse av boligen.
Verdi ved skattefastsetting
Verdien ved skattefastsetting er p.t. ikke fastsatt. Verdien ved skattefastsetting fastsettes av Ligningskontoret etter beregningsmodell som tar hensyn til om boligen er en såkalt "primærbolig" (der boligeieren er folkeregistrert bosatt) eller "sekundærbolig" (alle boliger man eier, men ikke bor fast i). Interessenter oppfordres til å sjekke www.skatteetaten.no eller kontakte ansvarlig megler for nærmere informasjon om verdien ved skattefastsetting.
Reguleringsforhold
Eiendommen ligger i et område som er regulert til boligformål.
Vi oppfordrer interessenter til å sette seg spesielt godt inn i reguleringskart og de gjeldende reguleringsbestemmelsene for området.
Beskrivelse av sameiet
En sameier eier en andel i eiendommen, med tilknyttet enerett til bruk av sin bruksenhet, jf. eierseksjonsloven § 25.
Ingen kan erverve mer enn to boligseksjoner i et sameie, jf. eierseksjonsloven § 23 første ledd. Dersom et erverv har funnet sted i strid med eierseksjonslovens regler kan Kartverket nekte overskjøting.
Dersom overskjøting blir nektet, er kjøper likevel forpliktet til å gjennomføre handelen med selger, og oppgjør til selger vil finne sted tross manglende overskjøting.
Interessenter oppfordres til å sette seg inn i sameiets vedtekter, husordensregler, regnskap, budsjett, årsberetning m.m. Se særlig om vedtekter og husordensregler knyttet til husdyrhold, dugnader, trappevask o.l.
Andre faste løpende kostnader
Kommunale avgifter Kr. 20 000 pr. år
Ikke fastsatt, stipulert ut fra tilsvarende boliger i område.
Finansiering
Kontakt megler for avklaring av finansielle forhold, herunder lån til kjøp av eiendom. Privatmegleren har avtale med Nordea om formidling av lån og andre finansielle tjenester. Privatmegleren mottar godtgjørelse for dette.
Annen nyttig informasjon
Tilkobligsavgifter av strøm og fiber er ikke inkludert.
Adgang til utleie
Eiendommen kan i sin helhet fritt leies ut til boligformål.
Konsesjon / Odel
Nei.
Sikkerhetsstillelse
Alle eiendomsmeglingsforetak har lovpålagt forsikring av klientmidler begrenset oppad til kr 45 mill. Enkeltsaker er forsikret inntil kr 15 mill. Dersom kjøpers låneinstitusjon krever tilleggsforsikring ved omsetning over 15 millioner, må kjøper selv eller dennes låneinstitusjon dekke utgiftene forbundet med dette.
Planlagt overtagelse
Ca. 1 år fra igangsettingstillatelse. Nærmere tidspunkt for overlevering setter i kontrakten.
Selgers forbehold
Bygging er vedtatt, ingen forbehold.
Solgt ihht bustadoppføringsloven
Boligene selges i henhold til Bustadoppføringslova som regulerer kjøpers (forbrukers) rettigheter og plikter ved avtale om oppføring av bolig og kjøp av fast eiendom der bygningen ikke er fullført når avtalen inngås. Ved salg til aksjeselskap legges Avhendingslovens bestemmelser til grunn. For øvrig gjelder Lov om eierseksjoner for eierseksjonssameiet og driften av dette.
Garantier
Det stilles garantier i henhold til Bustadoppføringslovas bestemmelser. Garanti etter § 12 vil bli stilt i forbindelse med avtaleinngåelse. Garantien skal være pålydende 3% av kjøpesummen i byggetiden og 5% i 5 år etter overlevering av boligene til kjøper. Garanti etter § 47 forutsettes stilt om selger ønsker utbetalt forskudd/delinnbetaling/sluttoppgjør før hjemmelsovergang. Eventuelle påkrevde endringer av garantier ved eventuelle videresalg/transporter utføres ikke og bekostes ikke av selger.
Forsikring
Frem til overtagelse vil eiendommen være forsikret av selger. Etter overtagelse vil eiendommen forsikres gjennom sameiets fellesforsikring. Kjøper må selv besørge innboforsikring og forsikring av eventuelle særskilte påkostninger.
Budgiving
Boligene selges til fastpris.
Alle bud/kjøpetilbud på eiendommen skal være skriftlig og sendes meglerforetaket pr. fax, mail, sms eller via vår "gi bud"-knapp på våre nettsider. Knappen finner du også på Privatmeglerens hjemmeside for prosjektet, se på den enkelte bolig.
Bud/kjøpetilbud må ikke ha kortere akseptfrist enn til kl. 12.00 første virkedag etter siste annonserte visning. Lørdag regnes ikke som virkedag. Bud/kjøpetilbud med kortere frist enn dette kan ikke formidles av megler. Nærmere info om budgiving finner du på egen side sammen med kjøpetilbud/budskjema.
Som budgiver hos Privatmegleren kan du kreve budjournal fremlagt så snart handel er gjennomført.
Innhold i budjournal er lovregulert, og innebærer at budgivere må akseptere at opplysninger om budet kan bli fremlagt for selger, kjøper og øvrige budgivere. Budgiver som ikke blir kjøper, kan kreve kopi av anonymisert budjournal.
Lov om hvitvasking
Megler er underlagt lov om hvitvasking som innebærer plikt til å melde ifra til Økokrim om mistenkelige transaksjoner
Meglers vederlag og utlegg
Avtalen er mellom eiendomsmegler og utbygger.
Nyttige lenker
Nærområdet
PrivatMegleren Østbø & Kaldheim
Elisabeth Marvik
Annonseinformasjon
| FINN-kode | 392664990 |
|---|---|
| Sist endret | 03. des. 2025 10:39 |
| Referanse | 314259000 |
Annonsene kan være mangelfulle i forhold til lovpålagt opplysningsplikt. Før bindende avtale inngås oppfordres interessenter til å innhente komplett informasjon fra meglerforetaket, selger eller utleier.























































