Bildegalleri

Velkommen til Steinerud!
Steinerud 25 og 27
Steinerud Jaren - NY PRIS - To prosjekterte eneboliger med moderne uttrykk i veletablert og populært nabolag
Prisantydning fra
5 550 000 kr
Prisantydning til
5 600 000 kr
Prosjektets status
Planlegging
-
Salgsstart
-
Byggestart
-
Overtakelse
-
Nøkkelinfo
- Boligtype
- Enebolig
- Soverom
- 3
- Internt bruksareal
- 130 m² (BRA-i)
- Bruksareal
- 155 m²
- Eksternt bruksareal
- 25 m² (BRA-e)
- Balkong/Terrasse
- 26 m² (TBA)
- Eieform
- Eier (Selveier)
- Energimerking
- B - Oransje
Fasiliteter
Enheter i prosjektet
Sorter etter
| Enhet | BRA-i | Soverom | Totalpris |
|---|---|---|---|
| H0101 | 130 m² | 3 | 5 621 350 kr |
| H0102 | 130 m² | 3 | 5 571 350 kr |
Beskrivelse
Eiendomsbetegnelse
Gnr. 153 bnr. 17 i Gran kommune
Beliggenhet
Eiendommen ligger flott til i et veletablert nabolag rett i utkanten av Jaren. Kort vei til alt en trenger i hverdagen, samt fine turmuligheter i nærområdet . Vil man ta en tur på fjellet er det kort vei til Lygna skisenter, et av landets beste skianlegg. Det er også nærhet til idrettsanlegg og diverse andre fritidsaktiviteter. På sommerstid kan man nyte at Randsfjorden ligger noen minutters kjøretur fra boligen.
Nærhet til skoler (Jaren Skole) og barnehager på Jaren, bla. med Trulesrudenga barnehage i kort gangavstand fra boligen. Gode pendlermuligheter med kort vei til Rv4 samt togstasjon med kommunikasjon til bla. Oslo og Gjøvik.
Ca. 3 km til Brandbu, som nærmeste handelssenter. Evt. ca. 7 km til Gran med utvidet servicetilbud. Her finner en diverse servicetilbud som apotek, vinmonopol, dagligvare forretninger, post, restaurant og kjøpesenter med diverse butikker mm. Til Oslo er det ca. 70km på fine nye veier, og til Gardermoen ca. 50 km.
Innhold
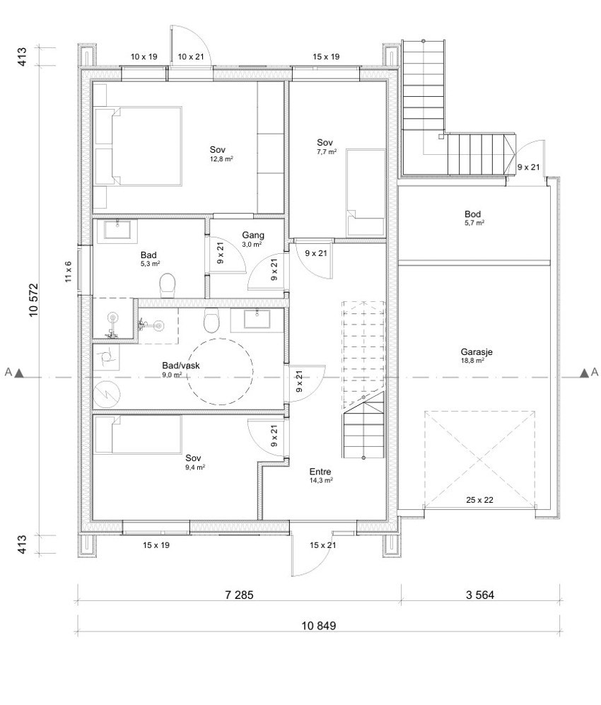
1. etasje: Entrè, 3 soverom, bad, bad/vaskerom, gang, garasje og bod
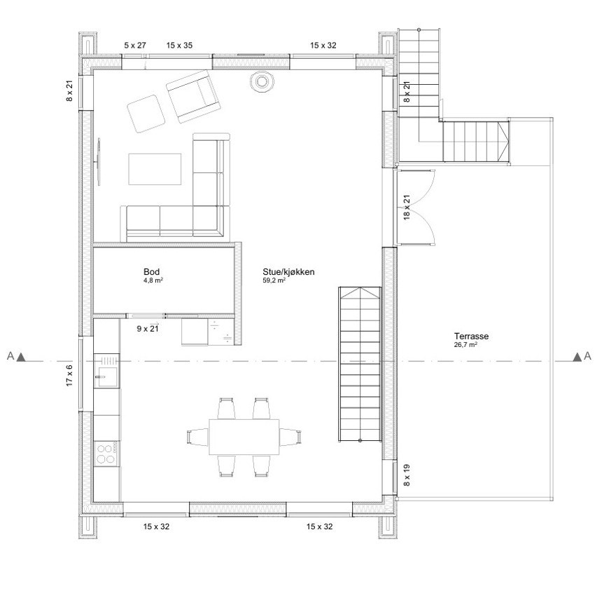
2. etasje: Stue/kjøkken i åpen løsning, bod. Terrasse over garasje.
Kort om prosjektet
Her får du en helt ny frittstående enebolig på egen tomt i et veletablert nabolag. Prosjektet består av to eneboliger med garasjeplass. Boligene er formet og designet av Vigga Bygg med et meget moderne uttrykk. Det er lagt vekt på praktiske og plasseffektive løsninger og gode materialvalg både innvendig og utvendig.
1. etg:
Fra det romslige inngangspartiet er det adkomst til de tre soverommene, badet og vaskerommet. Her er det godt med plass til oppbevaring av yttertøy og sko. Videre er det tre soverom på hhv. 12,8 kvm, 9,4kvm og 7,7 kvm. Det største soverommet har terrassedør ut til hagen, og garderobeskap på en vegg. Stort bad/vaskerom (9kvm) med opplegg for vaskemaskin, toalett, dusjhjørne, baderomsmøbel med armatur og varmtvannstank. Videre er det et plasseffektivt bad med dusjnisje, toalett og baderomsmøbel med armatur.
2. etg:
Andre etasje byr på store romslige flater i en åpen løsning. Moderne kjøkken med god plass til spisebord. Kjøkkenet leveres med underskap og overskap med slett utførelse langs en vegg, samt integrerte hvitevarer som stekeovn, oppvaskmaskin, steketopp, kjøkkenventilasjon og kombi kjøl-fryseskap. I stuen legges det opp til to soner. En tv-krok og en for avslapping foran peisen. Herfra er det også adkomst til takterrasse over garasje. Fra takterrassen er det trapp ned til hage. I bakkant av garasje er det sportsbod med oppbevaringsmuligheter.
Oppvarming:
Det leveres gulvvarme i stue, kjøkken, entre og bad. Balansert ventilasjon med varmegjenvinning. Det leveres også peisovn i stue, samt luft-til-luft varmepumpe fra Daikin. Panelovner på soverom. Vannbåren varme kan leveres som tilvalg.
Overflater:
Himlinger og vegger leveres i slettmalt gips.
Gulv leveres med laminat eller 3 stavs eikeparkett.
Diverse:
Fiber for TV/Internett
Trapp i hvitmalt furu
Se vedlagt leveransebeskrivelse for ytterligere informasjon.
Totalentreprenør: Vigga Bygg AS.
Byggherre/tiltakshaver: Male Berisha
Elektro: Hadeland Elektro AS
Rørlegger: Toralf Brunstad AS
Gravefirma: Runar Dyrud AS
Adkomst
Følg Rv 4 og sving av ved Mohagaveien, inn Mohagastikken til Steinerud, adresse Steinerud 25 og 27.
Prisantydning
Prisantydning:
Steinerud 25: kr. 5.600.000,-
Steinerud 27: kr. 5.550.000,-
Faste, løpende kostnader
Ved innflytting må kjøper forvente følgende løpende kostnader på eiendommen:
Forsikring, strøm, vann og avløp, tv, internett, kommunale avgifter, feieavgift, renovasjon.
Listen er ikke uttømmende.
Bebyggelse
På tomten blir det oppført en enebolig med garasje.
Området forøvrig består av tilsvarende småhus bebyggelse og industri.
Parkering
Parkering ved garasje eller på biloppstillingsplasser foran boligen.
Byggemåte
Plate på ringmur og såle av betong med isolasjon på stabil grunn.
Etasjeskillere utføres av I-bjelker e.l. av tre med undergulv av sponplater på oversiden og 10 cm mineralull-isolasjon for å dempe lyd. Ventilasjon og rør legges i bjelkelaget.
Yttervegger utføres av bindingsverk av tre med 25 cm isolasjon. Kledning blir levert grunnet og med to strøk beis/maling.
Innvendige lettvegger bygges av trestendere og isoleres med 5 cm mineralull for å dempe lyd. Der veggene skal kles med fliser legges ett lag sopp- og fuktresistent plate.
Takene tekkes med båndtekking lagt på lekter. Det monteres takrenner med nedløp med utkastere på terreng. På tak monteres snøfangere og stigetrinn for tilkomst for feier.
Se selgers leveranse-/byggebeskrivelse.
Byggebeskrivelsen/leveransebeskrivelsen skal angi hvilken teknisk standard prosjektet leveres med, samt foreløpig angi hva komplett leveranse etter kjøpekontrakten innebærer. Dersom det ikke er tatt inn spesifiserte bestemmelser i kjøpekontrakten, gjelder følgende krav:
- De tekniske løsninger skal tilfredsstille plan- og bygningslovgivningen, herunder kravene i teknisk forskrift.
- Utført arbeid skal tilfredsstille avtalte toleranseklasser i henhold til kontrakt. Om ikke toleransekrav er avtalt i kontrakt vil krav til avvik være i henhold til normalkrav i standarden, jfr. Norsk Standard NS 3420-1:2008
Det gjøres oppmerksom på at iht. teknisk forskrift, så er det ikke krav om at alle vinduer leveres med åpningsmulighet.
Selger forbeholder seg retten til å foreta endringer i materialvalg og konstruksjonsløsninger, samt foreta tilpasninger som er nødvendig etter hvert som tiltaket detaljprosjekteres uten forhåndsvarsel til kjøperne. Endringene skal ikke redusere byggets eller leilighetens kvalitet eller vesentlig endre innholdet i prosjektet som sådan. Slike endringer gir ikke rett til prisjustering fra noen av partene. Om det blir nødvendig å gjennomføre vesentlige endringer ut over de forannevnte bestemmelser, plikter selger å varsle kjøper om endringene uten ugrunnet opphold.
Oppvarming
Det leveres gulvvarme i stue, kjøkken, entre og bad. Balansert ventilasjon med varmegjenvinning. Det leveres også peisovn i stue, samt luft-til-luft varmepumpe fra Daikin. Panelovner på soverom.
Grunnarealer
Tomtene er relativt flate med noe skråning. De vil bli levert finplanert og tilsådd, samt gruset innkjørsel og biloppstillingsplass.
Eiendommen leveres ikke med hekk og lignende beplantning, og vil således avvike fra illustrasjoner.
Tomt / Eierform
Gnr. 153/17 (Steinerud 25):
Areal 884 kvm eiet tomt.
Eiendommen har 5 grensepunkter, hvorav 2 er offentlig godkjente og 3 er umerket.
Gnr. 153, bnr. 187 (Steinerud 27):
Areal 725 kvm eiet tomt
Eiendommen har 6 grensepunkter, hvorav 2 er offentlig godkjente, 1 er umerket og 2 er ukjent.
Energimerking
Selger er ansvarlig for at boligen har en energiattest. Energiattest fåes ved henvendelse til megler. Boligen er energimerket Oppvarmingskarakter Oransje - Energikarakter B.
Ytterligere opplysninger om energimerking finner du på www.energimerking.no
Ved ferdigstillelse kan kravene for energimerking ha endret seg slik at karakeren vil kunne avvike.
Ligningsverdi
Verdien ved skattefastsetting er p.t. ikke fastsatt. Verdien ved skattefastsetting fastsettes av Ligningskontoret etter beregningsmodell som tar hensyn til om boligen er en såkalt "primærbolig" (der boligeieren er folkeregistrert bosatt) eller "sekundærbolig" (alle boliger man eier, men ikke bor fast i). Interessenter oppfordres til å sjekke www.skatteetaten.no eller kontakte ansvarlig megler for nærmere informasjon om verdien ved skattefastsetting.
Kommunale avgifter
Det vil tilkomme kommunale avgifter og eiendomsskatt for boligen. Kommunale avgifter og eiendomsskatt fastsettes når boligene er ferdig bygget.
Det estimeres kommunale avgifter på ca. kr 25.000 pr. år.
Det gjøres oppmerksom på at de kommunale avgiftene i stor grad vil påvirkes av bruksmønster og antall beboere og vil derfor kunne avvike.
Vei, vann, avløp
Adkomstvei:
Det blir offentlig adkomstvei med privat stikkvei på eiendommen.
Tilknytning vann:
Offentlig vann med privat stikkledning.
Tilknytning avløp:
Offentlig avløp med privat stikkledning.
Selger bekoster påkoblingsavgift for vann/avløp.
Ferdigattest / Midlertidig brukstillatelse
Ferdigattest eller midlertidig brukstillatelse skal foreligge før overtagelse kan finne sted. I motsatt fall anbefaler megler at overtagelse utsettes og at kjøper ikke overtar. Selger er ansvarlig for at det blir utstedt ferdigattest på eiendommen. Dersom ferdigattest ikke foreligger ved overtakelse anbefaler megler at kjøper holder tilbake et beløp, til sikkerhet for at ferdigattest blir utstedt.
Reguleringsforhold
Kommunedelplan:
Planid: KP2017.
Navn: Kommuneplanens arealdel Gran kommune.
Plantype: Kommuneplanens arealdel.
Kommuneplaner under arbeid:
Planid: KP2022.
Navn: Kommuneplanens arealdel.
Plantype: Kommuneplanens arealdel.
Status: Planforslag.
Gjeldende regulering:
Planid: E-50.
Navn: Steinerud.
Plantype-. Eldre reguleringsplan.
Garantier
Selger skal, umiddelbart etter at avtale er inngått, stille garanti etter bustadoppføringslova § 12. Garantien skal gjelde fra tidspunkt for avtaleinngåelse og frem til fem år etter overtagelse. Garantien skal tilsvare minst 3 % av kjøpesummen frem til overtagelse, og minst 5 % etter overtagelse. Er det i avtalen tatt forbehold som beskrevet i bustadoppføringslova § 12 annet ledd, andre setning, er det tilstrekkelig at selger stiller garantien straks etter at forbeholdene er falt bort, men selger skal uansett stille garanti før byggearbeidene starter. Til det er dokumentert at det foreligger §12 garanti, har forbrukeren rett til å holde tilbake alt vederlag. Dersom selger stiller §47 garanti, vil deloppgjør utbetales selger /byggelånsbank. Renter på klientkonto tilhører kjøper frem til overtakelse eller §47 garanti foreligger. Garantiene stilles direkte til kjøper med kopi til megler.
Utleieadgang
Boligene har bare én boenhet og ingen separat utleiedel. Det er ikke kjent at det foreligger offentligrettslige regler som er til hinder for at hele eiendommen leies ut.
Kjøpsbetingelser
Kjøpsbetingelsene regulerer betingelsene for kjøp av bolig. Avtale anses inngått når kjøper har levert megler skriftlig bindende bekreftelse på kjøp og aksept er meddelt.
Kjøpsbetingelsene utgjør, sammen med akseptbrev, leveransebeskrivelse og skriftlige opplysninger i prospekt/brosjyremateriell, de samlede avtalevilkårene for kjøp av den aktuelle boligen.
Kjøper og selger vil senere inngå fullstendig kjøpekontrakt med endelige vedlegg inkl. tegninger. Kjøper aksepterer at detaljbestemmelser først kan bli avklart på dette tidspunkt. Inneholder kontraktsdokumentene bestemmelser som strider mot hverandre, gjelder yngre bestemmelser foran eldre, spesielle foran generelle, og bestemmelser utarbeidet særskilt for handelen, foran standardiserte bestemmelser.
Kjøper gjøres oppmerksom på at alle skisser, frihånds- og oversiktstegninger i perspektiv, fotos, annonser, bilder og planer er foreløpige og utformet for å illustrere prosjektet. Slike tegninger, fotos, annonser, beskrivelser, mv., vil derfor inneholde detaljer - eksempelvis beplantning, innredning, møbler, tekst og andre ting - som ikke nødvendigvis vil inngå i den ferdige leveransen, og er ikke å anse som en del av avtalevilkårene for kjøpet. Slike avvik kan ikke påberopes som mangel fra kjøpers side.
Lovgrunnlag
Boligene selges til forbrukere i henhold til Bustadoppføringslova.
Dersom kjøper ikke er forbruker kommer i utgangspunktet ikke bustadoppføringslovens regler til anvendelse. For ikke-forbrukere skal bustadoppføringsloven komme til anvendelse med unntak av følgende paragrafer som således ikke kan påberopes: -§§8, 12, 16, 18, 24, 31, 47, 49 og 51-54.
Etter at boligene er ferdigstilte selges boligene etter Avhendingslova til både forbrukere og næringsdrivende.
Avbestilling
Forbrukerkjøper kan avbestille i henhold til reglene i bustadoppføringslova §§ 52 og 53 frem til overtakelse har funnet sted. Lovens utgangspunkt er at utbygger skal holdes skadesløs ved avbestilling. Det vil si at den som avbestiller må dekke alle tap som måtte oppstå på selgers hånd. Selger kan alternativt velge å fremsette et tilbud om et fast avbestillingsgebyr jfr. bustadoppføringslovens § 54. Dersom det aksepteres av kjøper, vil det utgjøre grunnlaget for et endelig oppgjør mellom partene. Størrelsen på avbestillingsgebyret vil i tilfelle bli beregnet i det enkelte tilfelle.
Ikke-forbrukere har ikke rett til avbestilling.
Tilvalgsmuligheter
Boligen med utførelse er spesifisert i leveransebeskrivelsen. Alle endringer må avtales skriftlig, og prissettes i avtalen. Etter at byggestart er besluttet for prosjektet, vil kjøper bli kontaktet av en representant og invitert til et møte for å gjennomgå tilvalg. I kontraktsmøtet vil kjøper få tildelt Innredningsguiden som også viser pris for de ulike tilvalgene. Eventuelle endringer utover leveransebeskrivelsen er en endring og prises separat. Slike endringer er ikke-standardiserte og vil være forbundet med særskilte kostnader til administrasjon, prosjektering og eventuelle merkostnader til materialer og arbeid. Utbygger har rett til å ta seg betalt for utarbeidelse av pristilbud, tegninger m.v, jf. Bustadsoppføringslova (Buofl.) § 44.
Tillegg-/ endringsarbeider:
Kjøperen kan ikke kreve å få utført endringer eller tilleggsarbeider:
a) som vil endre kontraktsummen med 15 % eller mer,
b) som ikke står i sammenheng med selgers ytelse eller
c) som vil medføre ulemper for selger som ikke står i forhold til kjøpers interesse i å kreve endringen eller tilleggsarbeidet. jf. bustadoppføringslovas §9, 2. avsnitt.
Selgeren skal skriftlig klargjøre for kjøperen de kostnadsmessige og tidsmessige konsekvensene av de endringene eller tilleggsarbeidene kjøperen krever.
Tilleggsvederlag/Tilleggsfrist:
Partene kan kreve justering av det avtalte vederlag i henhold til Bustadoppføringslovas regler om endringer og tilleggsarbeid. Selger kan kreve tilleggsvederlag for nødvendige kostnader som kommer av forhold på kjøperens side. Selgeren kan også kreve at kjøperen stiller sikkerhet for selgerens krav på tilleggsvederlag.
Mot sikkerhet etter Bustadoppføringslova § 47, kan selgeren/underleverandør kreve at kjøperen betaler forskudd for vederlag for endringer og tilleggsarbeider.
Uten §47-garanti, forfaller kostnader knyttet til kundeendringer til betaling sammen med kjøpesummen for leiligheten.
All betaling av tilleggsvederlag skal normalt skje via meglers klientkonto.
Dersom det likevel inngås avtale om at fakturering skal skje direkte til kjøper fra selger eller underleverandør, skal forfall tidligst være samme dag som overtakelse.
Selgeren skal skriftlig klargjøre for kjøperen de tidsmessige konsekvensene av de endringene eller tilleggsarbeidene kjøperen krever. Om selgeren vil påberope seg tilleggsfrist, skal kjøper varsles ved inngåelse av endringene eller tilleggsarbeidene.
Videresalg
Kjøper kan søke om å få transportere sinerettigheter og plikter til en ny kjøper, senest 1 måned før overtagelse. Transporten kreversamtykke fra selger, og selger kan nekte overdragelse på fritt grunnlag. Transportgebyret utgjør kr. 50 000,- og betales av opprinnelig kjøper. Utgifter til eventuell bruk av megler kommer i tillegg. Påkrevde endringer av garantier ved et evt. videresalg/transport bekostes ikke av selger/utbygger.
Forbehold
Salgsprospekt og prosjektbeskrivelsen er utarbeidet for å orientere om prosjektets generelle bestanddeler, funksjoner og planlagte organisering, og er således ikke en komplett beskrivelse av leveransen. Det vises for øvrig til kundetegninger og leveransebeskrivelse med vedlegg. Alle illustrasjoner, 3D animasjoner, skisser, "møblerte" plantegninger m.m. er kun ment å danne et inntrykk av den ferdige bebyggelsen, og kan ikke anses som endelig leveranse. Inntegnet utstyr/inventar medfølger ikke dersom det ikke fremkommer av plantegning, og det kan derfor fremkomme elementer i presentasjonsmaterialet som ikke inngår i leveransen.
Det kan være avvik mellom de planskisser, planløsninger og tegninger som er presentert i prospektet, og den endelige leveransen. Slike avvik utgjør ingen mangel ved selgers leveranse som gir kjøper rett til prisavslag eller erstatning. Dersom det er avvik mellom tegninger i prospekt / internettside og leveransebeskrivelsen i den endelige kontrakt med kjøper, vil leveransebeskrivelsen ha forrang og omfanget av leveransen er begrenset til denne. Det tas forbehold om trykkfeil i prospektet. Sjakter, innkassinger o.l. og VVS føringer er ikke endelig tegnet inn. Selger har rett til å foreta endringer i prosjektet som ikke vesentlig forringer prosjektets kvalitet eller standard, herunder arkitektoniske endringer, materialvalg, mindre endringer i konstruksjon, rørgjennomføringer og/eller tomtetilpasninger. Slike endringer er ikke å anse som mangler ved ytelsen. Det samme gjelder de endringer som må gjøres som følge av kommunens byggesaksbehandling og krav i ramme- og igangsettingstillatelser, samt andre offentlige tillatelser.
Selger står fritt til å akseptere eller avslå ethvert bud, herunder bestemme om de vil akseptere salg til selskaper, samt om de vil akseptere salg av flere boliger til samme kjøper. Selger forbeholder seg retten til uten varsel å kunne endre priser og betingelser for usolgte boliger.
Selger tar følgende spesielle forbehold for gjennomføring av kontrakten:
- kommunen gir igangsettelsestillatelse
- byggelånet er åpnet
Dersom selger gjør forbehold gjeldende, gjelder følgende:
- Denne kjøpekontrakt bortfaller, med den virkning at ingen av partene kan gjøre krav gjeldende mot den annen part på grunnlag av kontraktens bestemmelser
- Ethvert beløp som kjøper har innbetalt skal, inkludert opptjente renter, uten ugrunnet opphold tilbakeføres til kjøper
Nyttige lenker
Nærområdet
Brørby Eiendomsmegling AS
Annonseinformasjon
| FINN-kode | 390058772 |
|---|---|
| Sist endret | 18. sep. 2025 02:40 |
| Referanse | 27249004 |
Annonsene kan være mangelfulle i forhold til lovpålagt opplysningsplikt. Før bindende avtale inngås oppfordres interessenter til å innhente komplett informasjon fra meglerforetaket, selger eller utleier.









