Bildegalleri

Image1_000.jpg
Hagekjeråsen 8
Hagekleiva - Prosjektert enebolig med utleiedel! Sentral tomt på Rom i Lyngdal
Prisantydning
5 950 000 kr
Prosjektets status
Planlegging
Ferdig
Salgsstart
For salg
Byggestart
Ved salg
Overtakelse
2025
Nøkkelinfo
- Boligtype
- Enebolig
- Soverom
- 4
- Bruksareal
- 158 m²
- Eieform
- Selveier
Enhet i prosjektet
| Enhet | Etasje | BRA | Soverom | Totalpris |
|---|---|---|---|---|
| - | 2 | 158 m² | 4 | 5 979 990 kr |
Beskrivelse
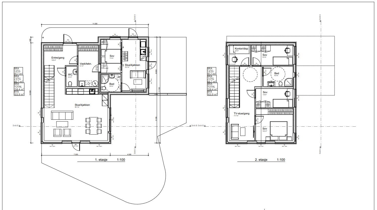
Flott prosjektert enebolig med høy standard for salg i populære Hagekleiva boligfelt! Boligen vil bestå av en hoveddel med stue/kjøkken, wc og teknisk rom i hovedetasje (1 etg.) Her vil en få utgang til hagedel. I tillegg vil det bli bygget en hybel på ca 25 kvm. Denne får gjennomgang til hoveddelen gjennom vaskerom. Perfekt til utleie, evt til generasjonsbolig. Alternativt så kan en ta bort hybel og legge hele arealet til hoveddelen. 2. etg på hoveddelen består av tv/stue, 3 soverom, kontor og baderom.
Boligen er ikke bygget - en må beregne ferdigstillelse ca 6 mnd etter kontraktssignering. I prospektet vil du finne mer info om romskjema og detaljert leveransebeskrivelse.
Eiendommen bygges gjennomført med moderne løsninger og fine detaljer. Leveres nøkkelferdig til avtalt overtakelse. Gode arealeffektive løsninger som gjør at eiendommen kan brukes av en stor familie og med utleiemuligheter. Tomten overleveres med ferdigplen og asfaltert tun.
Eiendommen ligger fint til i sentrale Hagekleiva boligfelt - med gangavstand til bl.a. Handelsparken, skole og barnehager.
Lave omkostninger ved kjøp. Kun dokumentavgift av tomteverdien.
Beliggenhet
Adkomst via Hagekjeråsen.
Ferdigstillelse
Eiendommen er forventet ferdigstilt ca 6 mnd etter kontraktssignering.
Overtakelse skjer straks boligen er ferdigstilt og bør skje etter at ferdigattest foreligger, dog vil overtakelse skje ved midlertidig brukstillatelse dersom kommunen utsteder slik midlertidig brukstillatelse. Det er ulovlig å ta boligen i bruk uten ferdigattest/midlertidig brukstillatelse. Kjøper har heller ingen plikt til å overta eller innbetale oppgjør uten at ferdigattest/midlertidig brukstillatelse foreligger.
Eiendommen skal overtas ved overtakelsesforretning hvor begge parter deltar. Kjøper skal varsle om ev. forhold som påberopes som mangel ved eiendommen. Det påpekes at dette gjelder alle forhold kjøper avdekker eller med rimelighet burde avdekket ved gjennomgangen. Ev. reklamasjoner og selgers standpunkt til disse skal protokolleres og overtakelsesprotokollen skal signeres av begge parter.
Selger skal overlevere eiendommen i byggrengjort stand, og fellesarealer i ryddet stand.
Kjøper kan nekte overtakelse dersom eiendommen på overtakelsestidspunktet har feil og/eller mangler som gir rimelig grunn for nektelsen. Selger forplikter seg da til innen rimelig tid å utbedre alle feil og/eller mangler som blir protokollert under befaringen.
Risikoen for eiendommen går over på kjøper når kjøper har overtatt eiendommen. Hvis eiendommen ikke overtas til avtalt tid, og årsaken ligger hos kjøper, har kjøper risikoen fra det tidspunkt eiendommen kunne vært overtatt. Når risikoen for eiendommen er gått over på kjøper, faller ikke kjøpers plikt til å betale kjøpesummen bort ved at eiendommen blir ødelagt eller skadet som følge av en hendelse som selger ikke svarer for.
Oppvarming
Boligene leveres med varmekabler på gulv med belegg, samt en stk varmepumpe fra Panasonic.
Garasje/parkering
Parkering på egen tomt.
Midlertidig brukstillatelse og ferdigattest
Det er ulovlig å ta boligen i bruk uten ferdigattest eller midlertidig brukstillatelse, og selger plikter å fremlegge minimum midlertidig brukstillatelse til kjøper og megler før overtakelse.
Selger skal sørge for ferdigattest. Dersom kommunen utsteder midlertidig brukstillatelse kan kjøper overta og bebo boligen. Gjenstående arbeider skal ferdigstilles av selger innen den frist som er satt av kommunen. Dersom gjenstående arbeider ikke blir utført innen fristen, kan kommunen gi selger pålegg om å ferdigstille, ev. gi tvangsmulkt og/eller forelegg.
Dersom overtakelse skjer ved midlertidig brukstillatelse, oppfordres kjøper til å sette seg inn i hva som gjenstår for at ferdigattest skal bli stilt. Kjøper har rett til å holde tilbake et beløp av oppgjøret på meglerforetakets klientkonto, som sikkerhet for utstedelse av ferdigattest. Beløpet kan frigis på bakgrunn av garanti etter bustadoppføringslova § 47, eller ved utstedelse av ferdigattest.
Forbehold fra utbygger
Det tas forbehold om at igangsettingstillatelse (bygningsarbeider) er gitt innen 6 uker etter signert kontrakt.
Det tas forbehold om åpning av byggelån.
Dersom dette ikke oppnås står utbygger fritt til å annullere inngåtte kontrakter innen avtalt frist. Det tas forbehold om offentlig saksbehandling og godkjenning. Selger skal uten ugrunnet opphold varsle kjøper skriftlig når grunnlaget for forbeholdene er falt bort, samt dato for bortfallet. Dersom selger gjør forbeholdene gjeldende, bortfaller kjøpekontrakten som er inngått mellom partene. Beløp som kjøper har innbetalt med tillegg av eventuelt opptjente renter utbetales til kjøper. Selger står fritt til på et hvilket som helst tidspunkt velge å frafalle forbeholdene selv om forutsetningene/ forbeholdene ikke er oppfylt.
Tilvalg og endringer
Kjøper har mulighet til å få utført endrings- og/eller tilleggsarbeider etter særskilt avtale. Kjøper vil bli informert om frist for tilvalg/endringsbestillinger. Denne fristen er endelig. Alle endrings- eller tilleggsarbeider skal avtales skriftlig mellom partene og avtalen skal redegjøre for pris og eventuell fristforlengelse som følge av endringene. Dersom selger vil påberope seg tilleggsfrist, skal kjøper varsles ved inngåelse av endringene eller tilleggsarbeidene. Det gjøres oppmerksom på at selger har rett til å ta seg betalt for utarbeidelse av pristilbud, tegninger mv., jf. bustadoppføringslova § 44.
Selger utarbeider en tilvalg-/endringsmeny som angir aktuelle muligheter for endringer og tilleggsarbeider. Priser kan inneholde påslag til selger for merarbeid knyttet til administrering av tilvalg og endringer fra underleverandører.
Kjøper kan ikke kreve å få utført endringer eller tilleggsarbeider:
a) som vil endre kontraktssummen med 15% eller mer,
b) som ikke står i sammenheng med selgers ytelse eller
c) som vil medføre ulemper for selger som ikke står i forhold til kjøpers interesse i å kreve endringen eller tilleggsarbeidet.
Se for øvrig nærmere informasjon om tilvalg/kundeendringer i selgers leveransebeskrivelse.
Betalingsbetingelser
Hele kjøpesummen sammen med omkostninger skal innbetales til meglers klientkonto ved overtakelse, forutsatt at selger har stilt lovpålagt garanti etter bustadoppføringslova § 12. I henhold til bustadoppføringslova vil kjøpers innbetaling være å anse som forskudd inntil eiendommen er overtatt og skjøtet er tinglyst.
Ansvarlig megler
Torstein Hellestøl
Nyttige lenker
Nærområdet
Aktiv Sørlandet
Annonseinformasjon
| FINN-kode | 387905654 |
|---|---|
| Sist endret | 13. apr. 2026 11:35 |
| Referanse | 1408245040 |
Annonsene kan være mangelfulle i forhold til lovpålagt opplysningsplikt. Før bindende avtale inngås oppfordres interessenter til å innhente komplett informasjon fra meglerforetaket, selger eller utleier.







