Bildegalleri

Nøstebukten Brygge
Sikre deg drømmeboligen før valgmulighetene forsvinner!
Prisantydning fra
3 055 000 kr
Prisantydning til
16 322 500 kr
Prosjektets status
Planlegging
-
Salgsstart
- Vinter 2024
Byggestart
- Våren 2025.
Overtakelse
- Høsten 2027.
Nøkkelinfo
- Boligtype
- Leilighet
- Soverom
- 1 - 3
- Internt bruksareal
- 36 - 121 m² (BRA-i)
- Bruksareal
- 127 m²
- Eksternt bruksareal
- 2 - 7 m² (BRA-e)
- Balkong/Terrasse
- 3 - 41 m² (TBA)
- Eieform
- Andel
Utvalgte enheter
Enheter i prosjektet
Sorter etter
Visning
Beskrivelse
Matrikkel
Gnr. 165 bnr. 575 i Bergen kommune
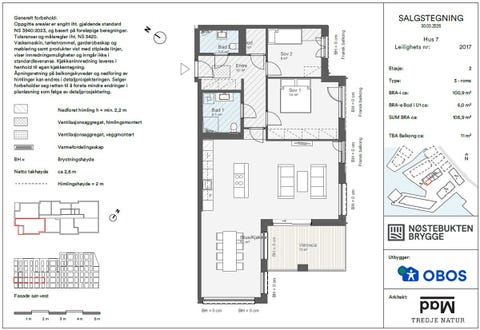
Arealer og fordeling per etasje (NY)
Totalt BRA '37 kvm består av:
- BRA-i (internt bruksareal): 37 kvm
- BRA-b (innglasset balkong):
- BRA-e (eksternt bruksareal):
- TBA (terrasse-/balkongareal) 4 kvm
Adresse
Nordre Nøstekaien 1
5011
Bergen
Fasiliteter
- Felles takterrasser for beboerne i borettslaget
- Private uteplasser. En del av leilighetene får private uteplasser/balkonger
- Noen av leilighetene får private takterrasser
- Det leveres vannbåren gulvvarme i entre, stue og kjøkken
- Varmekabler i badegulv
- Balansert ventilasjon med varmegjenvinning
- Tilgjengelige boliger*
- Kjøkken fra Sigdal med integrerte hvitevarer
- Heis i alle byggene
- Enkelte leiligheter har mulighet for kjøp av parkeringsplass i garasje
- Sykkelparkering i under etasjen
- Rett til å bruke oppholdsrom i barnehagens areal
- Tilvalgsmuligheter
- Energieffektive leiligheter med energimerke B eller bedre
- Barnehage
*Leiligheter uten tilgjengelighetskrav* Enkelte boliger i prosjektet er unntatt fra regelen om tilgjengelighetskrav. Dette gjelder for følgende leiligheter i hus 4: 1001, 2002, 3002, 4002, 5002.
Om prosjektet
Prosjektet består av 3 hus i 6 etasjer, hus 4, 5 og 7, med til sammen 96 leiligheter, 1 barnehage og 1 garasjeanlegg. Boligene i hus 4 og 7 går fra 1. etasje til 6. etasje. I hus 5, og
deler av hus 4, så er det næringslokale i 1.etasje som er planlagt til barnehage. Det blir garasjeanlegg under bakken med totalt 34 parkeringsplasser, 6 MC plasser, samt sykkelparkering og sportsboder. Det er avsatt 6 plasser til Bildelering iht. til reguleringsbestemmelser. Det er 28 salgbare garasjeplasser, hvorav 4 av disse er HC plasser. Utearealene tilknyttet prosjektet omfatter promenade med nedtrappinger til sjø, samt byrom mellom husene innenfor selve boligfeltet. Utformingen av utearealet, med såkalte kantsoner, tydeliggjør overgangene mellom offentlige og private boligsoner.
Trenger du en snarvei inn i boligmarkedet?
OBOS tilbyr OBOS Deleie og OBOS Bostart på enkelte leiligheter. Med Deleie kan du kjøpe halve boligen, eller mer, og bo i hele. Med Bostart kan du kjøpe en helt ny bolig til en lavere pris enn markedspris - mot at OBOS får retten til å kjøpe den tilbake. Les mer om kjøpsalternativene på våre nettsider (www.obos.no), eller kontakt prosjektselger for informasjon om dette konkrete prosjektet.
Organisering
Boligene i prosjektet skal eies av et borettslag, Nøstebukten Brygge Borettslag. Eiendommene som inngår i prosjektet skal slås sammen og seksjoneres, og utgjøre Sameiet Nøstebukten Brygge. Sameiet vil inneholde 1 næringsseksjon med barnehage planlagt i hus 5, og med en tilleggsdel i hus 4, og i tillegg vil også parkeringsplassene i garasjeanlegget utgjøre en næringsseksjon. Vedtekter som fastsettes av utbygger, vil regulere forholdet mellom borettslagets seksjon(er) og næringsseksjonene.
Om området
Livet på Nøstet - i hjertet av Bergen
Nøstet, med sin særegne beliggenhet mellom det travle sentrum og den behagelige havnefronten, er et område hvor fortid og nåtid møtes i en perfekt harmoni. Her finner du et nabolag som er fylt med historie, sjarm og ekte bergensk kultur. Nøstebukten Brygge blir et tilskudd i denne unike bydelen, som kombinerer det moderne med den tradisjonelle atmosfæren som har preget Nøstet i generasjoner. Å bo her betyr å kunne leve midt i byens puls, samtidig som du trekker deg tilbake til et stille og behagelig hjem ved vannet.
En autentisk bydel med sjel
Nøstet er et av Bergens mest karakteristiske boligområder, hvor tidløse trehus, små, trange smau og sjelfulle nabolag danner en levende samling av byens historie. Dette området har lenge vært kjent for sin sjømannskultur, og denne maritime arven kan fortsatt oppleves gjennom de rustikke sjøbodene og det avslappede livet ved havnen. Her bor du blant fargerike, historiske hus, som gir nabolaget en tidløs sjarm. Samtidig skjer det en revitalisering av Nøstet med spennende nybygg og kreative initiativer som tiltrekker både unge og eldre.
Nærhet til alt
Når du bor på Nøstet, har du Bergens sentrum rett utenfor døren. Det som virkelig skiller dette området fra andre sentrale bydeler, er kombinasjonen av nærhet til alt byen tilbyr og den roen man finner her. Fra Nøstebukten Brygge kan du spasere til Torgallmenningen, Bryggen, eller Fløibanen på få minutter, samtidig som du kan trekke deg tilbake ved sjøen som nå er din nærmeste nabo. Kulturtilbudene er mange: Den Nationale Scene ligger kun en kort rusletur unna, og for musikkelskere er det lett å ta del i konserter på Grieghallen, Verftet eller i mer intime omgivelser på en av byens mange musikkbarer. Butikker, dagligvareforretninger og spesialbutikker som bakerier, kaffebarer og designbutikker ligger også i gangavstand, noe som gjør det enkelt å dekke både hverdagslige og spesielle behov. Det å bo på Nøstet handler om frihet til å velge alt Bergen sentrum har å tilby. Selv om du bor midt i sentrum, er du på Nøstet aldri langt unna naturen. Fjellene som omkranser Bergen er like tilgjen gelige som de sjarmerende parkene og buktene. Løvstakken, Damsgårdsfjellet og Fløyen er alle innen rekkevidde for den som ønsker å gå på tur, enten det er en rask ettermiddagstur eller lengre utflukter i helgene. Fjorden er det naturlige trekkplasteret, og fra Nøstebukten Brygge kan du enkelt komme deg ut på vannet, enten med båt, kajakk eller stupe uti på varme sommerdager. Her kan du nyte det beste av begge verdener - det urbane livet i byen, og de karakteristiske naturopplevelsene som kjennetegner Vestlandet. Et levende nabolag Nøstet er et levende nabolag, der historie og moderne byliv smelter sammen. Den unike blandingen av folk gir området en dynamisk og inkluderende atmosfære. Samtidig er det en sterk lokal forankring her - mange av de som bor på Nøstet, har vært her i generasjoner, og det skaper et nabolag med en varm og imøtekommende identitet. Å være en del av Nøstet betyr å tilhøre et fellesskap hvor både nye og etablerte beboere bidrar til en levende bydel med et stort hjerte.
Slik blir boligene
Velg mellom attraktive 2-roms, 3-roms og 4-roms leiligheter i Nøstebukten Brygge. Felles for alle leilighetene er gode planløsninger og høy kvalitet, med en urban følelse. Det blir felles takterrasser for beboerne i borettslaget på alle 3 husene.
Parkering
Parkeringsplasser kjøpes separat. Borettslagets parkeringsbehov ivaretas gjennom den enkelte andelseiers kjøp av ideell andel i garasjeanlegget. Parkeringsplassene/eierandelene inngår ikke i borettslagets opprinnelige finansieringsplan, men er fullt ut finansiert av opprinnelig kjøper av plassen. Eierandelene kan omsettes innad i borettslaget. Parkering for borettslaget ligger under bygningsmassen med innkjøring fra Nøstegaten under hus 4. Det er totalt 34 p-plasser, 28 p-plasser er salgbare hvorav 4 p-plasser er HC-plasser, og 6 plasser er avsatt til Bildelering jr. reguleringsplanen.Oversikt over de leilighetene som har forkjøpsrett til p-plass fremgår av prisliste. Garasjeanlegget består av faste plasser, alle blir merket med unikt nummer. Lader for elbil kan bestilles som tilvalg i en begrenset periode. Det er avsatt egne arealer til sykkelparkering i kjeller. Innvendig bod leveres i de leiligheter dette er vist på tegning. Tekniske installasjoner som for eksempel sikringsskap, vannfordelings skap, hjemmesentral (IKT) og ventilasjonsaggregat kan bli plassert i innvendig bod. Det leveres én sportsbod på minimum 2,5 kvm i lukket anlegg i kjellerareal. Se prislisten for nærmere oversikt.
Garasjeplass koster kr. 950 000,-
MC plass koster kr. 300 000,-
Dersom man kjøper garasjeplass eller MC plasser kommer det et tillegg i driftskostnader (felles kostnader) på kr. 200,- pr.mnd.
Kvalitet, standard og tilvalg
- Oppvarming er basert på fjernvarme. Det leveres vannbåren gulvvarme i entre, stue og kjøkken.
- Varmekabler på bad.
- Flislagte bad med veggheng wc og baderomsinnredning. Baderom og WC leveres med lys keramisk flis fra Living Ceramics i format 60x60.
- Balansert ventilasjonsanlegg med varmegjenvinning.
- Kjøkken fra Sigdal med integrerte hvitevarer.
- Det leveres porttelefon med skjerm og tale for toveis kommunikasjon.
- En-stavs parkett i entre, stue, kjøkken, soverom og innvendig bod. Standard parkett er Pergo Falster Light Pure Oak.
Sikre deg drømmeboligen før valgmulighetene forsvinner!
En av de store fordelene ved å kjøpe leilighet i Nøstebukten Brygge nå, er at du kan sette ditt personlige preg på din nye bolig. Det betyr at du kan være med å påvirke hvordan boligen skal se ut - allerede før den står ferdig. I en begrenset periode kan du blant annet:
- Tilpasse din kjøkkenløsning, velge blant flere kjøkkenfronter og benkeplater.
- Sette ditt preg på badet med valg av fliser, innredning og armaturer.
- Velge blant et stort utvalg av parkett og innerdører.
- Velge farger på vegger som passer deg og din interiørstil.
- Gjøre oppgraderinger på det elektriske, som lysbrytere og stikkontakter.
- Velge blant flere andre kostnadsfrie valgmuligheter.
Endringer utover de forhåndsdefinerte tilvalgsmulighetene krever ofte omprosjektering og må godkjennes av byggherre. For utredning og pris av endringsforespørsler, vil det medføre et kalkulasjonsgebyr. Dette kommer i tillegg til kostnaden for de ønskede endringsforespørslene.
Gjenbruksmaterialer
Det vil være mulig å velge materialer fra de gamle byggene som tilvalg på utvalgte vegger i leilighetene. Teglstein og trevirke pusses opp, men vil sette et særegent preg på rommene, som viser tilbake til byggenes historie.
Oppvarming
Oppvarming er basert på fjernvarme. Det leveres vannbåren gulvvarme i entre, stue og kjøkken. Gulvvarmen kan reguleres, men begrenses oppad blant annet som følge av utetemperatur, inneklima-anbefalinger og arkettleverandørens anbefalinger. De leveres termostatstyrt elektrisk gulvvarme i baderom og wc. Det leveres ikke varmekilde på soverom. Det blir egne målere for varmt tappevann, gulvvarme og strøm. Det monteres anlegg for fjernavlesning av varmt tappevann og gulvvarme til hver enhet. I tillegg leveres det en hovedmåler for bygget. Generelt fordeles kostnadene knyttet til oppvarming og varmt tappevann dels etter eierbrøk og dels basert på målere. Det kan også bli lagt til rette for måling av forbruk av kaldtvann.
Energimerking
Boligenes varmetap og energibehov er dimensjonert i henhold til Byggeteknisk forskrift TEK 17. Ved overtagelse vil det bli utstedt energiattest, iht. enhver tid gjeldende lovverk. Boligene er foreløpig beregnet til energiklasse A, men endelig energiklasse blir beregnet ved utført trykketesting. Minimum klasse B blir levert. Det tas forbehold om at avvik kan forekomme, spesielt i leiligheter med mye vindusflate.
Innflytting
Nøstebukten Brygge vil bli overlevert i intervallet: 19.07.2027 - 19.10.2027.
Fellesgjeld/lånevilkår
Fellesgjelden i dette prosjektet er et annuitetslån over 40 år med 5 års avdragsfrihet. Dette lånet løper med flytende rente. Boligens felleskostnader er derfor beregnet med driftskostnader og rentekostnader på fellesgjelden etter denne satsen. Når fellesgjelden nedbetales fra år 6 må felleskostnadene forventes å øke. Prislisten for prosjektet viser hva dette er beregnet til (kontakt prosjektselger for fullstendig prisliste). For øvrig må endringer i den flytende rentesatsen forventes å medføre endringer i felleskostnadene. Et annuitetslån er et lån som nedbetales med like store terminbeløp, helt til lånet er innfridd. I begynnelsen er derfor avdragsdelen liten, mens rentedelen er stor. Etter hvert som lånet reduseres stiger avdragsandelen og renteandelen blir mindre.
I dette borettslaget kandu selv velge om du vil ha fellesgjeld eller ikke. Borettslaget etableres med et felleslån som utgjør 35 % av kjøpesummen, men for de kjøperne som ikke ønsker å ha fellesgjeld vil det bli mulighet for å innfri denne i forbindelse med overtagelse. De månedlige felleskostnadene utgjør kun driftskostnader for eiendommen dersom du ikke ønsker å ha fellesgjeld, men vil omfatte kapitalkostnader på felleslånet dersom du ønsker å ha fellesgjeld. Det vil også bli mulighet for full eller delvis innfrielse av eventuell fellesgjeld etter overtakelse. Dersom du ønsker å overta boligen med fellesgjeld vil denne utgjøre inntil 35 % av boligens totalpris og skal finansieres gjennom et lån som borettslaget har søkt om. Felleskostnadene består av kapitalkostnader og driftskostnader. Dersom du innfrir fellesgjelden så betaler du kun driftskostnader pr. mnd.
Borettslaget har IN -ordning (individuell nedbetaling av fellesgjeld) åpner for at den enkelte andelseier helt eller delvis kan nedbetale boligens andel av fellesgjeld. En innbetaling innenfor IN -ordningen gir andelseieren reduserte månedlige felleskostnader tilsvarende reduksjonen i renter og avdrag på borettslagets fellesgjeld.
Når kan kjøper foreta innbetaling på IN-ordningen?
- Ved sluttoppgjøret før overtakelse.
- Senere 2 ganger årlig, minimum kr. 60.000,- pr. innbetaling.
Det påløper normalt en etableringskostnad for inngåelse av IN-avtalen, men ved innbetaling i forbindelse med ferdigstillelse av boligen eller innbetaling ved første mulighet etter at felleslånet er utbetalt til borettslaget er det kostnadsfritt å tiltre IN-ordningen. IN-ordningen forutsetter flytende rente, og innbetalinger kan ikke reverseres.
Nærområdet

OBOS BBL
Annonseinformasjon
| FINN-kode | 385520081 |
|---|---|
| Sist endret | 27. jan. 2026 14:19 |
| Referanse | 810249057 |
Annonsene kan være mangelfulle i forhold til lovpålagt opplysningsplikt. Før bindende avtale inngås oppfordres interessenter til å innhente komplett informasjon fra meglerforetaket, selger eller utleier.






















