Bildegalleri

Illustrasjon av fasade. Leilighetene vil få en egen parkeringsplass i garasjekjeller.
Spjelkavik - Syvergjerdet - 4-mannsbolig med fantastisk utsikt
Ny pris! 4 Moderne og innholdsrike leiligheter med garasje| 3 soverom| Utsikt| Balkong
Prisantydning fra
4 850 000 kr
Prisantydning til
4 950 000 kr
Kort om prosjektet
Flotte leiligheter! Vår mestselgende bolig har blitt enda bedre! Boligen har blitt større, både terrasse, soverom, kjøkken/stue og garasje. Her har du muligheten til å skaffe deg en bolig med god planløsning, mye bod, lave felleskostnader og fantastisk utsikt.
Prosjektets status
Planlegging
Høst 2024
Salgsstart
November 2024
Byggestart
Etter kommunal godkjenning
Overtakelse
Ca 12 mnd etter oppstart
Nøkkelinfo
- Boligtype
- Leilighet
- Soverom
- 3
- Bruksareal
- 101 m²
- Eksternt bruksareal
- 45 m² (BRA-e)
- Eieform
- Selveier
Fasiliteter
Enheter i prosjektet
Sorter etter
| Enhet | Etasje | BRA | Soverom | Totalpris |
|---|---|---|---|---|
| 1 | 1 | 101 m² | 3 | 4 882 631 kr |
| 2 | 1 | 101 m² | 3 | 4 882 631 kr |
| 3 | 2 | 101 m² | 3 | 4 982 631 kr |
| 4 | 2 | 101 m² | 3 | 4 982 631 kr |
Visning
Ta kontakt for å avtale visning.Beskrivelse
Info om prosjektet
Velkommen til Syvergjerdet
Oppdag disse flotte selveierleilighetene som innbyr til en fantastisk bo opplevelse med sin gjennomtenkte og funksjonelle planløsning.
Med utsikt mot vest vil du nyte både solfylte dager og magiske kvelder, uten forstyrrende elementer foran deg. Opplev en unik kombinasjon av komfort, stil og praktisk design på Syvergjerdet!
Boligen ligger i rolige omgivelser ved endevei, vil du oppleve en atmosfære av fred og harmoni på Syvergjerdet.
Leiligheten er strategisk plassert på en utsiktstomt, og du vil glede deg over nærheten til vakre turområder, Spjelkavik sentrum og Moa kjøpesenteret.
Verdt å legge merke til:
- Stor og god planløsning
- Lave felleskostnader
- Fantastisk utsikt fra den romslige verandaen som du kan nå direkte fra stuen.
- Nøkkelferdig leveranse med god leveranse
- Boligen leveres med grunnet hvit kledning.
- Boligen kan leveres med Royal kledning og glassrekkverk på veranda. Dette er tilvalg og første som kjøper bestemmer om det skal være dette.
- Stor parkeringsgarasje
- Åpen stue-/kjøkkenløsningen som gir mye naturlig lys.
- Mulighet for vedfyring i leiligheten.
- Kjøkkenpakke fra Vegsund kjøkken / Aubo kjøkken fra Optimera Ålesund
- Flislagte bad med god baderomsinnredning fra Vikingbad, samt praktisk bod/vaskerom.
- Tre gode soverom, har du rikelig med plass for både familie og gjester.
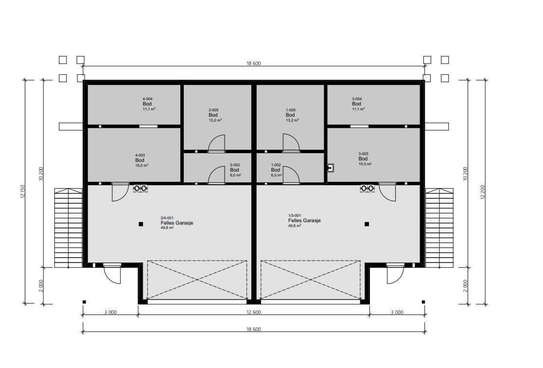
- Parkering i garasje og på felles oppstillingsplass, i tillegg til rikelig med lagringsplass i garasjen.
Ta kontakt i dag for mer informasjon!
Nærområdet

Annonsene kan være mangelfulle i forhold til lovpålagt opplysningsplikt. Før bindende avtale inngås oppfordres interessenter til å innhente komplett informasjon fra meglerforetaket, selger eller utleier.









































