Bildegalleri

Dronebilde av prosjektet og nærområdet.
HILTONKROKEN 2 A-D
KUN 1 IGJEN - LEKRE OG UNIKE ENEBOLIGER PÅ SLEPENDEN - UTLEIEMULIGHET - DBL GARASJE - SOLRIKE TERR. - HAGE - A/B/C SOLGT
Prisantydning
17 850 000 kr
Prosjektets status
Planlegging
-
Salgsstart
20/10/2024
Byggestart
01/10/2024
Overtakelse
Q2/Q3 2025
Nøkkelinfo
- Boligtype
- Enebolig
- Soverom
- 0
- Internt bruksareal
- 265 m² (BRA-i)
- Bruksareal
- 265 m²
- Eieform
- Eier (Selveier)
Fasiliteter
Enhet i prosjektet
Sorter etter
| Enhet | BRA-i | Soverom | Totalpris |
|---|---|---|---|
| D | 265 m² | 0 | 17 948 160 kr |
Beskrivelse
Nøkkelinformasjon
Se vedlagte leveransebeskrivelse.
Selger har godkjent salgsoppgaven
Prisene på eneboligene vil oppjusteres i løpet av februar.
Hovedoppdragsnummer
127-24-9028
Eiendom
HILTONKROKEN 2 D, 1341 Slependen
Matrikkel
Gnr. 50 Bnr. 86 i Bærum kommune
Boligtype
Enebolig
Eierform
Selveier
Ferdigstillelse
Ferdigstillelse
Ansvarlig megler
Eiendomsmegler / Partner Robert Eckmann
Selger/Utbygger
Mplm eiendom as v. Michael Bastøe Hansen
Hjemmelshaver
Mplm eiendom as v. Michael Bastøe Hansen
Arealer
Totalt BRA 265 kvm består av:
- BRA-i (internt bruksareal): 265 kvm - 265 kvm
- BRA-b (innglasset balkong):
- BRA-e (eksternt bruksareal):
I tillegg kommer TBA (terrasse-/balkongareal):
Vedlagte plantegninger er ikke målbare. Eventuelle betegnelser på rom er angitt ut fra faktisk bruk, uavhengig av hva som er godkjent hos bygningsmyndighetene.
Det gjøres oppmerksom på at boenhetens totale BRA er større enn summen av arealene fra hvert enkelt rom. Dette skyldes at boenhetens totale BRA også inneholder/medtar arealer for innvendige vegger. Se prislisten for detaljert oversikt over de enkelte boligene.
Priser fra - til
Priser fra 17 850 000 - til 17 850 000
Eiendomsskatt
Ingen eiendomsskatt i Bærum Kommune
Energimerke
Energiattest med energimerke
Beskrivelse
Eiendommen skal bebygges med 4 eneboliger med mulig utleiedel og dobbel garasje
Eiendommen er delt i 4 separate selveiertomter i tillegg til fellesareal som består av adkomstvei og grøntareal.
Utomhus leveres tomten grovplanert.
Det opplyses om at 3D-bilder og utsiktsforhold er kun ment som en illustrasjon, og avvik vil forekomme.
Innhold
Det er følgende romfordeling i eneboligene:
Hus A og B har følgende planløsning:
U. etg. - Hovedinngang med stor entre, trappegang, bod, teknisk rom. Mulig hybel - stue med mulighet til kjøkken, soverom, bad og dobbelgarasje/sportsbod.
1 etg. - stor stue med utgang til veranda, åpen kjøkkenløsning, kontor, vaskerom, hovedsoverom med walk-in closet og bad
2 etg. - trappegang, stue, bad og 3 soverom.
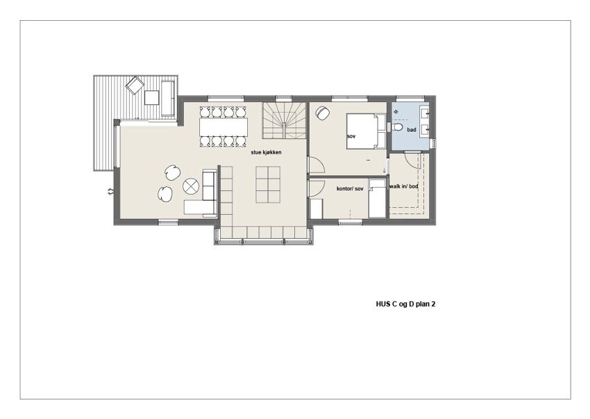
Hus C og D har følgende planløsning:
1 etg. - Hovedinngang med stor entré, trappegang, stue, bad, soverom og dobbelgarasje/sportsbod
2 etg. - stor stue med utgang til veranda, åpen kjøkkenløsning, hovedsoverom med walk-in closet, og bad, soverom/kontor
U. etg. - 2 soverom, trappegang, bad, bod/vaskerom, teknisk rom. Mulig hybel - stue med mulighet til kjøkken, soverom, bad
Eneboligene har åpne og lyse oppholdsrom med store vinduer, dansk design kjøkken, 3 bad/wc, vaskerom, 5 soverom, kontor, tv-stue og en hyggelig entré. Solrike terrasser med flott utsyn. Romslig hage med gode solforhold. Barnevennlig og skjermet beliggenhet med lite innsyn og begrenset med gjenboere.
Beliggenhet
Vi har gleden av å presentere 4 arkitekttegnede eneboliger med dobbelgarasje og med en utleiemulighet på Slependen. Tilbaketrukket og barnevennlig beliggenhet i enden av stikkvei uten
gjennomgangstrafikk. Nærhet til buss og en rekke flotte tur- og rekreasjonsmuligheter.
Nærmeste dagligvarebutikk ligger bare noen hundre meter bort i gaten og rett på
andre siden av Slependveien ligger togstasjonen. Det er kort vei til Sandvika sentrum med gode
shoppingmuligheter og hyggelige handlegater.
Tomt
Eiet tomt på litt over 700 m2 i tillegg til fellesarealer på litt over 1000 m2 som deles av 4 eiere.
Skole/barnehage
Skoler
Jong skole (1-7 kl.) 17 min
369 elever, 17 klasser 1.2 km
Tanum skole (1-7 kl.) 21 min
352 elever, 15 klasser 1.6 km
Emma Hjorth skole (1-7 kl.) 28 min
262 elever, 14 klasser 2 km
Bjørnegård skole (8-10 kl.) 7 min
320 elever, 14 klasser 0.5 km
Norges Realfagsungdomsskole Sandvik...6 min
192 elever, 13 klasser 3 km
Sandvika videregående skole 25 min
460 elever 1.9 km
Valler videregående skole 7 min
486 elever, 18 klasser 3.1 km
Barnehager
Ås barnehage Avd Vågebytoppen (... 8 min
41 barn 0.5 km
Veslefrikk barnehage (0-5 år) 7 min
30 barn 0.5 km
Sollia barnehage (1-5 år) 14 min
33 barn 1 km
Offentlig kommunikasjon
Offentlig transport
Nedre Ås - 5 min
Linje 240, 240N, 245 - 0.4 km
Slependen stasjon - 8 min
Linje L1 - 0.6 km
Oslo S - 22 min
Totalt 24 ulike linjer - 18 km
Oslo - Gardermoen - 54 min
Fritidstilbud
Det er kunstgressbane og kombihall ved Bjørnegård ungdomsskole med et aktivt idrettsmiljø i Jardar IL. Nærhet til bademuligheter på Kalvøya eller nye Kadettangen i Sandvika. Gyssestad båthavn ligger i gangavstand.
Leveransebeskrivelse
KONSTRUKSJON
Boligene bygges i henhold til byggeforskriften TEK 17
Grunnmur av sprøytebetong. Yttervegger over terreng isolert med 25 cm mineralull. Utvendig kledning mørk beiset panel. Huset vil bli behandlet med 2 strøk beis eller tilsvarende der det er treverk. Tak kledd med takpapp med strukturstriper.
Rombetegnelser i henhold til plantegninger. (Overflate på malerarbeidene leveres som standard (med malingskvalitet K2).
Det leveres vannbåren varme i alle rom.
Samme type hvit gulvlist for hele boligen.
ENTRE:
Gulv: fliser
Vegger: gipsplater, sparklet og malt. Tak: Hvitmalt nedforet gips med innfelt downlights.
KJØKKEN
Gulv: Enstavs hvitpigmentert eikeparkett.
Tak/vegger: gipsplater, sparklet og malt.
STUE
Gulv: Enstavs hvitpigmentert eikeparkett. Tak/vegger: sparklet og malt.
SOVEROM
Gulv: Enstavs hvitpigmentert eikeparkett. Tak/vegger: gipsplater sparklet og malt. Det leveres ikke med garderobeskap.
BAD/SANITÆR
Gulv: Fliser. Det lages nedsenk for dusj sone.
Vegger: fliser
Tak: Hvitmalt, nedforet gips med innfelt downlights.
På bad leveres moderne baderomsinnredning. Servant med servantskap og speil/speilskap med belysning. Det leveres vegghengte toaletter.
Det monteres glass dusjvegger
Det monteres ett-greps blandebatteri til servanter. I dusj leveres det ett-greps blandebatteri dusjgarnityr med takdusj og hånddusj
Det gjøres oppmerksom på at det kan bli terskel/nivåforskjell til tilliggende rom og det er spalte under døren i forbindelse med ventilasjonsanleggets funksjon.
Det leveres 300 l varmtvannsbereder
Opplegg for vaskemaskin og tørketrommel (kondenstrommel) i bad eller vaskerom som angitt på plantegninger. Vaskerom angitt på tegning får vask i benkeskap.
WC
Gulv: Fliser
Tak/vegger: sparklet og malt.
KJØKKENINNREDNING
Kjøkken leveres komplett med hvitevarer, servant med garnityr og ventilator.
TERRASSER/BALKONGER
Gulv på terrasser leveres med trykkimpregnert terrassebord.
TRAPP
Trapp leveres med eik i trinn og hvitmalte vanger. Rekkverk leveres med hvitmalt håndløper og spiler. Det opplyses om at det kan bli nyanse forskjell i overgang mellom trapp og parkettgulv da det er forskjellig leverandør på parkett og trapp.
DØRER/VINDUER/LISTVERK
Hovedinngangsdør til boligen leveres i malt utførelse. FG-godkjent lås leveres. Terrassedører i glass som vist på fasadetegning.
Vinduskarmer leveres ferdig malt fra fabrikk med utvendig mørke aluminiumsbeslag med hvitmalt karm innvendig med hvite foringer.
DØRER INNVENDIG
Hvit glatt dør med ramme. Håndtak i stål.
TEKNISK ANLEGG
VENTILASJONSANLEGG
Det leveres balansert ventilasjon med varmegjenvinning.
ELEKTRISK
Elektrisk anlegg ligger hovedsakelig skjult i boligen. Det leveres elektriske punkt i henhold til NEK 400 standard med god dekning etter egen el. tegning i boligen. Det kan velges ytterligere punkter som tilvalg.
Utvendig belysning: Det leveres utelampe på vegg ved siden av inngangsdør, ved siden av terrassedør på bakkeplan og ved garasjeport. Innvendig belysning: Det leveres spotlights i tak på bad, wc, og entre 1 etasje og stue som nærmere angitt i romskjema. All levert belysning i LED.
Det leveres dobbel stikkontakt ute på terrasse og ved inngangsparti.
OPPVARMING
Hele huset har vannbåren gulvvarme.
ILDSTED
Det er klargjort for montering av stålpipe fra mulig ildsted.
TV/DATA
Det leveres en TV/datakontakt til stue. Kjøper betaler selv abonnementsavgift og tilknytningsavgift. Ytterligere uttak kan bestilles som tilvalg.
REKKVERK
Det leveres utvendig rekkverk i aluminium/rustfritt stål evt tre..
GARASJE
Gulv: avrettet betong. Vegg: Bindingsverk med osb/gipsplater på vegg, og 2 lag gipsplater i himling..
2 doble stikkontakter og lysarmatur i himling. Garasjeport med to stk fjernkontroller. Opplegg for elbillader.
TAKHØYDE INNVENDIG
Takhøyde i hht forskrifter. Himling i enkelte rom kan være senket eller ha kasse i hjørnet i taket på grunn av fremføring av tekniske anlegg.
TEGNINGER AV TEKNISKE ANLEGG
Tekniske anlegg og fremføringer til disse blir ikke inntegnet på tegninger som omfattes av kjøpekontrakt. Endelig plassering av disse bestemmes av selger og hva som er hensiktsmessig og nødvendig.
DIVERSE UTSTYR
Brannslukningsutstyr og røykvarslere leveres i henhold til forskrifter.
Det leveres 1 frostsikker utekran.
Generell orientering
Kjøper plikter å sette seg inn i FDV dokumentasjonen som overleveres når hjemmelen på boligen overføres. Ved reklamasjoner og spørsmål skal kjøper henvende seg til den/det firma som har utført arbeidene for selger, ikke direkte til selger.
Nøkkelinformasjonen fra megler er en oppsummering av hovedpunktene i prosjektet.
For fullstendig informasjon og dokumentasjon vises det til kjøpekontrakt med vedlegg for prosjektet, hvilket er det avtalemessige grunnlaget for kjøp av leilighet.
Formuesverdi
Formuesverdien er ikke fastsatt. Formuesverdien fastsettes av skatteetaten etter en beregningsmodell om boligen er primær eller sekundær. Formuesverdien for primærbolig utgjør 30% av beregnet markedsverdi og 100% av sekundærbolig. Det gjøres oppmerksom på at kjøper selv må sende inn opplysninger om adresse, areal, boligtype og byggeår til skattemyndighetene. Det tas forbehold om endring av satser.
Boder
Det er bodareal i garasje, samt bod og teknisk rom i bolig.
Vei / Vann / Kloakk
Offentlig.
Reguleringsforhold / Offentlig godkjenning
Kopi av situasjonskart, målebrev, reguleringsplaner m/bestemmelser er vedlagt salgsoppgave. Vi oppfordrer interessenter til å gjøre seg kjent med disse.
Servitutter / Rettigheter
Midlertidig brukstillatelse og ferdigattest
Ved overtakelse skal det foreligge midlertidig brukstillatelse. Selger er ansvarlig for å innhente ferdigattest, men kjøper er innforstått med at denne normalt ikke foreligger før etter overtakelse. Kjøper er gjort uttrykkelig kjent med og aksepterer at boligen vil kunne bli klar for overtakelse før det totale prosjektet, herunder hele eller deler av fellesarealet utomhus, kan ferdigstilles. Dette innebærer at kjøper vil kunne få rett og plikt til å overta boligen før det foreligger ferdigattest og at selger kan måtte søke om midlertidig brukstillatelse/ dispensasjon om krav til ferdigattest ved overtakelse. Dersom kjøper overtar boligen på midlertidig brukstillatelse har selger krav på oppgjør i henhold til kjøpskontrakten, mot at det holdes tilbake et beløp som sikkerhet for at ferdigattesten blir gitt. Selger plikter å fremskaffe ferdigattest når utomhus ferdigstilles.
Forbehold fra utbygger
Selger har dermed rett til, uten at kjøperen kan kreve endring i pris, å foreta endringer i oppgitte spesifikasjoner og beskrivelser som anses hensiktsmessige og/eller nødvendige og som ikke forringer prosjektets kvalitet og funksjon i vesentlig grad.
Selgeren forbeholder seg også retten til å bestemme endelig utforming av utomhusarealer, materialvalg og fargevalg på bygningene samt innvendige og utvendige fellesarealer.
Det presiseres særskilt at salgsprospektet ikke er bindende for boligens detaljutforming og farger. Opplysninger gitt i salgsprospekt kan fravikes dersom selgeren anser det nødvendig eller ønskelig, men endringene skal ikke ha innvirkning på forutsatt standard. Frihåndstegninger og illustrasjoner i prospektet og tegningsmateriale er av illustrativ karakter, som for eksempel møbler, fargevalg, dør- og vindusform, detaljer på fellesarealer, fasadedetaljer, materialvalg, blomsterkasser, beplantning, etc. Utstyr/standard som leveres fremgår av salgsoppgaven og romskjemaet i prospektet.
På de enkelte bolig- og møbleringsplanene er det vist forslag til plassering av møbler, utstyr og hvitevarer. Det samme gjelder garderobeinnredning i entréen, vaskemaskin på badet, oppvaskmaskin på kjøkken og stiplede løsninger, bl.a. på baderommene. Forslagene er kun av illustrativ karakter.
Utomhusplanen er kun ment som en illustrasjon av standard og funksjoner. Det ferdige produkt vil kunne avvike fra illustrasjonen uten at dette gir kjøper rett til å kreve prisavslag. Avhengig av årstiden vil ferdigstillelse av utomhus områdene kunne bli utført etter overtagelse.
Boligenes areal er angitt så nøyaktig som mulig. Selger tar imidlertid forbehold om mindre avvik/endringer blant annet som følge av at prosjektet per i dag ikke er detaljprosjektert. Det vil også forekomme rørføringer og sjakter i boligen som ikke er vist på tegning. Eventuelle mindre avvik gir ikke selger rett til å kreve prisavslag. Selger skal informere kjøper dersom det oppstår vesentlige avvik.
Det kan forekomme målestokkavvik ved trykking av salgsmaterialet, og prospektet må derfor ikke brukes for nøyaktig måltaking. Dersom det er motstrid mellom kvalitetsbeskrivelsen og tegninger skal kvalitetsbeskrivelsen gå foran.
Salgsprisene er faste og kan ikke justeres etter kontraktsinngåelse. Selger står fritt til når som helst, og uten forutgående varsel, å regulere prisen på usolgte boliger.
Nye hus vil tørke i løpet at de første årene. Dette vil medføre krympesprekker i overgang mellom vegger og tak og er normalt og svinger noe med årstidene. Slike svinnsprekker er ikke reklamasjonsberettiget, men skyldes materialenes naturlige kryp og svinn. Evt. utbedring av større sprekker, utover svinnsprekker, utføres i forbindelse med ettårsbefaring.
Alle våtrom vil bli oppført i henhold til teknisk forskrift TEK17 .
Det kan ikke velges store fliser som tilvalg i dusjnisje.
Når det gjelder reguleringsforhold og planer for omkringliggende områder oppfordres interessenter spesielt til å kontakte Bærum kommune for å få siste oppdaterte planer da disse kan endres uten at dette er kjent for selger. Det tas forbehold om eventuelle feil i beskrivelsen.
Vær også oppmerksom på at fasade/plantegninger i målestokk (tilnærmet) som vedlegges kontrakt er kopier av arkitekttegninger og at det i sammenheng med kopi/trykk kan fremkomme mindre avvik i mål på tegninger. Endringer i prosjekteringsfasen kan også gi endrede mål på det endelige bygget i.f.t. disse tegningene.
ARKITEKT
Arkitekt for prosjektet Indigo Arkitekter AS
SELGER
MPLM Eiendom AS.
HEFTELSER
I forhold til heftelser henvises det til grunnbokutskrift for eiendommene som er tilgjengelig hos selger. Grunnbokutskrift vil også bli vedlagt til kjøpekontrakten.
Tilvalg og endringer
Det vil bli gitt muligheter til å gjøre enkelte individuelle tilpasninger av boligen innenfor gitte tidsfrister og mot tillegg i prisen. Kjøper gjøres oppmerksom på at det på grunn av prosjekteringen og produksjonen vil måtte legges begrensninger på omfanget av tilleggsbestillinger samt tidsfrister for å sikre rasjonell fremdrift samt oppfylle indikerte overleveringsdatoer ovenfor kjøpere.
Ønskede tilvalg prises av selger og sendes til kjøper innenfor gitte frister fra entreprenør og signeres av alle parter.
Kjøper kan ikke kreve å få utført endringer eller tilleggsarbeider:
a) som vil endre kontraktssummen med 15% eller mer,
b) som ikke står i sammenheng med selgers ytelse eller
c) som vil medføre ulemper for selger som ikke står i forhold til kjøpers interesse i å kreve endringen eller tilleggsarbeidet.
Betalingsbetingelser
Det forutsettes at 10% av kjøpesummen innbetales som forskudd ved kontraktsinngåelse. Innbetalingen skal være fri egenkapital, det vil si at det ikke forutsettes pant i leiligheten som kjøpes. Påløpte renter vil tilfalle kjøper frem til skjøte er tinglyst, med mindre selger får disposisjonsretten over beløpet som følge av at det stilles garanti ihht Bustadoppføringslova §47.
Resterende del av kjøpesum inkl. omkostninger og eventuelle tilvalgskostnader skal være disponibelt på meglers klientkonto innen dato for overtagelse.
Ferdigstillelse.
Forventet ferdigstillelse er 3 kvartal 2025. Dette tidspunktet er foreløpig og ikke bindene og utløser ikke dagmulkt. Når selger har opphevet forbeholdene stilt i avtalen skal selger fastsette en overtakelsesperiode som ikke skal være lenger enn 3 måneder. Selger skal skriftlig varsle kjøper om når overtakelsesperioden begynner og slutter. Senest 6 uker før ferdigstillelse av boligen skal selger gi kjøper skriftlig melding om endelig overtakelsesdato. Den endelige datoen er bindende og dagmulktsutløsende, og skal ligge innenfor overtakelsesperioden.
Selv om selger har varslet en endelig overtakelsesdato kan selger fremskynde overtakelsen i inntil 2 mnd. Selger skal i så fall varsle en slik fremskyndet overtakelse minimum 4 uker før det nye overtakelsestidspunktet. Varsel skal gis skriftlig. Dersom selger benytter seg av retten til å fremskynde overtakelsestidspunktet, vil det nye overtakelsestidspunktet være endelig og dagmulktsutløsende, jfr. bustadoppføringslova §18.
I tillegg til å gi melding jf. ovenfor, skal selger med minimum 7 dagers skriftlig varsel innkalle kjøper til overtakelsesforretning jf. bustadoppføringslova § 15.
Overtagelse kan tidligst skje når det foreligger ferdigattest eller midlertidig brukstillatelse, da det er ulovlig å ta boligen i bruk uten at det foreligger enten midlertidig brukstillatelse eller ferdigattest. Kjøper har ingen plikt til å overta eller innbetale oppgjør uten at ferdigattest eller midlertidig brukstillatelse foreligger.
Kjøper er kjent med og aksepterer at boligen vil kunne bli klar for overtagelse før det totale prosjektet, herunder hele eller deler av fellesarealet utomhus, kan ferdigstilles. Dette innebærer at kjøper vil kunne få rett og plikt til å overta boligen mot midlertidig brukstillatelse, og altså før det foreligger ferdigattest fra Bærum kommune. Selger har krav på oppgjør i henhold til kjøpskontrakten, selv om overtakelse skjer mot midlertidig brukstillatelse.
Ved overtakelse mot midlertidig brukstillatelse, er selger forpliktet til å fremskaffe ferdigattest innen rimelig tid og senest før midlertidig brukstillatelse er utløpt på tid. Ved overtakelse mot midlertidig brukstillatelse vil eiendomsmegler bistå partene med å etablere sikkerhet for kjøpernes krav på ferdigstillelse og ferdigattest, f.eks. ved tilbakehold eller ved at selger avgir garanti.
Oppgjøret vil i tråd med eiendomsmeglingsloven § 6-9 bli stående på eiendomsmeglers klientkonto inntil kjøper har fått rettsvern eller det er stilt garanti i hht. Bustadoppføringslova § 47.
Før overtakelse vil det bli gjennomført en forbefaring der boligen blir gjennomgått/ befart samtidig som boligens drift instruks/ FDV-mappe blir utlevert. Påpekte og aksepterte mangler skal utbedres innen rimelig tid.
Før utlevering av nøkler kan finne sted, skal det dokumenteres at alle innbetalinger inkludert eventuelle tilleggsleveranser er innbetalt som avtalt.
Boligen overleveres ryddet og støvsugd, men ikke utvasket ("byggrengjort").
Ved overtakelse kan det gjenstå mindre utvendige og/eller innvendige arbeider på eiendommens fellesarealer. Gjennomgang og kontroll av fellesarealer vil bli gjennomført med styre i sameiet etter overtakelse av boligene. Kjøper aksepterer at styre i sameiet representerer alle seksjonseierne ved gjennomgang av fellesarealene. Overtakelse av boligene kan ikke nektes av kjøper selv om utomhusarealer ikke er ferdigstilt. Hvis deler av utvendige arbeider ikke er ferdigstilt ved overtakelse av boligen, skal manglende ferdigstilte arbeider anmerkes i overtakelsesprotokoll. Det gjøres oppmerksom på at leveransebeskrivelsen/utomhusplanen i salgsprospektet ikke er ferdig detaljprosjektert, og at endringer vil kunne forekomme.
Dersom det avdekkes mangler ved boligen eller fellesarealene på overtakelsestidspunktet, kan kjøper velge å holde tilbake deler av kjøpesummen som sikkerhet for krav mot selger som følge av manglene. Tilbakeholdt beløp må stå i samsvar med manglene. Tilbakehold skal protokollføres på overtakelsesprotokollen eller på annen måte skriftlig varsles eiendomsmegler og selger før hjemmelsovergang.
Det gjøres oppmerksom på at det etter oppgjørs- og overtakelsesdato fortsatt vil foregå byggearbeider på eiendommen, herunder arbeid med ferdigstillelse av de øvrige boligene, fellesarealer, tekniske installasjoner og utomhusarbeider.
Forpliktelser, rettigheter og servitutter
Eiendommens servitutter følger av dens grunnboksblad. For servitutter eldre enn fradelingsdato og eventuelle arealoppføringer som kan ha betydning for denne matrikkelenhet henvises det til hovedbruket / avgivereiendommen. For festenummer gjelder henvisningen servitutter eldre enn festekontrakten. Ta kontakt med megler for mer informasjon.
Prisantydning, omkostninger og evt. fellesgjeld
kr 17 850 000,- (Prisantydning)
Betalingsbetingelser
Fullstendig kjøpesum samt omkostninger skal være disponibelt på meglers klientkonto innen dato for overtagelse. Kjøpesummen skal innbetales fra norsk finansinstitusjon og/eller kjøpers konto i norsk finansinstitusjon. Eventuell egenkapital skal innbetales i én samlet betaling fra kjøpers egen konto i norsk finansinstitusjon.
Vederlaget
Følgende er avtalt om meglers vederlag:
Dersom handelen ikke kommer i stand eller at oppdraget sies opp har megleren krav på dekning for påløpte timer, påløpte visninger, grunn og markedspakke samt utlegg.
Oppdragsnummer
127-24-9028
Hvitvasking
Eiendomsmegler er underlagt lov om hvitvasking og tilhørende forskrift. Hvitvaskingsloven pålegger megler å gjennomføre kundetiltak av både selger og kjøper. Dersom kjøper ikke bidrar til at megler får gjennomført kundetiltak, og dette medfører at transaksjonen ikke kan gjennomføres eller blir forsinket misligholder kjøper avtalen. Dette vil kunne gi selger rettigheter etter avhendingsloven, herunder rett til å heve kjøpet og gjennomføre dekningssalg for kjøpers regning dersom misligholdet er vesentlig. I tilfeller der det er selger som ikke bidrar til at megler får gjennomført løpende kundetiltak underveis i oppdraget må megler stanse gjennomføringen av transaksjonen. Selger vil i så fall ha misligholdt sine forpliktelser, og kjøper vil kunne ha krav mot selger etter avhendingslovens bestemmelser om mislighold og forsinkelse.
Dersom kundetiltak ikke lar seg gjennomføre vil EIE eiendomsmegling ikke kunne bistå med handelen eller foreta oppgjør.
Personvern
Som interessent, budgiver og kjøper vil dine personopplysninger bli registrert og lagret. Som eiendomsmeglingsforetak har vi plikt til å oppbevare kontrakter og dokumenter i minst 10 år, jf. eiendomsmeglingsforskriften § 3-7 (3). Dette innebærer at mulighetene for å få slettet personopplysninger er begrenset. Du kan lese om vår behandling av personopplysninger i vår personvernerklæring på https://eie.no/eiendom/personvernerklaering
Produkter eller tjenester som tilbys partene i forbindelse med oppdraget
EIE AS, og i noen tilfeller eiendomsmeglerforetak som er tilknyttet kjeden EIE eiendomsmegling, har eierinteresser i selskaper som leverer produkter og tjenester som våre kunder tilbys i forbindelse med eiendomstransaksjonen. Les mer om dette på https://eie.no/eiendom/eie-investerer
Nærområdet
EIE Bolig- og prosjektmegling
Annonseinformasjon
| FINN-kode | 375046043 |
|---|---|
| Sist endret | 28. aug. 2025 02:34 |
| Referanse | 127249028 |
Annonsene kan være mangelfulle i forhold til lovpålagt opplysningsplikt. Før bindende avtale inngås oppfordres interessenter til å innhente komplett informasjon fra meglerforetaket, selger eller utleier.








