Bildegalleri

Åsenhaugen 4 - Boligen har en flott beliggenhet på feltet
Åsenhaugen 4-10
En igjen av tre nyoppførte eneboliger med hybel. 4/5 soverom, 3 bad + vaskerom - Snarlig overtakelse!
Prisantydning
Solgt
Prosjektets status
Planlegging
-
Salgsstart
Selges nå
Byggestart
Under bygging
Overtakelse
2 mnd. etter signert kontrakt
Nøkkelinfo
- Eieform
- Selveier
Enheter i prosjektet
Sorter etter
| Enhet | BRA | Soverom | Totalpris |
|---|---|---|---|
| Åsenhaugen 4 | 197 m² | 5 | Solgt |
| Åsenhaugen 10 | 197 m² | 4 | Solgt |
Beskrivelse
Velkommen til Åsenhaugen og tre flotte, nyoppførte eneboliger med hybel. To boliger er allerede solgt!
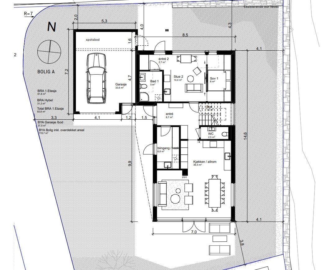
Tegnet av Sjo Fasting Arkitekter og oppført med bruk av kvalitetesmaterialer, gode planløsninger og et øye for detaljer.
Her har man meget pene kjøkken både i hoveddel og i hybel levert av det anerkjente Sandnesfirmaet Bjerks Trevare. Videre er det 60x60 fliser på alle 3 bad og én-stavs eikeparkett i oppholdsrom.
Store vindusflater helt opp til 2,4 meters høyde i 1. etasje hvor den totale takhøyden er på 2,6 m.
Boligene har totalt 4 eller 5 soverom, 3 bad + gjestewc og eget vaskerom, samt kjøkken og allrom i 1. etasje i tillegg til en stor loftstue. Man kan strekke seg til å si at planløsningen er nær optimal for familier, og er tilpasset et langt livsløp hvor behovene endrer seg med tiden.
Øyet for detaljer er ikke å komme bort ifra. Ta for eksempel en liten detalj i vinduet i trapperommet som dekker nesten hele veggflaten. Dette vinduet endrer gangen nede, trapperommet og gangen oppe totalt. Det er disse detaljene som gjør forskjellen, og det er disse detaljene som gir deg en annen bokvalitet i hverdagen.
Ferdig opparbeidet med terrasse, hekk, og gressplen.
Stor garasje og god biloppstillingsplass i gårdsrom. Kledningen er trykkimpregnert og malt fra fabrikk.
Åsenhaugen ligger flott til på en høyde, som gjør at man fra uteområdet og flere av rommene inne har en pen og vidstrakt utsikt over den omkringliggende bebyggelsen og faktisk helt til Lifjell.
Innflytting ca. 2 mnd etter signert kontrakt.
Beliggenhet
To eneboliger med sentral beliggenhet i Åsenhaugen på Åsen.
Navnet Åsenhaugen er passende, for man merker fort at man er plassert på en liten høyde over bebyggelsen mot øst som gjør at man fra dette nivået får en pen og vidstrakt utsikt helt til Lifjell, Dalsnuten m.m.
Området:
I Åsenhaugen ligger man sentralt til i regionen, helt på grensen mot Forus. Fra boligene er det kun få munutters gange til skoler, idrettsanlegg, golfbane og fine turområder. I tillegg er det noen få minutters reisetid til både Sola sentrum, Sandnes, Stavanger og ikke minst det gode servicetilbudet som Forus kan tilby. Her har man flere kjøpesentre som Tvedt Senteret, IKEA, Kvadrat og mye mer. Dette gjør også at evt. beboere som jobber i området bare har få minutters sykkeltur på flott sykkel/gangsti direkte til Forus om ønskelig. Ca. 2 km fra leiligheten til påkjørsel sykkelstamveien ved Biltema.
Offentlig transport:
Gode bussmuligheter i Åsenvegen med busstopp i kort avstand fra leiligheten.
Turområder:
Sola kommune er variert og har mye å by på, herunder Jærstrendene med Solastranden i spissen. I nabolaget har man også fine turområder med blant annet Kjerrberget og lysløypen på Åsen i kort avstand.
Aktiviteter:
Sola har et bredt spekter av aktivitetstilbud. Sola Fotball, Sola Håndball, Sola Turn m.m. har alle anlegg på Åsen i kort avstand fra leiligheten.
Golfbaner har man også i nærmeste nabolag med Sola Golfklubb like over veien, i tillegg til baner både på Bærheim og ved Solastranden.
Ansvarlig megler
Ronny Skjøtskift
Nyttige lenker
Nærområdet
Aktiv Jæren
Annonseinformasjon
| FINN-kode | 372572180 |
|---|---|
| Sist endret | 12. mai 2026 08:33 |
| Referanse | 1403245073 |
Annonsene kan være mangelfulle i forhold til lovpålagt opplysningsplikt. Før bindende avtale inngås oppfordres interessenter til å innhente komplett informasjon fra meglerforetaket, selger eller utleier.








