Bildegalleri

Dronebilde tatt 6 meter over bakken som vil tilsvare takterrassen på Liaveien 27B
Liahagen
Utsolgt!! Moderne halvpart av tomannsbolig - 4 enheter - God design og kvalitet - Mulighet for takterrasse - Carport
Prisantydning
Solgt
Prosjektets status
Planlegging
01.09.2024
Salgsstart
13.09.2024
Byggestart
01.11.2024
Overtakelse
2. eller 3. kvartal 2025
Nøkkelinfo
- Eieform
- Selveier
Fasiliteter
Enheter i prosjektet
Sorter etter
Visning
Beskrivelse
Velkommen til Liahagen!
* 4 moderne enheter i vertikaldelte tomannsboliger.
* Familievennlige inne- og uteområder.
* Svært praktisk planløsning over to etasjer.
* Meget attraktivt og barnevennlig boligområde.
* 3 soverom og 2 stuer, 2 bad og eget vaskerom.
* Parkering i carport med plass til to biler.
Prosjektet Liahagen, hvor moderne tomannsboliger møter komfort og funksjonalitet, byr på nye boliger med høy standard og godt, gjennomtenkt design. Bo Mer Bolig AS presenterer en unik mulighet til å kjøpe en eksklusiv halvpart av tomannsbolig i et rolig og samtidig sentralt boligområde på Søndre Brevik, syd for Son sentrum.
Eksklusivitet og komfort:
* Eiketrapp med glassrekkverk.
* Gjennomgående 1-stavs eikeparkett (Nissedal Bred) på gulv.
* Takhøyde i 1. etasje på 2,4 meter og 2,6 meter i 2. etasje.
* Mulighet for vannbåren gulvvarme i hele boligen.
* Mulighet for takterrasse med sol hele dagen.
* Carport med plass til to biler.
Detaljer som gjør forskjellen:
* Listefri bolig med unntak av gulvlister og rundt innendører.
* Lekkert kjøkken fra Kvik - Bordo black inkludert eksklusive eikehyller og kjøkken øy.
* Innbydende baderom med svarte detaljer, dobbel vask, badekar, regndusj og 60x60 fliser - Pietre di paragone gre bianco.
* Vaskerom med Bordo Black-innredning fra Kvik med benkeplate og moderne svart armatur.
* Utebelysning 6 stk. lamper.
* Utekraner 2 stk til kaldtvann.
Nøkkelferdig Klar for Innflytting:
* Flytt rett inn i en nøkkelferdig bolig med ferdig asfaltert oppkjørsel og anlagt gress.
* Stressfritt med 5 års garanti fra overtakelse.
Din Nye Livsstil Venter:
* Med en romslig carport med plass til to biler.
* Er du klar for å bytte ut leiligheten din eller nåværende bolig som er moden for oppussing?
Prosjektert innhold:
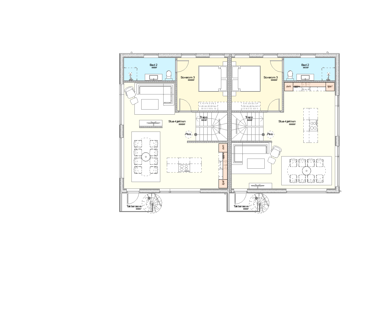
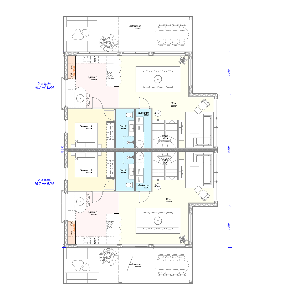
Det er to typer planløsninger:
Tomannsbolig 1:
1.etasje: Entrè, 2 soverom, stue og baderom.
2.etasje: Stue, kjøkken, soverom, baderom og vaskerom.
Tomannsbolig 2:
1.etasje: Entrè, 2 soverom, stue, baderom og vaskerom.
2.etasje: Stue, kjøkken, soverom og baderom.
I tillegg er det carport og utvendig bod.
Litt om utbygger:
Bo mer bolig AS består av personer med lang fartstid innenfor byggebransjen samt eiendomsutvikling. Selskapet benytter seg kun av solide kvalitetsentreprenører og leverandører. Vi bygger familieboliger som er tilpasset den moderne familien med fokus på kvalitet, funksjonalitet, design og eksklusive materialvalg. Selskapet har bygget flere ti-talls boliger og innehar solid økonomi. Se www. bo-mer-bolig.no for mer informasjon.
Velkommen til en hyggelig visning!
Kjøkken beskrivelse
Lekker kjøkkeninnredning fra Kvik med eksklusive eikehyller, kjøkkenøy og integrerte hvitevarer.
* Innredning i Bordo black som bringer skjønnheten til dansk design rett inn i hjemmet ditt, med resirkulerte og resirkulerbare materialer.
* Benkeplate i hvit Lavic Navajo komposittstein - en sterk, holdbar og ikke-porøs kvartsbenkeplate som er meget hygienisk.
* Svart kjøkkenarmatur fra Tapwell.
* Underlimt svart servant fra Blanco.
Hvitevarer består av:
* Oppvaskmaskin: Electrolux Oppvaskmaskin EEA27410L Helintegrert.
* Stekeovn: Electrolux Ovn OOB307NB.
* Kjøl-/fryseskap: Electrolux Kombiskap LNS5LE18S.
* Platetopp med integrert ventilator: Electrolux ExtractorHob HHOB865S.
Baderom beskrivelse
Moderne baderomsinnredning i harmoni med resten av interiørvalg i form av farger, materialer og kvalitet.
Bad i 1.etasje:
* Varmekabler på gulv.
* 60x60cm fliser på vegger og gulv.
* Downlights med dimmer og 1 stikkontakt.
* Nedsenket dusjsone med klar dusjvegg i glass og svart Tapwell blandebatteri.
* Svart dusjsett fra Tapwell med regndusj og hånddusj.
* Vegghengt toalett i svart utførelse.
* Svart Geberit trykkplate til toalett.
* Svart baderomsinnredning med nedfelt dobbelvask.
* Frittstående svart badekar med svart blandebatteri fra Tapwell.
* Hvitmalt slett tak.
Bad i 2.etasje:
* Varmekabler på gulv.
* 60x60cm fliser på vegger og gulv.
* Downlights med dimmer og 1 stikkontakt.
* Nedsenket dusjsone med svart dusjvegg i glass og svart Tapwell blandebatteri.
* Svart dusjsett fra Tapwell med regndusj og hånddusj.
* Vegghengt toalett i svart utførelse.
* Svart Geberit trykkplate til toalett.
* Svart baderomsinnredning med enkel nedfelt vask.
* Hvitmalt slett tak.
Vaskerom:
* Svart innredning fra Kvik type Bordo black med laminat benkeplate og moderne svart armatur.
* Svart taklampe med lysdimmer.
* 60x60cm fliser på gulv.
* Gipsvegger malt i gråfarge og slett hvitmalt tak.
* Røropplegg til vaskemaskin, samt plass for vaskemaskin og tørketrommel.
Andre oppholdsrom
Hall/Gang:
* Downlights med dimmer.
* Varmekabler i gulv med fliser.
* Gipsvegger malt i gråfarge og slett hvitmalt tak.
Stue 2.etasje:
* Varmefolie i gulv med parkett.
* Downlights og 2 lampepunkt over spisestue med dimmere.
* Gipsvegger malt i gråfarge og slett hvitmalt tak.
* Stålpipe med peisovn Westfire UniQ sort på pidestall.
Stue 1. etasje:
* Varmekabler i gulv med parkett.
* Downlights med dimmer.
* Gipsvegger malt i gråfarge og slett hvitmalt tak.
Soverom 1 & 2 - 1.etasje:
* Varmeovn på vegg.
* Gulv med 1-stavs parkett.
* Svart taklampe med dimmer.
* Gipsvegger malt i gråfarge og slett hvitmalt tak.
Soverom 3 - 2.etasje:
* Varmeovn på vegg.
* Gulv med 1-stavs parkett.
* Svart taklampe med dimmer.
* Gipsvegger malt i gråfarge og slett hvitmalt tak.
Teknisk rom:
* Gipsvegger malt i gråfarge og slett hvitmalt tak.
* Svart taklampe med lysbryter.
* Teknisk utstyr (VVB, sikringsskap, ventilasjon aggregat, rør-i-rør skap).
TILVALG/ENDRINGER:
Ved tilvalg takterrasse leveres
* Svart vindeltrapp i industripreget finish.
* Impregnert terrassegulv.
* Klart glassrekkverk med svart detaljer.
* 2 stk. utvendige stikkontakter.
I tillegg kan man gjøre enkelte endringer/tilvalg på blant annet:
* Bytte av innvendig farge, parkett, fliser og eikedører.
* Bytte fra trevinduer på utsiden til aluminiumsvinduer (vedlikeholdsfrie).
* Vannbåren varme i alle gulv inkl. luft/vann varmepumpe.
* Skyvegarderobeløsning fra Kvik i svart eik til entré.
* Markterrasse på 18 kvm.
Se mer informasjon under "tilvalg og endringer", og skulle det være ønske om andre endringer, ta kontakt med megler.
Balkonger/terrasser/uteplasser
Liaveien 29:
De to enhetene vil ha veranda på 27,8 kvm over carport med skyvedør fra stue i 2. etasje. Veranda leveres med trykkimpregnert tremateriale på gulv og klart glassrekkverk med svarte detaljer. Det blir svarte utvendige downlights, stikkontakt og punkt til terrassevarmer. Ved tilvalg av takterrasse leveres den med vindeltrapp opp fra veranda og er prosjektert med 44,1 kvm. På takterrasse legges det trykkimpregnert tremateriale på gulv og det blir klart glassrekkverk med svarte detaljer.
Liaveien 27:
Liaveien 27A vil ha veranda over carport med balkongdør fra stue 2. etasje. Liaveien 27B vil ha veranda på 2,5 kvm med balkongdør fra stue i 2. etasje. Veranda leveres med trykkimpregnert tremateriale på gulv og klart glassrekkverk med svarte detaljer. Ved tilvalg av takterrasse leveres den med vindeltrapp opp fra utvendig repo med verandadør ut fra stue i 2.etasje, og er prosjektert med 30,1 kvm. På takterrasse legges det trykkimpregnert tremateriale på gulv og det blir klart glassrekkverk med svarte detaljer.
Husnummer er antatt og det er forbehold om at kommunen godkjenner dette. Kjøper må akseptere om dette vil bli noe annet enn antatt.
Beliggenhet
Liaveien 27/29 ligger i et rolig og samtidig sentralt boligområde på Søndre Brevik, syd for Son sentrum. Herfra er det en kort rusletur ned til sjøen med en rekke strender og skjær, gangavstand til nyere barneskole og barnehager, samt bussforbindelse kun 3 min. gange fra eiendommen. Her kan du nyte freden ved å bo tilbaketrukket med nærhet til vann og skog, mens du fortsatt er en kort reise unna pulserende byliv.
Boligprosjektet er nøye planlagt for å passe inn i det etablerte og naturskjønne området med en kombinasjon ulike typer boliger og et mangfold som passer for alle livsfaser. Flytt inn i et område hvor du kan treffe likesinnede og knytte vennskap. Området er perfekt for familier som søker et trygt og barnevennlig nabolag, med gangavstand til skole, barnehager, dagligvarebutikk og fritidsaktiviteter, er alt du trenger innen kort rekkevidde.
Enten du er en ivrig golfspiller med Son Golfklubb ved Kjøvangen, en hesteentusiast som vil besøke Son Miljøhestesenter, eller en seiler som lengter etter bølgene med Son Seilforening, har Vestby kommune noe for deg. Teaterentusiaster, syklister, fotballspillere, håndballspillere og vintersportsfans vil finne et rikt utvalg av aktiviteter for å holde seg engasjert og aktiv.
For de som elsker sol og sjø, tilbyr Son og Vestby kommune et mangfold av idylliske badestrender. Sonstranda inviterer til lange dager ute med sine naturskjønne svaberg, grønne gressletter og en barnevennlig sandstrand. Skutebauen, Brevikbukta, Kjøvangen, Krokstrand og Emmerstadbukta er bare noen av de mange perlene hvor du kan nyte på solrike dager. Mot Moss finnes også et riktig utvalg av parker, badeplasser og flere flotte strender.
Kyststien er et must for turgåere, og tilbyr en fantastisk rute langs den vakre kystlinjen. Og hvis du ønsker å skjemme bort deg selv med en spa-dag, en utsøkt middag, en treningsøkt eller en svømmetur, er Son Spa stedet å være, beleilig plassert like ved Sonstranda.
Med sin nærhet til Oslo, kun 40 minutter med bil, og en time til grensen ved Svinesund, er området perfekt for både utforskere og hjemmekjære. Moss og Vestby er bare en kort kjøretur unna, og Ski ligger innen en halvtimes rekkevidde.
Oppdag gledene ved Vestby kommune, hvor hver dag byr på nye eventyr og muligheter til å skape minner som varer livet ut.
Tomt
Tomten leveres med ferdig gress og asfaltert gårdsplass. Øvrig beplantning besørges selv av kjøper. Kjøper må akseptere avvik på tomtestørrelsen da det angitte ikke er oppmålt enda.
Eiendommen har før fradeling netto tomteareal på 1 913 kvm. Ved fradeling vil ny parsell (Tomt 2) ha et tomteareal på 910 kvm, hvorav 889,4 kvm er regulert til boligformål.
Resteiendommen (Tomt 1) vil ha et tomteareal på 1 003,4 kvm, hvorav 706,5 kvm er regulert til boligformål.
I følge eiendomskart er tomtegrensene nøyaktig og svært nøyaktig.
Oppvarming
Tomannsboligene leveres med følgende oppvarmingskilder:
* Varmefolie i stue/kjøkken 2. etasje.
* Vedovn i stue i 2. etasje.
* Varmekabler i entré, gang, stue i 1. etasje og begge bad.
* Panelovner fra Mill på soverommene.
* Man kan bestille tilvalg på oppvarming: Vannbåren varme i alle gulv inkl. luft/vann varmepumpe
Ventilasjon
Balansert ventilasjon med varmegjenvinning. Ventilasjonsaggregat.
Fasade
Liggende kledning som blir beiset for ivaretatt trestruktur.
Yttertak
Takkonstruksjon med isolasjon og papp/shingel. Det legges membran med forskriftsmessig fall mot sluk.
Generell orientering
Prosjektbeskrivelsen er utarbeidet for å orientere om prosjektets generelle bestanddeler og funksjoner, og er således ikke en komplett beskrivelse av leveransen. Enkelte illustrasjoner og tegninger i salgsprospektet kan vise forhold som ikke omfattes av selgers leveranse, som f.eks. møblering, kjøkkenløsning, garderobeinnredning, fargevalg, tepper, dør og vindusformer, bygningsmessige detaljer slik som fasadedetaljer/farger, detaljer på fellesarealer, materialvalg, beplantning etc.
I en bolig er det mye trebaserte produkter som påvirkes av temperatur og fuktighet. I disse vil det oppstå bevegelse og det kan medføre knirk i blant annet parkett og trapper. Det vil oppstå tørkesprekker i byggets første leveår på grunn av at trematerialene tørker, dette er en naturlig konsekvens og må påregnes.
Fremdriftsplan og ferdigstillelse
Tomannsboligene har estimert overtagelse i 2. eller 3. kvartal 2025. Konferer megler.
Regulerings og arealplaner
Eiendommen er regulert til boligbebyggelse frittliggende småhusbebyggelse i reguleringsplan vedtatt 02.11.2009 og sist endret 14.12.2018.
Kommuneplaner bnr. 1183
Id: KPLAN2019. Navn: KOMMUNEPLAN 2019-2030. Plantype: Kommuneplanens arealdel. Status: Endelig vedtatt arealplan. Ikrafttredelse 18.03.2019.
Delareal: 17 m2. Arealbruk: Boligbebyggelse, Nåværende.
Delareal: 893 m2. Arealbruk: Boligbebyggelse, Framtidig. Områdenavn: Lundeåsen.
Reguleringsplaner bnr. 1183
Id: 0106. Navn: LIAVEIEN. Plantype: Eldre reguleringsplan. Status: Endelig vedtatt arealplan. Ikrafttredelse 02.11.2009.
Delareal: 702 m2. Formål: Boligbebyggelse-frittliggende småhusbebyggelse. Feltnavn: B5.
Delareal: 208 m2. Formål: Naturvern.
Kommuneplaner bnr. 349
Id: KPLAN2019. Navn: KOMMUNEPLAN 2019-2030. Plantype: Kommuneplanens arealdel. Status: Endelig vedtatt arealplan. Ikrafttredelse 18.03.2019.
Delareal 1 003 m2. Arealbruk: Boligbebyggelse, Framtidig. Områdenavn: Lundeåsen.
Reguleringplaner bnr. 349
Id: 0106. Navn: LIAVEIEN. Plantype: Eldre reguleringsplan. Status: Endelig vedtatt arealplan. Ikrafttredelse 02.11.2009.
Delareal: 113 m2. Formål: Naturvern.
Delareal: 881 m2. Formål: Boligbebyggelse-frittliggende småhusbebyggelse. Feltnavn: B5.
Delareal: 9 m2. Formål: Boligbebyggelse-frittliggende småhusbebyggelse. Feltnavn: B2.
Deler av eiendommen er avsatt til naturvernområde N3 (edelløvtrær som eik skal bevares) i reguleringsplanen. Tiltaket med tilhørende adkomstvei er opplyst å ikke skulle medføre inngrep i naturvernområdet.
Garasje / parkering
Liaveien 27 har parkering i carport med plass til to biler i forkant av tomannsbolig.
- Venstre enhet med inngangsparti i carport.
- Høyre enhet med utvendig trapp til overbygd inngangsparti.
Liaveien 29 har parkering i integrert carport med plass til to biler på hver sin side av tomannsbolig.
- Fra carporter er det tilgang til utvendig bod.
- Enhetene har utvendig adkomst til overbygget inngangsparti.
Carportene leveres med asfaltert dekke, spilevegger og med stikkontakt på vegg.
Øvrig parkering iht. områdets gjeldende bestemmelser.
Husnummer er antatt og det er forbehold om at kommunen godkjenner dette. Kjøper må akseptere om dette vil bli noe annet enn antatt.
Konstruksjon
Leveranse utføres i henhold til teknisk forskrift (TEK) av 2017.
Hovedbæresystem i trekonstruksjoner, etasjeskillere i tre.
Aktørliste for Liaveien 27/29:
- Ansvarlig søker/arkitekt Mark arkitekter AS
- VVS Son VVS AS
- Elektro Akershus installasjon AS
- Ventilasjon SLK Boligventilasjon AS
- Utomhus/gravearbeider Gudøy graveservice AS
- Grunnmur Grunnmur AS
- Våtrom Flis: Bo mer byggtjenester AS
- Oppføring av Bygg Bo mer produksjon AS
- Kontroll av våtrom & lufttetthet Aktiva Takst AS
Organisasjonsform
Hver av tomannsboligene vil dele hver sin tomt og det vil opprettes hvert sitt sameie med standard vedtekter.
Betalingsbetingelser
10% av kjøpesummen innbetales ved kontrakt, dog tidligst når det foreligger garanti etter Bustadoppføringslova § 12. Resterende del av kjøpesum samt omkostninger innbetales pr. overtakelsesdato. (Finansieringsbevis/bekreftelse på hele kjøpesummen skal innleveres senest 14 dager etter kontraktsignering). Ved delinnbetaling av kjøpesummen kan beløpet fortløpende utbetales til utbygger/selger dersom han har stilt §47 garanti etter Bustadoppføringsloven. Dette gjelder inntil 90 % av kjøpesummen. De siste 10% kan først bli utbetalt etter at overtakelsen er gjennomført. Ved eventuell forsinket betaling gjelder lov om forsinkelsesrenter av 17.12.1976 nr. 100.
Ligningsverdi / formuesverdi
Formuesverdien er ikke beregnet. Skatteetaten vil beregne en boligverdi (beregnet markedsverdi for bolig) basert på SSBs statistiske opplysninger om omsatte boliger. Beregningen vil skje i forbindelse med første skattemelding etter overtakelse. I beregningen tas det hensyn til din boligs beliggenhet, areal, byggeår og type bolig. Formuesverdien er en prosentandel av denne boligverdien og vil variere dersom boligen brukes som primær- eller sekundærbolig.
For mer informasjon, se Skatteetatens nettsider.
Vedtekter / husordensregler
Standard vedtekter for sameiet vil bli opprettet.
Heftelser / servitutter
På eiendommene er det tinglyst følgende heftelser og rettigheter som følger matriklene ved overskjøting til ny hjemmelshaver:
3216/132/1183/0 og 3216/132/349/0
12.06.1961 - Dokumentnr. 990024 - ELEKTRISKE KRAFTLINJER
Bestemmelse om trafostasjon/kiosk
GJELDER DENNE REGISTERENHETEN MED FLERE
Overført fra: KNR: 3216 GNR: 132 BNR: 349
Meglers forklaring: Rekvirert, men ikke mottatt pr. 10.09.2024.
07.10.1993 - Dokumentnr. 6794 - ERKLÆRING/AVTALE
RETTIGHETSHAVER: KNR: 3216 GNR: 132 BNR: 352
Bestemmelse om vann/kloakkledning
GJELDER DENNE REGISTERENHETEN MED FLERE
Overført fra: KNR: 3216 GNR: 132 BNR: 349
Meglers forklaring: Avtale om legging av vann- og kloakkledning. Da eier ble pålagt av kommunen å knytte eiendommen til kommunalt vann- og kloakknett måtte det graves over to naboeiendommer. Naboeiendommer samtykker til at eier av nevnte eiendom gjør dette og dette innebærer også tillatelse til å grave opp grøften igjen dersom anlegget noen gang skulle trenge vedlikehold.
07.09.2016 - Dokumentnr. 811659 - ERKLÆRING/AVTALE / BEST. OM VANN/KLOAKKLEDN. / BESTEMMELSE OM GJERDE / BESTEMMELSE OM VEG
Bestemmelse om benyttelse
Bestemmelse om beplantning
GJELDER DENNE REGISTERENHETEN MED FLERE
Overført fra: KNR: 3216 GNR: 132 BNR: 349
Meglers forklaring: Skjøte med særskilt avtale; Innløsning av festetomt der festerett på bnr 349 slettes. Det samme gjelder evnt. andre rettigheter som er avtalt i festekontrakten med unntak av de innløsningsvilkår (negative servitutter) som er inntatt i tillegg. Inneholder også tillegg til skjøte med avtaler som skal tinglyses. Dette omhandler bla. a. drift på eiendommen, beplantning på tomten, evnt. gjerdeplikt mot vei og best. om bebyggelse. Videre er bnr 349 forpliktet til å akseptere at det over eiendommen blir gravd for anlegg eller vedlikehold av vann-, kloakk- og andre ledninger for andre eiendommer tilknyttet ledningsnettet, samt eiendommens rett til å benytte vei sammen med øvrige eiendommer.
03.07.2017 - Dokumentnr. 712365 - BESTEMMELSE OM VANNLEDNING / BESTEMMELSE OM KLOAKKLEDNING
Bestemmelse om vedlikehold av anlegg/ledninger
GJELDER DENNE REGISTERENHETEN MED FLERE
KAN IKKE SLETTES UTEN SAMTYKKE FRA: VESTBY KOMMUNE
ORG.NR: 943 485 437
Overført fra: KNR: 3216 GNR: 132 BNR: 349
Meglers forklaring: Erklæring om vann og avløp for gnr 132 bnr 398 og 349, der eiendommen har rett til anlegg, drift og vedlikehold av stikkledn. for vann og avløp frem til off. ledningsnett. Eiendommene skal, fra felles tilkoblingspunkt og frem til offentlig ledningsnett, ha felles stikkledninger for vann og kloakk. Anlegg, drift og vedlikehold av felles stikkledninger påhviler alle eiendommene gjensidig.
10.06.2020 - Dokumentnr. 2576096 - BESTEMMELSE OM ADKOMSTRETT
Rettighet hefter i: KNR: 3216 GNR: 132 BNR: 349
KAN IKKE SLETTES UTEN SAMTYKKE FRA: VESTBY KOMMUNE
ORG.NR: 943 485 437
Meglers forklaring: Erklæring om rett til adkomstvei for gnr 132 bnr 1183, der eiendommen har bruksrett til trafikkareal og adkomstvei frem til off. vei over gnr 132 bnr 349. Brukerne av vei og trafikkareal har felles ansvar for drift og vedlikehold av disse. Dette gjelder de to eiendommene det bygges tomannsboliger på.
10.06.2020 - Dokumentnr. 2576142 - BESTEMMELSE OM VANN/KLOAKK
Rettighet hefter i: KNR: 3216 GNR: 132 BNR: 349
Bestemmelse om vedlikehold av anlegg/ledninger
KAN IKKE SLETTES UTEN SAMTYKKE FRA: VESTBY KOMMUNE
ORG.NR: 943 485 437
Meglers forklaring: Erklæring om vann og avløp for gnr 132 bnr 1183, der eiendommen har rett til legging, drift og vedlikehold av stikkledn. for vann og avløp frem til off. ledningsnett over gnr 132 bnr 349. Dette gjelder de to eiendommene det bygges tomannsboliger på.
03.10.2012 - Dokumentnr. 818067 - BESTEMMELSE OM VEG
Rettighet hefter i: KNR: 3216 GNR: 132 BNR: 1065
FNR: 0 SNR: 1-31
Tinglyst i feil eiendom. Rettet etter tgll § 18 21.11.2012 LSØ e.f.
GJELDER DENNE REGISTERENHETEN MED FLERE
Meglers forklaring: Avtale om veirett for eiendommer som er berørt av utbygging i området. Nevnte eiendommer gis veirett til adkomst til nyregulert kommunal vei (Liaveien i Vestby kommune) via regulert Felles Avkjørsel FA1-5 som er en del av 132/1065, m.m. Drift og vedlikehold av de aktuelle felles avkjørslene besørges i tråd med reguleringsbestemmelsene, dvs. alle tilgrensende boligeiendommer, eller der hvor eiendommene i dag har adkomst til Brevikveien.
23.11.2012 - Dokumentnr. 997217 - ERKLÆRING/AVTALE
Rettighet hefter i: KNR: 3216 GNR: 132 BNR: 1065
FNR: 0 SNR: 1-31
Rett til bruk av felles lekeplass.
Kan ikke slettes uten samtykke fra kommunen
GJELDER DENNE REGISTERENHETEN MED FLERE
Meglers forklaring: Erklæring om vann- og avløp og lekeplass der eiendommene gnr 132 bnr 178, 179 og 398 skal ha rett til anlegg, drift og vedlikehold av stikkledninger for vann og kloakk frem til off. ledningsnett over eiendommen 132/1065. Eiendommene gnr 132 bnr 156, 169 og 293 skal ha rett til drift og vedlikehold av eksisterende stikkledninger for vann og kloakk frem til off. ledningsnett. Eiendommene gnr 132 bnr 156, 169, 178, 179, 293, 349, 355 og 398 skal ha rett til bruk av felles lekeplass på eiendom 132/1065.
16.11.2017 - Dokumentnr. 1279733 - BESTEMMELSE OM VEG
Rettighet hefter i: KNR: 3216 GNR: 132 BNR: 398
Meglers forklaring: Erklæring om rettighet i fast eiendom der det gis veirett over eiendom 132/398 i Vestby kommune, med gitte vilkår. Rettighetshaver plikter å delta med like stor andel som avgiver vedr. kostnad ifm. opparbeidelse, drift, vedlikehold og evnt. andre kostnader relatert til felles vei. Det er ikke tillatt å bruke veien til parkering eller oppbevaring av gjenstander, veien skal holdes ryddet og godt vedlikehold. Dette gjelder siste del av veien inn til Liaveien 29 i dag.
24.09.2018 - Dokumentnr. 1309673 - BESTEMMELSE OM BEBYGGELSE
Rettighet hefter i: KNR: 3216 GNR: 132 BNR: 398
Meglers forklaring: Erklæring om rettighet i fast eiendom der det gis tillatelse til at det på naboeiendom gnr 132 bnr 349 kan oppføres nybygg mindre enn 4 meter fra felles grense. Avgiver er inneforstått med at dette innebærer at nåværende og senere hjemmelshavere ikke kan bygge nærmere felles grense enn det som følger av bestemmelsene i pbl tilhørende forskrift.
11.12.2018 - Dokumentnr. 1671725 - BESTEMMELSE OM VANN/KLOAKK / BESTEMMELSE OM VEG
Rettighet hefter i: KNR: 3216 GNR: 132 BNR: 1065
FNR: 0 SNR: 1-31
Bestemmelse om vedlikehold av anlegg/ledninger
GJELDER DENNE REGISTERENHETEN MED FLERE
Meglers forklaring: Erklæring om rettighet i fast eiendom der det gis veirett og rett til å anlegge stikkledninger for vann- og avløpstrasé over eiendom 132/1065, med gitte vilkår. Rettighetshaver plikter å delta vedr. kostnad i forbindelse med drift, vedlikehold og evnt. andre kostnader relatert til felles ledningsnett og vei. Stikkledning frem til fellesledning er rettighetshavers ansvar vedr. drift, vedlikehold og evnt. andre kostnader relatert til denne delen av stikkledning.
Ferdigattest / brukstillatelse
Det er ulovlig å ta boligen i bruk før ferdigattest eller midlertidig brukstillatelse foreligger. Kjøper har heller ingen plikt til å overta eller innbetale oppgjør før midlertidig brukstillatelse foreligger. Det er selgers plikter å fremskaffe midlertidig brukstillatelse og ferdigattest.
Diverse
Det opplyses om at ingen kan eie mer enn to boligseksjoner i sameiet, jf. eierseksjonsloven § 23. Seksjoner som eies av nærstående eller via firma teller med.
Etter lov om eierseksjoner § 31, er sameierne overfor sameiets kreditorer ansvarlige etter sin sameiebrøk. Ved manglende betaling av fellesutgifter har sameiet legalpanterett i den enkelte eierseksjon på inntil 2 ganger folketrygdens grunnbeløp.
Kjøper og selger er forpliktet til å undertegne standard kjøpekontrakt utarbeidet av Nordvik i forbindelse med eiendomstransaksjonen. Kjøpekontrakt kan besiktiges hos eiendomsmegler før bud inngis. Kontakt eiendomsmegler for spørsmål.
Selger leverer eiendommen i ryddig og rengjort stand.
Adgang til utleie
Boligen kan leies ut i tråd med gjeldende lovverk. Vedtektene inneholder ingen begrensninger av eiers utleieadgang.
Korttidsutleie er tillatt i opptil 90 døgn i året, jf. eierseksjonsloven § 24. Grensen på 90 døgn kan fravikes i vedtektene, men må settes til mellom 60 og 120 døgn. Med korttidsutleie menes utleie i inntil 30 døgn sammenhengende.
Det er krav om forsvarlige radonnivåer i utleieboliger. Er det ikke gitt opplysninger om at selger har kunnskap om eiendommens randonnivå, vil kjøper overta risikoen for radonnivået i boligen/utleieenheten. For mer informasjon se https://dsa.no/radon
Sentrale lover
Dersom kjøper er forbruker, og avtale om kjøp inngås mindre enn 6 måneder etter at boligen ble ferdigstilt, skal det stilles garanti i samsvar med bustadoppføringslova § 12. Garantiplikten følger av avhendingslova § 2-11.
Selger har ikke garantiforpliktelse hvis kjøper ikke er å anse som en forbruker.
Avtaler mellom forbrukere og entreprenører om oppføring av ny bolig reguleres av bustadoppføringslova. Dette innebærer blant annet at kjøper har krav på garanti for oppfylling av avtalen etter bustadoppføringslova § 12. Med forbruker menes en fysisk person som ikke hovedsakelig handler som ledd i næringsvirksomhet. I tilfeller der kjøper ikke er forbruker, kan selger kreve at avtalen reguleres av avhendingslova.
Utbygger stiller selvskyldnergaranti for eventuelle mislighold. Utbygger plikter også iht. loven å være forsikret.
Hvitvaskingsregelverk
Eiendomsmeglere er underlagt lov om hvitvasking og tilhørende forskrift. Etter hvitvaskingsloven er eiendomsmegler pålagt å gjennomføre kundetiltak av både selger og kjøper.
Hvis kjøper ikke bidrar til at megler får gjennomført kundetiltak, og dette fører til at transaksjonen ikke kan gjennomføres eller blir forsinket, misligholder kjøper avtalen. Etter 30 dager anses misligholdet vesentlig, og selger har rett til å heve avtalen og gjennomføre dekningssalg for kjøpers regning. Dersom det er selger som ikke bidrar til at megler får gjennomført løpende kundetiltak underveis i oppdraget må eiendomsmegler stanse gjennomføringen av transaksjonen. Selger vil i et slikt tilfelle ha misligholdt sine forpliktelser, og kjøper vil kunne ha et krav mot selger etter avhendingsloven.
Hvis kundetiltak ikke lar seg gjennomføre, vil Nordvik Eiendomsmegling ikke kunne bistå med handelen eller foreta oppgjør.
Ansvarlig megler
Frode Larsen
Nyttige lenker
Nærområdet
Nordvik Moss
Annonseinformasjon
| FINN-kode | 370207844 |
|---|---|
| Sist endret | 17. jan. 2025 21:20 |
| Referanse | 41-5018/24 |
Annonsene kan være mangelfulle i forhold til lovpålagt opplysningsplikt. Før bindende avtale inngås oppfordres interessenter til å innhente komplett informasjon fra meglerforetaket, selger eller utleier.














