Bildegalleri

Moderne eneboliger beliggende i den øverste delen av det nye boligfeltet i Holåsen Vest.
Holåsen Vest - frittstående eneboliger
Moderne eneboliger i populære Holåsen Vest på Skogn - sjøutsikt og sen kveldssol!
Prisantydning fra
5 900 000 kr
Prisantydning til
6 250 000 kr
Prosjektets status
Planlegging
2024.
Salgsstart
Høsten 2024.
Byggestart
2025.
Overtakelse
2025/2026.
Nøkkelinfo
- Boligtype
- Enebolig
- Soverom
- 3
- Internt bruksareal
- 156 m² (BRA-i)
- Bruksareal
- 163 m²
- Eksternt bruksareal
- 7 m² (BRA-e)
- Balkong/Terrasse
- 36 m² (TBA)
- Eieform
- Eier (Selveier)
Fasiliteter
Enheter i prosjektet
Sorter etter
| Enhet | BRA-i | Soverom | Totalpris |
|---|---|---|---|
| 7 | 156 m² | 3 | 6 270 010 kr |
| 9 | 156 m² | 3 | 5 920 760 kr |
| 11 | 156 m² | 3 | 6 269 260 kr |
Beskrivelse
Kort om eiendommen
Nå har du muligheten til å sikre deg en moderne enebolig i det nye boligfeltet i Holåsen Vest. Her er flere lekeplasser, asfaltert vei og gatelys allerede etablert, og boligfeltet er klart til å ta i mot nye beboere. Her kan du nyte sene solrike sommerkvelder mens barna løper ned til en av de fine lekeplassene i feltet eller til en lekekamerat i nabolaget. Trygg og fin skoleveg til Skogn barne- og ungdomsskole.
Arealeffektive eneboliger med 3 soverom, 2 stuer og 2 bad. Åpen stue/kjøkkenløsning med store vindusflater og godt med gjennomlys. Boligene leveres med god standard. Kjøkken og baderomsinnredning fra Sigdal, med integrerte hvitevarer på kjøkken. Vedfyring. Parkettgulv.
Det er mulig å tilpasse boligene til kjøpers behov.
Trykk på linken "prosjektets hjemmeside" for mer info.
Innhold
Boligene inneholder:
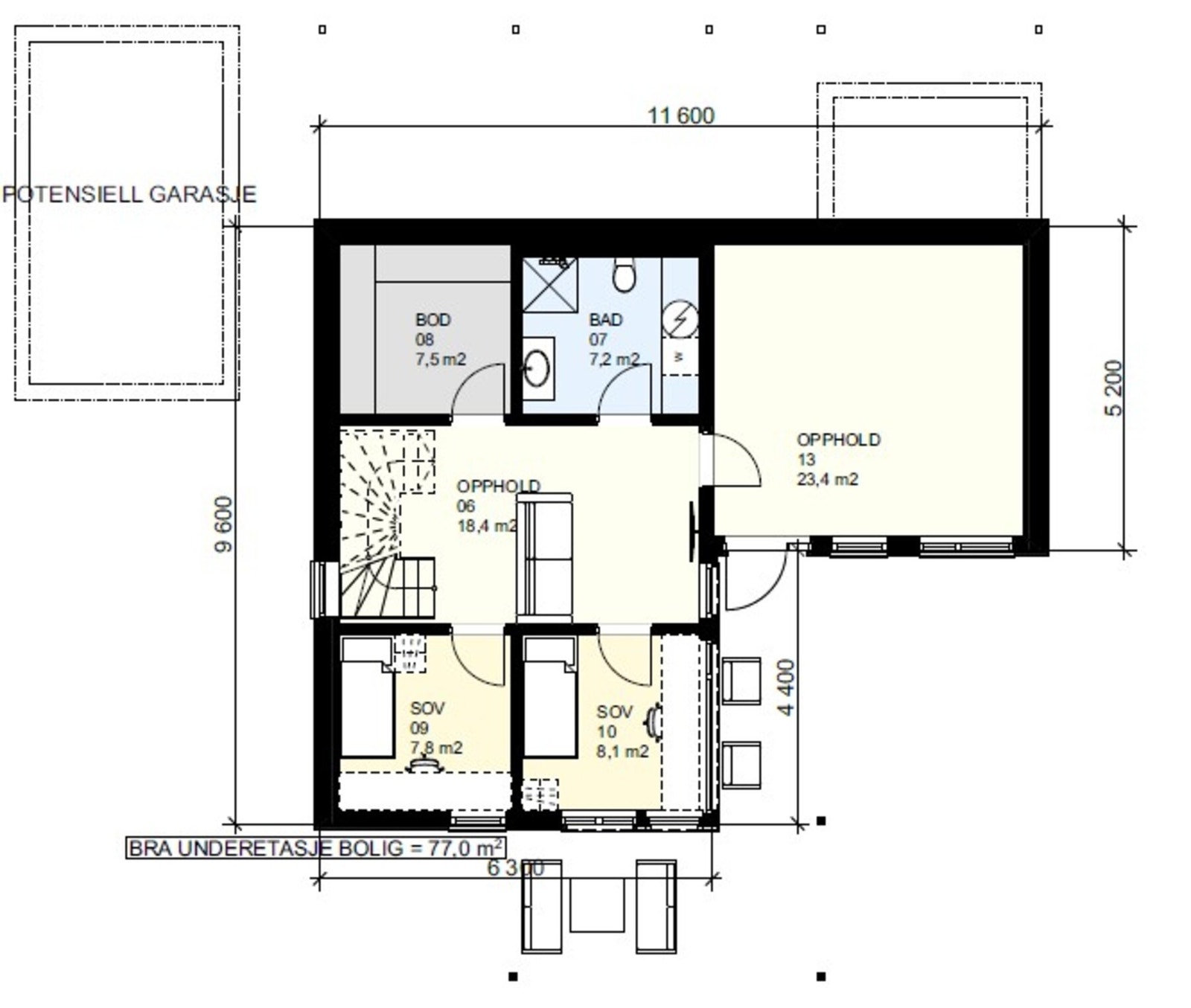
1. etasje: Stue/kjøkken, entre/hall, soverom og bad, i tillegg til utvendig sportsbod.
Sokkel: 2 soverom, bad, bod og 2 oppholdsrom.
Standard
Ny bolig betyr minimalt med vedlikehold noe som igjen gir mer ro i hverdagen. Bruk heller tiden på noe som betyr mer for deg.
Bygningsinformasjon / byggemåte
Se selgers leveranse-/byggbeskrivelse.
Byggebeskrivelsen/leveransebeskrivelsen skal angi hvilken teknisk standard prosjektet leveres med, samt foreløpig angi hva komplett leveranse etter kjøpekontrakten innebærer. Dersom det ikke er tatt inn spesifiserte bestemmelser i kjøpekontrakten, gjelder følgende krav:
- De tekniske løsninger skal tilfredsstille plan- og bygningslovgivningen, herunder kravene i teknisk forskrift.
- Utført arbeid skal tilfredsstille avtalte toleranseklasser i henhold til kontrakt. Om ikke toleransekrav er avtalt i kontrakt vil krav til avvik være i henhold til normalkrav i standarden, jfr. Norsk Standard NS 3420-1:2008
Det gjøres oppmerksom på at iht. teknisk forskrift, så er det ikke krav om at alle vinduer leveres med åpningsmulighet.
Selger forbeholder seg retten til å foreta endringer i materialvalg og konstruksjonsløsninger, samt foreta tilpasninger som er nødvendig etter hvert som tiltaket detaljprosjekteres uten forhåndsvarsel til kjøperne. Dette gjelder også ev. sammenslåing eller oppdeling av leiligheter. Endringene skal ikke redusere byggets eller leilighetens kvalitet eller vesentlig endre innholdet i prosjektet som sådan. Slike endringer gir ikke rett til prisjustering fra noen av partene. Om det blir nødvendig å gjennomføre vesentlige endringer ut over de forannevnte bestemmelser, plikter selger å varsle kjøper om endringene uten ugrunnet opphold.
Oppvarming
Vedfyring og elektrisk oppvarming. Varmekabler i gulv på bad og vaskerom.
Beliggenhet
Skogn har praktisk beliggenhet midt mellom Trondheim og Steinkjer. Rett i nærheten av Skogn ligger Levanger sentrum, der det blant annet finnes kjøpesenter og sykehus. Med havn, togstasjon, bussforbindelser og 42 km avstand til Trondheim lufthavn Værnes, er det dessuten kort vei fra Skogn til resten av verden.
I Skogn er det et rikholdig tilbud av organisert aktivitet, både for barn og voksne. Det finnes blant annet tilbud innen teater og idretter som håndball, fotball, friidrett, sykkel, langrenn og alpint. Skogn har også mange fine turområder. Bygda er omringet av sjø, skog og fjell, og dette muliggjør et bredt spekter av aktiviteter. Blant annet er det mulig å kombinere mosjon og naturopplevelser ved å benytte seg av trimtrappa. Om vinteren er Torsbustaden Skisenter mye besøkt, mens badestrendene i området er populære i sommerperioden.
Adkomst
Se kart.
Parkeringsforhold
Parkering utvendig på egen gårdsplass. Det er muligheter for å bestille garasje i tillegg.
Regulering
Eiendommen er regulert til bolig.
Ferdigattest
Utbygger sørger for at det blir utstedt ferdigattest etter ferdigstillelse av bygget.
Nærområdet
EiendomsMegler 1 Levanger
Annonseinformasjon
| FINN-kode | 369305110 |
|---|---|
| Sist endret | 22. mai 2025 13:00 |
| Referanse | PFS-51240078 |
Annonsene kan være mangelfulle i forhold til lovpålagt opplysningsplikt. Før bindende avtale inngås oppfordres interessenter til å innhente komplett informasjon fra meglerforetaket, selger eller utleier.











