Bildegalleri

Eneboligene er planlagt i moderne stil med høy standard - Illustrasjonsbilde
Moderne eneboliger på Liland, Evenes
Moderne eneboliger på Liland | 3/4 SOLGT | Alt på ett plan | Perfekt som enebolig for voksne, førstekjøp, fritidsbruk
Prisantydning
3 590 000 kr
Prosjektets status
Planlegging
Sommer 2024
Salgsstart
Sommer 2024
Byggestart
Høst 2024
Overtakelse
Sommer/høst 2025
Nøkkelinfo
- Boligtype
- Enebolig
- Soverom
- 2
- Internt bruksareal
- 80 m² (BRA-i)
- Bruksareal
- 80 m²
- Eieform
- Eier (Selveier)
- Energimerking
- B
Enhet i prosjektet
Sorter etter
| Enhet | Etasje | BRA-i | Soverom | Totalpris |
|---|---|---|---|---|
| 1 | 1 | 80 m² | 2 | 3 650 000 kr |
Visning
Ta kontakt for å avtale visning.Beskrivelse
Moderne eneboliger på Liland, Evenes
3 AV 4 ENEBOLIGER SOLGT. EN ENEBOLIG IGJEN.
EIE eiendomsmegling Harstad v/megler Vetle Larsen har gleden av å presentere 4 prosjekterte eneboliger på Liland i Evenes Kommune. 3 av 4 i første trinn er solgt.
Boligene er planlagt i moderne og praktisk utforming med funkispreg. Her kan du flytte rett inn i en ny, moderne enebolig med god standard. Her får du flott utsikt, god solgang og kort vei til alle fasiliteter på Liland.
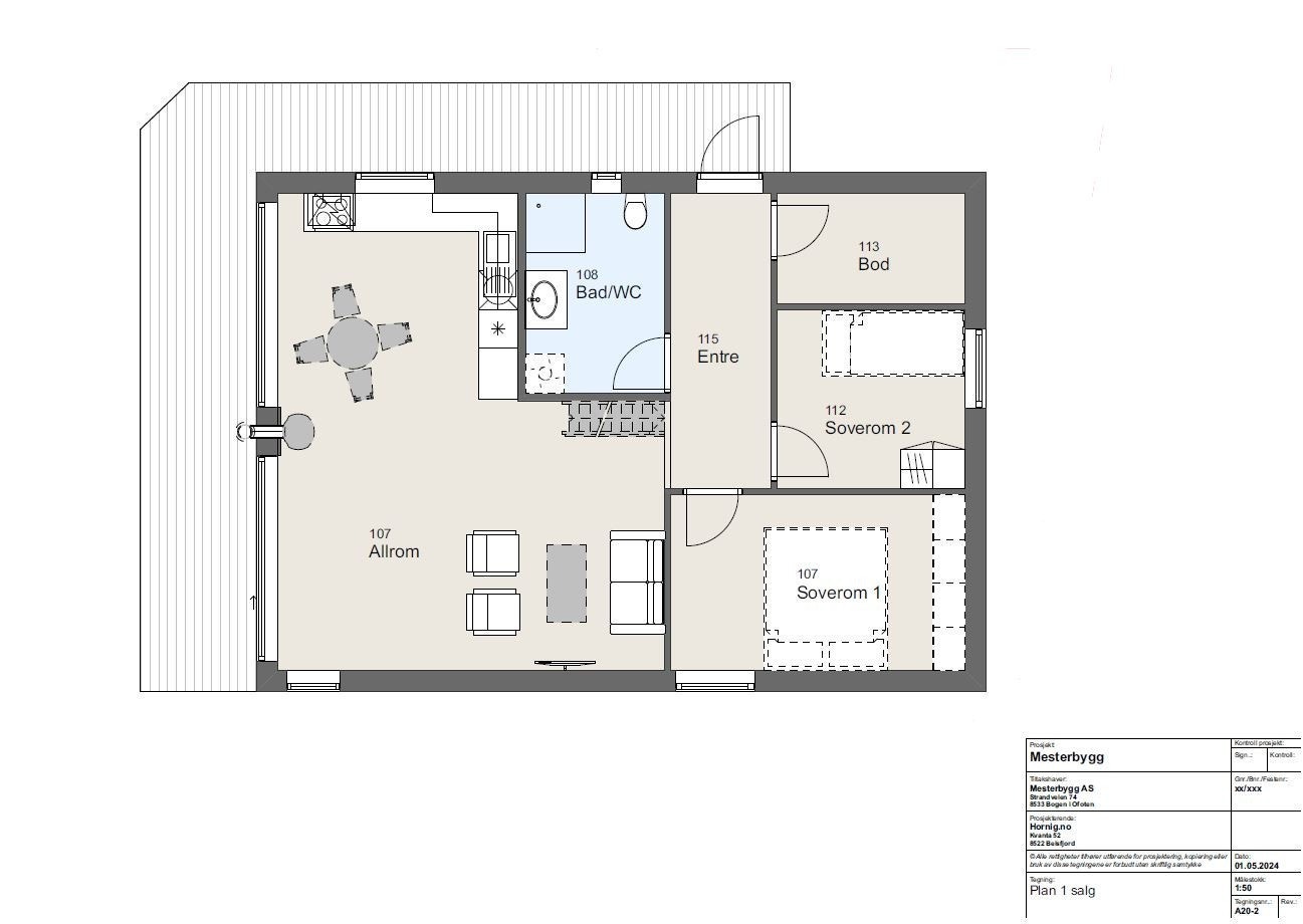
Boligene er med alt på ett plan på ca. 80 kvm og inneholder entre, gang, stue, kjøkken, bad, bod og to soverom. I tillegg hems med mulighet for tv-stue/ekstra soveplass. Innredning av loftetasje gir ca. 20 kvm større areal i boligen og 40 kvm større gulvareal. Terrasse i front og videre mot inngangspartiet.
Eneboligene blir registrert som bolig for helårsbruk men kan også benyttes til fritidsbruk, utleie eller bolig nr. 2. Boligene er perfekt for voksne, førstegangskjøpere eller for fritidsbruk.
Her er det mulighet for å sette sitt preg på boligene med tilvalg på blant annet innvendige overflater, carport, innredning av loftetasje mm.
Boligene blir plassert på Liland i Evenes Kommune. Eiendommen ligger høyt i terrenget med nydelig utsikt og god solgang. Det er gangavstand til ny skole, barnehage, butikk, båthavn og populære turområder.
Avstander:
Evenes Flyplass: 10 km
Harstad: 50 km
Narvik: 50 km
Ta kontakt med eiendomsmegler Vetle Larsen på tlf: 93208856 for å melde interesse.
Nyttige lenker
Nærområdet
EIE eiendomsmegling Harstad
MesterBygg AS
Utbygger
Annonsene kan være mangelfulle i forhold til lovpålagt opplysningsplikt. Før bindende avtale inngås oppfordres interessenter til å innhente komplett informasjon fra meglerforetaket, selger eller utleier.














