Bildegalleri

Velkommen til Røtingavegen! Her skal en ny og lekker enebolig bygges i naturskjønne omgivelser med flott sjøutsikt! (Illustrasjon - avvik vil forekomme)
Røtingavegen, tomt 5
Ny funkis enebolig m/sjøutsikt, 4 soverom, tv-stue, uteplass på 35 kvm, dobbelt garasje! Ingen forskudd
Prisantydning
11 800 000 kr
Prosjektets status
Planlegging
Planlegging pågår!
Salgsstart
I salg!
Byggestart
Ved salg!
Overtakelse
Antatt 4. kvartal 26
Nøkkelinfo
- Boligtype
- Enebolig
- Soverom
- 4
- Internt bruksareal
- 243 m² (BRA-i)
- Bruksareal
- 243 m²
- Eieform
- Eier (Selveier)
Fasiliteter
Enhet i prosjektet
| Enhet | Etasje | BRA-i | Soverom | Totalpris |
|---|---|---|---|---|
| Røtingavegen | 1 | 243 m² | 4 | 11 863 500 kr |
Beskrivelse
Eiendomsmegler Vest nybygg har gleden av å presentere Røtingavegen, tomt 5.
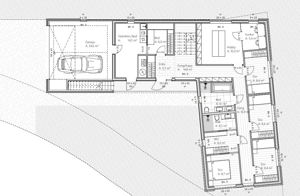
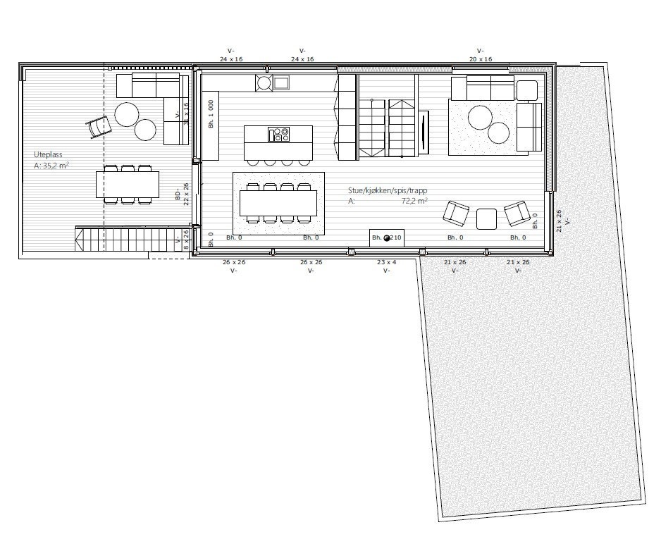
Her skal en ny og lekker enebolig på 242 kvm BRA over to plan bygges i populært område. Boligen får et moderne og lekkert uttrykk med store vinduer, god takhøyde og flott utsikt. Planløsningen er gjennomtenkt med smarte løsninger, stor stue og kjøkkenløsning på 72 kvm, 4 soverom, tv-stue/ hobbyrom, to baderom og stor uteplass på 35 kvm. Boligen har en flott beliggenhet i veletablert boligområde. Det er kort avstand til Vedholmen med landhandel. Til Osøyro er det ca 10 kvm. Det er kort vei til skole og barnehage. Søre Øyane skule med 1-7. klasse ligger kun ca 2 kvm fra boligen.
Arealer:
1. etg.
BRA-I: 169,7 kvm
2. etg:
BRA-I: 72,6 kvm
Totalt BRA-I: 242 kvm
Totalt BRA: 242 kvm
Boligen inneholder:
1. etg: Entrè, gang/ trapp, vaskerom/ teknisk/ bod, innvendig bod, hybby-rom/ tv-stue, kontor, 4 soverom, walk-in-closet og to baderom. Dobbelt garasje på 34,6 kvm integrert i bolig med adkomst til bolig.
2.etg: Stor stue og kjøkken på 72 kvm. Utgang til uteplass på 35 kvm. Trappe adkomst til hageparti fra uteplass.
Litt om kvaliteter:
Hovedetasjen har stor kjøkken og stueløsning på hele 72 kvm. Her er rikelig med plass til både sofagruppe, spisebord og romslig kjøkken med praktisk kjøkken-øy. Store vinduer gir rikelig med lysinnslipp og en god romfølelse. Det er god plass til sofa- og spisegruppe. Det er flott sjøutsikt og gode solforhold. Fra stue/ kjøkken er det utgang til solrik uteplass på 35 kvm med rikelig plass til hagemøbler og grill. Perfekt på varme solskinnsdager! Adkomst til hage via trapp.
Kjøkken
Det blir levert moderne og flott kjøkkeninnredning fra Drømmekjøkken, type Bistro finer. Her får du rikelig med skap- og benkplass, samt praktisk kjøkken-øy. Hvitevarer fra Siemens som integrert oppvaskmaskin, ventilert platetopp, stekeovn og kjøleskap/ frys medfølger. Kjøkkenet framstår som et godt samlingspunkt i en travel hverdag. Her ligger alt til rette for matlaging og sosialt. God plass til spisebord i tilknytning til kjøkken.
Soverom
Det er totalt 4 soverom i boligens hoveddel på hhv. 8,7 kvm, 8,4 kvm, 8,4 kvm og 8,4 kvm. Hovedsoverom får eget baderom på 4,5 kvm og walk-in-closet på 6 kvm.
TV-Stue
Det er også egen tv-stue/ hobbyrom i 1. etasje på ca 16 kvm, samt inngang til kontor på 5,4 kvm. Perfekt for både store og små.
Baderom
Boligen har to stk baderom. Alle baderom leveres helfliset med fliser til kr. 300 kr per kvm inkl. mva. Fliser i størrelse inntil 60 x 60 cm og nedsenket dusjsone er inkludert i pris. Baderomsmøblement med innredning, speil og belysning. Det blir levert vegghengt wc, dusjgarnityr og dusjvegger i glass. Varmekabler i gulv på baderom.
Vaskerom
Det er eget vaskerom i 1. etasje på 14,5 kvm Her er det lett å henge fra seg vått yttertøy med separat inngang og inngang til garasje. På vaskerom er det også opplegg for teknisk rom og det blir levert oppvaskbenk med laminat benkeplate og utslagsvask.
Trapp
Trapperingen, modell Salvi 180 med heltre kvistfri furu. Returgelender med heltre kvistfri furu.
Overflater
Overflater leveres ferdig sparklet og malt. Flott laminat fra Kàhrs på gulv. Det blir levert fliser i gulv på entrè, wc-rom og vaskerom/ teknisk rom med med sokkelflis til kr. 300,- per kvm inkl. mva. Det blir levert downlights i deler av bolig iht. elektro leveranse.
Oppvarming
Det medfølger varmekabler i gulv hele 1. etasje og 2. etasje. Varmekabler i baderom 1. etg og 2. etg. Mulighet for vannbåren varme mot ekstra kostnad. Balansert ventilasjon med varmegjennvinning.
Se leveransebeskrivelse for mer informasjon.
En prosjektert bolig åpner muligheten for individuell tilpassing for at du kan gi din nye bolig det uttrykket du selv ønsker. Samtidig vil du med en ny bolig få lav dokumentavgift, lave vedlikeholdskostnader og frigjør tid til alt du egentlig ønsker å bruke fritiden din på. Eiendommen vil få gode kvaliteter og leveres nøkkelferdig til kjøper.
Fordeler med nybygg:
- Alt er nytt
- Lavere driftskostnader
- Lovfestet garanti på fem år sikrer utbedring av eventuelle feil og mangler
- Mulighet til å tilpasse boligen
- Minimalt vedlikehold
- En god investering
- Ingen stressende budrunder
- God teknisk standard
Kontakt megler Andreas Tveit, tlf. 908 25 130 for mer informasjon eller visning. Tomten kan besiktiges på egenhånd eller etter avtale med megler
Beliggenhet
Landlig og flott beliggenhet i ett veletablert boligområde. Fra boligen er det utsikt over nærområdet og sjø. Området er hovedsaklig bebygd med eneboliger. Kort avstand til dagligvarebutikk på Vedholmen og Osøyro som har det meste man trenger av fasiliteter og servicetilbud er det kun 10 km. Her ligger også Oseana Kulturhus med både kunst, forestillinger, konserter, samt kino tilgjengelig. Kort vei til skoler og barnehage. Søre Øyane skule med første til syvendeklasse ligger ca. 2 km fra boligen. Ved skolen er det også fotballbane, ballbinge og sandvolleyballbane. Søre Øyane barnehage er ca 1,4 km unna. Nærmeste ungdomsskole på Nore Neset. Os videregåande skole og Os gymnas er de nærmeste videregående skolene.
Garasje/parkering
Integrert garasje på 36 kvm med plass til to biler. Forøvrig mulighet for parkering på egen tomt.
Prisinformasjon
Se gjeldene prisliste for mer informasjon.
Betalingsbetingelser
Hele kjøpesummen innbetales 3 dager før innflytting. Ingen forskudd!
Tomt
Utvendig tomt blir ikke opparbeidet. Det vil bli gruset 1 meter ut fra bygningskropp.
Oppvarming
Balansert ventilasjon med varmegjenvinning. Varmekabler i 1. etasje (foruten garasje) og 2. etasje.
Energimerking
Energimerke vil foreligger før overtagelse.
Sentrale lover
Boligen selges etter bustadoppføringslova sine bestemmelser.
Adgang til utleie
Dette er en selveiende eiendom og eiendommen kan fritt leies ut.
Hvitvaskingsregelverk
Eiendomsmeglere er underlagt lov om hvitvasking og er forpliktet til å rapportere til Økokrim om mistenkelige transaksjoner. Lov om hvitvasking innehar også strenge regler om kontroll av legitimasjon fra alle parter i handelen, herunder, selger, kjøper og fullmektiger for disse. Dersom eiendomsmegler ikke får utført slik kontroll, plikter eiendomsmegler å avstå fra å gjennomføre oppdraget/handelen.
Fremdriftsplan og ferdigstillelse
Estimert byggetid er 10 måneder fra vedtak om oppstart. Antatt ferdigstillelse til 4. kvartal 2026. Dette er kun stipulert og faktisk ferdigstillelse kan avvike fra dette. Herunder vil overlevering senere enn dette tidspunkt ikke gi kjøper rett til dagmulkt eller andre misligholdsbeføyelser.
Nærområdet
Eiendomsmegler Norge Nybygg Bergen
Annonseinformasjon
| FINN-kode | 367282102 |
|---|---|
| Sist endret | 07. nov. 2025 10:05 |
| Referanse | 81245024 |
Annonsene kan være mangelfulle i forhold til lovpålagt opplysningsplikt. Før bindende avtale inngås oppfordres interessenter til å innhente komplett informasjon fra meglerforetaket, selger eller utleier.




