Bildegalleri

Illustrasjon av området
Bårliåsen
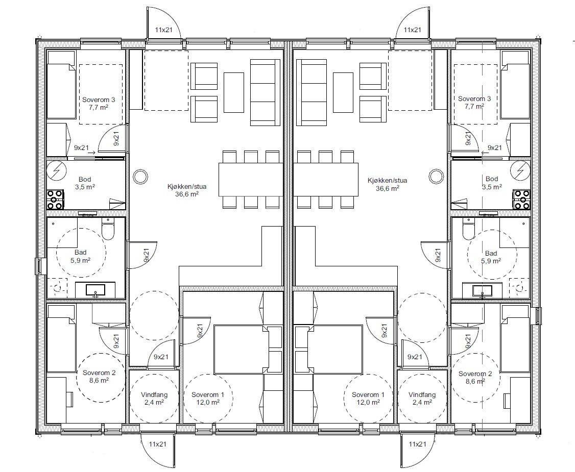
Arealeffektive boliger på 1 plan med 3 soverom
Prisantydning
3 750 000 kr
Kort om prosjektet
I Bårliåsen har vi en ferdigstilt bolig igjen av 5 boliger. Overtakelse kan gjøres omgående.
Prosjektets status
Planlegging
Ferdigstilt
Salgsstart
10.11.25
Byggestart
04.11.2024
Overtakelse
Fortløpende.
Nøkkelinfo
- Boligtype
- Tomannsbolig
- Soverom
- 3
- Antall etasjer
- 1
- Bruksareal
- 81 m²
- Eieform
- Eier (Selveier)
- Energimerking
- B
Fasiliteter
Enhet i prosjektet
Sorter etter
| Enhet | BRA | Soverom | Totalpris |
|---|---|---|---|
| 4 | 81 m² | 3 | 3 762 250 kr |
Visning
Ta kontakt for å avtale visning.Beskrivelse
Velkommen til Bårliåsen!
I Bårliåsen skal vi bygge to tomannsboliger og en enebolig. Boligene vil bli bygget etter livsløpsstandard og kan dermed brukes i alle faser av livet. Her har du alle rom på et plan, brede dører og trappefri adkomst til boligen.
Det er lagt opp til en solid og tidsriktig leveranse. Ønsker du likevel å gjøre endringer, kan du skape ditt eget drømmehjem med muligheten for mange ulike tilvalg.
Området rundt er et allerede etablert boligområde. Herfra er det også kort vei til flere fine tur- og friluftsmuligheter, som kan brukes både sommer og vinter.
Det er kort vei til sentrum av Eidsvoll og Eidsvoll Stasjon hvor det er gode buss- og togforbindelser til Lillestrøm, Oslo og Oslo lufthavn. Toget bruker 8 minutter til Oslo lufthavn og 36 minutter til Oslo S.
- Mulighet for tilvalg
- Skap ditt drømmehjem!
- Integrerte hvitevarer
- Ventilasjonsanlegg
- Flislagte bad
- Vedovn med stålpipe
- Utvendig sportsbod på 5,3 kvm
- Bygges etter TEK 17
- Lave omkostninger når du kjøper ny bolig
Leveransebeskrivelse
UTVENDIG FASADE
Utvendig liggende kledning grunnes og males ett strøk i fargen «Klassisk hvit». Hvite takrenner og nedløp. Takstein leveres i rødt.
INNVENDIGE OVERFLATER
Gulvene leveres med eikefarget 1-stavs laminat. På veggene leveres panelplater med v-fas 4 bord i fargen «bomull». Himlinger leveres med hvite takplater.
ENTRÉ
Beige gulvfliser og varmekabel i entré. Panelplater med v-fas 4 bord i fargen «bomull» på veggene.
BAD
Gulv leveres med 20x20 beige gulvfliser og varmekabel. Veggflis i 20x40 i beige. 120 cm baderomsinnredning med to skuffer med eikstruktur, vask og speil med led-lampe over speil. Innfellbare 100x100 cm dusjdører og gulvtoalett med soft-close sete.
INNVENDIG BOD/ TEKNISK ROM
Beige gulvfliser 20x20 med sokkelflis og varmekabler på gulv. Våtromsplater i «Pure Ash» på veggene. I boden plasseres ventilasjonsaggregatet og varmtvannsbereder.
DØRER, LISTER OG VINDER
Innvendige, slette dører i fargen bomull. Glatte lister i tak, gulv og rundt vinduer/dører i fargen bomull. Ytterdør leveres i fargen RAL 9010 «Hvit», med vindusfelt og ett «speil/felt».
SANITÆR
200 L varmtvannsbereder
Utekran.
ELEKTRO
Leveres iht. NEK 400
Utelamper med astrour.
PEISOVN
Peisovn i stue med glassdør i front.
VENTILASJON
Balansert ventilasjon med varmegjenvinning.
KJØKKEN
Kjøkken i fargen "korn" levers med integrerte hvitevarer ferdig montert. Benkeplate og bakvegg i fargen «varm eik». Takhøye overskap.
UTVENDIG SPORTSBOD
Hver boenhet får tildelt en fast utvendig sportsbod på 5,3 kvm. Sportsbodene leveres som kald bod med synlig bindingsverk og panel, låsbar dør og taklys. Det blir klargjort for elbil-lader i utvendig sportsbod. Elbil-lader kan leveres som tilvalg.
UTEOMRÅDET
Hage på terrassesiden tilhørende hver boenhet leveres tilsådd. Det bygges platting med impregnerte terrassebord bak boligene som er 2 meter dyp og følger lengden på huset. Skillevegg i mellom boligene. Gangstier, parkeringsplasser og biloppstillingsplassene leveres gruset/med subus. Eiendommen ligger i terreng, skrående terreng må påberegnes. Det kan enkelte steder være fjell i dagen.
FORBEHOLD
Vi tar forbehold om endringer og feil i leveransebeskrivelsen og tegninger. Foto/illustrasjoner av boligene er kun til illustrasjon og viser eksempler på farger, materialer, møblering og beplanting som ikke inngår i leveransen. Det er avsatt plass til garderobeskap, garderobeskap inngår ikke i leveransen. Ferdigstillelse av uteområder er avhengig av vær og årstid, noe som skal medføre at dette blir utført etter overtagelse for enkelte boliger.
Boliger
Bårliåsen 10 - Solgt
Bårliåsen 8 - Solgt
Bårliåsen 6 - Solgt
Bårliåsen 4 - LEDIG
Bårliåsen 2 - Solgt
Diverse
Betalingsplan:
Kr. 0,- ved kontraktsinngåelse. 100% av kontraktssum + omkostninger og evt. endringsavtaler ifm. tilvalg, forfaller til betaling 10 dager før overtakelse.
Omkostninger:
I tillegg til kjøpesummen må kjøper betale offentlige gebyrer ifm tinglysning.
Kjøpsbetingelser:
Boligene selges til fast pris etter "først til mølla"-prinsippet. Kjøpekontrakt inngås i henhold til Bustadoppføringslovas bestemmelser. Kopi av kjøpekontrakt med vedlegg kan fås ved henvendelse til prosjektselger. Kjøpesummen skal innbetales i sin helhet til meglers klientkonto før overtakelse.
Sikkerhet / garantier:
Kjøpet følger Bustadoppføringslova som bl.a. stiller krav om at utbygger skal stille bankgarantier for oppfyllelse av kontraktens forpliktelser. Garanti iht. bustadoppføringslovas §12 inneholder bestemmelser hvor selger stiller garanti på 3% av kjøpesummen fra kontraktsinngåelse og frem til overtakelse, deretter økes garantibeløpet til 5% og gjelder i 5 år etter overtakelsen. Midlertidig brukstillatelse blir utstedt før overtakelse. Vi gjør oppmerksom på at det kan ta noe tid etter innflytting før ferdigattest er utstedt.
Generelle forhold
Denne annonsen er ment som en orientering om byggeprosjektet og er ikke bindende for den detaljerte utformingen av bebyggelsen. Alle opplysninger er derfor gitt med forbehold om at utbygger kan foreta mindre endringer hvis dette skulle vise seg nødvendig eller hensiktsmessig. Illustrasjoner og plantegninger som er benyttet i prospekt/annonse kan avvike fra virkelig bygg. 1:100-tegninger, situasjonsplan og prosjektbeskrivelse går foran denne annonse der det måtte være avvik. Kopi av disse fås ved henvendelse til prosjektselger.
Det tas forbehold om skrivefeil i annonsen.
Nyttige lenker
Nærområdet

Idehus Romerike AS
Annonseinformasjon
| FINN-kode | 359592991 |
|---|---|
| Sist endret | 10. nov. 2025 08:11 |
| Referanse | 408 Bårliåsen |
Annonsene kan være mangelfulle i forhold til lovpålagt opplysningsplikt. Før bindende avtale inngås oppfordres interessenter til å innhente komplett informasjon fra meglerforetaket, selger eller utleier.













