Bildegalleri

Moderne, tidsriktige og prisgunstige leiligheter i sentrum av Brøstadbotn - heis og vannbåren gulvvarme. Kombinasjonsbygg med flotte fasiliteter.
Sommarvindstorget
Moderne, tidsriktige og prisgunstige leiligheter i sentrum av Brøstadbotn - heis og vannbåren gulvvarme. Kombinasjonsbyg
Prisantydning fra
2 850 000 kr
Prisantydning til
4 090 000 kr
Prosjektets status
Planlegging
2024
Salgsstart
2024
Byggestart
2024
Overtakelse
2024
Nøkkelinfo
- Boligtype
- Leilighet
- Soverom
- 1 - 2
- Internt bruksareal
- 64 - 96 m² (BRA-i)
- Bruksareal
- 64 - 96 m²
- Eieform
- Eier (Selveier)
Enheter i prosjektet
Sorter etter
Beskrivelse
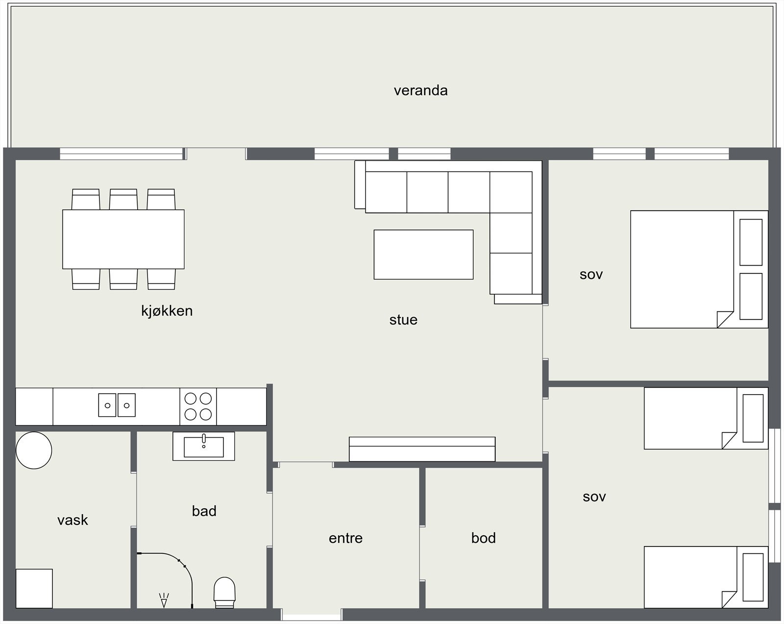
Sommarvindstorget består av både næringslokaler og leiligheter. Næringslokalene holder til i første etasje hvor en finner, blant annet, kafè og treningssenter. Leilighetene er i andre og tredje etasje. I dette prosjektet er det totalt 14 leiligheter med henholdsvis ett og to soverom, og hvor hver leilighet vil disponere egen bod i første etasje. Beliggenhet mot nord-vest vil gi fin utsikt og gode solforhold. Det vil være heis mellom alle etasjene, samt trappegang for den som måtte ønske det. Felles brannvarslingsanlegg og sprinkleranlegg i bygget, og det vil også være vannbåren gulvvarme på bad, stue, kjøkken og gang. Leilighetene vil ventileres via balansert ventilasjonsanlegg med varmegjennvinning. Dette vil samlet sett gi lave kostnader til oppvarming.
Det vil være porttelefon til alle leilighetene, med panel ute ved inngangsdør og svarapparat inne i leilighet med video. Alt- i alt innbyr leilighetene til et enkelt liv uten vedlikehold, snøbrøyting og plenklipping.
Beliggenhet
Sommarvindstorget ligger midt i Brøstadbotn sentrum med umiddelbar nærhet til fasiliteter som butikk, legekontor, sykehjem, barnehage og skole.
Beskrivelse av tomt
Alle arealer utomhus asfalteres.
Oppvarming
Alle leiligheter har vannbåren gulvvarme.
Garasje/parkering
Utvendig oppstillingsplasser for biler. Plassene vil bli merket.
Organisasjonsform
Eiendommen er etablert som et sameie, hvor det er etablert vedtekter, samt styresammensetning.
Adgang til utleie
Det vil ikke være restriksjoner i sameiet vedr. utleie.
Nærområdet
Aktiv Finnsnes
Annonseinformasjon
| FINN-kode | 358667615 |
|---|---|
| Sist endret | 16. des. 2025 06:41 |
| Referanse | 1901245002 |
Annonsene kan være mangelfulle i forhold til lovpålagt opplysningsplikt. Før bindende avtale inngås oppfordres interessenter til å innhente komplett informasjon fra meglerforetaket, selger eller utleier.

































