Bildegalleri

Det er de 2 boligene på høyre på bildet som omtales i annonsen
Harestustranda.
2 stk. kjedede eneboliger med fantastisk beliggenhet ved Harestuvannet. 3 sov., carport og terrasse på 28 kvm. Hage.
Prisantydning fra
6 500 000 kr
Prisantydning til
6 600 000 kr
Kort om prosjektet
Harestustranda er på alle måter et unikt prosjekt. Med sin vestvendte beliggenhet og umiddelbare nærhet til vannet gir dette en bokvalitet de fleste bare kan drømme om. De aller fleste vil få god utsikt mot vannet, da feltet har jevn stigning fra veien og oppover i terrenget.
Prosjektets status
Planlegging
Salget har startet
Salgsstart
Ute for salg nå
Byggestart
Planlagt vår 2025
Overtakelse
Ca. 12-15 måneder etter byggestart
Nøkkelinfo
- Boligtype
- Enebolig
- Soverom
- 3
- Antall etasjer
- 2
- Bruksareal
- 117 m²
- Eieform
- Eier (Selveier)
- Energimerking
- A
Enheter i prosjektet
Sorter etter
| Enhet | Etasje | BRA | Soverom | Totalpris | |
|---|---|---|---|---|---|
| 1 | 2 | 117 m² | 3 | 6 661 000 kr | |
| 2 | 2 | 117 m² | 3 | 6 561 000 kr |
Beskrivelse
OM BOLIGENE
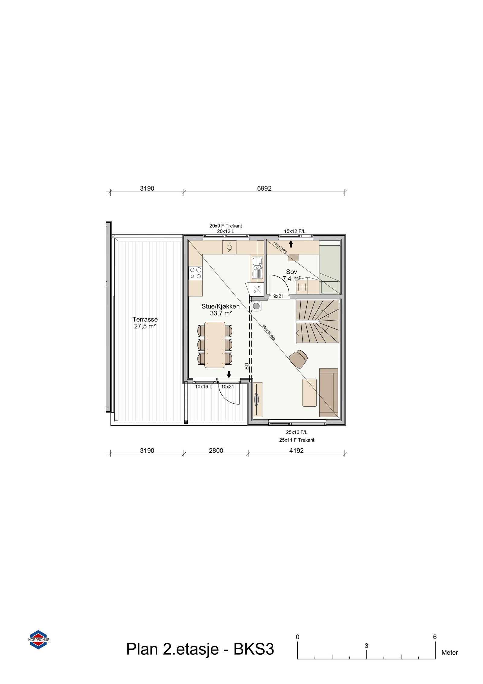
Boligene i BKS 3 er særs innholdsrike boliger med meget god planløsning og høy standard. Her får du carport med stor sportsbod på hele 7,3 kvm., entré, 2 soverom, bad/wc, separat wc og vaskerom/tek. rom i 1 etasje. I 2 etasje er det stue/kjøkken på 34 kvm., soverom og utgang til terrasse på hele 28 kvm.
Boligene vi skal bygge i felt BKS 3 bygges iht. TEK 17, får energimerking A og kvalifiserer for grønne boliglån.
Vi bygger innholdsrike boliger med gode, funksjonelle planløsninger som passer for flere aldersgrupper.
Alle boliger blir utstyrt med Flexit inneklimasentral av type EcoNordic WH4 (Se egen produktinformasjon). Flexit EcoNordic WH4 er en inneklimasentral med funksjoner som sikrer et sunt inneklima, rikelig med varmtvann og oppvarming av boligen på en svært energieffektiv måte. Inneklimasentralen har integrert balansert ventilasjon med roterende varmegjenvinner og luft/vann varmepumpe til tappevann og vannbåren varme. EcoNordic er spesielt egnet for boliger fra 120 til 220 kvm. Alle funksjoner til inneklimasentralen styres enkelt via appen Flexit GO. Modulen gir store energibesparelser pr. år.
Boligene vil i all hovedsak varmes opp med vannbåren varme i gulv fra EcoNordic-modulen. I tillegg vil du kunne gjøre tilvalg på solcelle og vedovn (eller klargjøring for montering av vedovn på ett senere tidspunkt).
Terrasser i 2. etasje leveres med glassrekkverk mot sør, så du til fulle kan nyte utsikten. Boligene i BKS 3 leveres med carport på ca. 18 kvm.
Moderne kjøkken med hvitevarer leveres av Sigdal. Kjøkkeninnredningen kan velges i 4 forskjellige farger. Flislagte baderom, store vindusflater og generøse terrasser med glassrekkverk er bare noen av kvalitetene.
Tilvalg håndteres av Nordbohus. Kjøpere har mulighet til å velge i en innholdsrik tilvalgsmeny som bl.a. omfatter solcelleanlegg, lader til bil, farger, parkett, fliser, innredninger på kjøkken og bad, vedovn, solscreens m.m.
Se egne leveransebeskrivelser for de enkelte boliger for mer detaljert informasjon.
Se link i annonsen: Vedlegg til prospekt for komplette priser, arealer m.m.
OM HARESTUA
Harestua ligger sør i Lunner kommunen og grenser til Nittedal. På Harestua bor du ca. 40 min. nord for Oslo.
Her kan du dyrke friluftslivet i maskinpreparerte langrennsspor, milevis med grusveier/sykkelstier som starter et snøballkast fra utgangsdøra eller benytte deg av de gode fisk- og jaktmulighetene. Ta del i et variert kulturtilbud og finn spennende alternativer innen arbeids og næringsliv. Harestua er omkranset av Nordmarka på vestsiden og Romeriksåsene på østsiden. Vi har antagelig Østlandets mest snøsikre område med kjente utfarter som Brovoll, Mylla og Svartbekken. Her kjører Skiforeningen og lokale løypelag kontinuerlig skispor med fantastisk standard. Sesongen strekker seg ofte ut i mai.
Fra Harestustranda er det ca. 15 min. gange til togstasjonen. Toget (Gjøvikbanen) tar deg til Oslo S på 45 min. Stasjonen har meget god parkeringskapasitet for pendlere. 30 min. med bil til Oslo lufthavn Gardermoen.
Barne- og ungdomsskole, barnehager, ny idrettshall, idrettsanlegg med løpe- og kunstgressbane, ishockeybane, lysløype og handelssentrum, ligger sentral plassert ca. 2 km. fra Harestustranda.
På Harestua er det bygd opp ett nytt sentrum på nedsiden av togstasjon med sykehjem og et stort, flott torg omkranset av leilighetsbygg med handel på bakkeplan. Her finner du dagligvare, kafé, diverse helsetilbud, blomsterhandel, optiker m.m.
Litt nærmere Harestustranda ligger det gamle senteret som og har dagligvare, apotek, gatekjøkken og frisør. Ellers i sentrum finnes tilbud som legesenter, Maxbo, bensinstasjon og veterinær.
Det er vedtatt å bygge turvei fra sentrum og ut til badeplass på Bøhrentangen. Denne skal gå langs vannet og oppstart er satt til sommer/høst 2024.
OM PROSJEKTET
Harestustranda er på alle måter et unikt prosjekt. Med sin vestvendte beliggenhet og umiddelbare nærhet til vannet gir dette en bokvalitet de fleste bare kan drømme om. De aller fleste vil få god utsikt mot vannet, da feltet har jevn stigning fra veien og oppover i terrenget. Dette er det siste området som pga. bestemmelser, vei og jernbane det vil være mulig å utvikle ved vannet.
Feltet vil bestå av kjedet eneboligbebyggelse av forskjellig størrelse. I hovedsak areal fra ca. 100 til 150 kvm, men vi planlegger og enheter helt opp i 230 kvm. I første salgstrinn vil vi legge ut boliger i feltene BKS 1,3 og 6 for salg. Vi bygger moderne boliger med gode og funksjonelle planløsninger, samt bærekraftige og energibesparende løsninger. Alle enheter vil få carport eller garasje, store terrasser/balkonger, samt egen gårdsplass og hage av forskjellig størrelse. Alle enheter får eksklusiv bruksrett til sine utearealer iht. situasjonsplan. Gode lagringsløsninger er vektlagt, fordi vi vet at Harestua tiltrekker seg aktive mennesker.
På feltet er det avsatt og etablert flere områder for lek og aktivitet, inkludert en større plass ved innkjøring til feltet. Boligene i hvert enkelt delfelt organiseres i egne sameier og det vil være pliktig medlemskap i Velforening for Harestustranda. Velforeningen skal forvalte og ivareta feltets fellesområder og velger sitt eget styre blant beboerne på Harestustranda. Videre det etablert felles avfallsanlegg med nedgravde molokker ved innkjøring til feltet. Dette for å slippe tunge kjøretøy inn på feltet, støy og 4-5 plastbeholdere pr. husstand.
VEIBESKRIVELSE
Fra Oslo:
Følg Rv. 4 retning Nittedal. Fortsett gjennom Nittedal på Rv. 4 og ta etter hvert av til høyre ved pukkverket på Stryken. Følge Gamle Hadelandsveg langs Harestuvannet som du har på venstre hånd. Etter ca. 4 km. langs vannet får du Harestustranda på høyre hånd.
Man kan og ta av ved neste avkjøring på Rv.4 etter Stryken, merket med avkjøring mot Harestua. Denne kommer ca. 5 km. etter Stryken.
Nærområdet
Sagparken Utvikling As
Annonsene kan være mangelfulle i forhold til lovpålagt opplysningsplikt. Før bindende avtale inngås oppfordres interessenter til å innhente komplett informasjon fra meglerforetaket, selger eller utleier.










