Bildegalleri

Begge boligene ligger solrikt i trafikkstille grønne omgivelser. Hus 1 til venstre. Hus 2 til høyre.
Holmenveien 30
Vinderen - 2 eneboliger under oppføring. Moderne arkitektur. Store vinduer og utsøkte materialer. Flott utsikt. Solrikt
Prisantydning fra
25 900 000 kr
Prisantydning til
26 800 000 kr
Prosjektets status
Planlegging
Det foreligger rammetillatelse
Salgsstart
Sommer 2024
Byggestart
Sommer 2024
Overtakelse
Sommer 2025
Nøkkelinfo
- Boligtype
- Enebolig
- Soverom
- 3
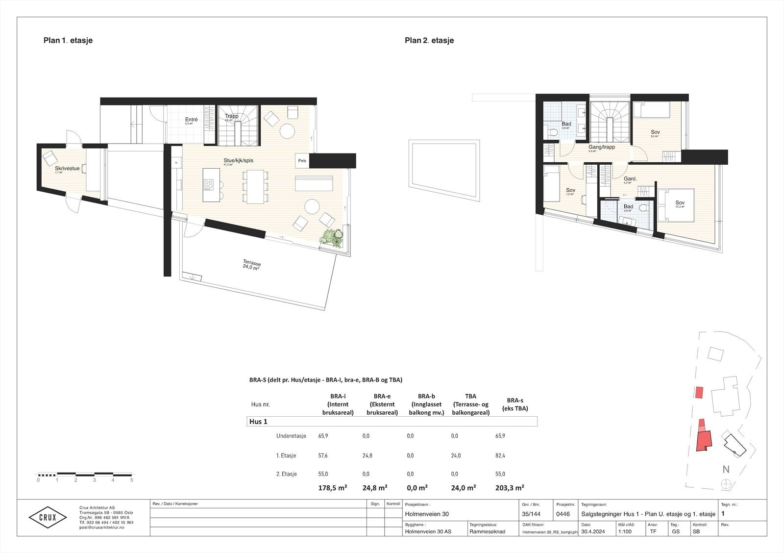
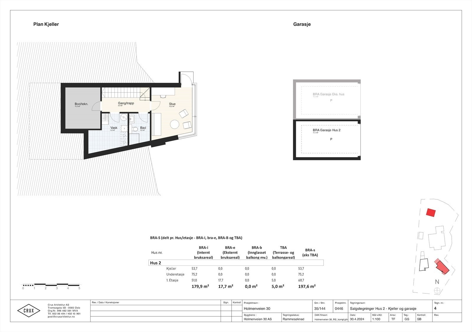
- Internt bruksareal
- 179 - 180 m² (BRA-i)
- Bruksareal
- 202 - 228 m²
- Eksternt bruksareal
- 17 - 25 m² (BRA-e)
- Innglasset balkong
- 5 - 24 m² (BRA-b)
- Eieform
- Eier (Selveier)
Fasiliteter
Enheter i prosjektet
Sorter etter
| Enhet | BRA-i | Soverom | Totalpris |
|---|---|---|---|
| Hus 1 | 179 m² | 3 | 27 001 000 kr |
| Hus 2 | 180 m² | 3 | 26 101 000 kr |
Beskrivelse
På en av Vinderens mest attraktive beliggenheter oppføres nå to designboliger. De ligger med god avstand til hverandre og den ærverdige herskapsboligen som skal bevares og istandsettes. Det unike med dette prosjektet, er at så mye av eiendommens opprinnelige kvaliteter forblir etter utbyggingen; de grønne omgivelsene, hagen og utsikten har oppnådd i stor grad å bevare fordi man har tilpasset den nye bebyggelsen til det skrånende terrenget.
Beliggenhet
Boligene ligger i villaområdet rett ved Vinderen sentrum med alt av butikker, servicetilbud og T-bane. Eiendommene har felles adkomst fra Holmenveien.
Generell orientering
Byggingen er besluttet igangsatt uten forhåndssalg. Avhengig av når man velger å inngå avtale om kjøp, vil det være store muligheter til selv å påvirke innredning. Naturligvis er det for disse husene lagt stor vekt på kvalitet og estetikk, slik at innredning har høy kvalitet i materialvalg både innvendig og i fasader og utomhus. Områder som er merket med plen leveres med matjord og ferdigplen. Inntegnet hekk leveres i barrot i 30-50 og er av typen Vinterliguster.
Boligene vil bli seksjonert iht eierseksjonsloven. Fordeling av utearealer bestemmes i sameiets vedtekter, med referanse til prosjektets utomhusplan.
Overflater og kledning
Det leveres 14mm 1-stavs hvitpigmentert eike parkett. Gulvet legges flytende med parkettunderlag. Mot tillegg kan gulvene endres til annen modell fra samme leverandør. Se romskjema for mer informasjon.
Tak og vegger levers ferdig hvitmalt. Veggene i farge 1622 Refleksjon (Flugger flutex 7S). Taket leveres med standard matt takmaling. Lister osv kommer ferdig malt fra fabrikk i farge NCS S 0502 Y og males ikke over, dog tettes spikerhull. Det gjøres oppmerksom på at det vil forekomme bevegelser i treverk som kan gi noe sprekker. Dette danner ikke grunnlag for reklamasjon. Malerarbeid utføres i estetisk klasse K2 i alle boligens rom med unntak av bod, teknisk rom og garasje. Garasje og boder i garasje leveres støvbundet/hvit mens teknisk rom og vaskerom leveres i estetisk klasse K1.
Garasje/parkering
Det blir felles adkomst og felles garasjer med egne plasser. Parkering i garasje. Det medfølger en parkeringsplass i henhold til seksjoneringsplan.
Konstruksjon
Bjelkelagene dimensjoneres forskriftsmessig og leveres i tre. Gulvplater, bjelkelag med isolasjon iht gjeldende forskrifter. Himling leveres med et lag malte gipsplater. Det kan leveres synlige dragere og bærebjelker der det er hensiktsmessig. Innvendige vegger i bindingsverk, gipsplater på begge sider og isolasjon. Baderomsvegger leveres med ett ekstra platelag og våtromsplater og membran under fliser.
Balkonger/terrasser/uteplasser
Terrasser leveres med royalimpregnerte terrassebord 28x120mm.
Oppvarming
Det leveres varmekabelanlegg på flislagte rom og varmefolie under parkett i kjøkken og stue. Det leveres Vision Line peis fra Peisselskabet.
Det leveres varmekabelanlegg på flislagte rom. Det leveres pipe i stål og peis type Curve 100. Panelovner leveres ikke.
Energimerking
Energi- og oppvarmingskarakter foreligger ikke per tid. Energiattester vil bli utarbeidet av selger i samarbeid med utførende entreprenør etter at detaljprosjekteringen er gjennomført. Etter dette vil energiattester for den enkelte bolig kunne innhentes hos megler. Energiattesten vil for øvrig utgjøre en del av informasjonen kjøper får i en håndbok ved overtagelsen (FDV-dokumentasjon).
Adgang til utleie
Eier får full råderett over egen seksjon og kan fritt leie den ut, hele eller deler av boligen, med unntak av de begrensninger som følger av eierseksjonsloven.
Lovanvendelse
Boligene selges i henhold til bustadoppføringslova, og selger plikter å stille bankgaranti på 3 % av kjøpesum i byggetiden og 5 % av kjøpesum i 5 år etter overlevering av boligen til kjøper (gjelder kun forbrukerkjøpere). Dette følger av bustadoppføringslova § 12, og slik garanti skal være stilt av selger snarest etter at selger har løftet sine forbehold. Overføring av kjøpers delinnbetaling fra megler til selger er avhengig av at selger har stilt garanti i henhold til bustadoppføringslova § 47. Godskriving av renter tilfaller selger ved § 47-garanti.
Selger plikter ikke å stille §12-garanti før det både foreligger igangsettingstillatelse og at byggelån er åpnet, men garanti skal uansett stilles overfor forbruker før fysisk oppstart av byggearbeider. Etter at det foreligger igangsettingstillatelse og byggelån er åpnet, stilles §12-garantier fortløpende ved salg til forbruker. Kostnader ved eventuelle påkrevde endringer av garantier knyttet til videresalg eller transport av kjøpekontrakt bekostes ikke av selger. Ved salg til selskap/AS forbeholder selger seg retten til å anvende Avhendingslova.
Om kjøper er juridisk person vil Avhendingslovens bestemmelser gjelde.
For øvrig gjelder eierseksjonsloven for sameiet og driften av dette.
Forbrukerinformasjon ved inngivelse av kjøpetilbud
Alle kjøpetilbud skal være skriftlige eller skriftlig bekreftet. Kravet til skriftlighet gjelder også eventuelle budforhøyelser og motbud, samt aksept eller avslag fra selger.
Kjøpetilbud på bolig og eventuell biloppstillingsplass oversendes som budskjema via e- post eller leveres til megler, eller elektronisk gjennom «gi bud» knappen på meglers annonser/prosjektets hjemmeside. Megler formidler bud videre til selger. Et bud bør inneholde eiendommens adresse, kjøpesum, budgivers kontaktinformasjon, finansieringsplan, akseptfrist og eventuelle forbehold. Skriftlig dokumentasjon på finansiering fremlegges av kjøper.
Før formidling av bud til selger skal megler innhente gyldig legitimasjon og signatur fra budgiver. Kravet til legitimasjon og signatur er oppfylt for budgivere som benytter elektronisk bud med e-signatur, eksempelvis BankID eller MinID. Bud som ikke er skriftlig, vil ikke bli formidlet til selger. Et bud er bindende for budgiver når budet er kommet til selgers kunnskap. Selger står fritt til å akseptere eller forkaste ethvert bud, og er således ikke forpliktet til å akseptere det høyeste budet på eiendommen. Normalt vil ikke kjøpetilbud med forbehold bli akseptert av selger før forbeholdet er tilstrekkelig avklart.
Da selger er profesjonell, kan eiendomsmeglerforskriften § 6-3 fravikes slik at budgiver kan sette kortere akseptfrist enn til kl. 12 første virkedag etter siste annonserte visning. Det anbefales likevel å sette en rimelig akseptfrist, slik at selger har tid til å vurdere budet og eventuelle forbehold.
Kopi av budjournalen vil bli oversendt kjøper og selger etter budaksept, jf. forskrift om eiendomsmegling § 6-4. Dersom det er viktig for budgiver å bevare sin anonymitet, bør budet fremmes gjennom fullmektig. Øvrige budgivere kan få utlevert anonymisert budjournal. For øvrig vises til «Forbrukerinformasjon om budgivning», som er tilgjengelig hos megler.
Selger vil benytte egen standard kjøpekontrakt for alle salg i prosjektet. Det forutsettes at bud er lagt inn på grunnlag av denne kjøpekontrakten og en eventuell aksept av bud fra selger gis under samme forutsetning. Selger tar forbehold om å foreta justeringer i kjøpekontrakten som følge av offentlige krav m.m.
Diverse
Det leveres peis fra peisselskabet av typen Vision Line i65 med tilhørende pipe i stål. Denne er kledd inn over tak.
IKKE MED I LEVERANSEN, dersom ikke annet er avtalt.
Utstyr og innredning som er stiplet på arkitekttegningen er ikke med i leveransen.
Takstige (stige som settes fra bakke til tak) og markiser.
Lysarmatur eller annet elektrisk utstyr med mindre det er beskrevet.
Boligvask. Bygget leveres byggrengjort dvs at kjøper må påregne finvask før boligen tas i bruk.
Vaskeromsinnredning.
Garderobeinnredning.
Sentralstøvsuger.
Nyttige lenker
Nærområdet
Sem & Johnsen
Annonseinformasjon
| FINN-kode | 355911645 |
|---|---|
| Sist endret | 06. mai 2025 20:57 |
| Referanse | 21-24-5029 |
Annonsene kan være mangelfulle i forhold til lovpålagt opplysningsplikt. Før bindende avtale inngås oppfordres interessenter til å innhente komplett informasjon fra meglerforetaket, selger eller utleier.












