Bildegalleri

Boligene vil ha dobbeltgarasje og godt med parkeringsplasser på egen tomt - Illustrasjon
Tomtefaret 5A og 5B
Eksklusive Nye Eneboliger på Tomtefaret 5 A & B | Moderne Design og Fleksible Tilvalg | Dobbeltgarasje og Hybel
Prisantydning
13 750 000 kr
Prosjektets status
Planlegging
Utført
Salgsstart
Mai / Juni 2024
Byggestart
-
Overtakelse
-
Nøkkelinfo
- Boligtype
- Enebolig
- Soverom
- 5
- Internt bruksareal
- 189 m² (BRA-i)
- Bruksareal
- 224 m²
- Eksternt bruksareal
- 35 m² (BRA-e)
- Balkong/Terrasse
- 23 m² (TBA)
- Eieform
- Eier (Selveier)
Fasiliteter
Enheter i prosjektet
Sorter etter
| Enhet | Etasje | BRA-i | Soverom | Totalpris |
|---|---|---|---|---|
| Tomtefaret 5A | - | 189 m² | 5 | 13 838 500 kr |
| Tomtefaret 5B | 2 | 189 m² | 5 | 13 838 500 kr |
Beskrivelse
Nå kan du sikre deg en av to helt ny eneboliger med svært god standard. Boligene ligger meget bra og attraktiv til i blindgate på Sogsti og ikke minst svært barnevennlig. Fra boligene er det gangavstand til barnehage, skoler samt nærhet til butikker, ungdomsskole og videregående skole.
Utearealer vil etableres med; asfaltert gårdsplass med kantstein av granitt som innrammer parkeringsplassen. Gressplen vil opparbeides på tomten.
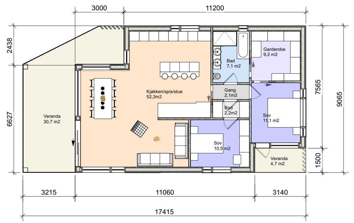
Boligene er indentiske og er på 224 kvm BRA ink garasje (36 kvm) og har meget gode og gjennomtenkte løsninger, moderne og tidsriktig materialvalg, store vindusflater i oppholdsrommet (stue/spisestue) og solrik terrasse orientert mot vest med solbane som inntreffer fra syd.
Slik plantegning vil være uten endringer/tilvalgsløsninger:
1. etasje: Entré, gang/trapperom, soverom 1, soverom 2 og vaskerom/bad. Garasje på ca 36 kvm
2. etasje: Kjøkken/spisestue/stue, bad, soverom 3, soverom 4 og garderoberom. Terrasse med tilkomst fra hovedsoverom på ca 3,9 kvm. Hovedterrasse vendt mot vest på ca 32,8 kvm
Hybel: Entré/stue/kjøkken, bad, soverom 1, soverom 2/stue
Det bemerkes at hybel kan benyttes/innlemmes som hoveddel (det er dør mellom enhetene). Utbygger har tilrettelagt for at du som kjøper av noe som p.t. ikke eksisterer kan gjøre gode tilvalgsløsninger tilpasset den enkeltes kjøper for å skape ditt eget drømmehjem.
Hvorfor kjøpe nytt?
- Ny bolig gir deg trygghet og forutsigbarhet.
- Lavere dokumentavgift ved kjøp av ny bolig.
- Muligheter for tilvalg.
- Helt nytt inventar.
- Du trenger ikke pusse opp først.
- Forutsigbar økonomi.
- En ny bolig har lave vedlikeholdskostnader.
- Kjøp av ny bolig gir god tid til planlegging i perioden frem til overtakelse.
- Boligen er i forskriftsmessig stand med garantier på arbeidene.
- Energiøkonomiske og klimavennlige løsninger.
Ferdigstillelse: ca 12 mnd etter at kontrakt er inngått med utbygger.
Det er fastpris på boligene og det er førstemann til "mølla" som gjelder.
Ikke nøl med å ta kontakt med megler for mer info om prosjektet.
Eiendomsmegler
Thomas Berget Larsen, DNB Eiendom
Tlf. 94 82 86 91
Fremdriftsplan og ferdigstillelse
Den enkelte bolig igangsettes løpende ved salg, og beregnet byggetid er anslått til 12 måneder. Selger setter derfor frist for overlevering til 15 måneder etter igangsetting av den enkelte bolig. Denne fristen vil være å regne som en siste frist iht. bustadoppføringslova.
Selger kan kreve overtagelse inntil fire måneder før den avtalte fristen til å ha boligen klar til overtagelse. Selger skal skriftlig varsle om dette minimum to måneder før det nye overtagelsestidspunktet. Det eksakte overtagelsestidspunktet skal gis med minst 14 kalenderdagers skriftlig varsel. Det beregnes dagmulkt fra det nye overtagelsestidspunktet.
Selger skal innen rimelig tid varsle forbruker dersom det oppstår forhold som vil medføre at han blir forsinket med sin utførelse.
Selger har rett til tilleggsfrist dersom vilkårene som nevnt i Bustadoppføringslova § 11 er oppfylt.
Påvirkes utførelsen av arbeid under kontrakten av krigen i Ukraina eller force majeure hendelser, som får betydning for fremdriften, må Kjøper være oppmerksom på at det vil være påregnelig at Selger vil ønske å kreve forlengelse av alle frister i kontrakten, herunder frist for ferdigstillelse av arbeidet. Dette gjelder for eksempel ved forsinket / begrenset tilgang på materialer. Dette gjelder også dersom utførelse eller leveranse fra underentreprenør eller annen leverandør påvirkes. Dersom Selger vil kreve fristforlengelse som følge av disse omstendighetene, skal Selger varsle Kjøper uten ugrunnet opphold etter at Selger ble klar over omstendigheten som begrunner kravet. I et slikt tilfelle, oppfordres partene til å søke juridisk bistand. Det er videre på Selgers egen risiko å kreve fristforlengelse eller lignende, og det er ikke gitt at et slikt krav vil stå seg. Det klare utgangspunktet er for øvrig at megler heller ikke har en plikt til å ta stilling til saken.
Ved besøk på byggeplass før overtagelse skal kunder alltid være i følge med en representant fra Selger. All annen ferdsel på byggeplassen i anleggsperioden er beheftet med høy grad av risiko og er forbudt.
Garasje/Parkering
Det medfølger en egen dobbeltgarasje med plass til to biler til hver bolig.
Lading for el-bil parkering/ladestasjon inngår ikke i leveransen fra Selger, men kan bestilles som tilvalg. Det vil kunne være begrensninger på antall ladepunkter og kapasitet som kan leveres. Strømforbruk og kostnader for lading av el-bil betales av den enkelte eier. Kostnader for bruk er ikke fastsatt på salgstidspunkt.
Generell orientering
Boligene i prosjektet selges med dobbeltboligforsikring. Forsikringen gir Kjøper en garanti mot doble bokostnader dersom det tar tid å selge nåværende primærbolig.
Det er Selger som har tegnet og betaler for forsikringen. Forsikringen er tegnet i HDI Global Specialty SE, skadebehandlingsselskapet er Claims Link. Forsikringen gjelder fra budaksept og dekker faktiske ekstra boligkostnader med inntil kr 15 000 per måned i inntil 9 måneder, dersom Kjøper ikke får solgt sin gamle bolig før overtagelse av den nye. Dette omfatter netto rentekostnader og faktiske ekstra boligkostnader ved usolgt bolig (felleskostnader, boligforsikring, oppvarming/strøm og kommunale avgifter).
Forsikringen har ingen egenandel, kun en karenstid på 3 måneder. Den er gyldig i 12 måneder etter overtagelse av ny bolig, og Kjøper må oppfylle følgende to krav for å få utbetaling gjennom forsikringen:
1. Overtatt ny bolig.
2. Forsøkt selge boligen gjennom eiendomsmegler i minst 3 måneder.
Forsikringen opphører en måned etter budaksept, og Kjøper må akseptere bud på sin usolgte bolig innenfor 90 % av markedsført prisantydning. Dersom bud innenfor denne grensen ikke aksepteres, bortfaller muligheten for erstatning. Ytterligere informasjon følger av produktark vedlagt salgsoppgaven / som fås ved henvendelse til megler.
Utleie
Boligen har en egen hybel/utleiedel i boligens første etasje. Denne utleiedelen utgjør en del av boligen, og er ikke å anse som en selvstendig boenhet.
Det er ikke kjent at det foreligger regler som er til hinder for at eiendommen leies ut. Kjøper gjøres oppmerksom på at Radonverdier må oppgis for alle boliger hvor det foregår utleie. Ved for høye verdier må det iverksettes tiltak. Se også: http://www.dsa.no/radon.
Beliggenhet
Boligene vil ligge i et sentralt, attraktivt og meget barnevennlig boligområde på Sogsti i Frogn kommune, ca. 2 km sørøst for Drøbak sentrum. Tomtefaret er en rolig blindvei. Det er kort gangavstand til skoler og barnehage. I Drøbak er det også Montessori skole.
Området har i tillegg nærhet til offentlig buss kommunikasjon og flotte rekreasjonsområder, samt et rikt utvalg av fasiliteter og servicetilbud i Drøbak sentrum og på Amfi Drøbak City. Seiersten idrettspark har ny kunstgressbane og 400 meters løpebane og Frognhallen.
Drøbak golfbane med sine 18-hull ligger på Belsjø og holder åpent fra mai til oktober. I nærheten av golfbanen finnes det også tennisanlegg. Området er et fint utgangspunkt for flotte turer innover i marka, både sommer og vinter. Milevis med turstier og skogsveier tar deg ut i både småkupert og lett terreng.
Badeparken i Drøbak er en perle. Her er det flere sandstrender, stupebrett, svaberg og en flott gresslette. Stedet strekker seg 650 meter nordover fra Drøbak havn og har sol hele dagen. Fine gangveier på kryss og tvers gjør det lett å komme seg rundt. Området har også et fint lekeanlegg for barn med husker, sklier og springvann. Det finnes også flere andre flotte strender i området.
Av severdigheter og kulturelle tilbud kan Follo museum, Julehuset og Julenissens postkontor anbefales. Drøbak har et spennende akvarium og flere interessante gallerier. Det går også rutebåt til ærverdige Oscarsborg festning. Området har god bussforbindelse til Drøbak sentrum, Ås, Ski og Oslo. I rushtiden er det avganger til Oslo hvert tiende minutt.
Lovanvendelse
Kjøpet reguleres av Lov om avtale med forbrukar om oppføring av ny bustad m.m. (bustadoppføringslova) 13. juni 1997 nr. 43, i tilfeller hvor Selger er profesjonell og Kjøper er forbruker. Dette innebærer blant annet at Kjøper har krav på garantier iht. bustadoppføringslova § 12.
I tilfeller hvor Kjøper er profesjonell iht. bustadoppføringslova, dvs. gjør kjøpet som ledd i næringsvirksomhet, kan Selger kreve at avtalen reguleres av avhendingslova eller etter bustadoppføringslova hvor §§12, 18 og 52-54 ikke kommer til anvendelse.
Tomt
Prosjektet er planlagt å bestå av 2 eneboliger, med egen tomt og dobbeltgarasje. Boligene ligger i Frogn kommune, og Tomtefaret 5A har gnr. 71 bnr. 626, med et ca. tomteareal på 666 m². Tomtefaret 5B har gnr. 71 bnr. 282, med et ca. tomteareal på 657 m².
Utomhusarealene ferdigstilles samtidig med ferdigstillelse av de enkelte bygg eller så snart årstiden tillater det.
På eiendommene vil det bli etablert diverse ledningsnett for vann, avløp, overvann, elektrisitet og eventuelt data/tv/telefon og andre ledninger. Disse ledningene som går over eiendommene, vil kunne være i sameie med andre tilliggende eiendommer. Kjøper er kjent med og aksepterer ovennevnte og at tilliggende eiendommer kan få tinglyst nødvendige rettigheter til å legge, vedlikeholde og skifte ut ledninger ved behov. Kjøper plikter å medvirke til dette dersom slike avtaler skal inngås og tinglyses etter at overskjøting har funnet sted.
Diverse
Boligen leveres ferdig grunnet og med ett toppstrøk beis. Kjøper anbefales å beise hele huset innen tre år fra overtagelse.
Selger sørger for bestilling og kostnad knyttet til tilkobling av internett/kabelTV. Bestilling og kostnad knyttet til søppelbøtter og postkasser må Kjøper/sameiet selv ordne.
Ansvarlig megler
Kate Sandø
Nyttige lenker
Nærområdet
DNB Eiendom AS
Annonseinformasjon
| FINN-kode | 354968898 |
|---|---|
| Sist endret | 15. nov. 2025 08:05 |
| Referanse | 912235010 |
Annonsene kan være mangelfulle i forhold til lovpålagt opplysningsplikt. Før bindende avtale inngås oppfordres interessenter til å innhente komplett informasjon fra meglerforetaket, selger eller utleier.









