Bildegalleri

Narudkollen
Narudkollen - Eneboliger og Tomannsboliger sentralt i Brumunddal
Narudkollen - Eneboliger og Tomannsboliger sentralt i Brumunddal
Prisantydning
Solgt
Prosjektets status
Planlegging
-
Salgsstart
-
Byggestart
-
Overtakelse
-
Nøkkelinfo
- Eieform
- Eier (Selveier)
Enheter i prosjektet
| Enhet | BRA | Soverom | Totalpris |
|---|
Visning
Beskrivelse
Oppdragsansvarlig
Innlandet Eiendomsmegling AS / Arbresh Vitija
Selger/Utbygger
Vi Utvikling AS
Betegnelse
Gnr. 31 Bnr. 10 i Ringsaker kommune
Arealer og fordeling per etasje
Arealberegningene er angitt iht de nye målereglene i Norsk Standard veileder til NS 3940. De nye arealbegrepene for bolig er:
"Internt bruksareal (BRA-i) er areal innenfor omsluttende vegger. Det er for eksempel stue, soverom, kjøkken, entre, bad, innvendig bod og rom for kommunikasjon mellom disse. Dersom boligen består av en bruksenhet med flere selvstendige boenheter, skal de selvstendige boenhetene kategoriseres som BRA-i. Et eksempel på dette kan være en enebolig med adskilt utleieenhet.
"Eksternt bruksareal (BRA-e) er for eksempel en ekstern bod, kjellerstue med egen inngang, gjesterom, tilleggsbygg eller andre rom som tilhører boenheten, men som ikke er direkte tilknyttet det interne arealet. Tilleggsbygg kan være for eksempel garasje, naust eller utvendig bod.
"Innglasset balkong (BRA-b) er innglassede balkonger, verandaer og altaner som tilhører boenheten.
"Terrasse- og balkongareal (TBA) er arealet av terrasser, altaner, verandaer og åpne balkonger som er tilknyttet boenheten.
Arealet som er oppgitt på de enkelte rom er rommets netto gulvareal. Man kan derfor ikke summere rommenes nettoarealer for få frem bruksarealet. Oppgitt areal er å betrakte som et omtrentlig areal. Kjøper og selger har ikke anledning til å rette krav mot den annen part dersom arealet viser seg å avvike med 5% eller mindre/større enn oppgitt areal i markedsmateriell.
Vedlagte plantegninger er ikke målbare.
Arealer og fordeling pr. etasje
Tomannsbolig over ett plan (Bolig 1.1 og 1.2):
BRA-i = 88 m²
BRA-e = 20,5
BRA-b = 0
TBA = 17 m²
Enebolig (Bolig 2, 3 og 4):
Etasje 1:
BRA-i = 71,5 m²
BRA-e = 0 m²
BRA-b = 0 m²
TBA = 11 m²
Etasje 2:
BRA-i = 71,5 m²
BRA-e = 24 m²
BRA-b = 0 m²
TBA = 31 m²
Tomannsbolig over to plan (Bolig 5.1 og 5.2 + 6.1 og 6.2)
Etasje U:
BRA-i = 56 m²
BRA-e = 21,5 m²
BRA-b = 0 m²
TBA = 5 m²
Etasje 1:
BRA-i = 57,58 m²
BRA-e = 0 m²
BRA-b = 0 m²
TBA = 31 m²
Beliggenhet
Velkommen til Gamle Narudveg 29 i Brumunddal
Er du på utkikk etter en moderne og stilren bolig i et rolig og attraktivt område med sentral beliggenhet i Brumunddal? Da burde du ta en titt på disse prosjekterte boligene i Gamle Narudveg!
Dette spennende prosjektet vil bestå av tre moderne eneboliger og tre vertikaldelte tomannsboliger (totalt 9 boenheter) med herlig utsikt ned mot sentrum og Mjøsa. Boligene vil få god planløsning og lyse, romslige oppholdsrom i en delikat utførelse, fordelt på henholdsvis ett og to plan. Alle med tilhørende carport.
Boligene får en flott beliggenhet med nærhet til både sentrum, skoler og barnehage. Her har du mulighet for å oppfylle drømmen om ny bolig i idylliske omgivelser på Innlandet!
Beskrivelse av nærområdet / fasiliteter
Prosjektet har en meget attraktiv beliggenhet i et veletablert boligområde, kun 1 km fra Brumunddal sentrum. Brumunddal har de siste årene hatt en stor utvikling, og fremstår i dag som spennende med et godt utvalg av butikker og servicetilbud.
I Brumunddal finner du også buss- og togforbindelser som tar deg til Gjøvik, Hamar, Lillehammer, Oslo og Trondheim.
Selve prosjekttomten innehar flotte solforhold og en nydelig utsikt over Mjøsa, sentrum og omkringliggende områder. Nærområdet er barnevennlig, rolig og har minimalt med støy. Beliggenheten gir også umiddelbar nærhet til flere flotte turmuligheter, enten du liker landlige spaserturer eller en gåtur ned til sentrum.
Det er gangavstand til flere barnehager og skoler. Nærmeste skole og barnehage er Hempa (ca. 700 meter). Videre, med 1-1,5 km i gangavstand, finner man Tømmerli barnehage og Fagerlund skole, Brumunddal ungdomsskole og Ringsaker videregående. Sveum idrettsanlegg ligger kun ca. 1 km unna. Her finner man flere kunstgressbaner, friidrettsanlegg og tennisbaner. Nærmeste nærbutikk er Spar Sveum (også ca. 1 km unna).
På varme sommerdager passer det perfekt å ta seg en tur ned til Mjøsa som ligger i underkant av 3 km unna. Her finner du et yrende fjordliv med mange bademuligheter, fiskemuligheter, lekeplass, volleyballbaner, skatepark og basketballbaner.
Beskrivelse 1 (til salgsoppgave)
Her vil du få areal effektive boliger over ett eller to plan, som del av vertikaldelte tomannsboliger. Boligene vil få god planløsning og ha lyse og moderne fargevalg. Boligene vil få store vindusflater som sikrer godt med innlys. Det vil være god standard på materialvalg og innredning, herunder en funksjonell designet kjøkkeninnredning, delikat flislagt bad og balansert ventilasjonsanlegg.
Boligene får godt med oppbevaringsplass i innvendig og utvendig bod.
Tomannsboligene er definert som Bolig 1, 5 og 6 i plantegninger, situasjonsplan og prisliste.
Beskrivelse 2 (til salgsoppgave)
Her vil du få en romslig og moderne enebolig over to plan, med inntilliggende carport. Boligene vil ha meget god standard på materialvalg og innredning.
Eneboligene er definert som Bolig 2, 3 og 4 i plantegninger, situasjonsplan og prisliste.
Bygninger
Det skal bygges én tomannsbolig på øverste del av prosjekttomten, tre eneboliger på midtre del, og to tomannsboliger på nedre del.
Byggemåte
Støpt plate på mark. Yttervegger i mur bygges med Thermomur/isoblokk. Ellers ? trekonstruksjon bindingsverk med 25cm med isolasjon og dobbel vind sperre.
Panel leveres ferdig beiset brunsvart/brun kledning 19*148 dobbelt fals. Brytning i panelet er Buer kledning.
Innvendige vegger bygges som lettvegger med isolasjon og gipsplate kledning som males med 2 strøk - i farge Som beskrevet i romskjema. Overgang mellom vegg/tak
bygges med gips uten listverk.
Som bærende konstruksjoner benyttes takstoler for flatt tak og/eller pulttak. Disse dimensjoneres og produseres etter gjeldende standarder. Taket blir tekket og isolert etter gjeldende krav
Vinduer leveres fra anerkjent leverandør i henhold til TEK 17 og er ferdigbehandlet fra fabrikk ? trevinduer i mørk farge. Ytterdør er isolert og med glatt, ferdigbehandlet overflate med vindus felt i mørkegrå utførelse. Terrasse dør: Karm og utfôring, dørblad, 3-lags superenergiglass og espagnolett lås. Dørblad, karm og utforing leveres i sort utførelse. Utvendig boddør: leveres i sort utførelse
Vegger i tørre rom: Sparklet og malt gips i fargen SPACE/
Jotun 10678. Vegger bad: Fliser 60x60 , Glade Antracite eller tilsvarende. Gulv: i tørre rom 1-stavs laminat av typen Gran Via 4V oak contura teingrå fra Haro eller tilsvarende. Gulv: på bad : Fliser 60x60 Glade Antracite eller tilsvarende. Matchende mosaikk i dusj sone. Himlinger: Sparklet og malt gips i fargen Klassisk Hvit 0500N.
Kjøkkeninnredning leveres med takhøye overskap og med matte overflater, benkeplate i laminat og integrerte hvitevarer.
Leveranser i prosjektet utføres i henhold til teknisk forskrift - TEK'17 (med gjeldende revisjoner på det tidspunktet byggetillatelsen blir gitt).
Der ikke annet fremgår av kontrakt, beskrivelser eller tegninger, gjelder Norsk Standard NS 3420 normalkrav til toleranser for ferdige overflater i bygninger.
Se leveransebeskrivelsen som ligger vedlagt i salgsoppgaven for ytterligere informasjon/detaljer om byggemåte, leveranser og utstyr.
Innhold
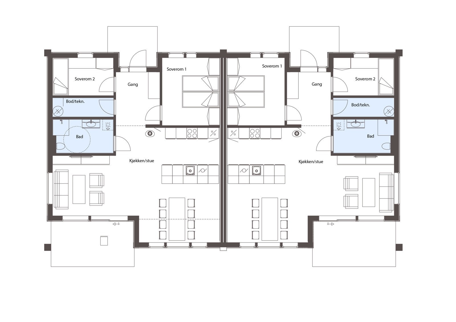
Innhold tomannsboliger:
To av tomannsboligene vil gå over to plan med tv-stue, stort bad og soverom nede - kjøkken, stue etc. oppe - utgang til terrasse med nydelig utsikt. Den siste tomannsboligen vil få alt på ett plan og med god planløsning - romslig stue/kjøkkenløsning, stor terrasse etc. Store vinduer.
Tomannsboliger over to plan:
- U. etasje: Entré/gang/trappegang, 2 soverom, bad og bod/vaskerom.
- 1. etasje: Stue og kjøkken i åpen løsning og soverom.
Tomannsbolig over ett plan:
- 1. etasje: Entré/gang, stue og kjøkken i åpen løsning, 2 soverom, bad og bod/teknisk rom.
Innhold eneboliger
Hver av boligene vil gå over to etasjer:
- 1. etasje: Entré, stue og kjøkken i åpen løsning, bad og utvendig bod.
- 2. etasje: Gang/tv-stue/trapp, 3 soverom, bad og bod/vaskerom.
Oppvarming
Varmekabler på bad, vaskerom. Varmefolie kan bestilles som tilvalg i øvrige rom
Parkering / Garasje
Alle boligene vil få tilhørende carport og biloppstillingsplass (delvis på fellesområder).
Tomannsboligene vil få én innvendig bod (i kombinasjon med vaskerom eller teknisk rom) og én utvendig bod i eget bygg. Eneboligene vil få én innvendig bod (i kombinasjon med vaskerom) og én bod med adkomst fra utvendig side.
Adkomst
Adkomst Fra Brumunddal sentrum:, følg Berger Langmoens veg i ca. 700 meter og ta så til høyre inn på Narudvegen. Ta så første avkjøring på venstre side inn på Gamle Narudveg og følg denne ca. 350 meter.
Beskrivelse av tomt
Prosjekt tomten vil utgjøre i underkant av 3.000 m² og skal bebygges med prosjektets boenheter, carporter og boder.
Øvrige arealer opparbeides med adkomst-/internveier, parkeringsplasser og grøntarealer.
Veier og parkeringsarealer opparbeides med gruset dekke. Asfaltert på biloppstillingsplasser og i carporter.
Det vil bli lagt ferdigplen på grøntområder, men selger har ingen ansvar for hvordan plenen vokser til.
Tomten disponeres av eierne iht. seksjonsbegjæring og sameievedtekter og/eller eventuelle fremtidige fastsatte ordensregler. Utvendige arealer blir å anse som fellesareal. Det tas forbehold om endelig eierform og organisering av prosjekttomten.
Utvendige arealer vil kunne bli ferdigstilt (og overtakelsesforretning på disse arealene avholdt), etter overtakelse av boligene. Dette gjelder spesielt dersom overlevering finner sted på høst, vinter eller tidlig vår. I så tilfelle vil disse arealene bli ferdigstilt så snart som mulig etter overlevering og når arbeidet praktisk kan utføres av hensyn til årstid.
Når sameiet er etablert og overtakelse av fellesarealer skal foretas, vil selger innkalle kjøperne (eventuelt) styret til overtakelsesforretning for sameiets fellesarealer.
Tinglyste rettigheter og forpliktelser
Kommunen har legalpant som sikkerhet for betaling av kommunale avgifter. Legalpant er pant som følger av loven, og som ikke tinglyses. Legalpant følger derfor eiendommen ved salg.
På eiendommen kan det være tinglyst erklæringer som f eks rett for kommunen til å vedlikeholde rørsystemer for vann- og kloakk. Disse erklæringene vil følge eiendommen ved salg. Kontakt megler for nærmere informasjon.
Øvrige sameiere har panterett i seksjonen for krav mot sameieren som følge av sameieforholdet, jf. eierseksjonsloven § 31. Pantekravet kan ikke overstige 2G (Folketrygdens grunnbeløp).
Sameiet kan vedtektsfeste ytterligere panterett for sameiet. Vedtektsfestet pant tinglyses i seksjonene.
Servitutter / rettigheter
Eiendommen overdras fri for pengeheftelser, med unntak av eventuelle erklæringer, avtaler, servitutter og panteheftelser som fremgår av salgsoppgaven og skal følge med eiendommen ved salg. Kjøpers bank vil få prioritet etter disse.
Vei / Vann / Avløp
Eiendommen er tilknyttet offentlig vann- og avløpsnett via private stikk- og fellesledninger. Det gjøres oppmerksom på at private ledninger vedlikeholdes for eiers regning.
Ferdigattest eller midl. brukstillatelse
Ved overtakelse skal boligene i utgangspunktet ha ferdigattest. Det er ulovlig å ta boligene i bruk uten ferdigattest eller midlertidig brukstillatelse.
Kjøper har heller ingen plikt til å overta eller innbetale oppgjør uten at ferdigattest eller midlertidig brukstillatelse foreligger.
Midlertidig brukstillatelse kan godtas i de tilfeller hvor utstedelse av ferdigattest betinger ferdigstillelse av andre enheter i prosjektet, ferdigstillelse av uteområder og/eller mindre arbeider som ikke er til hinder for at boligen kan tas i bruk. Manglene skal da rettes av selger innen en frist som settes av kommunen. Dersom gjenstående arbeider ikke blir utført innen fristen, kan kommunen gi selger pålegg om ferdigstillelse, eventuelt tvangsmulkt og/eller forelegg.
Dersom overtakelse skjer ved midlertidig brukstillatelse, gjøres det oppmerksom på at kjøper overtar risiko for at ferdigattest vil bli stilt. Kjøper oppfordres til å sette seg inn i hva som gjenstår for at ferdigattest skal bli stilt. Kjøper kan kreve tilbakehold av forholdsmessig del av kjøpesum på meglerforetakets klientkonto, som sikkerhet for utstedelse av ferdigattest. Renter på slike tilbakeholdte beløp tilfaller den som til slutt får beløpet utbetalt.
Verdi ved skattefastsetting
Verdien ved skattefastsetting er p.t. ikke fastsatt. Verdien ved skattefastsetting fastsettes av Ligningskontoret etter beregningsmodell som tar hensyn til om boligen er en såkalt "primærbolig" (der boligeieren er folkeregistrert bosatt) eller "sekundærbolig" (alle boliger man eier, men ikke bor fast i). Interessenter oppfordres til å sjekke www.skatteetaten.no eller kontakte ansvarlig megler for nærmere informasjon om verdien ved skattefastsetting.
Reguleringsforhold
Eiendommen omfattes av Kommuneplanes arealdel 2022-2026 vedtatt 21.12.2022, reguleringsplan "Knippa" vedtatt 08.04.1987, reguleringsplan "Tømmerli" datert 13.03.1985 og kommuneplanens arealdel 2024-2040.
Kopi av planverket kan fås ved henvendelse til megler eller innhent direkte fra Ringsaker kommunes hjemmeside.
Beskrivelse av sameiet
Det er foreløpig ikke lagt opp til at det skal innbetales felleskostnader. Slik prosjektet er lagt opp, vil hver enkelt bolig dekke sine kostnader til drift og vedlikehold av fellesarealene.
Det kan likevel besluttes at det skal innbetales beløp til å dekke drift og vedlikehold av internveier og øvrige fellesområder samt eventuelle andre tjenester/leveranser som sameiet ønsker utført i felles regi. Slike felleskostnader er antatt å ligge mellom kr. 800,- og kr. 1.000,- pr. mnd./seksjon. Inngåelse av kollektivavtale vil også medføre faste forpliktelser som må dekkes av sameiet.
Boligene vil bli seksjonert og organisert som et eierseksjonssameie. Hver bolig vil få en ideell andel av tomtearealet lik 1/9-del. Det er utarbeidet utkast til vedtekter (vedlagt salgsoppgaven) og selger vi sørge for registrering av sameiet i henhold til eierseksjonslovens bestemmelser. Interessenter oppfordres til å sette seg inn i sameiets vedtekter, husordensregler, m.m. Se særlig om vedtekter og husordensregler knyttet til husdyrhold, dugnader, trappevask o.l.
Dersom hensynet til rasjonell utnyttelse og forvaltning, eller at offentlig myndighet krever det, tar selger forbehold om endelig løsning rundt organisering av prosjektets boliger og tomteareal, herunder også eierform.
Sameiermøtet vil kunne fastsette vanlige ordensregler for sameiet. Det foreligger per dags dato ingen bestemmelser om dyrehold.
En sameier eier en andel i eiendommen, med tilknyttet enerett til bruk av sin bruksenhet, jf. eierseksjonsloven § 25.Ingen kan erverve mer enn to boligseksjoner i et sameie, jf. eierseksjonsloven § 23 første ledd.
Dersom et erverv har funnet sted i strid med eierseksjonslovens regler kan Kartverket nekte overskjøting. Dersom overskjøting blir nektet, er kjøper likevel forpliktet til å gjennomføre handelen med selger, og oppgjør til selger vil finne sted tross manglende overskjøting.
Andre faste løpende kostnader
Fremtidige felleskostnader er antatt fra kr. 800,- til kr. 1.000,- /mnd. pr. bolig avhengig av hva sameiet selv beslutter om omfanget av fellestjenester. Fellesutgifter bør inkludere drifts- og vedlikeholdsutgifter av fellesarealer slik som snøbrøyting, plen og beplantninger, etc.
Slik prosjektet er lagt opp, vil hver enkelt bolig dekke sine kostnader til drift og vedlikehold av fellesarealene.
Det kan likevel besluttes at det skal innbetales beløp til å dekke drift og vedlikehold av internveier og øvrige fellesområder samt eventuelle andre tjenester/leveranser som sameiet ønsker utført i felles regi. Inngåelse av kollektivavtale vil også medføre faste forpliktelser som må dekkes av sameiet.
Andre faste utgifter som belastes hver enkelt seksjonseier vil være strøm, kommunale avgifter, eiendomsskatt, forsikringer samt øvrige kostnader som for eksempel internett, alarm, kabel-TV, mm..
Kommunal avgifter i Ringsaker kommune:
Forbruk vann og avløp beregnes/avregnes etter avlest vannmåler. Størrelse på renovasjonsavgift avhenger av størrelse på dunk(er).
Feie- og tilsynsgebyr avhenger av hvor mange pipeløp som må feies/inspiseres. Det gjøres oppmerksom på at avgiftene normalt justeres/reguleres årlig.
Kommunale avgifter faktureres direkte til hver enkelt seksjonseier. For 2023 gjelder følgende satser for kommunale avgifter (inkl. mva.):
" Abonnementsgebyr vann og avløp: Kr 8.523,-.
" Forbruk vann: Kr 30,18,- per kubikk.
" Forbruk kloakk: Kr 34,75,- per kubikk.
" Renovasjon: Kr 5.318,- (middels beholder - 140 liter).
" Feie- og tilsynsgebyr: Kr 555,- (feiing 1 pipeløp hvert 2. år).
Det foreligger ingen beregning av eiendomsskatt på dette tidspunktet. Eiendomsskatten vil utgjøre 4,9 promille av boligenes skattegrunnlag, hvor grunnlaget fastsettes ved enkel taksering.
Det gjøres oppmerksom på at det kan komme endringer i regelverket knyttet til eiendomsskatt. Beregning av eiendomsskatt vil kunne avhenge av om leilighetens er primær eller sekundær bolig.
De antatte felleskostnadene er basert på opplysninger gitt av selger og foreløpig kunnskap om prosjektet. Budsjettet er et forslag til driftsbudsjett for normaldrift av sameiet i ett år, basert på stipulerte inntekter og kostnader.
Det tas forbehold om oppgitte arealer, antall seksjoner, organisering av fellesområder og andre forhold rundt prosjektet som kan endre forutsetningene for budsjettforslaget.
Det tas også forbehold om stipulerte inntekter og kostnader da styret vil kunne endre budsjettet og inngå avtaler som vil tilføre sameiet andre eller større kostnader. Endelig fastsettelse av budsjett og nivå på felleskostnader vil bli foretatt av sameiets styre og/eller årsmøtet.
Videre gjøres det oppmerksom på at felleskostnader kan variere over tid som følge av beslutninger foretatt i sameiets styre og/eller årsmøtet.
Andel fellesgjeld / formue
Ingen fellsgjeld og/eller ingen fellesformue i sameiet. Sameiet vil bli registert i forbindelse med overlevering av boligene.
Oppgjør
Hele kjøpesummen sammen med omkostninger og eventuelle tilvalg skal innbetales til overtakelse, forutsatt at selger har stilt lovpålagt garanti etter bustadoppføringslova § 12. Samtlige beløp skal innbetales til meglerforetakets klientkonto. Innbetalinger skal komme fra norsk finansinstitusjon og/eller fra kjøpers egen konto i norsk finansinstitusjon.
I det tilfelle selger og kjøper har gjort avtale om endrings- og tilleggsarbeider (tilvalg), vil det være selgers ansvar å sende til meglerforetaket en bekreftet liste som inneholder tilvalg og avtalt sum for dette. Tilvalg må være innbetalt til overtakelse.
Det gjøres oppmerksom på at selger, mot sikkerhet etter bustadoppføringslova § 47, kan kreve at kjøper betaler forskudd for tilvalg.
Alternativt kan selger kreve at kjøper stiller sikkerhet for selgers krav på tilleggsvederlag. Videre gjøres det oppmerksom på at alle innbetalinger skal skje til meglerforetakets klientkonto, og ikke direkte til selger.
Dersom avtale om tilvalg inngås direkte med selgers underleverandører, anbefaler meglerforetaket at betaling for disse tilvalgene finner sted etter at overtakelse har funnet sted.
Dersom kjøper velger å betale for slike tilvalg tidligere, gjør meglerforetaket oppmerksom på at slik betaling vil kunne være usikret ved en eventuell konkurs.
De som ønsker å kjøpe bolig i dette prosjektet må, før innlevering av budskjema, ha hatt kontakt med en finansieringsinstitusjon som kan bekrefte finansiering på innleveringstidspunktet.
Finansiering
Kontakt megler for avklaring av finansielle forhold, herunder lån til kjøp av eiendom.
Privatmegleren har avtale med Nordea om formidling av lån og andre finansielle tjenester. Privatmegleren mottar godtgjørelse for dette.
Sikkerhetsstillelse
Alle eiendomsmeglingsforetak har lovpålagt forsikring av klientmidler begrenset oppad til kr 45 mill. Enkeltsaker er forsikret inntil kr 15 mill. Dersom kjøpers låneinstitusjon krever tilleggsforsikring ved omsetning over 15 millioner, må kjøper selv eller dennes låneinstitusjon dekke utgiftene forbundet med dette.
Planlagt overtagelse
Eiendommen overtas av kjøper med alle rettigheter og forpliktelser slik den har tilhørt selger, forutsatt at kjøper har oppfylt sine forpliktelser. Overtagelser er antatt å være ca. 10 -12 mnd. etter at selgers forbehold er løftet. Dette basert på byggestart ca. 4 uker etter at forbeholdene er løftet. En senere oppstart vil kunne medføre en senere overtakelsesdato. Det gjøres uttrykkelig oppmerksom på at tidsanslaget ovenfor ikke er å anse som en avtalt frist for overtakelse i henhold til buofl. § 10.
Selger innkaller kjøper til overtagelsesforretning med minst syv dagers varsel, jf. buofl. § 15. Selger er ansvarlig for at det skrives overtagelsesprotokoll fra overtagelsesforretningen.
Selgers forbehold
Selger tar følgende forbehold for gjennomføring av inngåtte kjøpekontrakter:
1. Det tas forbehold om endelig offentlig godkjenning av prosjektet, slik dette søkes, herunder også at igangsettingstillatelse blir gitt.
2. Det tas forbehold om at det innvilges tilfredsstillende byggelånsfinansiering, herunder åpning av byggelån.
3. Det tas forbehold om tilstrekkelig antall forhåndssalg av boliger i prosjektet før igangsetting. Tilstrekkelig antall er definert som 2 salg fordelt slik:
a. To salg nedre innkjøring
b. To salg øvre innkjøring uavhengig av type
Kontakt megler for nærmere informasjon
Samtlige av selgers forbehold må være løftet/bortfalt senest i løpet av 1. kvartal 2025. En eventuell forlengelse av denne fristen skal i alle tilfelle avtales skriftlig med kjøper.
Selger skal uten ugrunnet opphold varsle kjøper skriftlig når grunnlaget for forbeholdene er bortfalt.
Selger står fritt til på et hvilket som helst tidspunkt å velge og løfte forbeholdene selv om grunnlaget for forbeholdene ikke er bortfalt. Videre står selger fritt til på et hvilket som helst tidspunkt å velge og gjøre forbeholdene gjeldene.
Dersom selger gjør forbeholdene gjeldende eller dersom forbeholdene ikke er løftet/bortfalt innen fristen i avsnittet over, bortfaller kjøpekontrakten som er inngått mellom partene.
Solgt ihht bustadoppføringsloven
Boligene selges i henhold til Bustadoppføringslova som regulerer kjøpers (forbrukers) rettigheter og plikter ved avtale om oppføring av bolig og kjøp av fast eiendom der bygningen ikke er fullført når avtalen inngås.
Ved salg til aksjeselskap legges Avhendingslovens bestemmelser til grunn. For øvrig gjelder Lov om eierseksjoner for eierseksjonssameiet og driften av dette.
Garantier
Det stilles garantier i henhold til Bustadoppføringslovas bestemmelser. Garanti etter § 12 vil bli stilt i forbindelse med avtaleinngåelse. Garantien skal være pålydende 3% av kjøpesummen i byggetiden og 5% i 5 år etter overlevering av boligene til kjøper. Garanti etter § 47 forutsettes stilt om selger ønsker utbetalt forskudd/delinnbetaling/sluttoppgjør før hjemmelsovergang. Eventuelle påkrevde endringer av garantier ved eventuelle videresalg/transporter utføres ikke og bekostes ikke av selger.
Forsikring
Frem til overtagelse vil eiendommen være forsikret av selger. Etter overtagelse vil eiendommen forsikres gjennom sameiets fellesforsikring. Kjøper må selv besørge innboforsikring og forsikring av eventuelle særskilte påkostninger.
Budgiving
Boligene selges til fastpris.Boligene selges etter prinsippet "førstemann til mølla" og til den pris som er fastsatt. De som ønsker å kjøpe bolig i dette prosjektet, fyller ut og leverer budskjema til meglerforetaket.
Alle bud/kjøpetilbud på eiendommen skal være skriftlig og sendes meglerforetaket pr. fax, mail, sms eller via vår "gi bud"-knapp på våre nettsider. Knappen finner du også på Privatmeglerens hjemmeside for prosjektet, se på den enkelte bolig.
Bud/kjøpetilbud må ikke ha kortere akseptfrist enn til kl. 12.00 første virkedag etter siste annonserte visning. Lørdag regnes ikke som virkedag. Bud/kjøpetilbud med kortere frist enn dette kan ikke formidles av megler. Nærmere info om budgiving finner du på egen side sammen med kjøpetilbud/budskjema.
Som budgiver hos Privatmegleren kan du kreve budjournal fremlagt så snart handel er gjennomført.
Innhold i budjournal er lovregulert, og innebærer at budgivere må akseptere at opplysninger om budet kan bli fremlagt for selger, kjøper og øvrige budgivere. Budgiver som ikke blir kjøper, kan kreve kopi av anonymisert budjournal.
Lov om hvitvasking
Megler er underlagt lov om hvitvasking som innebærer plikt til å melde ifra til Økokrim om mistenkelige transaksjoner
Meglers vederlag og utlegg
Megleres honorar er avtalt til kr. 37.500,- pr. seksjon, tilrettelegging kr. 2.500,- pr. seksjon, visninger kr. 2.375,- pr. vising/overtagelse, oppgjørshonorar kr. 7.875,-
Dersom eiendommen ikke omsettes tilkommer intet honorar, avtalte utlegg og ev. avtalte tillegg skal dog betales.
Nyttige lenker
Nærområdet
PrivatMegleren Hamar
Annonseinformasjon
| FINN-kode | 351275524 |
|---|---|
| Sist endret | 05. sep. 2024 13:07 |
| Referanse | 320239001 |
Annonsene kan være mangelfulle i forhold til lovpålagt opplysningsplikt. Før bindende avtale inngås oppfordres interessenter til å innhente komplett informasjon fra meglerforetaket, selger eller utleier.


























