Bildegalleri

1 Ledig! Naustvegen
Stor innholdsrik tomannsbolig. Høy standard. Sjelden god beliggenhet, og utsikt. Garasjer.
Prisantydning
7 790 000 kr
Kort om prosjektet
Hessa. Tomannsbolig med dobbelgarasjer. Fremste og beste beliggenhet mot sjøen. Planløsning med kjøkken/stue nede med utgang til terrassen. Soverom oppe og egen tv-stue areal.
Prosjektets status
Planlegging
Ferdig
Salgsstart
Vår/sommer 2024
Byggestart
Høst 2024
Overtakelse
12 mnd etter oppstart graving
Nøkkelinfo
- Boligtype
- Tomannsbolig
- Soverom
- 4
- Antall etasjer
- 2
- Bruksareal
- 147 m²
- Eieform
- Eier (Selveier)
- Energimerking
- B
Fasiliteter
Enhet i prosjektet
| Enhet | BRA | Soverom | Totalpris |
|---|---|---|---|
| Seksjon 1 | 147 m² | 4 | 7 831 195 kr |
Visning
Ta kontakt for å avtale visning.Beskrivelse
Store vindu og stor skyvedør med utgang til terrassen oppå garasjene, fra stue/kjøkken.
Stor tomannsbolig med fantastisk beliggenhet. Hver boligseksjon har 4 soverom og tv-stue.
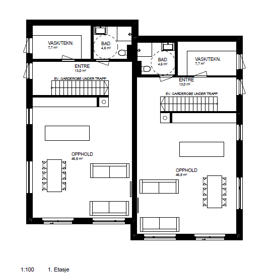
1.etg: Stue, kjøkken, 1 bad, eget vaskerom/bod, gang/trapp.
2.etg: 4 soverom, 1 bad, tv-stue
Loft: lagringsloft og hems
Boligen vil holde normalt høy standard.
Inne:
- Bad med 60x60 fliser og mosaikk i dusj. Vegghengt toalett, innredning med speil og lys, og dusj med rette dører.
- Kjøkken fra HTH
- 1-Stavs Laminat
- Varmekabler i alle gulv 1.etg.
- Overflatebehandlet hvite lister og foringer
- Gipsvegger og tak malt
- Kompakte innerdører med dempekarm
- Peis
Ute:
- Kledning med mellomstrøk
- Høyglans takpanner, pipe
- Vedlikeholdsfire vindu med alukledning
- Dobbelgarasje med bred port, portåpner. Dør og plass til oppbevaring.
- Stor terrasse oppå garasjer.
Det er mulig å sette sitt eget preg på boligen om man kommer tidlig inn i prosessen.
Ta kontakt for nærmere informasjon om innhold, løsninger, leveransebeskrivelse og andre forhold rundt salget.
NB: Sjekk Spam mailen hvis dere ikke har fått tilbakemelding fra oss på henvendelser!
Nærområdet
PICEA BOLIG AS
Annonsene kan være mangelfulle i forhold til lovpålagt opplysningsplikt. Før bindende avtale inngås oppfordres interessenter til å innhente komplett informasjon fra meglerforetaket, selger eller utleier.









