Bildegalleri

PrivatMegleren har gleden av å presentere et flott prosjekt i Brynsveien 146. Illustrasjonsbilde og avvik kan forekomme.
Brynsveien 146, snr. 1 - 3
Kolsås/Bryn - 3 prosjekterte eneboliger på idyllisk og solrikt tun - Moderne arkitektur og innholdsrik planløsninger
Prisantydning fra
11 600 000 kr
Prisantydning til
11 900 000 kr
Prosjektets status
Planlegging
-
Salgsstart
-
Byggestart
-
Overtakelse
-
Nøkkelinfo
- Boligtype
- Enebolig
- Soverom
- 4
- Primærrom
- 180 m²
- Bruksareal
- 183 m²
- Eieform
- Eier (Selveier)
Fasiliteter
Enheter i prosjektet
Sorter etter
| Enhet | P-rom | Soverom | Totalpris |
|---|---|---|---|
| Snr 1 | 180 m² | 4 | 11 963 590 kr |
| Snr 2 | 180 m² | 4 | 11 663 590 kr |
Visning
Beskrivelse
Oppdragsansvarlig
PrivatMegleren Bærum AS / Morten Thøgersen
Selger/Utbygger
THORVALDSEN EIENDOMSUTVIKLING AS
Betegnelse
Gnr. 93 Bnr. 24 i Bærum kommune
Byggeår
2024
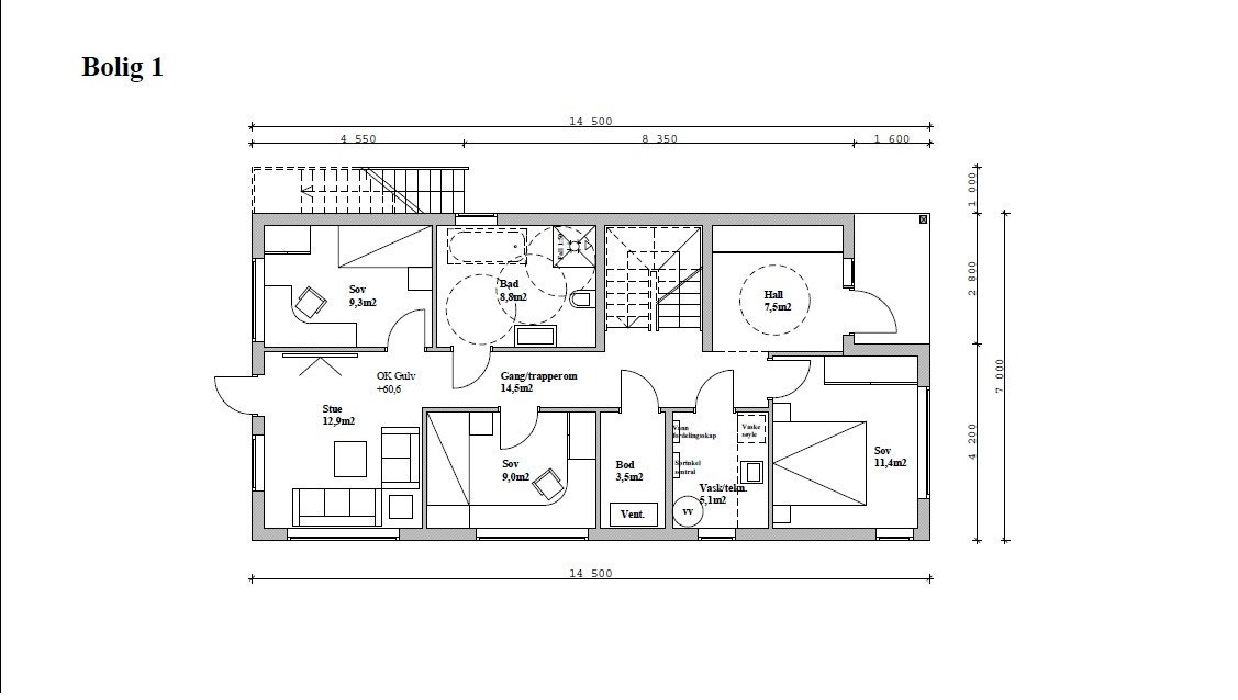
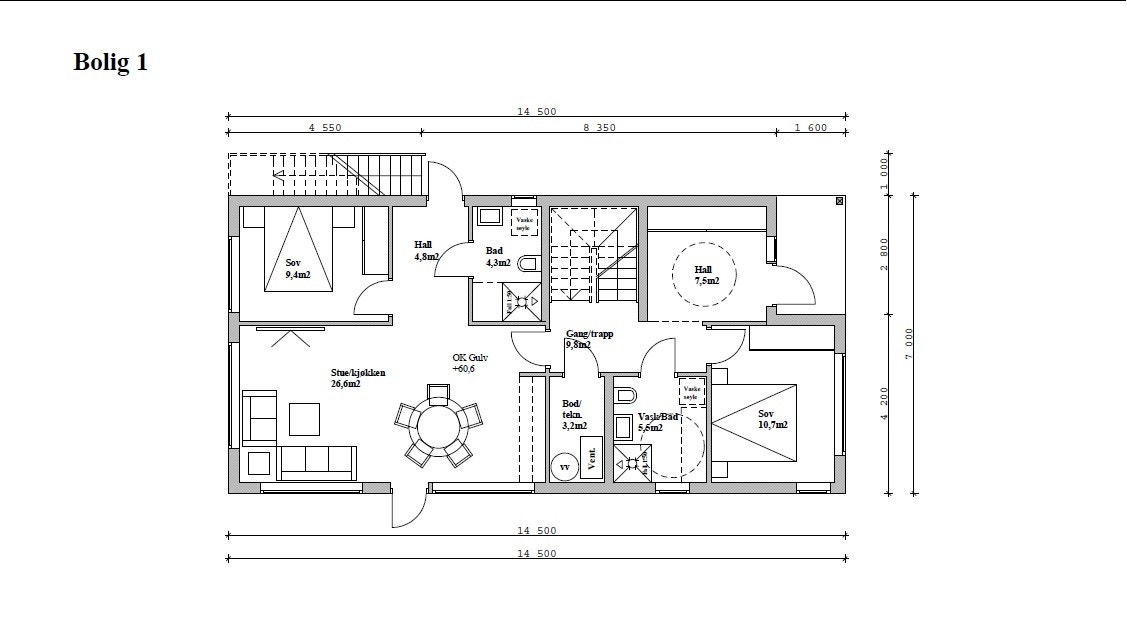
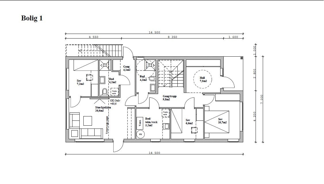
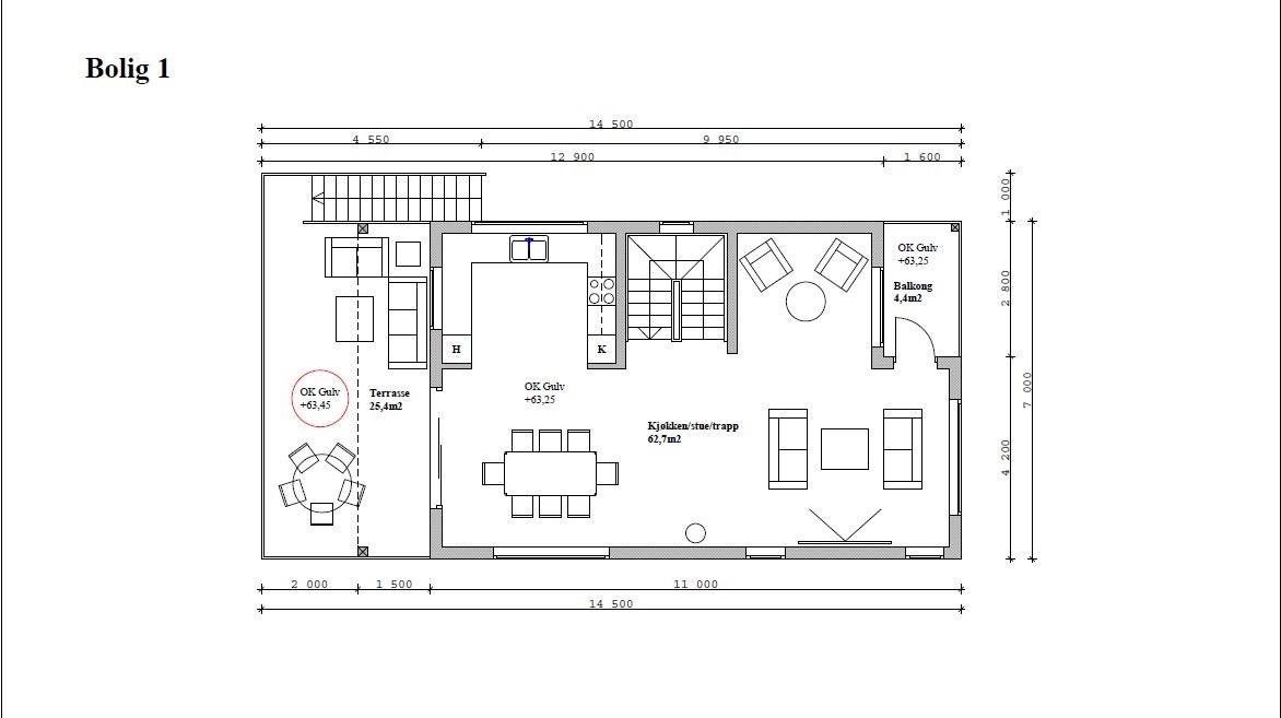
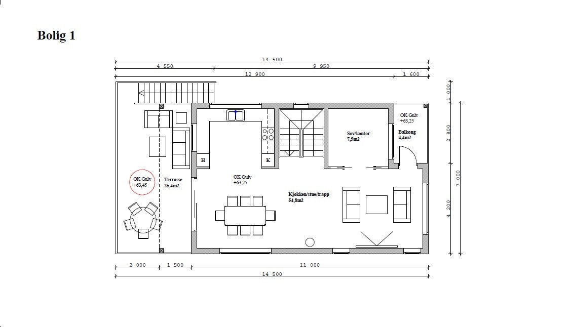
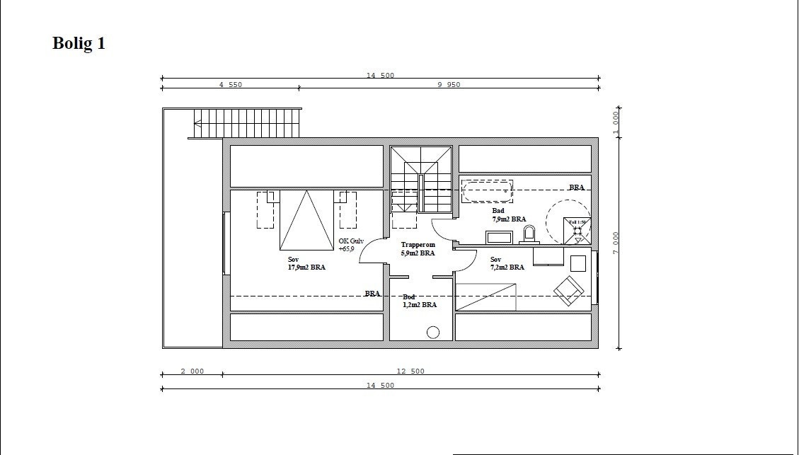
Arealer og fordeling pr. etasje
Bruksareal: 183,60 kvm
1.etasje: BRA-i 82 kvm.
2.etasje: BRA-i 62,7 kvm.
Loft: BRA-i 38,9 kvm. Gulvarealet i rommet er større, men ikke målbart pga. lav takhøyde.
Areal på terrassen i 2. etasje 25,4m2 og balkong 4,4m2.
Beliggenhet
Eiendommene ligger meget sentralt mellom Kolsås stasjon og Bryn kirke. De ligger tilbaketrukket fra vei i grønne omgivelser på en liten kolle. Eiendommene er utskilt fra et eldre småbruk i klassisk stil. Dette danner et hyggelig tun med disse 3 prosjekterte boligene. Det opprinnelige hovedhuset er nylig renovert.
Det er kort vei til Kolsås senter med diverse foreninger samt alle type skoler og flere barnehager i nærområdet. Boligene sogner til Bryn/Hammerbakken barneskole og Eineåsen ungdomsskole.
Det er gode kommunikasjonsforhold med få min. gange til Kolsås stasjon med T-bane til Oslo. Videre er det god bussforbindelse både til Sandvika og Oslo.
Det er lett adkomst til marka med fine turmuligheter hele året. Området er kjent for et aktivt idrettsmiljø med mange idrettsanlegg, Hauger idrettspark med svømmehall m.m.
Kirkerud alpinsenter i nærområdet.
Beskrivelse 1 (til salgsoppgave)
3 prosjekterte eneboliger på seksjonert tun med et eldre småbruk. Eneboligene er helt like og blir bygget i moderne stil med svært innholdsrik planløsning. Hvert hus får egen gruset gårdsplass og relativ flat hage. Hagen blir levert i stedige masser og kjøper må legge plen eller så plen selv. Stor solrik terrasse ut fra 2. etasje med utvendig trapp ned til hagen. Det er mulighet for å gjøre endringer etter egne preferanser og ønsker på innvendige materialvalg og løsninger. Dette blir en del av tilvalgs-prosessen og utbygger gir pristilbud på ekstraarbeider og tilvalg.
Bygninger
3 prosjekterte eneboliger.
Det foreligger rammetillatelse fra Bærum kommune og igangsettelsestillatelse på grunnarbeidene. Det vil bli søkt om IG ved besluttet byggestart.
Byggemåte
Grunnmur i betong. Gulvplater, bjelkelag med 150 mm isolasjon. Takrenner, rennekroker, bordbeslag, nedløpsrør og holdere for nedløpsrør i stål. Tak blir tekket med takstein og fasade i beiset treverk.
Innhold
De 3 boligene er like og inneholder:
1.etasje: Hall, gang, trapperom, 3 soverom bod, teknisk rom, bad og TV-stue.
2.etasje: Kjøkken, spisestue og stue i åpen løsning. Balkong ut fra stuen på 4,2 kvm og stor terrasse på 27,5 kvm med trapp til hagen.
Loft: Soverom, trapperom, bad og garderoberom.
Standard
Boligene blir levert med god norsk standard og solide materialvalg. I oppholdsrom og soverom blir det levert gips på vegger og tak, samt lekker lys 1-etavs eikeparkett på gulvene. Det er mulig å velge 2 ulike farger boligen skal bli malt i. Slik kan du lage din egen drømmebolig med dine favorittfarger.
Hall:
Romslig og praktisk hall med god plass til ytterklær. Rommet har fliser av typen Pro Marte 60x60 på gulvene og varmekabler. Garderobeskap leveres ikke. Dette kan leveres som tilvalg fra utbygger eller ordnes av kjøper selv etter overtagelse. Hovedinngangsdør får malt karm og malt dørblad. Det leveres komplett anlegg som består av ringeklokke med innebygget eller separert trafo, samt ringeknapp montert ved hovedinngang.
Bad:
Det er to bad i husene. De leveres med lik utførelse. Flislagte vegger og gulv fra Flisekompaniet i Typen Pro Marte 60x60. Varmekabler i gulvene. Taket blir malt gips.
Følgende utstyr leveres:
- Til baderom Rowan servantskap, hvit høyglans
https://www.korsbakken.no/rowan-60-servantskap-hvit-h%C3%A3yglans-2-skuffer-3
- Gala Heldekkende porselensservant
https://www.korsbakken.no/porselensservant-por
- Johannesburg speil Ø60 - Korsbakken Bad
- Sintra vegghengt toalett inkl. sete
https://www.korsbakken.no/sintravegghengttoalett
- Hilina takdusj, krom
https://www.korsbakken.no/hilinatakdusjkrom
- Fan servantkran, krom
https://www.korsbakken.no/fanservantkrankrom
Vaskerom/teknisk rom:
Det er et kombinert teknisk rom og vaskerom i 1. etasje. Rommet har flislagte gulv og gipsede vegger og tak.
Sprinkelanlegget og fordelingskapet er plassert i rommet.
Det blir levert vaskekar i typen Intra VK 50 eller tilsv og 200L varmtvannsbereder. Videre leveres det T-rør for event. tilkobling av oppvaskmaskin, kran og avløp til vaskemaskin.
Kjøkken:
I boligens andre etasje er det en romslig kjøkkenkrok med naturlig lys fra 3 sider. Kjøkken leveres av JKE Design / Bærum Kjøkkensenter. Inkludert i kjøkkenleveransen er ventilator. Kran for oppvaskmaskin leveres ikke. (Denne må (lovfestet) monteres sammen med oppvaskmaskin). Det er inkludert kjøkken for kr. 100.000,- fra valgte kjøkkenleverandør. Dette er ikke inkludert hvitevarer.
- Innvendige vegger i bindingsverk og gips der annet ikke er spes. Maling 2 fargeskift i tillegg til takfarge er inkludert. Tillegg for farger sterkere enn NCS S-3500. Forskriftsmessig isolert mot kalde rom.
- Himling leveres med ett lag gipsplater.
- Balkong / terrassedør får karm og dørblad leveres malt fra fabrikk.
- Innvendige dører får malt karm og formpressede dørblader (hvit) og håndtak i børstet stål. Innerdør modellen "Slett lett" fra Harmoni.
- Vinduer i boligrom: Karm, ramme og evnt. sprosser leveres ferdig malt fra fabrikk. Lukkevinduer leveres med toppsving. Hvite på innsiden og mørk grå på utsiden.
- Kjøkken leveres av JKE Design / Bærum Kjøkkensenter.
- Garderober er ikke inkludert.
- Innvendig trappen leveres i malt utførelse, med barnesikring under trinnene og vertikale runde spiler i rekkverk. Modellen heter "Horisont" og er fra stryntrappa. Vridere "New York" eller tilsvarende fra Habo.
- Glatte lister i malt furu leveres til vinduer og dører. Synlige spikerhull. Ingen taklist, eikelist til gulv. Øvrig gjelder listing i boligrom. Det leveres ikke lister til garasje og sportsboder/utvendige boder.
- Stikkontakter leveres i hvit utførelse. Alle stikkontakter leveres som doble. (Tekniske stikk enkle).
- Antall EL punkter iht NEK 400. Punktene plasseres i samarbeid mellom tiltakshaver og installatør.
- Vannledninger: Hvor det er mulig legges varmt og kaldt vann skjult i trevegger og bjelkelag, det benyttes rør i rør system for vanntilførsel.
- Spillvannsledninger: Spillvannsledninger legges skjult i trevegger og bjelkelag. Der dette ikke er mulig legges rørene i kasse. I boder legges rørene åpent.
- Utvendig panel og listverk leveres grunnbeiset fra fabrikk, sagsnitt blir ikke beiset.
- Det er sannsynlig at ventilasjonsanlegget blir plassert i boden.
All utførelse iht. TEK 17.
Leverandøren forbeholder seg retten til å forandre materialvalg og valg av leverandører så lenge leveransen blir av samme kvalitet og omfang.
IKKE MED I LEVERANSEN
- Innredning bortsett fra det som er spes. tidligere i beskrivelsen
- Søppelstativ, markiser og levegger
- Utvendig maling / beis utover fabrikkutført grunnbehandling
- Brannslangeskap med utstyr
- Postkassestativ / postkasse
- Badekar
- Utvendige plattinger, trapper, murer, beplantning, etc.
Tilvalg
Kjøper har mulighet til å få utført endrings- og tilleggsarbeider etter særskilt avtale. Alle endrings- eller tilleggsarbeider skal avtales skriftlig mellom partene og avtalen skal redegjøre for pris og ev. fristforlengelse som følge av endringene. Kjøperen kan ikke kreve å få utført endrings- eller tilleggsarbeid som endrer kjøpesummen med mer enn 15 %.
Kjøperen kan ikke kreve å få utført endringer eller tilleggsarbeider:
a) som vil endre kontraktsummen med 15% eller mer
b) som ikke står i sammenheng med selgers ytelse, eller
c) som vil medføre ulemper for selger som ikke står i forhold til kjøpers interesse i å kreve endringen eller tilleggsarbeidet.
Selger skal skriftlig klargjøre for kjøperen de kontraktsmessige og tidsmessige konsekvensene av de endringene eller tilleggsarbeidene kjøperen krever. Selgeren kan kreve at kjøper betaler forskudd for endringer og tilleggsarbeider så fremt garanti i henhold til bustadoppføringslova § 47 er stilt. Alternativt kan selgeren kreve at kjøperen stiller sikkerhet for selgerens krav på tilleggsvederlag. Dersom det ikke er stilt §47 garanti skal tilleggsvederlaget betales til meglers klientkonto ved overtakelsen. Interessenter og kjøper må godta at selger og megler bruker elektronisk kommunikasjon i salgsprosessen. Ved avbestilling av boligen må alle tilvalg og endringer uansett dekkes av kjøper.
Hvorfor kjøpe nytt?
- Boligen er i forskriftmessig stand med mange års reklamasjonsfrist.
- Energiøkonomiske og klimavennlige løsninger.
- Innflyttingsklar uten tanke på å måtte pusse opp først.
- Det er svært lite vedlikeholdskostnader i nær framtid.
- Mulighet for å påvirke stilmessige valg/gjøre tilvalg.
- Lav dokumentavgift.
Utstyr
- Sikringsskap i teknisk rom / bod.
- Det leveres 1 stk. utekran pr. boenhet.
- Sprinkelanlegg.
- Det blir lagt tomrør for fiber.
Eiendommens historie
Tomtene er skilt ut fra et lite småbruk fra 1900.
Oppvarming
Varmekabler leveres i de rom det ihht standard romskjema blir levert fliser (bad, teknisk rom og entré).
Øvrige arealer varmes med luft til luft varmepumpe og panelovner. Installasjon leveres fortrinnsvis skjult i vegg/himling bortsett fra i lyd/branncellebegrensede vegg, lyd/cellebegrensede himling og på mur i kjeller-rom, hvor det benyttes åpen kabelinstallasjon.
Ildsted ikke inkludert, men kan leveres som tilvalg. Konstruksjonen er forberedt for pipe.
Det leveres balansert ventilasjonsanlegg, mest sannsynlig plassert i boden. Kanaler må i noen tilfeller innkles i kasser. I boder legges kanalene synlig, og plasseres hvor det er mest hensiktsmessig i forhold til funksjon.
Parkering / Garasje
Parkering på egen tomt som blir gruset av utbygger. Seksjon 1 og 2 har seksjonert parkeringsplass ved felles adkomstvei. Se kartutsnitt i salgsoppgaven.
Det er avsatt plass for fremtidig garasje på hver tomt. Utbygger leverer ikke garasje. Kjøper må selv søke kommunen om dette. Felles gjesteparkering for seksjon 1,2,3 og 4 ned mot Brynsveien.
Beskrivelse av tomt
Tomtene er seksjonert:
Bolig 1: 382 kvm.
Bolig 2: 416,5 kvm.
Bolig 3: 1.198,7 kvm.
Tomten leveres planert med stedlige masser. Gårdsplass og kjøreveier leveres gruset.
Tomtene ligger på Gnr 93 Bnr 24 i Bærum kommune. Tomten er seksjonert i 4, hvor prosjekterte eneboliger har seksjonsnr 1,2 og 3. Opprinnelig hovedhus med anneks, garasje og stabbur har seksjonsnr 4. Gnr 93 Bnr 24 er felles adkomstvei (1 544,9 kvm) også for naboeiendommene (med tinglyst vedlikeholdsplikt).
Tinglyste rettigheter og forpliktelser
Kommunen har legalpant som sikkerhet for betaling av kommunale avgifter. Legalpant er pant som følger av loven, og som ikke tinglyses. Legalpant følger derfor eiendommen ved salg. På eiendommen kan det være tinglyst erklæringer som f.eks. rett for kommunen til å vedlikeholde rørsystemer for vann- og kloakk. Disse erklæringene vil følge eiendommen ved salg. Kontakt megler for nærmere informasjon.
Øvrige sameiere har panterett i seksjonen for krav mot sameieren som følge av sameieforholdet, jf. eierseksjonsloven § 31. Pantekravet kan ikke overstige 2G (Folketrygdens grunnbeløp). Sameiet kan vedtektsfeste ytterligere panterett for sameiet. Vedtektsfestet pant tinglyses i seksjonene.
Servitutter / rettigheter
Eiendommen overdras fri for pengeheftelser, med unntak av eventuelle erklæringer, avtaler, servitutter og panteheftelser som fremgår av salgsoppgaven og skal følge med eiendommen ved salg. Kjøpers bank vil få prioritet etter disse.
Heftelser
1935/900450-1/100 Best. om vann/kloakkledn.
11.01.1935
rettighetshaver:Knr:3024 Gnr:93 Bnr:54
Bestemmelse om adkomstrett
Med flere bestemmelser
Overført fra: 3024-93/24
Gjelder denne registerenheten med flere
1937/4632-1/100 Erklæring/avtale
30.11.1937
Bestemmelse om vannledning
Med flere bestemmelser
Overført fra: 3024-93/24
Gjelder denne registerenheten med flere
1942/4594-3/100 Skjønn
29.09.1942
Vedr. utvidelse av Brynsveien
Overført fra: 3024-93/24
Gjelder denne registerenheten med flere
1955/10166-1/100 Skjønn
26.11.1955
Vedr. avståelse av grunn til vannverk
Konverteringsfeil, dokumentet er tinglyst 26.11.1956.
Overført fra: 3024-93/24
Gjelder denne registerenheten med flere
Meglers kommentar: Kartverket finner ikke dokumentet i sine arkiv.
1963/971-2/100 Skjønn
25.02.1963
Vedr. Brynsveien
Ført med dbnr.971 - 1010.
Overført fra: 3024-93/24
Gjelder denne registerenheten med flere
Meglers kommentar: Kartverket finner ikke dokumentet i sine arkiv.
1965/2514-1/100 Best. om vann/kloakkledn.
14.05.1965
Overført fra: 3024-93/24
Gjelder denne registerenheten med flere
Meglers kommentar: Bærum kommunes vannforsynings- og kloakkreglement gjelder for eiendommen.
1987/28635-1/100 Erklæring/avtale
18.09.1987
Bestemmelse om septiktank m.v.
Kan ikke slettes uten samtykke fra kommunen
Overført fra: 3024-93/24
Gjelder denne registerenheten med flere
Meglers kommentar: Gjelder septiktank som er utkoblet/fjernet og dermed ikke aktuell.
1994/32130-1/100 Best. om adkomstrett
06.12.1994
rettighetshaver:Knr:3024 Gnr:93 Bnr:54
rettighetshaver:Knr:3024 Gnr:93 Bnr:94
Med flere bestemmelser
Overført fra: 3024-93/24
Gjelder denne registerenheten med flere
Meglers kommentar: Adkomstsrett over denne eiendom for gnr. 93, bnr. 54 og 94 samt fordeling av utgifter til vedlikehold og drift.
1995/11384-1/100 Best. om adkomstrett
11.05.1995
rettighetshaver:Knr:3024 Gnr:93 Bnr:54
rettighetshaver:Knr:3024 Gnr:93 Bnr:94
Kan ikke slettes uten samtykke fra rettighetshaverne
Overført fra: 3024-93/24
Gjelder denne registerenheten med flere
Meglers kommentar: Adkomstsrett over denne eiendom for gnr. 93, bnr. 54 og 94 samt fordeling av utgifter til vedlikehold og drift.
Grunndata
2023/717479-1/200 Seksjonering
05.07.2023 21:00
opprettet seksjoner:
snr: 1
formål: Bolig
tilleggsdel: Bygning og grunn
sameiebrøk: 1/4
opprettet seksjoner:
snr: 2
formål: Bolig
tilleggsdel: Bygning og grunn
sameiebrøk: 1/4
opprettet seksjoner:
snr: 3
formål: Bolig
tilleggsdel: Bygning og grunn
sameiebrøk: 1/4
opprettet seksjoner:
snr: 4
formål: Bolig
tilleggsdel: Bygning og grunn
sameiebrøk: 1/4
Rettigheter på andre eiendommer
Ingen rettigheter funnet.
Vei / Vann / Avløp
Offentlig vann og avløp via private stikkledninger.
Privat stikkvei hvor hver seksjon eier 1/4.
Ferdigattest eller midl. brukstillatelse
Det må foreligge midlertidig brukstillatelse før overtagelse. Selger fremskaffer ferdigattest ved endelig ferdigstillelse av prosjektet. Kjøper overtar boligen mot midlertidig brukstillatelse og bør holde tilbake penger i oppgjøret til ferdigattest foreligger.
Overtagelse kan tidligst skje når det foreligger ferdigattest/midlertidig brukstillatelse.
Ved overtakelse skal det dokumenteres at alle innbetalinger, inkludert eventuelle tilleggsleveranser, er betalt før utlevering av nøkkel til boligen finner sted.
Det gjøres oppmerksom på at det etter oppgjørs- og overtakelsesdato fortsatt vil foregå byggearbeider på eiendommen, herunder arbeid med ferdigstillelse av de øvrige boligene, fellesarealer, tekniske installasjoner og utomhusarbeider.
Kjøper kan ikke nekte å overta boligen mot midlertidig brukstillatelse selv om det gjenstår arbeider som nevnt foran eller arbeid gjenstår på fellesområdene. Det samme gjelder dersom tinglysing av hjemmelsovergang ikke kan gjennomføres på overtakelsesdagen.
Verdi ved skattefastsetting
Verdien ved skattefastsetting er p.t. ikke fastsatt. Verdien ved skattefastsetting fastsettes av Ligningskontoret etter beregningsmodell som tar hensyn til om boligen er en såkalt "primærbolig" (der boligeieren er folkeregistrert bosatt) eller "sekundærbolig" (alle boliger man eier, men ikke bor fast i). Interessenter oppfordres til å sjekke www.skatteetaten.no eller kontakte ansvarlig megler for nærmere informasjon om verdien ved skattefastsetting.
Reguleringsforhold
Kommuneplaner
Id 202101 Navn KOMMUNEPLANENS AREALDEL 2022-2042
(https://www.arealplaner.no/3024/gi?funksjon=VisPlan&kommunenummer=3024&planidentifikasjon=202101)
Bestemmelser - https://www.arealplaner.no/3024/dokumenter/23424/Bestemmelser%20og%20retningslinjer%20-%20Kommuneplanens%20arealdel%202022-42%20-
%20Med%20punkter%20unntatt%20rettsvirkning%20(10666427).docx
Delareal 6 254 m2 KPAngittHensyn Hensyn landskap KPHensynsonenavnH550
Delareal 6 254 m2 Arealbruk Boligbebyggelse, Nåværende
Reguleringsplaner
Id 1973233 Navn LOMMEDALSVEI - NY, NY RUDSVEI OG LØKEN GARD
(https://www.arealplaner.no/3024/gi?funksjon=VisPlan&kommunenummer=3024&planidentifikasjon=1973233)
Bestemmelser - https://www.arealplaner.no/3024/dokumenter/8823/1973233.pdf
Delareal 6 254 m2 Formål Frittliggende småhusbebyggelse
Eiendommen er regulert til småhusbebyggelse, u-grad/BYA 20 % i ht. kommuneplanen. Eiendommen er under utvikling. Den er seksjoner i 4 seksjoner og det vil bli bygget 3 eneboligen på tomten, se vedlagte kart.
Selger kjenner ikke til reguleringsplaner, nabovarsler eller offentlige vedtak som kan medføre endringer i bruken av eiendommen eller av eiendommens omgivelser, eller forslag til dette, ifølge selgers egenerklæringsskjema.
Beskrivelse av sameiet
Boligene er del av totalt 4 seksjoner og inngår som en del av et eierseksjonssameie.
Sameiet er imidlertid ikke organisert, og har ikke et aktivt styre. Det foreligger ikke vedtekter, regnskap eller budsjett. Eierseksjonslovens regler gjelder imidlertid for slike sameier.
En sameier eier en andel i eiendommen, med tilknyttet enerett til bruk av sin bruksenhet, jf. eierseksjonsloven § 25.
Ingen kan erverve mer enn to boligseksjoner i et sameie, jf. eierseksjonsloven § 23 første ledd. Dersom et erverv har funnet sted i strid med eierseksjonslovens regler kan Kartverket nekte overskjøting.
Dersom overskjøting blir nektet, er kjøper likevel forpliktet til å gjennomføre handelen med selger, og oppgjør til selger vil finne sted tross manglende overskjøting.
Andre faste løpende kostnader
Kommunale avgifter faktureres hvert hus direkte. Dette inkluderer vann og avløp etter forbruk, renovasjon og eventuelt feiing. På en enebolig estimerer vi en årlig kostnad på kr. 17.000,-. Prisen vil variere med vannforbruk og ønsket renovasjonsløsning.
Eiendomsskatt: Det er ikke eiendomsskatt i Bærum kommune.
Eier må selv besørge for et boligen er fullverdiforsikret.
Kostnader som internett, alarm, etc må kjøper selv bekoste.
Boligene driftes som eneboliger. Det eneste som er felles er adkomstveien, som de 4 eierne må drifte i fellesskap - for eksempel måke/strø avtale.
Andel fellesgjeld / formue
Andel fellesgjeld kr. 0,- / Andel fellesformue kr. 0,- pr ifølge selger. Andel fellesgjeld og evt. formue overtas av kjøper.
Oppgjør
10% innbetaling ved besluttet bygging/stilt garanti. Resten før overtagelse.
Når selger har oppfylt vilkåret om å stille forskuddsgaranti etter buofl. § 47, godskrives selger renter av innestående forskuddsbetalinger på klientkonto, bortsett fra renter av omkostninger som er innbetalt av kjøper. Kjøper og selger godskrives likevel ikke renter når disse for hver av partene utgjør mindre enn et halvt rettsgebyr, jf. eiendomsmeglingsforskriften § 3-10 (3).
Finansiering
Kontakt megler for avklaring av finansielle forhold, herunder lån til kjøp av eiendom. Privatmegleren har avtale med Nordea om formidling av lån og andre finansielle tjenester. Privatmegleren mottar godtgjørelse for dette.
Annen nyttig informasjon
Det benyttes Privatmegleren sin standard kontrakt for prosjekterte boliger. Kontrakten kan oversendes om ønskelig.
Selger står fritt til å endre prisen på usolgte enheter.
Illustrasjoner i prospektet og annonser angir ikke nødvendigvis en helt nøyaktig gjengivelse av boligene, terrenget, utomhusarealene, fasader, plantegninger mm.
Alle illustrasjoner, skisser, "møblerte" plantegninger m.m. er kun ment å danne et inntrykk av et ferdigstilt prosjekt, og gir ikke uttrykk for hva som skal leveres. Inntegnet utstyr/inventar er ment som illustrasjoner og medfølger ikke. Videre kan det derfor fremkomme elementer i presentasjonsmaterialet som trapp, garderober med mer, som ikke inngår i leveransen. Det er selve leveransebeskrivelsen/overflateskjema som angir hva som følger salget. Alle opplysninger er gitt med forbehold om rett til endringer som er hensiktsmessige og/eller nødvendige, likevel slik at den generelle standard og utførelse ikke forringes eller endres vesentlig. Kjøper aksepterer uten prisjustering at utbygger har rett til å foreta slike endringer. Eksempel på slike endringer kan være innkassing av teknisk anlegg, mindre endringer av boligens areal og lignende. Det kan være avvik mellom de planskisser, planløsninger og tegninger som er presentert i prospektet, og den endelige leveransen. Slike avvik utgjør ingen mangel ved selgers leveranse som gir kjøper rett til prisavslag eller erstatning. Ved vesentlige endringer har kjøper rett til å heve avtalen, og kreve kjøpesummen tilbakeført. Kjøper kan ikke kreve erstatning ut over dette. Dersom det er avvik mellom tegninger i prospekt/internettside og leveransebeskrivelsen i den endelige kontrakt med kjøper vil leveransebeskrivelsen/overflateskjema ha forrang og omfanget av leveransen er begrenset til denne. Der det er motstrid mellom rammesøkte arkitekttegninger og tekniske byggetegninger vil sistnevnte ha forrang.
Endringer som følge av tekniske løsninger eller offentlige pålegg må påregnes. Selger står fritt til å plassere tekniske installasjoner som kummer, el-skap osv. der dette er nødvendig. Tekniske installasjoner kan være avhengig av jevnlig vedlikehold eller serviceavtaler med leverandør.
Bygningsmaterialer påvirkes av fuktighet og uttørking. Det kan oppstå riss og krakeleringer på grunn av bevegelse i materialene. Dette omfattes normalt ikke av reklamasjon eller garantier.
Boligens arealer er angitt så nøyaktig som mulig med grunnlag i prosjekterte arbeidstegninger. Selger tar imidlertid forbehold om mindre avvik/endringer.
Eventuelle endringer på boligen eller tomten som sameiet eller kjøper skal stå for i egen regi og for egen regning, må normalt utføres først etter at ferdigattest foreligger. Det gjøres oppmerksom på at det vanligvis vil gå noe tid fra brukstillatelse gis til ferdigattest blir utstedt.
Transport av kjøpekontrakt før overtagelse skal på forhånd aksepteres av utbygger og kan nektes på fritt grunnlag. Ved eventuell transport av kontrakt fra kjøpers side etter bud/aksept vil det påløpe administrasjonsgebyr på kr 100 000,-. Eventuell endring krever utbyggers samtykke. Ved transport av kjøpekontrakt vil det ikke være mulig å endre tilvalg som opprinnelig kjøper har gjort.
Dersom det i byggetiden skulle inntreffe streik, lockout eller gjøre seg gjeldende andre forhold som medfører forsinkelser og som ligger utenfor selgers kontroll, kan kjøper med grunnlag i dette ikke kreve dagmulkt eller erstatning, heve eller påberope seg gunstigere betalingsbetingelser.
Kjøper har rett til å avbestille leveransen før overtakelse har funnet sted, jf. buofl. §§ 52-54.
Ved avbestilling etter at bygging er igangsatt vil selger ha krav på full erstatning for sitt økonomiske tap i henhold til bustadoppføringslova kapittel VI. I tillegg tilfaller at avbestillingsgebyr på kr. 200.000,-.
Adgang til utleie
Eiendommen kan i sin helhet fritt leies ut til boligformål.
Det vil normalt være anledning til utleie av hele eiendommen eller enkeltrom, så fremt arealet er godkjent for varig opphold iht. plan- og bygningsloven og har forsvarlig radonnivå.
Konsesjon / Odel
Det er ikke krav til konsesjon ved erverv av eiendommen.
Det hefter ikke odel på eiendommen.
Sikkerhetsstillelse
Alle eiendomsmeglingsforetak har lovpålagt forsikring av klientmidler begrenset oppad til kr 45 mill. Enkeltsaker er forsikret inntil kr 15 mill. Dersom kjøpers låneinstitusjon krever tilleggsforsikring ved omsetning over 15 millioner, må kjøper selv eller dennes låneinstitusjon dekke utgiftene forbundet med dette.
Planlagt overtagelse
Estimert 10 måneder byggetid fra gitt IG.
Forventet overtagelse er estimert til 1.-2. kvartal 2025, forutsatt igangsettelse 2. kvartal 2024. Forventet overtagelse er foreløpig og ikke bindende og utløser ikke dagmulkt. Selger forbeholder seg retten til å kunne overlevere tidligere dersom fremdriften tillater det og dette synes hensiktsmessig. Selger tar forbehold om at det oppnås nødvendige offentlige godkjenninger for prosjektet slik det er presentert.
Arbeidet skal utføres av selger med rimelig fremdrift og uten unødige avbrudd. Selger vil holde kjøper løpende underrettet om fremdrift når overtakelsestidspunkt nærmer seg. Selger innkaller kjøper til overtagelsesforretning med minst 1 ukers varsel. Den endelige datoen er bindende og dagmulktsutløsende, og skal ligge innenfor overtakelsesperioden. Denne datoen vil være å regne som frist ihht. Bustadoppføringslova. Endelig overtakelsesintervall fastsettes når samtlige forbehold er løftet. Selger forbeholder seg retten til å levere boligen før fastsatt overtakelsesintervall.
Selgers forbehold
Forbehold om 2 solgte enheter.
Forbehold om byggelån/tilfredsstillende finansiering.
Selgers frist for å gjøre forbehold gjeldende er 01.08.2024.
Forkjøpsrett
Ingen forkjøpsrett.
Solgt ihht bustadoppføringsloven
Boligene selges i henhold til Bustadoppføringslova som regulerer kjøpers (forbrukers) rettigheter og plikter ved avtale om oppføring av bolig og kjøp av fast eiendom der bygningen ikke er fullført når avtalen inngås. Ved salg til aksjeselskap legges Avhendingslovens bestemmelser til grunn. For øvrig gjelder Lov om eierseksjoner for eierseksjonssameiet og driften av dette.
Garantier
Det stilles garantier i henhold til Bustadoppføringslovas bestemmelser. Garanti etter § 12 vil bli stilt i forbindelse med avtaleinngåelse. Garantien skal være pålydende 3% av kjøpesummen i byggetiden og 5% i 5 år etter overlevering av boligene til kjøper. Garanti etter § 47 forutsettes stilt om selger ønsker utbetalt forskudd/delinnbetaling/sluttoppgjør før hjemmelsovergang. Eventuelle påkrevde endringer av garantier ved eventuelle videresalg/transporter utføres ikke og bekostes ikke av selger.
Forsikring
Frem til overtagelse vil eiendommen være forsikret av selger. Etter overtagelse vil eiendommen forsikres gjennom sameiets fellesforsikring. Kjøper må selv besørge innboforsikring og forsikring av eventuelle særskilte påkostninger.
Budgiving
Boligene selges til fastpris.
Alle bud/kjøpetilbud på eiendommen skal være skriftlig og sendes meglerforetaket pr. fax, mail, sms eller via vår "gi bud"-knapp på våre nettsider. Knappen finner du også på Privatmeglerens hjemmeside for prosjektet, se på den enkelte bolig.
Bud/kjøpetilbud må ikke ha kortere akseptfrist enn til kl. 12.00 første virkedag etter siste annonserte visning. Lørdag regnes ikke som virkedag. Bud/kjøpetilbud med kortere frist enn dette kan ikke formidles av megler. Nærmere info om budgiving finner du på egen side sammen med kjøpetilbud/budskjema.
Som budgiver hos Privatmegleren kan du kreve budjournal fremlagt så snart handel er gjennomført.
Innhold i budjournal er lovregulert, og innebærer at budgivere må akseptere at opplysninger om budet kan bli fremlagt for selger, kjøper og øvrige budgivere. Budgiver som ikke blir kjøper, kan kreve kopi av anonymisert budjournal.
Lov om hvitvasking
Megler er underlagt lov om hvitvasking som innebærer plikt til å melde ifra til Økokrim om mistenkelige transaksjoner
Meglers vederlag og utlegg
Meglers vederlag/tillegg betales av selgeren og utgjør:
Fast pris kr 117 000,- + oppgjørshonorar på kr 9 950,- pr enhet samt utlegg på kr 500,-.
I tillegg kommer tillegg/utlegg/markedsføring.
Dersom eiendommen ikke blir solgt, skal selger betale kr 9 900,- samt tillegg/utlegg.
Nyttige lenker
Nærområdet
PrivatMegleren Bærum
Annonsene kan være mangelfulle i forhold til lovpålagt opplysningsplikt. Før bindende avtale inngås oppfordres interessenter til å innhente komplett informasjon fra meglerforetaket, selger eller utleier.












