Bildegalleri

Idehus har gleden av å presentere 2 stk flotte 4-mannsboliger. Ta kontakt for en hyggelig boligprat.
Fine og praktiske leiligheter i Isfjorden
Kun 3 av 8 igjen! Bygging pågår! Siste frist for endringer! Moderne, nøkkelferdige, carport,+++
Prisantydning fra
3 325 000 kr
Prisantydning til
3 425 000 kr
Prosjektets status
Planlegging
Høst 2024
Salgsstart
Høst/vinter 2024
Byggestart
Pågår!
Overtakelse
Rundt Påske 2026
Nøkkelinfo
- Boligtype
- Leilighet
- Soverom
- 3
- Bruksareal
- 90 m²
- Eieform
- Eier (Selveier)
Fasiliteter
Enheter i prosjektet
Sorter etter
| Enhet | Etasje | BRA | Soverom | Totalpris |
|---|---|---|---|---|
| Hus 1-2 | 1 | 90 m² | 3 | 3 345 264 kr |
| Hus 1-4 | 2 | 90 m² | 3 | 3 445 264 kr |
| Hus 2-2 | 1 | 90 m² | 3 | 3 345 264 kr |
Visning
Ta kontakt for å avtale visning.Beskrivelse
BESKRIVELSE
Idehus Ålesund har gleden av å presentere 2stk flotte og moderne 4-mannsboliger i vakre Isfjorden.
På det nylige regulerte området Fjellfoten i Isfjorden kommer det nå to flotte 4-mannsboliger med gode kvaliteter og god planløsninger.
Boligene blir liggende i et fint boligområde, flott beliggende i familievennlige omgivelser Isfjorden . Isfjorden er et etablert område med skole, butikker , barnehager og kollektivtransport i gåavstand.
Det er kort vei til ulike tilbud innenfor sports- og friluftsaktiviteter både for barn og voksne.
I nærheten blir det også opparbeidet et areal med lekeplass.
Noe av leveransen:
- Nøkkelferdig leveranse!
- Kjøkkenleveranse fra Vegsund Kjøkken/Aubo Optimera Ålesund
- Bad og innredninger fra lokal rørlegger
- Kvalitetsgulv fra Boen.
- El leveranse fra lokal elektriker.
- Fiber klart frem til boligen.
- Balansert ventilasjon med varmegjenvinning.
- Waterguard vannstopper system.
- Flislagt bad med varmekabel & innvendig bod med flis på gulv/sokkelkant.
- Ferdigmalte plater på vegg og tak fra Byggma.
- Utvendig kledning av Møre Royal.
- Malte trevindu med 3-lags glass for god isolasjonsevne.
Bilder vedlagt er ment som illustrasjon, dette er boligene tidligere levert og kan inneholde endringer/løsninger som ikke gjelder boliger nå lagt ut for salg.
Beliggenhet
På Fjellfoten bor du midt i smørøyet når det kommer til aktiviteter. Her har du et variert og bredt tilbud rett utenfor stuedøra - et eldorado for deg som liker å holde deg i aktivitet uavhengig av årstid.
Eiendommen ligger flott til like ved Haugan boligfelt. Et attraktivt boligområdet i naturskjønne omgivelser. Familievennlig område med ca. 1 km til blant annet skole, barnehage og dagligvarebutikk. Videre er det ski in/ski out til bla. fjellet Kirketaket og skiløyper. Boligens uteområder er syd/vestvendte og har gode sol- og utsiktsforhold.
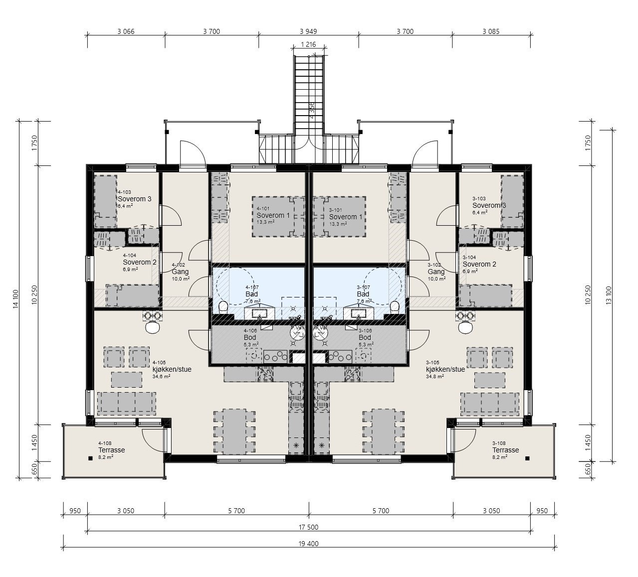
Boligen vil ha flott utsikt mot Romsdalens majestetiske fjell. Boligen inkluderer 3 soverom, bad ,gang/hall, bod, kjøkken/stue, sportsbod og carport. Fra stuen er det utgang til romslig og fin veranda som er delvis overbygd. Uteområdet er det godt med god boltreplass.
Nærområdet

Idéhus Ålesund AS
Annonseinformasjon
| FINN-kode | 329818125 |
|---|---|
| Sist endret | 08. des. 2025 12:55 |
| Referanse | Fjellfoten 4 mb |
Annonsene kan være mangelfulle i forhold til lovpålagt opplysningsplikt. Før bindende avtale inngås oppfordres interessenter til å innhente komplett informasjon fra meglerforetaket, selger eller utleier.

























