Bildegalleri

Leilighetsbygget «Bo i Sentrum» Richard Withs gate 20 i Stokmarknes sentrum begynner å nærme seg ferdigstillelse. Leilighetstypen har vinterhage. Vinterhagene kan også brukes som soverom 3.
Bo i Sentrum
5 praktfulle leiligheter-Høy standard-Heis- Takterrasse-Oppvarmet garasje- Flott utsikt- Fjernvarme
Prisantydning fra
5 275 000 kr
Prisantydning til
7 440 000 kr
Prosjektets status
Planlegging
Aug. 2022
Salgsstart
19. Desember 2023
Byggestart
10. juli 2023
Overtakelse
2. - 3. kvartal 2024
Nøkkelinfo
- Boligtype
- Leilighet
- Soverom
- 2
- Primærrom
- 76 - 106 m²
- Bruksareal
- 81 - 111 m²
- Eieform
- Selveier
- Energimerking
- A - Mørkegrønn
Fasiliteter
Utvalgte enheter
Enheter i prosjektet
Sorter etter
| Enhet | Etasje | P-rom | Soverom | Totalpris |
|---|---|---|---|---|
| A 202 | 2 | 103 m² | 2 | 6 961 892 kr |
| B 203 | 2 | 76 m² | 2 | 5 282 970 kr |
| C 204 | 2 | 106 m² | 2 | 7 212 212 kr |
| C 304 | 3 | 106 m² | 2 | 7 248 242 kr |
| C 404 | 4 | 106 m² | 2 | 7 450 900 kr |
Beskrivelse
EiendomsMegler 1 har gleden av å presentere prosjektet Bo i Sentrum. 9 praktfulle og moderne leiligheter midt i Stokmarknes sentrum! Kontakt megler for visning.
Leilighetene får meget høy standard med bl.a vannbåren gulvvarme tilknyttet bergvarmeanlegg, flislagt bad med vaskeromsdel skjult bak skyvedører, gjestetoalett, 1-stavs parkett, samt listefrie overganger mellom vegg, tak og vindu.
Fantastisk utsikt mot øst, over bla. sjøen, Møysalen nasjonalpark og fjellet Møysalen på 1262 m som er det høyeste fjellet på Hinnøya.
Heis mellom leilighetsetasjene, garasjeanlegget og Rema 1000. Du kan altså hive på deg slåbrokken, evt. annet passende antrekk og ta heisen ned på Rema 1000 for dine daglige innkjøp.
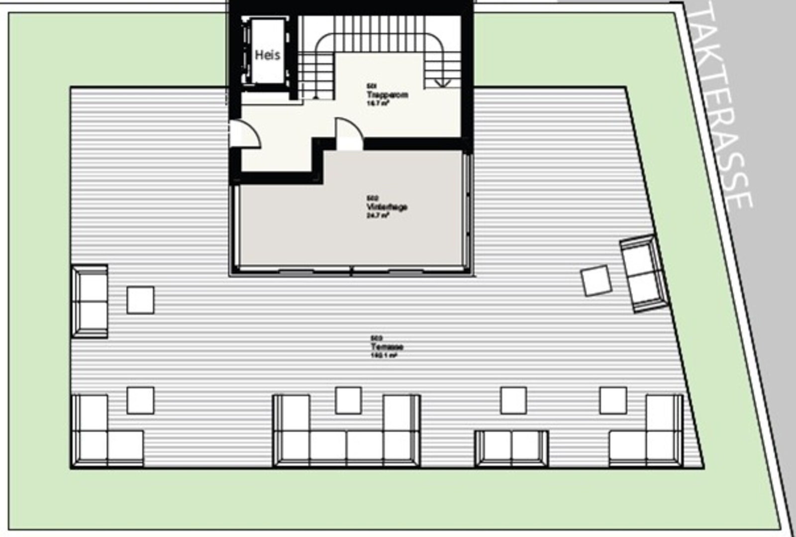
Felles takterrasse med oppvarmet og innglasset vinterhage med kjøkkendel og wc, sosiale soner og plenarealer.
Garasjeplass i felles oppvarmet garasjeanlegg er inkludert.
Leilighetene organiseres i et sameie og du selv trenger bare å holde styr på din egen leilighet. Skal du reise bort i lengre perioder trenger du ikke å tenke på annet enn å låse ytterdøren din, alt utvendig besørges av fellesskapet.
Meld din interesse ved å trykke på den blå knappen til høyre i annonsen "Meld interesse" og vi vil holde deg orientert om fremgang.
"Først til mølla" prinsippet følges og leilighetene selges til fastpris.
Kort om eiendommen
EiendomsMegler 1 har gleden av å presentere prosjektet Bo i Sentrum. 9 praktfulle og moderne leiligheter midt i Stokmarknes sentrum! Kontakt megler for visning.
Leilighetene får meget høy standard med bl.a vannbåren gulvvarme tilknyttet bergvarmeanlegg, flislagt bad med vaskeromsdel skjult bak skyvedører, gjestetoalett, 1-stavs parkett, samt listefrie overganger mellom vegg, tak og vindu.
Fantastisk utsikt mot øst, over bla. sjøen, Møysalen nasjonalpark og fjellet Møysalen på 1262 m som er det høyeste fjellet på Hinnøya.
Heis mellom leilighetsetasjene, garasjeanlegget og Rema 1000. Du kan altså hive på deg slåbrokken, evt. annet passende antrekk og ta heisen ned på Rema 1000 for dine daglige innkjøp.
Felles takterrasse med oppvarmet og innglasset vinterhage med kjøkkendel og wc, sosiale soner og plenarealer.
Garasjeplass i felles oppvarmet garasjeanlegg er inkludert.
Leilighetene organiseres i et sameie og du selv trenger bare å holde styr på din egen leilighet. Skal du reise bort i lengre perioder trenger du ikke å tenke på annet enn å låse ytterdøren din, alt utvendig besørges av fellesskapet.
Meld din interesse ved å trykke på den blå knappen til høyre i annonsen "Meld interesse" og vi vil holde deg orientert om fremgang.
"Først til mølla" prinsippet følges og leilighetene selges til fastpris.
Innhold
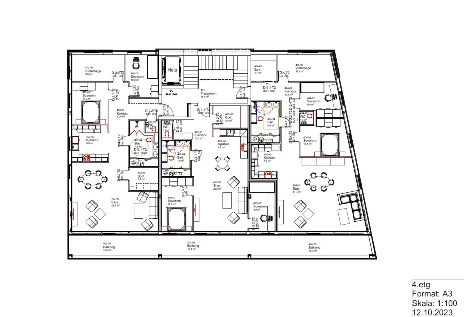
Alle leilighetene vil inneholde entré, stue/ kjøkken, bad/vaskerom, gjestetoalett, 2 soverom og bod.
I tillegg vil endeleilighetene i alle etasjer ha fullisolert vinterhage. Denne tilfredsstiller kravene til boligrom og kan benyttes som ekstra soverom.
Standard
Kjøkken
Kjøkkeninnredning iht. plantegning fra Nettoline med fronter i hvitmalt glatt utførelse. Benkeplater i laminat med underlimt vask, ett-greps blandebatteri med kran for oppvaskmaskin, integrert komfyr, koketopp, ventilator, microovn, oppvaskmaskin og kombiskap kjøl/frys.
Bad
Baderoms-innredning i hvit glatt utførelse. Omfanget av innredning framgår av tegning for den enkelte leilighet. I leveransen inngår også speil med tilhørende lysarmatur, toppmontert servant med to vasker og skuffer, dusjvegger og ett-greps dusjbatteri med dusjgarnityr på vegg, vegghengt wc med «soft-close» lokk og sete og håndkletørker som oppvarmes av varmtvann.
Vegger og gulv på bad leveres med flis.
Garderobeløsning
- Det levers skyvedørsgarderobe med dører i laminat, 1m pr. sengeplass.
- Skap med bredde under 120cm, leveres med vanlige skapdører.
Gulv:
Alle rom får 1-stavs matt lakkert parkett, i hvitpigmentert eik og gulvlister i hvitmalt utførelse, unntatt bad som får keramiske fliser.
Vegger:
- Lettvegger mellom boligrom kledd med gipsplater.
- Listefrie overganger mellom tak og vegg.
Himlinger:
Alle himlinger i leilighetene er nedforet med gipsplater som er sparklet og malt, med unntak av himling på bad som leveres generelt nedforet som en del av standard leveranse.
Belysning
Belysning leveres i alle rom. I stuen er det spotbelysning over spisebord, sofagruppe og stoler i forbindelse med TV.
Det er også indirekte led-belysninger i stuen langs tak/vegger mot sideveggene og frontveggen mot øst.
Belysning med stikk under overskap kjøkken.
Kabel-tv/internett
Opplegg for kabel-TV og internett installeres i bygget. Av praktiske hensyn, bestiller sameiet abonnement og velger leverandør.
Endringer/Avklaringer
Dersom kjøper av leilighet ønsker å gjøre endringer i forhold til standard beskrivelse og tegninger, har han anledning til det med de begrensninger som følger av punktet «Endringsønsker» i innledningen. De områder der endring er aktuelt, er følgende:
- Modeller og omfang av kjøkkeninnredning
- Elektriske installasjoner, herunder antall og plassering av stikkontakter og tilvalg belysning.
- Kvaliteter og fargevalg for maling. Tilsvarende for parkett typer.
- Mindre bygningsmessige endringer, eksempelvis flytting av lettvegger.
Kjøper kan ikke gjøre bygningsmessige endringer som resulterer i flytting av bærevegger og sjakter.
Rutinene for endringer er som følger:
- Kjøper vil få presentert en oversikt over de alternative materialvalg som er tilgjengelig for endring.
- Kjøper må melde alle endringsønsker skriftlig til utbygger innen avtalt frist.
- Totalentreprenøren, skal gi kjøper konkret tilbud på endringer som ønskes, og skal dessuten redegjøre for eventuelle pris- og fremdriftsmessige konsekvenser av endringen.
- Kjøper skal deretter skriftlig melde aksept av tilbudet før endringen iverksettes.
- E-post aksepteres som kommunikasjonsform.
Bygningsinformasjon / byggemåte
Etasjeskille/gulv/himling:
Etasjeskillere utføres i betong/huldekker og alle oppholdsrom har nedforet himling.
- Netto takhøyde i leilighetene vil være ca. 2,4 m med unntak av stuen/deler av stuen hvor det vil være ca. 2,6 m.
- Sjakter er vist på leilighetsplanene. Vi tar forbehold om justeringer av sjaktenes utforming og plassering som konsekvens av detaljprosjekteringen.
Gulv i leiligheten:
- Gulv i leiligheten oppfores for å ivareta lydkrav.
Gulv på bad:
- Badegulv leveres i betong med vannbåren gulvvarme og fliser på gulv.
Gulv på balkonger/terrasser:
- Balkonger leveres som betongelement med glattet på-støp. Avrenning i nedløpsrør til avløpssystem.
Gulv i garasjeanlegg og sportsboder:
- Gulvet i parkeringsetasje skal være i glattet betong og støvbundet.
- Gulv i sportsboder utføres som betonggulv - Støvbundet.
Himlinger:
- Garasje og sportsboder leveres med støvbundet flate med hvit pigmentering, evt. nedforet for isolering av overliggende bygg.
Yttervegger:
Yttervegger utføres i bindingsverk med isolasjon i henhold til gjeldende byggeforskrifter, innvendig fuktsperre og gipsplater. Utvendig fasadeplater.
Innvendige vegger:
- Leilighetsskille/bærevegger utføres som bindingsverk kledd med gips. Vegger mellom leilighetene og mot trapperom leveres som lydvegg i henhold til gjeldende forskriftskrav.
- Lettvegger mellom boligrom leveres kledd med gipsplater.
- Vegger i ute-bod i underetasje/parkeringsanlegg leveres i stenderverk med OSB-plate på en side. Faste vegger med luftespalte. Uten maling.
Yttertak:
- Yttertak leveres isolert og tekket iht gjeldende forskrift.
Vinduer:
- Vinduer i yttervegg leveres som malte tre-vinduer med utvendig pulverlakkert aluminiums- kledning, tilfredsstillende isolasjonsgrad i samsvar med gjeldende teknisk forskrift.
- Vinduer leveres med barnesikring og nødvendige beslag. Det leveres nødvendig antall innad- slående åpningsvinduer.
- Sikkerhetsglass leveres i vinduer der forskriftskravene gjør slike glass påkrevet.
Dører:
- Inngangsdører til leilighetene leveres som kompakt dør med dørblad og karm med glatt, malt overflate. Nødvendige brannkrav ivaretas. Inngangsdørene leveres med sylinderlås og vrider i blank/matt utførelse. FG-godkjente låser.
- Balkongdør leveres med tilfredsstillende isolasjonsgrad i samsvar med gjeldende teknisk forskrift.
- Innvendige dører leveres malte, med profilerte dørblad, låskasse samt standard vrider i matt utførelse. Innvendige dørkarmer leveres hvitmalt. Det leveres flat terskel.
- Dør til bad leveres som kompakt dør.
- Dør til ute-bod leveres med sylinderlås.
Trapper og trapperom:
- Vegger i trapperom leveres i sparklet og malt betong
- Trapper i trapperom/-hus og fra kjellergarasje leveres i betong eller stål i henhold til gjeldende forskrifter, med nødvendige gelender og rekkverk, jf. pkt. G1 i leveransebeskrivelsen.
- Det leveres flis i repos, opptrinn og inntrinn i felles trappehus.
Heis og heis-hus:
- Det leveres heis med nødtelefon installert. Heis skal ha plass til båre for syketransport.
- Dører og karmer i heis-hus leveres i malt stål.
Kjøkken-, bad- og garderobeløsning:
- To alternative fronter for kjøkken og bad skal kunne leveres som tilvalg ut fra oppgitte opsjonspriser.
- For bad og kjøkken gjelder generelt at plassering av tekniske komponenter, elektroinstallasjoner og rør ikke kan endres.
Foringer, gerikter og listverk:
- Innvendige dører, foringer, gerikter og listverk monteres etter at maling-og beleggarbeider er utført.
- Foringer og gerikt leveres i hvit utførelse, med synlig spikring/skruing. Dersom kjøper finner det nødvendig/ønskelig å få utført "flikk" som følge av synlig spikring/skruing, må dette utføres av kjøper etter overtakelsen av leiligheten.
Ventilasjon i leilighetene:
- Leilighetene leveres med balansert ventilasjonsanlegg med filtrering og varmegjenvinning.
- Hver leilighet skal ha sitt eget ventilasjonsaggregat, med friskluftinntak i yttervegg og avkast over yttertak. Leilighetene skal ha avtrekk fra våtrom og kjøkken samt til-luft til stue/kjøkken evt. gang. Ventilasjonsaggregat plasseres i overskap over komfyr, alternativt i bod.
- På soverom leveres ventil i vindu.
- I rom der det ikke er til-luft/avtrekk direkte til/fra ventilasjonsaggregat, monteres nødvendig vindusventil.
Sanitærutstyr og rørleggermateriell:
- Sanitæranlegget leveres i henhold til offentlige reglement.
- Sanitærutstyret leveres i hvit utførelse. Servanter og WC er i porselen. Blandebatteri og tappekraner er forkrommet.
- Vann- og avløpsledninger legges i henhold til gjeldende forskrifter. Vannledning i leilighetene legges opp som rør-i-rør-system.
- Det kan ikke legges vannledninger i lyd-/brann-celle-begrensende konstruksjoner og i leilighetsskillevegger/bærevegger i betong.
- Stoppekran innpasses i hver leilighet. Plassering av stoppekran fastlegges av totalentreprenør/rørlegger.
- Vann- og avløpsledninger fra leilighetene føres ned gjennom garasjeanlegget. Slike ledninger vil også måtte føres gjennom noen boder, og vil da bli hengt opp langs vegg og tak.
- Varmtvannsbereder er sentralt plassert i varmesentral (ikke i leilighet).
Elektriske installasjoner
Elektriske installasjoner leveres i henhold til gjeldende forskrifter og normer (NEK 400).
- Installasjonene legges i hovedsak skjult i vegg/gulv, bortsett fra i lyd-/brann-celle- begrensende konstruksjoner, leilighetsskillevegger, himlinger av malte hulldekker og vegger i betong, hvor det benyttes åpne installasjoner.
- Gjennomføring i brannhemmende konstruksjoner tettes forskriftsmessig.
- Sikringsskap m/automatsikringer og jordfeilbryter plasseres av entreprenør på det mest hensiktsmessige sted.
- Belysning leveres i alle rom. I stuen er det spotbelysning over spisebord, sofagruppe og stoler i forbindelse med TV. Det er også indirekte led-belysninger i stuen langs tak/vegger mot sideveggene og frontveggen mot øst. Belysning med stikk under overskap kjøkken.
- Ved hovedinngang og inngang til den enkelte leilighet leveres belysning, samt på balkonger/terrasser.
Fellesanlegg:
Det monteres sikringsskap i eller i tilknytning til trapperom, boder og annet fellesareal.
Følgende elektriske installasjoner leveres:
Fellesgang:
- Lyspunkt for tak-lys med bryter på vegg.
- 1 stk. dørtelefon m/døråpner for de leiligheter som har inngang fra fellesgang.
- Dørautomatikk for åpning av dør fra garasjeanlegg og ytterdør.
Trapperom
- Sikringsskap m/automatsikringer for trapperommet plasseres i teknisk rom
- Opplegg for lys m/bryter i hvert plan (utelys styres av fotocelle).
- Lysarmaturer som oppfyller lysnivå i henhold til gjeldende teknisk standard.
- Lede-lys med minimum en times batteripakke integreres i lysarmaturene.
- 1 stk. ringeknapp ved inngangsdør til hver enkelt leilighet, unntatt ved fellesgang der det er dørtelefon.
- Nødlys (markeringslys), røykdetektorer og alarmklokker i trapperom i henhold til gjeldende forskrifter og prosjektets brannplan.
- Lokal brannsentral plasseres i henhold til gjeldende forskrifter.
Utvendig
- 1 stk. lys ved hver hovedinngang/fellesgang, og veggmonterte lys langs fasaden.
Sportsbod-bod i garasjeanlegg
- 1 stk. lyspunkt for tak-lys med bryter på vegg.
Selger forbeholder seg retten til å foreta endringer i materialvalg og konstruksjonsløsninger, samt foreta tilpasninger som er nødvendig etter hvert som tiltaket detaljprosjekteres uten forhåndsvarsel til kjøperne. Dette gjelder også ev. sammenslåing eller oppdeling av leiligheter. Endringene skal ikke redusere byggets eller leilighetens kvalitet eller vesentlig endre innholdet i prosjektet som sådan. Slike endringer gir ikke rett til prisjustering fra noen av partene. Om det blir nødvendig å gjennomføre vesentlige endringer ut over de forannevnte bestemmelser, plikter selger å varsle kjøper om endringene uten ugrunnet opphold.
Oppvarming
Fjernvarmeanlegg med bergvarme og varmesentral.
Leilighetene oppvarmes med vannbåren varme i gulv i stue, kjøkken, bad, gjestetoalett, soverom og gang/entre.
Garasjeanlegg er også oppvarmet via fjernvarmeanlegget.
Beliggenhet
Leilighetene ligger midt i Stokmarknes sentrum, med Rema 1000 som nærmeste nabo, kun en heistur unna.
Adkomst
Det vil være direkte adkomst fra oppvarmet garasjeanlegg til hver etasje via heis og trappegang, samt fra gateplan.
Veibeskrivelse fra Ranværingsneset/ krysset Ranværingsgata/ Søndre gate: Følg Søndre gate ca 130m og ta til høyre inn på Skarveien. Følg veien ca 140m og ta til høyre inn på Richards Withs gate og kjør ca 40m og ta til høyre. Inngangen til leilighetene ligger nå på høyre side.
Parkeringsforhold
Parkering for 1 bil i oppvarmet garasjeanlegg.
Kjøpsbetingelser
Kjøpsbetingelsene regulerer betingelsene for kjøp av bolig. Boligen er i fortsettelsen omtalt som leilighet. Avtale anses inngått når kjøper har levert megler skriftlig bindende bekreftelse på kjøp og aksept er meddelt.
Kjøpsbetingelsene utgjør, sammen med akseptbrev, leveransebeskrivelse og skriftlige opplysninger i prospekt/brosjyremateriell, de samlede avtalevilkårene for kjøp av den aktuelle leiligheten.
Kjøper og selger vil senere inngå fullstendig kjøpekontrakt med endelige vedlegg inkl. tegninger. Kjøper aksepterer at detaljbestemmelser først kan bli avklart på dette tidspunkt. Inneholder kontraktsdokumentene bestemmelser som strider mot hverandre, gjelder yngre bestemmelser foran eldre, spesielle foran generelle, og bestemmelser utarbeidet særskilt for handelen, foran standardiserte bestemmelser.
Kjøper gjøres oppmerksom på at alle skisser, frihånds- og oversiktstegninger i perspektiv, fotos, annonser, bilder og planer er foreløpige og utformet for å illustrere prosjektet. Slike tegninger, fotos, annonser, beskrivelser, mv., vil derfor inneholde detaljer - eksempelvis beplantning, innredning, møbler, tekst og andre ting - som ikke nødvendigvis vil inngå i den ferdige leveransen, og er ikke å anse som en del av avtalevilkårene for kjøpet. Slike avvik kan ikke påberopes som mangel fra kjøpers side.
Regulering
Eiendommen er regulert til Bolig/Kontor/Forretning (sosi 1801)/
Bolig/Forretning (sosi 1802) Se vedlagte reguleringsplankart med bestemmelser for nærmere informasjon.
Vei, vann og kloakk
Tilknyttet offentlig vann og avløp via private stikkledninger.
Tilknyttet offentlig adkomstvei.
Tinglyste heftelser
Følgende heftelser vil følge eiendommen og kopi kan fås av megler. Kjøpers bank får prioritet etter disse heftelsene:
Rettigheter Iflg. Skjøte - Tinglyst dato 24.07.46
Med flere bestemmelser
Nyttige lenker
Nærområdet
EiendomsMegler 1 Vesterålen
Annonseinformasjon
| FINN-kode | 324990691 |
|---|---|
| Sist endret | 02. des. 2024 07:41 |
| Referanse | PFS-19230192 |
Annonsene kan være mangelfulle i forhold til lovpålagt opplysningsplikt. Før bindende avtale inngås oppfordres interessenter til å innhente komplett informasjon fra meglerforetaket, selger eller utleier.

























































