Bildegalleri

Tyttebærsvingen - Sokna
Vi er i gang med den første av tre moderne areal-og økonomieffektive tomannsboliger på Sokna - Ringerike kommune
Prisantydning
2 690 000 kr
Kort om prosjektet
Vi skal bygge 3 stk flotte tomannsboliger som ligger i landlige Sokna. Et tettsted beliggende i Soknedalen cirka 25 km vest for Hønefoss sentrum langs Rv 7 mot Hallingdal. Vi har allerede solgt begge boligene i nr 21 og har nå for salg i nr 19
Prosjektets status
Planlegging
Prosjektet er klart for salgsstart
Salgsstart
Salgsklart
Byggestart
Planlagt sommer/høsten 2025
Overtakelse
Vår sommer 2026
Nøkkelinfo
- Boligtype
- Tomannsbolig, Leilighet
- Soverom
- 2
- Antall etasjer
- 1
- Primærrom
- 62 m²
- Bruksareal
- 67 m²
- Eieform
- Eier (Selveier)
Fasiliteter
Enheter i prosjektet
Sorter etter
| Enhet | Etasje | P-rom | Soverom | Totalpris |
|---|---|---|---|---|
| 1 | 1 | 62 m² | 2 | 2 701 240 kr |
| 2 | 1 | 62 m² | 2 | 2 701 240 kr |
Visning
Ta kontakt for å avtale visning.Beskrivelse
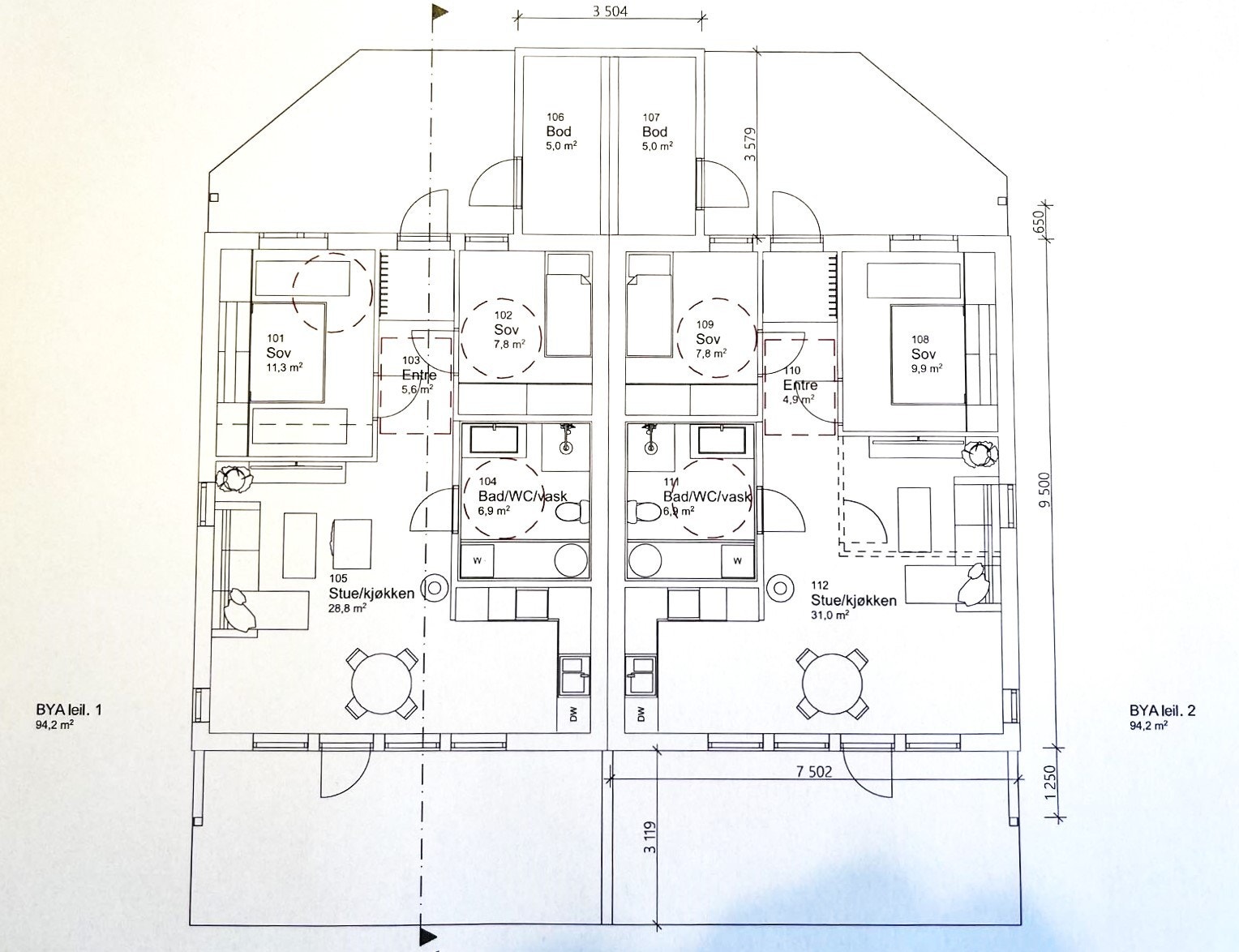
Boligen inneholder stue med åpen kjøkkenløsning, 2 soverom (mulighet for 3 soverom), bad, bod, gang og tilstøtende sportsbod.
Vegger og himling:
Vegger i alle tørre rom samt bod, leveres med malte panelplater fra Hunton - Kostemalt Faspanel. I himlingene leveres Hunton takplater 120x60.
Bad leveres med standard fliser.
Gulv:
På gulvene i rom som ikke har flis vil vi legge en 13 mm 3-stavs eike parkett hvitlasert.
Kjøkken:
Moderne tilpasset kjøkkeninnredning i grå utførelse - modell Rimini, leveres og monteres av vår leverandør Nybo kjøkken, Hvitevarer er inkludert i leveransen.
Bad
Bad har fliser som standard på gulv og vegger. Det leveres, toalett, dusj og ettgreps blandebatteri til servant, baderoms innredning med speil, belysning og heldekkende servant i hvit utførelse.
Gang/entre:
Leveres med standardfliser 30x30 og varmekabler på deler av arealet.
*Ved første signering av kjøpekontrakt , vil tidspunkt for overlevering av bolig kunne fastslås. Det antas at fra kontraktsignering, at det vil være ca 1 år.
*Forbehold om godkjent igangsettelsestillatelse.
Område/Beliggenhet
Tomten ligger i landlige Sokna et tettsted beliggende i Soknedalen cirka 25 km vest for Hønefoss sentrum langs Rv 7 mot Hallingdal.
Her har du blant annet barne- og ungdomsskole, kafé, dagligvareforretning, en liten delikatessforretning, interiørbutikk samt bensinstasjon. Landlige og rolige omgivelser med nærhet til blant annet Holleia og Norefjell (cirka 30 km).
Barn fra Sokna går på Sokna skole (barne- og ungdomsskole).
Moelven Soknabruket er bygdas største arbeidsgiver.
Brekkebygda, Strømsoddbygda og Vestbyda er nabobygder til Sokna. Her finner du spredt og landlig bebyggelse, samt boligfelt.
Adkomst
Fra Hønefoss er det i underkanten av 30 min til Sokna.
Ta Rv7 Soknedalsveien fra Hønefoss (retning Norefjell og Gol) og kjør denne i ca 20 km. Da er du på Sokna, sving så til høyre inn på Strømsoddveien og følg denne 1,9 km, sving så til venstre inn på Tyttebærstien og følg denne 86 meter for så å svinge til høyre inn på Tyttebærsvingen - tomten ligger på din høyre hånd etter ca 140 m.
Kjøpsbetingelser og omkostninger
Ved kjøp av ny bolig, betaler du kun dokumentavgift på tomteverdien. Man sparer derfor titalls tusen kroner ved å kjøpe nytt.
Følgende tilkommer ut over kjøpesummen pr. leilighet og betales av kjøper.
Dokumentavgift ved tinglysning av skjøte: kr 10.000,-
(2,5% av tomteverdi kr 400.000,-)
Gebyr for tinglysing av skjøte kr. 500,-
Gebyr for tinglysing av pantedokument kr. 500, -
Gebyr for pantedokument kr. 240,-
Totale omkostninger: kr 11.240- pr enhet.
Det tas forbehold om at gebyrer fra staten kan endres
Fordeler ved å kjøpe NYTT
Mange fordeler ved å kjøpe ny bolig i istedenfor brukt:
1. Du starter med blanke ark og kan tilpasse boligen etter eget ønske dersom du kjøper på tidlig tidspunkt.
Bruk tiden frem mot bygging, til å snakke med våre leverandører og få inspirerende forslag som hjelper deg/dere videre i prosessen, slik at du kan være med å sette ditt preg på boligen du skal bo i.
2. Lave strømutgifter
Nye boliger er bygget med meget god standard som gjør at varmetapet er helt minimalt i motsetning til eldre eneboliger og blokker, dette genererer lavere strømregninger.
3. Du gjør et trygt valg og er beskyttet mot feil og mangler i 5 år
Gjennom reklamasjonsretten, når du kjøper en ny bolig under oppføring, er du beskyttet mot feil og mangler i 5 år. Dette er bestemt i Bustadoppføringsloven og gir stor trygghet med tanke på uforutsette utgifter.
4. Bruk tiden på annet enn vedlikehold
En bolig med splitter nytt elektrisk anlegg, røropplegg og tak. Det samme er kjøkken, baderom, peis og andre ting som kan være både kostbare og tidkrevende å oppgradere. Du vil dermed kunne ha lave vedlikeholds- og oppussingsutgifter i årevis.
5. En solid investering - uten prispressende konkurrenter
Våre boliger selges til fastpris, hvilket betyr at du slipper budrunder som kan ende med både budsjettsprekk. I tillegg skal du være klar over at verdien på boligene kan øke når innflytting nærmer seg. Er du tidlig ute kan du dermed ha økt boligens verdi før du har flyttet inn
6. Dokumentavgiften er lavere på nye boliger
Du vil spare mange tusenlapper på dokumentavgiften ved å handle ny bolig kontra å kjøpe brukt. Årsaken til dette er at avgiften kun beregnes på tomteverdien og ikke hele kjøpesummen for boligen, slik tilfellet er for bruktboliger. Avhengig av verdien er dette et beløp som gjerne sparer deg for 40-100.000 kroner.
Nærområdet
SANDVOLD BOLIGER AS
Annonsene kan være mangelfulle i forhold til lovpålagt opplysningsplikt. Før bindende avtale inngås oppfordres interessenter til å innhente komplett informasjon fra meglerforetaket, selger eller utleier.







